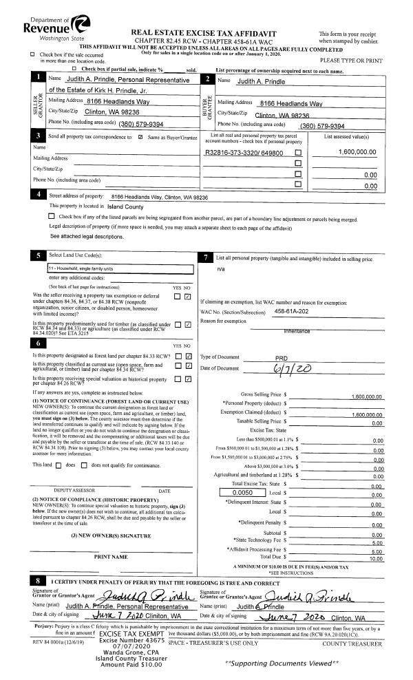
Property
Account |
| Property ID: | 649800 | Abbreviated Legal Description: | NLY 400'OF GL 2 INCL ADJ TIDES (TR 5 HEADLANDS V7 SUR P49) FR 329-3450 TGW ADJ VAC COUNTY RD AF#4177308 |
| Geographic ID: | R32816-373-3320 | Agent Code: | |
| Type: | Real | | |
| Tax Area: | 712 - APPRAISER-S Whid Schl Dist, outside Langley, improved, greater than 1 acre | Land Use Code | 11 |
| Open Space: | N | DFL | N |
| Historic Property: | N | Remodel Property: | N |
| Multi-Family Redevelopment: | N | | |
| Township: | 28 | Section: | 16 |
| Range: | R3 |
Location |
| Address: | 8166 HEADLANDS WAY CLINTON, WA 98236 | Mapsco: | |
| Neighborhood: | Cycle 4 | Map ID: | 714 |
| Neighborhood CD: | 4 |
Owner |
| Name: | PRINDLE, JUDITH A | Owner ID: | 295047 |
| Mailing Address: | 9727 NE JUANITA DR UNIT 208 KIRKLAND, WA 98034 | % Ownership: | 100.0000000000% |
| | | Exemptions: | |
Taxes and Assessment Details
Values
| (+) Improvement Homesite Value: | + | $0 | |
| (+) Improvement Non-Homesite Value: | + | $850,367 | |
| (+) Land Homesite Value: | + | $0 | |
| (+) Land Non-Homesite Value: | + | $1,704,000 | |
| (+) Curr Use (HS): | + | $0 | $0 |
| (+) Curr Use (NHS): | + | $0 | $0 |
| | | -------------------------- | |
| (=) Market Value: | = | $2,554,367 | |
| (–) Productivity Loss: | – | $0 | |
| | | -------------------------- | |
| (=) Subtotal: | = | $2,554,367 | |
| (+) Senior Appraised Value: | + | $0 | |
| (+) Non-Senior Appraised Value: | + | $2,554,367 | |
| | | -------------------------- | |
| (=) Total Appraised Value: | = | $2,554,367 | |
| (–) Senior Exemption Loss: | – | $0 | |
| (–) Exemption Loss: | – | $0 | |
| | | -------------------------- | |
| (=) Taxable Value: | = | $2,554,367 | |
Taxing Jurisdiction
| Owner: | PRINDLE, JUDITH A | | |
| % Ownership: | 100.0000000000% | | |
| Total Value: | $2,554,367 | | |
| Tax Area: | 712 - APPRAISER-S Whid Schl Dist, outside Langley, improved, greater than 1 acre |
| CF | Conservation Futures | 0.0313996660 | $2,554,367 | $2,554,367 | $80.21 | | |
| FIRE3 | Fire & Rescue Dist #3 S Whidbey GEN | 1.2130821753 | $2,554,367 | $2,554,367 | $3,098.66 | | |
| HOBOND | Hospital BOND | 0.1893405597 | $2,554,367 | $2,554,367 | $483.65 | | |
| HOGEN | Hospital GEN | 0.3848777722 | $2,554,367 | $2,554,367 | $983.12 | | |
| CE | County Current Expense | 0.3674210519 | $2,554,367 | $2,554,367 | $938.53 | | |
| CR | County Roads | 0.4614296361 | $2,554,367 | $2,554,367 | $1,178.66 | | |
| ISLANDEMS | Hospital GEN (EMS) | 0.4952018576 | $2,554,367 | $2,554,367 | $1,264.93 | | |
| LIB | Library Sno-Isle GEN | 0.3039084203 | $2,554,367 | $2,554,367 | $776.29 | | |
| PORTWHID | Port of S Whidbey GEN | 0.1086004714 | $2,554,367 | $2,554,367 | $277.41 | | |
| SCH206BOND | School 206 BOND | 0.5960237832 | $2,554,367 | $2,554,367 | $1,522.46 | | |
| SCH206CAP | School 206 CP | 0.3066144020 | $2,554,367 | $2,554,367 | $783.21 | | |
| SCH206MO | School 206 Enrichment | 0.4808755445 | $2,554,367 | $2,554,367 | $1,228.33 | | |
| ST | State School | 1.4761226122 | $2,554,367 | $2,554,367 | $3,770.56 | | |
| ST2 | State School Part 2 | 0.7953803475 | $2,554,367 | $2,554,367 | $2,031.69 | | |
| SWHIDPRBD | P & R S Whidbey BOND | 0.0144185398 | $2,554,367 | $2,554,367 | $36.83 | | |
| SWHIDPRBD3 | P & R S Whidbey BOND3 | 0.1483535547 | $2,554,367 | $2,554,367 | $378.95 | | |
| SWHIDPRMT | P & R S Whidbey GEN | 0.4600000000 | $2,554,367 | $2,554,367 | $1,175.01 | | |
| | Total Tax Rate: | 7.8330503944 | | | | | |
| | | | | Taxes w/Current Exemptions: | $20,008.50 | | |
| | | | | Taxes w/o Exemptions: | $20,008.50 | | |
Improvement / Building
| Improvement #1: | RESIDENTIAL | State Code: | Y | 2556.5 sqft | Value: | $691,401 |
| Bathrooms: | 2.5 | Bedrooms: | 2 | | Ceiling: | BEAM PAINTED | Exterior Wall/Cover: | WOOD SIDING | | Floor Covering: | CERAMIC TILE/HWD 40/60 | Floor Structure: | WOOD W/SUBFLOOR | | Foundation: | CONCRETE | Heating: | FHA GAS | | Interior Finish: | DRYWALL PAINT | Plumbing Fixture Cnt: | 15 | | Roof Slope: | 4" IN 12" | Roof Structure/Cover: | BEAM WOOD SHAKES |
|
| | Type | Description | Class CD | Sub Class CD | Year Built | Area |
| | BAS | BASE/MAIN FLOOR | 6 | 0 | 1992 | 1530.5 |
| | BAS | BASE/MAIN FLOOR | 6 | 0 | 1992 | 648.0 |
| | UB8 | BASEMENT UNFINISHED 8" | 6 | 0 | 1992 | 630.0 |
| | OP3 | OPEN PORCH W/ROOF | 6 | 0 | 1992 | 100.0 |
| | UPS | UPPER STORY | 6 | 0 | 1992 | 378.0 |
| | UTY | STORAGE/UTILITY | 6 | 0 | 1992 | 21.0 |
| | UTY | STORAGE/UTILITY | 6 | 0 | 1992 | 15.0 |
| | OWP | OPEN WOOD PORCH W/STEPS | 6 | 0 | 1992 | 24.0 |
| Improvement #2: | RESIDENTIAL | State Code: | Y | 912.0 sqft | Value: | $158,966 |
| Bathrooms: | 2 | Bedrooms: | 2 | | Ceiling: | TONGUE & GROOVE | Exterior Wall/Cover: | WOOD SIDING | | Floor Covering: | COLORED CONCRETE | Floor Structure: | SLAB ABOVE GRADE | | Foundation: | CONCRETE | Heating: | WALL HEAT ELECTRIC | | Interior Finish: | DRYWALL PAINT | Plumbing Fixture Cnt: | 7 | | Roof Slope: | 6" IN 12" | Roof Structure/Cover: | CJ ASPHALT |
|
| | Type | Description | Class CD | Sub Class CD | Year Built | Area |
| | BAS | BASE/MAIN FLOOR | 3 | 0 | 1996 | 624.0 |
| | BGR | BASEMENT GARAGE | 3 | 0 | 1996 | 624.0 |
| | LOF | LOFT | 3 | 0 | 1996 | 288.0 |
Sketch
Property Image
Land
| 1 | HB | HIGH BLUFF | 14.0900 | 613760.40 | 400.00 | 0.00 | 1.00 | $1,700,000 | $0 |
| 2 | 55 | TIDES | 0.0000 | 0.00 | 400.00 | 0.00 | 1.00 | $4,000 | $0 |
Roll Value History
| 2026 | N/A | N/A | N/A | N/A | N/A |
| 2025 | $850,367 | $1,704,000 | $0 | $2,554,367 | $2,554,367 |
| 2024 | $848,956 | $1,704,000 | $0 | $2,552,956 | $2,552,956 |
| 2023 | $860,091 | $1,704,000 | $0 | $2,564,091 | $2,564,091 |
| 2022 | $788,904 | $1,554,000 | $0 | $2,342,904 | $2,342,904 |
| 2021 | $694,771 | $1,294,000 | $0 | $1,988,771 | $1,988,771 |
| 2020 | $676,435 | $1,294,000 | $0 | $1,970,435 | $1,970,435 |
| 2019 | $546,997 | $1,304,000 | $0 | $1,850,997 | $1,850,997 |
| 2018 | $548,679 | $1,204,000 | $0 | $1,752,679 | $1,752,679 |
| 2017 | $552,046 | $1,204,000 | $0 | $1,756,046 | $1,756,046 |
| 2016 | $558,778 | $1,204,000 | $0 | $1,762,778 | $1,762,778 |
| 2015 | $565,511 | $1,204,000 | $0 | $1,769,511 | $1,769,511 |
| 2014 | $609,029 | $1,204,000 | $0 | $1,813,029 | $1,813,029 |
| 2013 | $616,752 | $1,166,796 | $0 | $1,783,548 | $1,783,548 |
| 2012 | $624,475 | $1,166,796 | $0 | $1,791,271 | $1,791,271 |
| 2011 | $632,199 | $1,166,796 | $0 | $1,798,995 | $1,798,995 |
| 2010 | $654,554 | $1,166,796 | $0 | $1,821,350 | $1,821,350 |
| 2009 | $683,506 | $1,457,498 | $0 | $2,141,004 | $2,141,004 |
| 2008 | $696,439 | $1,457,498 | $0 | $2,153,937 | $2,153,937 |
| 2007 | $706,228 | $1,338,418 | $0 | $2,044,646 | $2,044,646 |
Deed and Sales History
| 1 | 07/07/2020 | WD | Warranty Deed | PRINDLE, KIRK H | PRINDLE, JUDITH A | | | $0.00 | 43675 | 4490652 |
| 2 | 07/01/1990 | WD | Warranty Deed | ERNST, DONNA R | PUGET, SOUND E | | | $275,000.00 | 4711 | 90015566 |
| 3 | 07/01/1990 | WD | Warranty Deed | PUGET, SOUND E | PRINDLE, KIRK H | | | $0.00 | 4712 | 90015567 |
| 4 | 01/01/1900 | OTHER | Other - Misc. Documents | Unknown | ERNST, DONNA R | | | $0.00 | 93074 | 89010367 |
Payout Agreement
| No payout information available.. |