Property
Account |
| Property ID: | 650192 | Abbreviated Legal Description: | IN GL 4: BG PT 1591'S & 792 W OF NECR GL 4 S58*W112.70' S01*E370'M/L TO SLN GL 4 NELY TO LN S01*W FR TPB N01*E350'M/L TPB TGW & SUB EZS FR 346-3140 (LOT B SURVEY V7 P223 AF#91001180) DRAINFIELD LOC 367-2950 AF#90016939 |
| Geographic ID: | R23202-345-3190 | Agent Code: | |
| Type: | Real | | |
| Tax Area: | 110 - APPRAISER-OH Schl Dist, outside OH, improved & 1 acre or less | Land Use Code | 11 |
| Open Space: | N | DFL | N |
| Historic Property: | N | Remodel Property: | N |
| Multi-Family Redevelopment: | N | | |
| Township: | 32 | Section: | 02 |
| Range: | R2 |
Location |
| Address: | 1832 LOLA BEACH LN OAK HARBOR, WA 98277 | Mapsco: | |
| Neighborhood: | Cycle 6 | Map ID: | 539 |
| Neighborhood CD: | 6 |
Owner |
| Name: | THOMAS, MICHAEL GEORGE EDWARD | Owner ID: | 314602 |
| Mailing Address: | 1832 LOLA BEACH LN OAK HARBOR, WA 98277 | % Ownership: | 100.0000000000% |
| | | Exemptions: | |
Taxes and Assessment Details
Values
| (+) Improvement Homesite Value: | + | $0 | |
| (+) Improvement Non-Homesite Value: | + | $1,041,532 | |
| (+) Land Homesite Value: | + | $0 | |
| (+) Land Non-Homesite Value: | + | $900,000 | |
| (+) Curr Use (HS): | + | $0 | $0 |
| (+) Curr Use (NHS): | + | $0 | $0 |
| | | -------------------------- | |
| (=) Market Value: | = | $1,941,532 | |
| (–) Productivity Loss: | – | $0 | |
| | | -------------------------- | |
| (=) Subtotal: | = | $1,941,532 | |
| (+) Senior Appraised Value: | + | $0 | |
| (+) Non-Senior Appraised Value: | + | $1,941,532 | |
| | | -------------------------- | |
| (=) Total Appraised Value: | = | $1,941,532 | |
| (–) Senior Exemption Loss: | – | $0 | |
| (–) Exemption Loss: | – | $0 | |
| | | -------------------------- | |
| (=) Taxable Value: | = | $1,941,532 | |
Taxing Jurisdiction
| Owner: | THOMAS, MICHAEL GEORGE EDWARD | | |
| % Ownership: | 100.0000000000% | | |
| Total Value: | $1,941,532 | | |
| Tax Area: | 110 - APPRAISER-OH Schl Dist, outside OH, improved & 1 acre or less |
| CF | Conservation Futures | 0.0313996660 | $1,941,532 | $1,941,532 | $60.96 | | |
| CEM1 | Cemetery #1 | 0.0040018856 | $1,941,532 | $1,941,532 | $7.77 | | |
| FIRE2 | Fire & Rescue Dist #2 N Whidbey GEN | 0.5381486274 | $1,941,532 | $1,941,532 | $1,044.83 | | |
| HOBOND | Hospital BOND | 0.1893405597 | $1,941,532 | $1,941,532 | $367.61 | | |
| HOGEN | Hospital GEN | 0.3848777722 | $1,941,532 | $1,941,532 | $747.25 | | |
| CE | County Current Expense | 0.3674210519 | $1,941,532 | $1,941,532 | $713.36 | | |
| CR | County Roads | 0.4614296361 | $1,941,532 | $1,941,532 | $895.88 | | |
| ISLANDEMS | Hospital GEN (EMS) | 0.4952018576 | $1,941,532 | $1,941,532 | $961.45 | | |
| LIB | Library Sno-Isle GEN | 0.3039084203 | $1,941,532 | $1,941,532 | $590.05 | | |
| NWHIDPRMT | P & R N Whidbey GEN | 0.1990272349 | $1,941,532 | $1,941,532 | $386.42 | | |
| SCH201MO | School 201 Enrichment | 2.3851112745 | $1,941,532 | $1,941,532 | $4,630.77 | | |
| ST | State School | 1.4761226122 | $1,941,532 | $1,941,532 | $2,865.94 | | |
| ST2 | State School Part 2 | 0.7953803475 | $1,941,532 | $1,941,532 | $1,544.26 | | |
| | Total Tax Rate: | 7.6313709459 | | | | | |
| | | | | Taxes w/Current Exemptions: | $14,816.55 | | |
| | | | | Taxes w/o Exemptions: | $14,816.55 | | |
Improvement / Building
| Improvement #1: | RESIDENTIAL | State Code: | Y | 4340.0 sqft | Value: | $1,041,532 |
| Bathrooms: | 4.5 | Bedrooms: | 3 | | Ceiling: | BEAM PAINTED | Cooling: | HEAT PUMP/CONV/V | | Exterior Wall/Cover: | CEMENT FIBER | Floor Covering: | CERAMIC TILE/HWD 40/60 | | Floor Structure: | WOOD W/SUBFLOOR | Foundation: | CONCRETE | | Interior Finish: | DRYWALL PAINT | Plumbing Fixture Cnt: | 21 | | Roof Slope: | 12" IN 12" | Roof Structure/Cover: | BEAM ASPHALT |
|
| | Type | Description | Class CD | Sub Class CD | Year Built | Area |
| | BAS | BASE/MAIN FLOOR | 5 | 0 | 1998 | 2820.0 |
| | BIG | BUILT IN GARAGE | 5 | 0 | 1998 | 738.0 |
| | UPS | UPPER STORY | 5 | 0 | 1998 | 1520.0 |
| | BAW | BALCONY WOOD RAIL | 5 | 0 | 1998 | 40.0 |
| | OWP | OPEN WOOD PORCH W/STEPS | 5 | 0 | 1998 | 369.1 |
| | OWP | OPEN WOOD PORCH W/STEPS | 5 | 0 | 1998 | 280.0 |
| | OWR | OPEN WOOD PORCH W/STEPS/ROOF | 5 | 0 | 1998 | 144.0 |
| | OP3 | OPEN PORCH W/ROOF | 5 | 0 | 1998 | 30.0 |
| | OP2 | OPEN PORCH W/STEPS | 5 | 0 | 1998 | 64.0 |
| | BAW | BALCONY WOOD RAIL | 5 | 0 | 1998 | 40.0 |
| | oTNC | TEN CT STD | 5 | 0 | 1998 | 2016.0 |
Sketch
| No sketches available for this property. |
Property Image
Land
| 1 | LB | LOW BANK | 0.9600 | 41817.60 | 100.00 | 0.00 | 1.00 | $900,000 | $0 |
Roll Value History
| 2026 | N/A | N/A | N/A | N/A | N/A |
| 2025 | $1,041,532 | $900,000 | $0 | $1,941,532 | $1,941,532 |
| 2024 | $1,139,375 | $900,000 | $0 | $2,039,375 | $2,039,375 |
| 2023 | $1,152,233 | $850,000 | $0 | $2,002,233 | $2,002,233 |
| 2022 | $965,306 | $750,000 | $0 | $1,715,306 | $1,715,306 |
| 2021 | $852,570 | $625,000 | $0 | $1,477,570 | $1,477,570 |
| 2020 | $446,776 | $425,000 | $0 | $871,776 | $871,776 |
| 2019 | $374,123 | $475,000 | $0 | $849,123 | $849,123 |
| 2018 | $375,271 | $400,000 | $0 | $775,271 | $775,271 |
| 2017 | $377,575 | $315,000 | $0 | $692,575 | $692,575 |
| 2016 | $372,357 | $300,000 | $0 | $672,357 | $672,357 |
| 2015 | $376,841 | $300,000 | $0 | $676,841 | $676,841 |
| 2014 | $381,329 | $350,000 | $0 | $731,329 | $731,329 |
| 2013 | $385,814 | $345,542 | $0 | $731,356 | $731,356 |
| 2012 | $390,303 | $345,542 | $0 | $735,845 | $735,845 |
| 2011 | $394,788 | $345,542 | $0 | $740,330 | $740,330 |
| 2010 | $417,933 | $345,542 | $0 | $763,475 | $763,475 |
| 2009 | $435,869 | $447,634 | $0 | $883,503 | $883,503 |
| 2008 | $441,048 | $398,703 | $0 | $839,751 | $839,751 |
| 2007 | $361,347 | $478,994 | $0 | $840,341 | $840,341 |
Deed and Sales History
| 1 | 11/11/2024 | WD | Warranty Deed | ANDREWS, SANDRA | THOMAS, MICHAEL GEORGE EDWARD | | | $1,850,000.00 | 61871 | 4579579 |
| 2 | 09/20/2020 | WD | Warranty Deed | REGIS INVESTMENTS, LP | ANDREWS, SANDRA | | | $1,725,000.00 | 45061 | 4498419 |
| 3 | 02/26/2018 | WD | Warranty Deed | VON BECK TTEE, DAVE | REGIS INVESTMENTS, LP | | | $0.00 | 33262 | 4440640 |
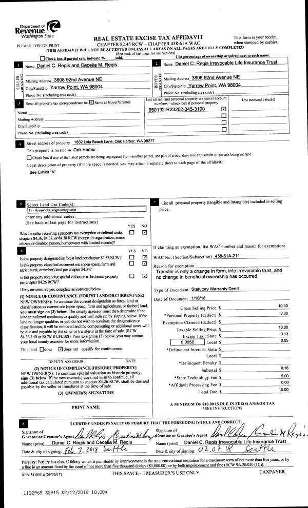
| 4 | 01/10/2018 | WD | Warranty Deed | REGIS, DANIEL C | VON BECK TTEE, DAVE | | | $0.00 | 32915 | 4439036 |
| 5 | 02/01/1991 | WD | Warranty Deed | MASSEY, WILLIAM L | REGIS, DANIEL C | | | $185,000.00 | 10740 | 91003309 |
| 6 | 10/01/1990 | OTHER | Other - Misc. Documents | MASSEY, WILLIAM L | MASSEY, WILLIAM L | | | $0.00 | 63921 | 90019891 |
| 7 | 01/01/1900 | OTHER | Other - Misc. Documents | Unknown | MASSEY, WILLIAM L | | | $0.00 | 2708 | 90008893 |
Payout Agreement
| No payout information available.. |