Property
Account |
| Property ID: | 650325 | Abbreviated Legal Description: | IN NE NE LOT 9 OF THE HEADLANDS V7 SUR P49 AF#90004168 TGW & SUB EZ AF#91015193 FR 462-4700 TGW ADJ VAC COUNTY RD AF#4177308 |
| Geographic ID: | R32816-415-4720 | Agent Code: | |
| Type: | Real | | |
| Tax Area: | 712 - APPRAISER-S Whid Schl Dist, outside Langley, improved, greater than 1 acre | Land Use Code | 11 |
| Open Space: | N | DFL | N |
| Historic Property: | N | Remodel Property: | N |
| Multi-Family Redevelopment: | N | | |
| Township: | 28 | Section: | 16 |
| Range: | R3 |
Location |
| Address: | 8081 HEADLANDS WAY CLINTON, WA 98236 | Mapsco: | |
| Neighborhood: | Cycle 4 | Map ID: | 715 |
| Neighborhood CD: | 4 |
Owner |
| Name: | CALDWELL TTEE, KENNETH THEODORE | Owner ID: | 297741 |
| Mailing Address: | CONCEPCION REYES CALDWELL 8081 HEADLANDS WAY CLINTON, WA 98236 | % Ownership: | 100.0000000000% |
| | | Exemptions: | |
Taxes and Assessment Details
Values
| (+) Improvement Homesite Value: | + | $0 | |
| (+) Improvement Non-Homesite Value: | + | $319,268 | |
| (+) Land Homesite Value: | + | $0 | |
| (+) Land Non-Homesite Value: | + | $400,000 | |
| (+) Curr Use (HS): | + | $0 | $0 |
| (+) Curr Use (NHS): | + | $0 | $0 |
| | | -------------------------- | |
| (=) Market Value: | = | $719,268 | |
| (–) Productivity Loss: | – | $0 | |
| | | -------------------------- | |
| (=) Subtotal: | = | $719,268 | |
| (+) Senior Appraised Value: | + | $0 | |
| (+) Non-Senior Appraised Value: | + | $719,268 | |
| | | -------------------------- | |
| (=) Total Appraised Value: | = | $719,268 | |
| (–) Senior Exemption Loss: | – | $0 | |
| (–) Exemption Loss: | – | $0 | |
| | | -------------------------- | |
| (=) Taxable Value: | = | $719,268 | |
Taxing Jurisdiction
| Owner: | CALDWELL TTEE, KENNETH THEODORE | | |
| % Ownership: | 100.0000000000% | | |
| Total Value: | $719,268 | | |
| Tax Area: | 712 - APPRAISER-S Whid Schl Dist, outside Langley, improved, greater than 1 acre |
| CF | Conservation Futures | 0.0313996660 | $719,268 | $719,268 | $22.58 | | |
| FIRE3 | Fire & Rescue Dist #3 S Whidbey GEN | 1.2130821753 | $719,268 | $719,268 | $872.53 | | |
| HOBOND | Hospital BOND | 0.1893405597 | $719,268 | $719,268 | $136.19 | | |
| HOGEN | Hospital GEN | 0.3848777722 | $719,268 | $719,268 | $276.83 | | |
| CE | County Current Expense | 0.3674210519 | $719,268 | $719,268 | $264.27 | | |
| CR | County Roads | 0.4614296361 | $719,268 | $719,268 | $331.89 | | |
| ISLANDEMS | Hospital GEN (EMS) | 0.4952018576 | $719,268 | $719,268 | $356.18 | | |
| LIB | Library Sno-Isle GEN | 0.3039084203 | $719,268 | $719,268 | $218.59 | | |
| PORTWHID | Port of S Whidbey GEN | 0.1086004714 | $719,268 | $719,268 | $78.11 | | |
| SCH206BOND | School 206 BOND | 0.5960237832 | $719,268 | $719,268 | $428.70 | | |
| SCH206CAP | School 206 CP | 0.3066144020 | $719,268 | $719,268 | $220.54 | | |
| SCH206MO | School 206 Enrichment | 0.4808755445 | $719,268 | $719,268 | $345.88 | | |
| ST | State School | 1.4761226122 | $719,268 | $719,268 | $1,061.73 | | |
| ST2 | State School Part 2 | 0.7953803475 | $719,268 | $719,268 | $572.09 | | |
| SWHIDPRBD | P & R S Whidbey BOND | 0.0144185398 | $719,268 | $719,268 | $10.37 | | |
| SWHIDPRBD3 | P & R S Whidbey BOND3 | 0.1483535547 | $719,268 | $719,268 | $106.71 | | |
| SWHIDPRMT | P & R S Whidbey GEN | 0.4600000000 | $719,268 | $719,268 | $330.86 | | |
| | Total Tax Rate: | 7.8330503944 | | | | | |
| | | | | Taxes w/Current Exemptions: | $5,634.05 | | |
| | | | | Taxes w/o Exemptions: | $5,634.05 | | |
Improvement / Building
| Improvement #1: | RESIDENTIAL | State Code: | Y | 2138.6 sqft | Value: | $319,268 |
| Bathrooms: | 2 | Bedrooms: | 3 | | Ceiling: | DRYWALL PAINTED | Exterior Wall/Cover: | CEMENT FIBER | | Floor Covering: | CARPET/VINYL 60-40 | Floor Structure: | WOOD W/SUBFLOOR | | Foundation: | CONCRETE | Heating: | WALL HEAT ELECTRIC | | Interior Finish: | DRYWALL PAINT | Plumbing Fixture Cnt: | 1 | | Roof Slope: | 8" IN 12" | Roof Structure/Cover: | CJ ASPHALT |
|
| | Type | Description | Class CD | Sub Class CD | Year Built | Area |
| | BAS | BASE/MAIN FLOOR | 3 | 0 | 2014 | 2138.6 |
| | AGR | ATTACHED GARAGE | 3 | 0 | 2014 | 484.0 |
| | OP4 | OPEN PORCH W/CEILING-ROOF | 3 | 0 | 2014 | 70.0 |
| | OWP | OPEN WOOD PORCH W/STEPS | 3 | 0 | 2014 | 216.0 |
| | OP4 | OPEN PORCH W/CEILING-ROOF | 3 | 0 | 2014 | 23.7 |
| | OWP | OPEN WOOD PORCH W/STEPS | 3 | 0 | 2014 | 58.0 |
| | OWP | OPEN WOOD PORCH W/STEPS | 3 | 0 | 2014 | 56.0 |
Sketch
Property Image
Land
| 1 | 35 | AC (10.00-30.99) | 10.0100 | 436035.60 | 0.00 | 0.00 | 1.00 | $400,000 | $0 |
Roll Value History
| 2026 | N/A | N/A | N/A | N/A | N/A |
| 2025 | $319,268 | $400,000 | $0 | $719,268 | $719,268 |
| 2024 | $321,953 | $360,000 | $0 | $681,953 | $681,953 |
| 2023 | $324,815 | $360,000 | $0 | $684,815 | $684,815 |
| 2022 | $296,378 | $350,000 | $0 | $646,378 | $646,378 |
| 2021 | $259,825 | $250,000 | $0 | $509,825 | $509,825 |
| 2020 | $252,010 | $250,000 | $0 | $502,010 | $502,010 |
| 2019 | $203,856 | $300,000 | $0 | $503,856 | $503,856 |
| 2018 | $204,392 | $245,000 | $0 | $449,392 | $449,392 |
| 2017 | $205,461 | $200,000 | $0 | $405,461 | $405,461 |
| 2016 | $207,601 | $200,000 | $0 | $407,601 | $407,601 |
| 2015 | $209,741 | $200,000 | $0 | $409,741 | $409,741 |
| 2014 | $88,984 | $110,000 | $0 | $198,984 | $198,984 |
| 2013 | $4,000 | $110,000 | $0 | $114,000 | $114,000 |
| 2012 | $4,000 | $130,130 | $0 | $134,130 | $134,130 |
| 2011 | $4,000 | $130,130 | $0 | $134,130 | $134,130 |
| 2010 | $4,000 | $130,130 | $0 | $134,130 | $134,130 |
| 2009 | $4,000 | $200,200 | $0 | $204,200 | $204,200 |
| 2008 | $4,000 | $239,020 | $0 | $243,020 | $243,020 |
| 2007 | $4,000 | $204,250 | $0 | $208,250 | $208,250 |
Deed and Sales History
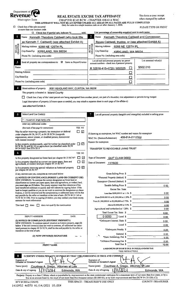
| 1 | 11/18/2020 | QCD | Quit Claim Deed | CALDWELL, KENNETH T | CALDWELL TTEE, KENNETH THEODORE | | | $0.00 | 46570 | 4508132 |
| 2 | 11/15/2013 | WD | Warranty Deed | PURVINE, DENNIS L | CALDWELL, KENNETH T | | | $129,900.00 | 13456 | 4351484 |
| 3 | 10/07/1998 | WD | Warranty Deed | ERNST, DONNA R | PURVINE, DENNIS L | | | $160,000.00 | 84094 | 98022181 |
| 4 | 11/01/1990 | OTHER | Other - Misc. Documents | ERNST, DONNA R | ERNST, DONNA R | | | $0.00 | 63931 | 90004168 |
| 5 | 01/01/1900 | OTHER | Other - Misc. Documents | Unknown | ERNST, DONNA R | | | $0.00 | 93074 | 89010367 |
Payout Agreement
| No payout information available.. |