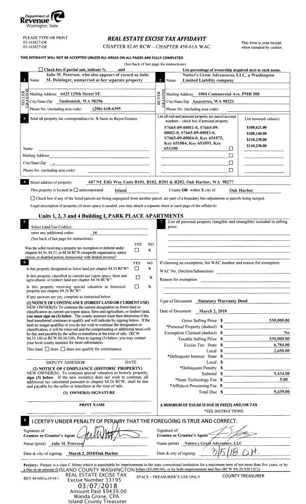
Property
Account |
| Property ID: | 651084 | Abbreviated Legal Description: | PARK PLACE CONDOS UNIT I-2 1/44 INT |
| Geographic ID: | S7665-09-000I2-0 | Agent Code: | |
| Type: | Real | | |
| Tax Area: | 100 - APPRAISER-OH Schl Dist, in OH | Land Use Code | 14 |
| Open Space: | N | DFL | N |
| Historic Property: | N | Remodel Property: | N |
| Multi-Family Redevelopment: | N | | |
| Township: | | Section: | |
| Range: | |
Location |
| Address: | 447 NE ELLIS WAY BLDG B, UNIT 102 OAK HARBOR, WA 98277 | Mapsco: | |
| Neighborhood: | 4B*OH-park place | Map ID: | 256 |
| Neighborhood CD: | 4B*OHpkpla |
Owner |
| Name: | NUTTERS GREAT ADVENTURES, LLC | Owner ID: | 284150 |
| Mailing Address: | C/O NORMAN E NUTTER 1004 COMMERCIAL AVE PMB 508 ANACORTES, WA 98221 | % Ownership: | 100.0000000000% |
| | | Exemptions: | |
Taxes and Assessment Details
Values
| (+) Improvement Homesite Value: | + | N/A | |
| (+) Improvement Non-Homesite Value: | + | N/A | |
| (+) Land Homesite Value: | + | N/A | |
| (+) Land Non-Homesite Value: | + | N/A | Ag / Timber Use Value |
| (+) Curr Use (HS): | + | N/A | N/A |
| (+) Curr Use (NHS): | + | N/A | N/A |
| | | -------------------------- | |
| (=) Market Value: | = | N/A | |
| (–) Productivity Loss: | – | N/A | |
| | | -------------------------- | |
| (=) Subtotal: | = | N/A | |
| (+) Senior Appraised Value: | + | N/A | |
| (+) Non-Senior Appraised Value: | + | N/A | |
| | | -------------------------- | |
| (=) Total Appraised Value: | = | N/A | |
| (–) Senior Exemption Loss: | – | N/A | |
| (–) Exemption Loss: | – | N/A | |
| | | -------------------------- | |
| (=) Taxable Value: | = | N/A | |
Taxing Jurisdiction
| Owner: | NUTTERS GREAT ADVENTURES, LLC | | |
| % Ownership: | 100.0000000000% | | |
| Total Value: | N/A | | |
| Tax Area: | 100 - APPRAISER-OH Schl Dist, in OH |
| CF | Conservation Futures | N/A | N/A | N/A | N/A | | |
| WCD | Whidbey Conservation District | N/A | N/A | N/A | N/A | | |
| CEM1 | Cemetery #1 | N/A | N/A | N/A | N/A | | |
| COH | City of Oak Harbor | N/A | N/A | N/A | N/A | | |
| HOBOND | Hospital BOND | N/A | N/A | N/A | N/A | | |
| HOGEN | Hospital GEN | N/A | N/A | N/A | N/A | | |
| CE | County Current Expense | N/A | N/A | N/A | N/A | | |
| ISLANDEMS | Hospital GEN (EMS) | N/A | N/A | N/A | N/A | | |
| LIB | Library Sno-Isle GEN | N/A | N/A | N/A | N/A | | |
| NWHIDPRMT | P & R N Whidbey GEN | N/A | N/A | N/A | N/A | | |
| SCH201MO | School 201 Enrichment | N/A | N/A | N/A | N/A | | |
| ST | State School | N/A | N/A | N/A | N/A | | |
| ST2 | State School Part 2 | N/A | N/A | N/A | N/A | | |
| | Total Tax Rate: | N/A | | | | | |
| | | | | Taxes w/Current Exemptions: | N/A | | |
| | | | | Taxes w/o Exemptions: | N/A | | |
Improvement / Building
| Improvement #1: | RESIDENTIAL | State Code: | A1 | 875.6 sqft | Value: | N/A |
| Bathrooms: | 2 | Bedrooms: | 2 | | Ceiling: | DRYWALL PAINTED | Exterior Wall/Cover: | PLY/HARDBOARD T-111 | | Floor Covering: | CARPET/VINYL 80-20 | Floor Structure: | WOOD W/SUBFLOOR | | Foundation: | CONCRETE | Heating: | WALL HEAT ELECTRIC | | Interior Finish: | DRYWALL PAINT | Plumbing Fixture Cnt: | 9 | | Roof Slope: | 4" IN 12" | Roof Structure/Cover: | CJ ASPHALT |
|
| | Type | Description | Class CD | Sub Class CD | Year Built | Area |
| | BAS | BASE/MAIN FLOOR | 3 | 0 | 1991 | 875.6 |
| | OP1 | OPEN PORCH SLAB | 3 | 0 | 1991 | 18.0 |
| | UTY | STORAGE/UTILITY | 3 | 0 | 1991 | 6.0 |
| | OWP | OPEN WOOD PORCH W/STEPS | 3 | 0 | 1991 | 59.4 |
| | COMA | Common Area Improvement | 3 | 0 | 1991 | 0.0 |
Sketch
Property Image
Land
| 1 | 61 | MULTIPLE RESIDENCES | 0.0000 | 2000.00 | 0.00 | 0.00 | 1.00 | N/A | N/A |
Roll Value History
| 2026 | N/A | N/A | N/A | N/A | N/A |
| 2025 | $147,578 | $90,000 | $0 | $237,578 | $237,578 |
| 2024 | $149,525 | $90,000 | $0 | $239,525 | $239,525 |
| 2023 | $151,471 | $90,000 | $0 | $241,471 | $241,471 |
| 2022 | $139,028 | $100,000 | $0 | $239,028 | $239,028 |
| 2021 | $122,567 | $70,000 | $0 | $192,567 | $192,567 |
| 2020 | $112,760 | $65,000 | $0 | $177,760 | $177,760 |
| 2019 | $78,125 | $85,000 | $0 | $163,125 | $163,125 |
| 2018 | $78,394 | $65,000 | $0 | $143,394 | $143,394 |
| 2017 | $93,140 | $15,000 | $0 | $108,140 | $108,140 |
| 2016 | $94,409 | $15,000 | $0 | $109,409 | $109,409 |
| 2015 | $64,867 | $15,000 | $0 | $79,867 | $79,867 |
| 2014 | $82,160 | $27,640 | $0 | $109,800 | $109,800 |
| 2013 | $83,236 | $27,640 | $0 | $110,876 | $110,876 |
| 2012 | $87,726 | $27,640 | $0 | $115,366 | $115,366 |
| 2011 | $87,726 | $27,640 | $0 | $115,366 | $115,366 |
| 2010 | $88,194 | $27,640 | $0 | $115,834 | $115,834 |
| 2009 | $91,965 | $48,000 | $0 | $139,965 | $139,965 |
| 2008 | $94,522 | $60,000 | $0 | $154,522 | $154,522 |
| 2007 | $95,621 | $60,000 | $0 | $155,621 | $155,621 |
Deed and Sales History
| 1 | 03/02/2018 | WD | Warranty Deed | DEININGER, JULIE M | NUTTERS GREAT ADVENTURES, LLC | | | $530,000.00 | 33195 | 4440350 |
|   | |
| 2 | 05/08/2003 | DECREE | Divorce Decree/Legal Separation | DEININGER, DANIEL E | DEININGER, JULIE M | | | $0.00 | 32469 | 4062560 |
| 3 | 10/01/1993 | WD | Warranty Deed | JOMAA, ABDUL R | DEININGER, DANIEL E | | | $65,000.00 | 33963 | 93020645 |
| 4 | 02/01/1991 | WD | Warranty Deed | ISLAND, CONST & | JOMAA, ABDUL R | | | $58,750.00 | 10547 | 91002516 |
| 5 | 01/01/1900 | OTHER | Other - Misc. Documents | Unknown | ISLAND, CONST & | | | $0.00 | 1133 | 90003700 |
Payout Agreement
| No payout information available.. |