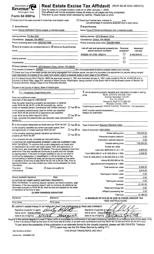
Property
Account |
| Property ID: | 652314 | Abbreviated Legal Description: | LOT 3 SP 88-23.32926.105-3330 V2 SP P270 AF#91000139 |
| Geographic ID: | R32926-107-3700 | Agent Code: | |
| Type: | Real | | |
| Tax Area: | 712 - APPRAISER-S Whid Schl Dist, outside Langley, improved, greater than 1 acre | Land Use Code | 11 |
| Open Space: | N | DFL | N |
| Historic Property: | N | Remodel Property: | N |
| Multi-Family Redevelopment: | N | | |
| Township: | 29 | Section: | 26 |
| Range: | R3 |
Location |
| Address: | 4273 BLOSSOM DR CLINTON, WA 98236 | Mapsco: | |
| Neighborhood: | Cycle 4 | Map ID: | 817 |
| Neighborhood CD: | 4 |
Owner |
| Name: | O'FARRELL, FIONA | Owner ID: | 303385 |
| Mailing Address: | BRANDON COX 4273 BLOSSOM DRIVE CLINTON, WA 98236 | % Ownership: | 100.0000000000% |
| | | Exemptions: | |
Taxes and Assessment Details
Values
| (+) Improvement Homesite Value: | + | $0 | |
| (+) Improvement Non-Homesite Value: | + | $372,660 | |
| (+) Land Homesite Value: | + | $0 | |
| (+) Land Non-Homesite Value: | + | $360,000 | |
| (+) Curr Use (HS): | + | $0 | $0 |
| (+) Curr Use (NHS): | + | $0 | $0 |
| | | -------------------------- | |
| (=) Market Value: | = | $732,660 | |
| (–) Productivity Loss: | – | $0 | |
| | | -------------------------- | |
| (=) Subtotal: | = | $732,660 | |
| (+) Senior Appraised Value: | + | $0 | |
| (+) Non-Senior Appraised Value: | + | $732,660 | |
| | | -------------------------- | |
| (=) Total Appraised Value: | = | $732,660 | |
| (–) Senior Exemption Loss: | – | $0 | |
| (–) Exemption Loss: | – | $0 | |
| | | -------------------------- | |
| (=) Taxable Value: | = | $732,660 | |
Taxing Jurisdiction
| Owner: | O'FARRELL, FIONA | | |
| % Ownership: | 100.0000000000% | | |
| Total Value: | $732,660 | | |
| Tax Area: | 712 - APPRAISER-S Whid Schl Dist, outside Langley, improved, greater than 1 acre |
| CF | Conservation Futures | 0.0313996660 | $732,660 | $732,660 | $23.01 | | |
| FIRE3 | Fire & Rescue Dist #3 S Whidbey GEN | 1.2130821753 | $732,660 | $732,660 | $888.78 | | |
| HOBOND | Hospital BOND | 0.1893405597 | $732,660 | $732,660 | $138.72 | | |
| HOGEN | Hospital GEN | 0.3848777722 | $732,660 | $732,660 | $281.98 | | |
| CE | County Current Expense | 0.3674210519 | $732,660 | $732,660 | $269.19 | | |
| CR | County Roads | 0.4614296361 | $732,660 | $732,660 | $338.07 | | |
| ISLANDEMS | Hospital GEN (EMS) | 0.4952018576 | $732,660 | $732,660 | $362.81 | | |
| LIB | Library Sno-Isle GEN | 0.3039084203 | $732,660 | $732,660 | $222.66 | | |
| PORTWHID | Port of S Whidbey GEN | 0.1086004714 | $732,660 | $732,660 | $79.57 | | |
| SCH206BOND | School 206 BOND | 0.5960237832 | $732,660 | $732,660 | $436.68 | | |
| SCH206CAP | School 206 CP | 0.3066144020 | $732,660 | $732,660 | $224.64 | | |
| SCH206MO | School 206 Enrichment | 0.4808755445 | $732,660 | $732,660 | $352.32 | | |
| ST | State School | 1.4761226122 | $732,660 | $732,660 | $1,081.50 | | |
| ST2 | State School Part 2 | 0.7953803475 | $732,660 | $732,660 | $582.74 | | |
| SWHIDPRBD | P & R S Whidbey BOND | 0.0144185398 | $732,660 | $732,660 | $10.56 | | |
| SWHIDPRBD3 | P & R S Whidbey BOND3 | 0.1483535547 | $732,660 | $732,660 | $108.69 | | |
| SWHIDPRMT | P & R S Whidbey GEN | 0.4600000000 | $732,660 | $732,660 | $337.02 | | |
| | Total Tax Rate: | 7.8330503944 | | | | | |
| | | | | Taxes w/Current Exemptions: | $5,738.94 | | |
| | | | | Taxes w/o Exemptions: | $5,738.94 | | |
Improvement / Building
| Improvement #1: | RESIDENTIAL | State Code: | Y | 1726.0 sqft | Value: | $372,660 |
| Bathrooms: | 2 | Bedrooms: | 1 | | Ceiling: | BEAM PAINTED | Exterior Wall/Cover: | WOOD SIDING | | Floor Covering: | HARDWOOD/CARP 60-40 | Floor Structure: | SLAB ON GRADE | | Foundation: | SLAB/CONCRETE | Heating: | RADIANT FLOOR | | Interior Finish: | DRYWALL PAINT | Plumbing Fixture Cnt: | 10 | | Roof Slope: | 10" IN 12" | Roof Structure/Cover: | BEAM ASPHALT |
|
| | Type | Description | Class CD | Sub Class CD | Year Built | Area |
| | BAS | BASE/MAIN FLOOR | 4 | 0 | 2001 | 972.0 |
| | BIG | BUILT IN GARAGE | 4 | 0 | 2001 | 506.0 |
| | DWN | DOWNSTAIRS LIVING AREA | 4 | 0 | 2001 | 754.0 |
| | ENP | ENCLOSED PORCH | 4 | 0 | 2001 | 288.0 |
| | CPD | OPEN CARPORT DIRT FLOOR | 4 | 0 | 2001 | 100.0 |
| | CPD | OPEN CARPORT DIRT FLOOR | 4 | 0 | 2001 | 200.0 |
| | UTY | STORAGE/UTILITY | 4 | 0 | 2001 | 200.0 |
Sketch
| No sketches available for this property. |
Property Image
Land
| 1 | 32 | AC (03.01-09.99) | 5.8500 | 0.00 | 0.00 | 0.00 | 1.00 | $360,000 | $0 |
Roll Value History
| 2026 | N/A | N/A | N/A | N/A | N/A |
| 2025 | $372,660 | $360,000 | $0 | $732,660 | $732,660 |
| 2024 | $370,978 | $340,000 | $0 | $710,978 | $710,978 |
| 2023 | $375,181 | $330,000 | $0 | $705,181 | $705,181 |
| 2022 | $296,346 | $280,000 | $0 | $576,346 | $576,346 |
| 2021 | $260,608 | $230,000 | $0 | $490,608 | $490,608 |
| 2020 | $247,403 | $190,000 | $0 | $437,403 | $437,403 |
| 2019 | $168,409 | $250,000 | $0 | $418,409 | $418,409 |
| 2018 | $168,885 | $230,000 | $0 | $398,885 | $398,885 |
| 2017 | $169,835 | $165,000 | $0 | $334,835 | $334,835 |
| 2016 | $171,737 | $165,000 | $0 | $336,737 | $336,737 |
| 2015 | $173,639 | $150,000 | $0 | $323,639 | $323,639 |
| 2014 | $171,737 | $148,000 | $0 | $319,737 | $319,737 |
| 2013 | $180,890 | $198,900 | $0 | $379,790 | $379,790 |
| 2012 | $182,792 | $198,900 | $0 | $381,692 | $381,692 |
| 2011 | $184,694 | $198,900 | $0 | $383,594 | $383,594 |
| 2010 | $189,534 | $198,900 | $0 | $388,434 | $388,434 |
| 2009 | $197,455 | $257,400 | $0 | $454,855 | $454,855 |
| 2008 | $189,679 | $292,500 | $0 | $482,179 | $482,179 |
| 2007 | $190,026 | $245,700 | $0 | $435,726 | $435,726 |
Deed and Sales History
| 1 | 03/01/2022 | WD | Warranty Deed | MOFFATT, WENDY | O'FARRELL, FIONA | | | $735,000.00 | 52241 | 4541235 |
| 2 | 09/10/2019 | WD | Warranty Deed | MARKER, GERALD J / MAGDALENA | MOFFATT, WENDY | | | $525,000.00 | 40243 | 4471301 |
| 3 | 01/01/1993 | WD | Warranty Deed | JANES, STEVEN C | MARKER, GERALD J | | | $43,000.00 | 30393 | 93001992 |
| 4 | 01/01/1900 | OTHER | Other - Misc. Documents | Unknown | JANES, STEVEN C | | | $0.00 | 83292 | 88012266 |
Payout Agreement
| No payout information available.. |