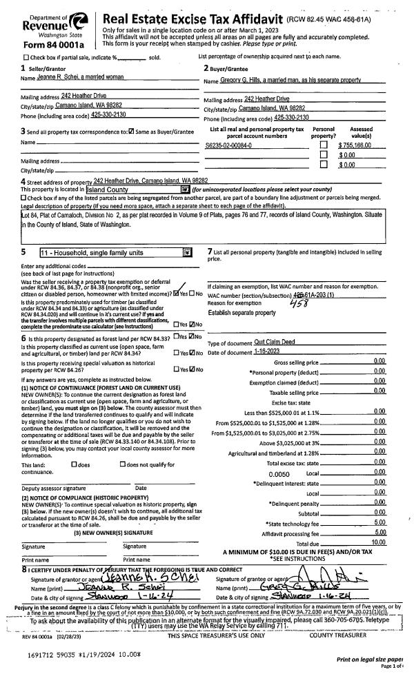
Property
Account |
| Property ID: | 657319 | Abbreviated Legal Description: | 1991 SEQUOIA 14X66 VIN# 1611358545 TPO &012040 |
| Geographic ID: | M90500000052-2 | Agent Code: | |
| Type: | Mobile Home | | |
| Tax Area: | 100 - APPRAISER-OH Schl Dist, in OH | Land Use Code | 11 |
| Open Space: | N | DFL | N |
| Historic Property: | N | Remodel Property: | N |
| Multi-Family Redevelopment: | N | | |
| Township: | | Section: | |
| Range: | |
Location |
| Address: | 1320 N OAK HARBOR ST # 148 OAK HARBOR, WA 98277 | Mapsco: | |
| Neighborhood: | Cycle 1 | Map ID: | |
| Neighborhood CD: | 1 |
Owner |
| Name: | GUERREO, IMELDA | Owner ID: | 260815 |
| Mailing Address: | 1320 N OAK HARBOR ST #148 OAK HARBOR, WA 98277 | % Ownership: | 100.0000000000% |
| | | Exemptions: | |
Taxes and Assessment Details
Values
| (+) Improvement Homesite Value: | + | $0 | |
| (+) Improvement Non-Homesite Value: | + | $21,413 | |
| (+) Land Homesite Value: | + | $0 | |
| (+) Land Non-Homesite Value: | + | $0 | |
| (+) Curr Use (HS): | + | $0 | $0 |
| (+) Curr Use (NHS): | + | $0 | $0 |
| | | -------------------------- | |
| (=) Market Value: | = | $21,413 | |
| (–) Productivity Loss: | – | $0 | |
| | | -------------------------- | |
| (=) Subtotal: | = | $21,413 | |
| (+) Senior Appraised Value: | + | $0 | |
| (+) Non-Senior Appraised Value: | + | $21,413 | |
| | | -------------------------- | |
| (=) Total Appraised Value: | = | $21,413 | |
| (–) Senior Exemption Loss: | – | $0 | |
| (–) Exemption Loss: | – | $0 | |
| | | -------------------------- | |
| (=) Taxable Value: | = | $21,413 | |
Taxing Jurisdiction
| Owner: | GUERREO, IMELDA | | |
| % Ownership: | 100.0000000000% | | |
| Total Value: | $21,413 | | |
| Tax Area: | 100 - APPRAISER-OH Schl Dist, in OH |
| CF | Conservation Futures | 0.0313996660 | $21,413 | $21,413 | $0.67 | | |
| CEM1 | Cemetery #1 | 0.0040018856 | $21,413 | $21,413 | $0.09 | | |
| COH | City of Oak Harbor | 2.3090730572 | $21,413 | $21,413 | $49.44 | | |
| OAKBOND | City of Oak Harbor BOND | 0.1902260131 | $21,413 | $21,413 | $4.07 | | |
| HOBOND | Hospital BOND | 0.1893405597 | $21,413 | $21,413 | $4.05 | | |
| HOGEN | Hospital GEN | 0.3848777722 | $21,413 | $21,413 | $8.24 | | |
| CE | County Current Expense | 0.3674210519 | $21,413 | $21,413 | $7.87 | | |
| ISLANDEMS | Hospital GEN (EMS) | 0.4952018576 | $21,413 | $21,413 | $10.60 | | |
| LIB | Library Sno-Isle GEN | 0.3039084203 | $21,413 | $21,413 | $6.51 | | |
| NWHIDPRMT | P & R N Whidbey GEN | 0.1990272349 | $21,413 | $21,413 | $4.26 | | |
| SCH201MO | School 201 Enrichment | 2.3851112745 | $21,413 | $21,413 | $51.07 | | |
| ST | State School | 1.4761226122 | $21,413 | $21,413 | $31.61 | | |
| ST2 | State School Part 2 | 0.7953803475 | $21,413 | $21,413 | $17.03 | | |
| | Total Tax Rate: | 9.1310917527 | | | | | |
| | | | | Taxes w/Current Exemptions: | $195.51 | | |
| | | | | Taxes w/o Exemptions: | $195.51 | | |
Improvement / Building
| Improvement #1: | MANUFACTURED HOME | State Code: | Y | 897.7 sqft | Value: | $21,413 |
| Bathrooms: | 0 | Bedrooms: | 0 | | Ceiling: | PLASTER PAINTED | Cooling: | EVAP NO DUCT | | Exterior Wall/Cover: | VINYL | Floor Covering: | CARPET 100% | | Floor Structure: | SLAB ON GRADE | Foundation: | SLAB | | Heating: | FHA ELECTRIC | Interior Finish: | PLASTER | | Plumbing Fixture Cnt: | 1 | Roof Slope: | FLAT | | Roof Structure/Cover: | CJ ALUMINIUM HEAVY |   |   |
|
| | Type | Description | Class CD | Sub Class CD | Year Built | Area |
| | BAS | BASE/MAIN FLOOR | 2 | 0 | 1991 | 897.7 |
| | ENP | ENCLOSED PORCH | 3 | 0 | 1991 | 160.0 |
Sketch
Property Image
Land
No land segments exist for this property.
Roll Value History
| 2026 | N/A | N/A | N/A | N/A | N/A |
| 2025 | $21,413 | $0 | $0 | $21,413 | $21,413 |
| 2024 | $22,344 | $0 | $0 | $22,344 | $22,344 |
| 2023 | $5,723 | $0 | $0 | $5,723 | $5,723 |
| 2022 | $5,418 | $0 | $0 | $5,418 | $5,418 |
| 2021 | $4,917 | $0 | $0 | $4,917 | $4,917 |
| 2020 | $5,070 | $0 | $0 | $5,070 | $5,070 |
| 2019 | $4,151 | $0 | $0 | $4,151 | $4,151 |
| 2018 | $4,308 | $0 | $0 | $4,308 | $4,308 |
| 2017 | $5,088 | $0 | $0 | $5,088 | $5,088 |
| 2016 | $5,355 | $0 | $0 | $5,355 | $5,355 |
| 2015 | $5,534 | $0 | $0 | $5,534 | $5,534 |
| 2014 | $5,712 | $0 | $0 | $5,712 | $5,712 |
| 2013 | $5,891 | $0 | $0 | $5,891 | $5,891 |
| 2012 | $6,069 | $0 | $0 | $6,069 | $6,069 |
| 2011 | $13,651 | $0 | $0 | $13,651 | $13,651 |
| 2010 | $14,031 | $0 | $0 | $14,031 | $14,031 |
| 2009 | $14,787 | $0 | $0 | $14,787 | $14,787 |
| 2008 | $15,243 | $0 | $0 | $15,243 | $15,243 |
| 2007 | $15,711 | $0 | $0 | $15,711 | $15,711 |
Deed and Sales History
| 1 | 02/05/2013 | OTHER | Other - Misc. Documents | BELLE ISLE, TINA M | GUERREO, IMELDA | | | $5,000.00 | 10331 | |
| 2 | 07/24/2006 | OTHER | Other - Misc. Documents | , | BELLE ISLE, TINA M | | | $0.00 | 63172 | 0 |
| 3 | 06/03/2005 | CD | DNU - Correction Deed | WILBURT, PATRICIA | , | | | $0.00 | 52571 | 0 |
| 4 | 12/06/2004 | OTHER | Other - Misc. Documents | OAK HOLLOW MOBILE HOME PARK, | WILBURT, PATRICIA | | | $13,000.00 | 50005 | 0 |
| 5 | 10/12/2004 | OTHER | Other - Misc. Documents | FATJO, TEMPLE | OAK HOLLOW MOBILE HOME PARK, | | | $4,000.00 | 50004 | 0 |
| 6 | 09/01/1993 | OTHER | Other - Misc. Documents | PUPO, ANTHONY J | FATJO, TEMPLE | | | $18,000.00 | 33594 | 0 |
| 7 | 01/01/1900 | OTHER | Other - Misc. Documents | Unknown | PUPO, ANTHONY J | | | $0.00 | 0 | 0 |
Payout Agreement
| No payout information available.. |