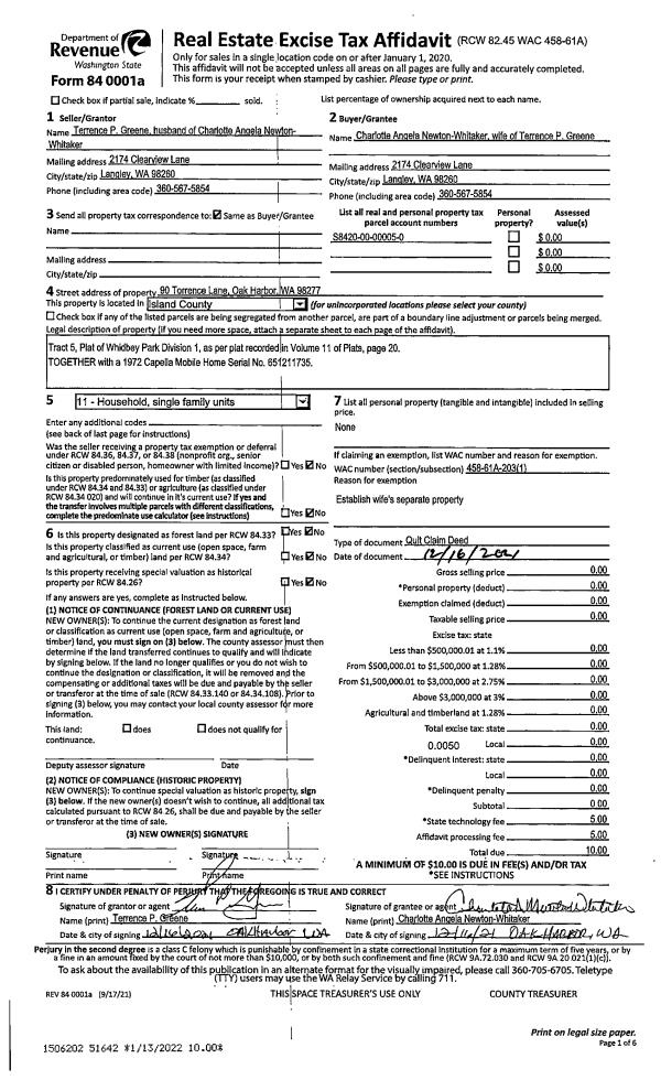
Property
Account |
| Property ID: | 657391 | Abbreviated Legal Description: | LOT 2 SP 23-90.33119.021-3390 V2 SP P281 AF#91003396 |
| Geographic ID: | R33119-024-3300 | Agent Code: | |
| Type: | Real | | |
| Tax Area: | 519 - APPRAISER-Stan/Cam Schl Dist, vacant & 50 acres or less | Land Use Code | 91 |
| Open Space: | N | DFL | N |
| Historic Property: | N | Remodel Property: | N |
| Multi-Family Redevelopment: | N | | |
| Township: | 31 | Section: | 19 |
| Range: | R3 |
Location |
| Address: | | Mapsco: | |
| Neighborhood: | Cycle 5 | Map ID: | 930 |
| Neighborhood CD: | 5 |
Owner |
| Name: | NELSON TTEE, DANIEL ANDREW | Owner ID: | 307460 |
| Mailing Address: | DEBRA LYNN NELSON TTEE 230 TERESA ST CAMANO ISLAND, WA 98282 | % Ownership: | 100.0000000000% |
| | | Exemptions: | |
Taxes and Assessment Details
Values
| (+) Improvement Homesite Value: | + | $0 | |
| (+) Improvement Non-Homesite Value: | + | $0 | |
| (+) Land Homesite Value: | + | $0 | |
| (+) Land Non-Homesite Value: | + | $190,000 | |
| (+) Curr Use (HS): | + | $0 | $0 |
| (+) Curr Use (NHS): | + | $0 | $0 |
| | | -------------------------- | |
| (=) Market Value: | = | $190,000 | |
| (–) Productivity Loss: | – | $0 | |
| | | -------------------------- | |
| (=) Subtotal: | = | $190,000 | |
| (+) Senior Appraised Value: | + | $0 | |
| (+) Non-Senior Appraised Value: | + | $190,000 | |
| | | -------------------------- | |
| (=) Total Appraised Value: | = | $190,000 | |
| (–) Senior Exemption Loss: | – | $0 | |
| (–) Exemption Loss: | – | $0 | |
| | | -------------------------- | |
| (=) Taxable Value: | = | $190,000 | |
Taxing Jurisdiction
| Owner: | NELSON TTEE, DANIEL ANDREW | | |
| % Ownership: | 100.0000000000% | | |
| Total Value: | $190,000 | | |
| Tax Area: | 519 - APPRAISER-Stan/Cam Schl Dist, vacant & 50 acres or less |
| CF | Conservation Futures | 0.0313996660 | $190,000 | $190,000 | $5.97 | | |
| EMS1 | Fire & Rescue Dist #1 Camano GEN (EMS) | 0.4998471806 | $190,000 | $190,000 | $94.97 | | |
| CE | County Current Expense | 0.3674210519 | $190,000 | $190,000 | $69.81 | | |
| CR | County Roads | 0.4614296361 | $190,000 | $190,000 | $87.67 | | |
| LIB | Library Sno-Isle GEN | 0.3039084203 | $190,000 | $190,000 | $57.74 | | |
| SCH205_401 | School 205-401 Enrichment | 1.3697998934 | $190,000 | $190,000 | $260.26 | | |
| SCH205BOND | School 205-401 BOND | 0.9354199323 | $190,000 | $190,000 | $177.73 | | |
| ST | State School | 1.4761226122 | $190,000 | $190,000 | $280.46 | | |
| ST2 | State School Part 2 | 0.7953803475 | $190,000 | $190,000 | $151.12 | | |
| | Total Tax Rate: | 6.2407287403 | | | | | |
| | | | | Taxes w/Current Exemptions: | $1,185.73 | | |
| | | | | Taxes w/o Exemptions: | $1,185.73 | | |
Improvement / Building
Sketch
| No sketches available for this property. |
Property Image
Land
| 1 | 17 | AC (01.01-02.00) | 0.0000 | 0.00 | 0.00 | 0.00 | 1.00 | $190,000 | $0 |
Roll Value History
| 2026 | N/A | N/A | N/A | N/A | N/A |
| 2025 | $0 | $190,000 | $0 | $190,000 | $190,000 |
| 2024 | $0 | $180,000 | $0 | $180,000 | $180,000 |
| 2023 | $0 | $180,000 | $0 | $180,000 | $180,000 |
| 2022 | $0 | $180,000 | $0 | $180,000 | $180,000 |
| 2021 | $0 | $160,000 | $0 | $160,000 | $160,000 |
| 2020 | $0 | $150,000 | $0 | $150,000 | $150,000 |
| 2019 | $0 | $160,000 | $0 | $160,000 | $160,000 |
| 2018 | $0 | $120,000 | $0 | $120,000 | $120,000 |
| 2017 | $0 | $120,000 | $0 | $120,000 | $120,000 |
| 2016 | $0 | $100,000 | $0 | $100,000 | $100,000 |
| 2015 | $0 | $86,000 | $0 | $86,000 | $86,000 |
| 2014 | $0 | $86,000 | $0 | $86,000 | $86,000 |
| 2013 | $0 | $86,000 | $0 | $86,000 | $86,000 |
| 2012 | $0 | $86,000 | $0 | $86,000 | $86,000 |
| 2011 | $0 | $86,000 | $0 | $86,000 | $86,000 |
| 2010 | $0 | $86,000 | $0 | $86,000 | $86,000 |
| 2009 | $0 | $60,000 | $0 | $60,000 | $60,000 |
| 2008 | $0 | $60,000 | $0 | $60,000 | $60,000 |
| 2007 | $0 | $60,000 | $0 | $60,000 | $60,000 |
Deed and Sales History
| 1 | 12/27/2022 | QCD | Quit Claim Deed | NELSON, DANIEL A | NELSON TTEE, DANIEL ANDREW | | | $0.00 | 55667 | 4555905 |
| 2 | 01/01/1900 | OTHER | Other - Misc. Documents | Unknown | NELSON, DANIEL A | | | $0.00 | 2342 | 90007642 |
Payout Agreement
| No payout information available.. |