Property
Account |
| Property ID: | 65823 | Abbreviated Legal Description: | 6 - IN GL1: N5AC OF S10AC OF GL1 EX W20' TO IS CO & TGW ADJ TIDELANDS |
| Geographic ID: | R23022-027-0610 | Agent Code: | |
| Type: | Real | | |
| Tax Area: | 312 - APPRAISER-Cpvl Schl Dist, outside Cpvl, improved, greater than 1 acre | Land Use Code | 11 |
| Open Space: | N | DFL | N |
| Historic Property: | N | Remodel Property: | N |
| Multi-Family Redevelopment: | N | | |
| Township: | 30 | Section: | 22 |
| Range: | R2 |
Location |
| Address: | | Mapsco: | |
| Neighborhood: | Cycle 3 | Map ID: | 404 |
| Neighborhood CD: | 3 |
Owner |
| Name: | DRECHSEL, JACOB T | Owner ID: | 312868 |
| Mailing Address: | 6538 18TH AVE NE SEATTLE, WA 98115 | % Ownership: | 100.0000000000% |
| | | Exemptions: | |
Taxes and Assessment Details
Values
| (+) Improvement Homesite Value: | + | $0 | |
| (+) Improvement Non-Homesite Value: | + | $352,992 | |
| (+) Land Homesite Value: | + | $0 | |
| (+) Land Non-Homesite Value: | + | $776,780 | |
| (+) Curr Use (HS): | + | $0 | $0 |
| (+) Curr Use (NHS): | + | $0 | $0 |
| | | -------------------------- | |
| (=) Market Value: | = | $1,129,772 | |
| (–) Productivity Loss: | – | $0 | |
| | | -------------------------- | |
| (=) Subtotal: | = | $1,129,772 | |
| (+) Senior Appraised Value: | + | $0 | |
| (+) Non-Senior Appraised Value: | + | $1,129,772 | |
| | | -------------------------- | |
| (=) Total Appraised Value: | = | $1,129,772 | |
| (–) Senior Exemption Loss: | – | $0 | |
| (–) Exemption Loss: | – | $0 | |
| | | -------------------------- | |
| (=) Taxable Value: | = | $1,129,772 | |
Taxing Jurisdiction
| Owner: | DRECHSEL, JACOB T | | |
| % Ownership: | 100.0000000000% | | |
| Total Value: | $1,129,772 | | |
| Tax Area: | 312 - APPRAISER-Cpvl Schl Dist, outside Cpvl, improved, greater than 1 acre |
| CF | Conservation Futures | 0.0313996660 | $1,129,772 | $1,129,772 | $35.47 | | |
| CEM2 | Cemetery #2 | 0.0092609791 | $1,129,772 | $1,129,772 | $10.46 | | |
| FIRE5 | Fire & Rescue Dist #5 C Whidbey GEN | 1.1892169230 | $1,129,772 | $1,129,772 | $1,343.54 | | |
| FIRE5BOND | Fire & Rescue Dist #5 C Whidbey BOND | 0.1394359503 | $1,129,772 | $1,129,772 | $157.53 | | |
| HOBOND | Hospital BOND | 0.1893405597 | $1,129,772 | $1,129,772 | $213.91 | | |
| HOGEN | Hospital GEN | 0.3848777722 | $1,129,772 | $1,129,772 | $434.82 | | |
| CE | County Current Expense | 0.3674210519 | $1,129,772 | $1,129,772 | $415.10 | | |
| CR | County Roads | 0.4614296361 | $1,129,772 | $1,129,772 | $521.31 | | |
| ISLANDEMS | Hospital GEN (EMS) | 0.4952018576 | $1,129,772 | $1,129,772 | $559.47 | | |
| LIB | Library Sno-Isle GEN | 0.3039084203 | $1,129,772 | $1,129,772 | $343.35 | | |
| LIBCAP | Library Sno-Isle BOND (Cap Fac Imp Area) | 0.0528562629 | $1,129,772 | $1,129,772 | $59.72 | | |
| POCOUP | Port of Coupeville GEN | 0.1065226063 | $1,129,772 | $1,129,772 | $120.35 | | |
| POCOUPIDD | Port of Coupeville IDD | 0.3353038577 | $1,129,772 | $1,129,772 | $378.82 | | |
| COUPSDTECH | School 204 CP (TECH) | 0.1215123397 | $1,129,772 | $1,129,772 | $137.28 | | |
| SCH204MO | School 204 Enrichment | 0.6416662518 | $1,129,772 | $1,129,772 | $724.94 | | |
| ST | State School | 1.4761226122 | $1,129,772 | $1,129,772 | $1,667.68 | | |
| ST2 | State School Part 2 | 0.7953803475 | $1,129,772 | $1,129,772 | $898.60 | | |
| | Total Tax Rate: | 7.1008570943 | | | | | |
| | | | | Taxes w/Current Exemptions: | $8,022.35 | | |
| | | | | Taxes w/o Exemptions: | $8,022.35 | | |
Improvement / Building
| Improvement #1: | RESIDENTIAL | State Code: | Y | 364.0 sqft | Value: | $79,464 |
| Bathrooms: | 1 | Ceiling: | TONGUE & GROOVE | | Cooling: | (NONE) | Exterior Wall/Cover: | WOOD SIDING | | Floor Covering: | CARPET/VINYL 20-80 | Floor Structure: | WOOD W/SUBFLOOR | | Foundation: | PIERS/CONCRETE | Heating: | WALL HEAT ELECTRIC | | Interior Finish: | DRYWALL PAINT | Plumbing Fixture Cnt: | 6 | | Roof Slope: | 4" IN 12" | Roof Structure/Cover: | CJ ASPHALT |
|
| | Type | Description | Class CD | Sub Class CD | Year Built | Area |
| | BAS | BASE/MAIN FLOOR | 3 | 0 | 1998 | 364.0 |
| | OWP | OPEN WOOD PORCH W/STEPS | 3 | 0 | 1998 | 291.0 |
| Improvement #2: | RESIDENTIAL | State Code: | Y | 1394.0 sqft | Value: | $273,528 |
| Bathrooms: | 1 | Bedrooms: | 1 | | Ceiling: | DRYWALL PAINTED | Exterior Wall/Cover: | CEMENT FIBER | | Floor Covering: | VINYL 100% | Floor Structure: | SLAB ON GRADE | | Foundation: | SLAB | Heating: | RADIANT FLOOR | | Interior Finish: | DRYWALL PAINT | Plumbing Fixture Cnt: | 1 | | Roof Slope: | 3" IN 12" | Roof Structure/Cover: | CJ ALUMINIUM HEAVY |
|
| | Type | Description | Class CD | Sub Class CD | Year Built | Area |
| | BAS | BASE/MAIN FLOOR | 3 | 0 | 2022 | 1394.0 |
| | DGR | DETACHED GARAGE | 3 | 0 | 2022 | 528.0 |
| | OWR | OPEN WOOD PORCH W/STEPS/ROOF | 3 | 0 | 2022 | 99.0 |
| | OP1 | OPEN PORCH SLAB | 3 | 0 | 2022 | 115.0 |
| | OP4 | OPEN PORCH W/CEILING-ROOF | 3 | 0 | 2022 | 150.0 |
Sketch
Property Image
Land
| 1 | HB | HIGH BLUFF | 4.9300 | 214750.80 | 178.00 | 0.00 | 1.00 | $775,000 | $0 |
| 2 | 55 | TIDES | 0.0000 | 0.00 | 178.00 | 0.00 | 1.00 | $1,780 | $0 |
Roll Value History
| 2026 | N/A | N/A | N/A | N/A | N/A |
| 2025 | $352,992 | $776,780 | $0 | $1,129,772 | $1,129,772 |
| 2024 | $356,892 | $726,780 | $0 | $1,083,672 | $1,083,672 |
| 2023 | $362,946 | $676,780 | $0 | $1,039,726 | $1,039,726 |
| 2022 | $84,030 | $676,780 | $0 | $760,810 | $760,810 |
| 2021 | $65,809 | $551,780 | $0 | $617,589 | $617,589 |
| 2020 | $63,663 | $501,780 | $0 | $565,443 | $565,443 |
| 2019 | $34,365 | $601,780 | $0 | $636,145 | $636,145 |
| 2018 | $34,473 | $501,780 | $0 | $536,253 | $536,253 |
| 2017 | $34,690 | $501,780 | $0 | $536,470 | $536,470 |
| 2016 | $35,123 | $501,780 | $0 | $536,903 | $536,903 |
| 2015 | $35,557 | $501,780 | $0 | $537,337 | $537,337 |
| 2014 | $35,991 | $501,780 | $0 | $537,771 | $537,771 |
| 2013 | $30,634 | $478,096 | $0 | $508,730 | $508,730 |
| 2012 | $30,634 | $478,096 | $0 | $508,730 | $508,730 |
| 2011 | $30,634 | $478,096 | $0 | $508,730 | $508,730 |
| 2010 | $31,642 | $478,096 | $0 | $509,738 | $509,738 |
| 2009 | $32,391 | $636,868 | $0 | $669,259 | $669,259 |
| 2008 | $32,858 | $636,868 | $0 | $669,726 | $669,726 |
| 2007 | $30,180 | $502,978 | $0 | $533,158 | $533,158 |
Deed and Sales History
| 1 | 04/29/2024 | PRD | Personal Representatives Deed | DRECHSEL III, KENNETH T | DRECHSEL, JACOB T | | | $0.00 | 60418 | 4573823 |
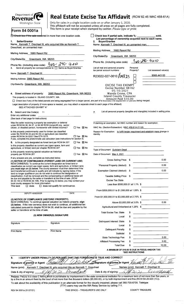
| 2 | 05/04/2021 | QCD | Quit Claim Deed | DRECHSEL, KENNETH T | DRECHSEL III, KENNETH T | | | $0.00 | 48162 | 4518693 |
| 3 | 09/27/2017 | QCD | Quit Claim Deed | DRECHSEL, KENNETH T | DRECHSEL, KENNETH T | | | $0.00 | 31571 | 4432412 |
| 4 | 02/01/1997 | WD | Warranty Deed | UNITED, METHODIST F | DRECHSEL, KENNETH T | | | $210,000.00 | 70536 | 97002408 |
| 5 | 09/01/1996 | QCD | Quit Claim Deed | REIS, JEAN S | UNITED, METHODIST F | | | $0.00 | 63764 | 96018199 |
| 6 | 04/01/1981 | CD | DNU - Correction Deed | REIS, GEORGE W | REIS, JEAN S | | | $0.00 | 10994 | 381402 |
| 7 | 01/01/1900 | OTHER | Other - Misc. Documents | Unknown | REIS, GEORGE W | | | $0.00 | 0 | 0 |
Payout Agreement
| No payout information available.. |