Property
Account |
| Property ID: | 658755 | Abbreviated Legal Description: | IN SW NW: W330' OF N/2 N/2 SW NW TGW & SUB EZ FR 384-0240 & 369-0240 |
| Geographic ID: | R23021-375-0240 | Agent Code: | |
| Type: | Real | | |
| Tax Area: | 312 - APPRAISER-Cpvl Schl Dist, outside Cpvl, improved, greater than 1 acre | Land Use Code | 11 |
| Open Space: | N | DFL | N |
| Historic Property: | N | Remodel Property: | N |
| Multi-Family Redevelopment: | N | | |
| Township: | 30 | Section: | 21 |
| Range: | R2 |
Location |
| Address: | 3758 CASCADIAN LN GREENBANK, WA 98253 | Mapsco: | |
| Neighborhood: | Cycle 3 | Map ID: | 402 |
| Neighborhood CD: | 3 |
Owner |
| Name: | SHIRA, BLAINE O | Owner ID: | 305711 |
| Mailing Address: | KELLY SHIRA 3758 CASCADIAN LANE GREENBANK, WA 98253 | % Ownership: | 100.0000000000% |
| | | Exemptions: | |
Taxes and Assessment Details
Values
| (+) Improvement Homesite Value: | + | $0 | |
| (+) Improvement Non-Homesite Value: | + | $493,257 | |
| (+) Land Homesite Value: | + | $0 | |
| (+) Land Non-Homesite Value: | + | $310,000 | |
| (+) Curr Use (HS): | + | $0 | $0 |
| (+) Curr Use (NHS): | + | $0 | $0 |
| | | -------------------------- | |
| (=) Market Value: | = | $803,257 | |
| (–) Productivity Loss: | – | $0 | |
| | | -------------------------- | |
| (=) Subtotal: | = | $803,257 | |
| (+) Senior Appraised Value: | + | $0 | |
| (+) Non-Senior Appraised Value: | + | $803,257 | |
| | | -------------------------- | |
| (=) Total Appraised Value: | = | $803,257 | |
| (–) Senior Exemption Loss: | – | $0 | |
| (–) Exemption Loss: | – | $0 | |
| | | -------------------------- | |
| (=) Taxable Value: | = | $803,257 | |
Taxing Jurisdiction
| Owner: | SHIRA, BLAINE O | | |
| % Ownership: | 100.0000000000% | | |
| Total Value: | $803,257 | | |
| Tax Area: | 312 - APPRAISER-Cpvl Schl Dist, outside Cpvl, improved, greater than 1 acre |
| CF | Conservation Futures | 0.0313996660 | $803,257 | $803,257 | $25.22 | | |
| CEM2 | Cemetery #2 | 0.0092609791 | $803,257 | $803,257 | $7.44 | | |
| FIRE5 | Fire & Rescue Dist #5 C Whidbey GEN | 1.1892169230 | $803,257 | $803,257 | $955.25 | | |
| FIRE5BOND | Fire & Rescue Dist #5 C Whidbey BOND | 0.1394359503 | $803,257 | $803,257 | $112.00 | | |
| HOBOND | Hospital BOND | 0.1893405597 | $803,257 | $803,257 | $152.09 | | |
| HOGEN | Hospital GEN | 0.3848777722 | $803,257 | $803,257 | $309.16 | | |
| CE | County Current Expense | 0.3674210519 | $803,257 | $803,257 | $295.13 | | |
| CR | County Roads | 0.4614296361 | $803,257 | $803,257 | $370.65 | | |
| ISLANDEMS | Hospital GEN (EMS) | 0.4952018576 | $803,257 | $803,257 | $397.77 | | |
| LIB | Library Sno-Isle GEN | 0.3039084203 | $803,257 | $803,257 | $244.12 | | |
| LIBCAP | Library Sno-Isle BOND (Cap Fac Imp Area) | 0.0528562629 | $803,257 | $803,257 | $42.46 | | |
| POCOUP | Port of Coupeville GEN | 0.1065226063 | $803,257 | $803,257 | $85.57 | | |
| POCOUPIDD | Port of Coupeville IDD | 0.3353038577 | $803,257 | $803,257 | $269.34 | | |
| COUPSDTECH | School 204 CP (TECH) | 0.1215123397 | $803,257 | $803,257 | $97.61 | | |
| SCH204MO | School 204 Enrichment | 0.6416662518 | $803,257 | $803,257 | $515.42 | | |
| ST | State School | 1.4761226122 | $803,257 | $803,257 | $1,185.71 | | |
| ST2 | State School Part 2 | 0.7953803475 | $803,257 | $803,257 | $638.89 | | |
| | Total Tax Rate: | 7.1008570943 | | | | | |
| | | | | Taxes w/Current Exemptions: | $5,703.83 | | |
| | | | | Taxes w/o Exemptions: | $5,703.83 | | |
Improvement / Building
| Improvement #1: | RESIDENTIAL | State Code: | Y | 2218.1 sqft | Value: | $493,257 |
| Bathrooms: | 2.5 | Bedrooms: | 3 | | Ceiling: | TONGUE & GROOVE | Cooling: | HEAT PUMP/CONV/V | | Exterior Wall/Cover: | WOOD SIDING | Floor Covering: | CARPET/VINYL 80-20 | | Floor Structure: | WOOD W/SUBFLOOR | Foundation: | CONCRETE | | Interior Finish: | DRYWALL PAINT | Plumbing Fixture Cnt: | 11 | | Roof Slope: | 12" IN 12" | Roof Structure/Cover: | BEAM ALUMINUM HEAVY |
|
| | Type | Description | Class CD | Sub Class CD | Year Built | Area |
| | BAS | BASE/MAIN FLOOR | 4 | 0 | 1992 | 1856.0 |
| | AGR | ATTACHED GARAGE | 4 | 0 | 1992 | 585.6 |
| | OWP | OPEN WOOD PORCH W/STEPS | 4 | 0 | 1992 | 452.4 |
| | OWP | OPEN WOOD PORCH W/STEPS | 4 | 0 | 1992 | 126.0 |
| | OWC | OPEN WOOD PORCH W/STEPS/ROOF/C | 4 | 0 | 1992 | 33.6 |
| | OWC | OPEN WOOD PORCH W/STEPS/ROOF/C | 4 | 0 | 1992 | 40.0 |
| | LOF | LOFT | 4 | 0 | 1992 | 362.1 |
| | DGR | DETACHED GARAGE | 4 | 0 | 1992 | 1296.2 |
Sketch
Property Image
Land
| 1 | 18 | AC (02.01-03.00) | 2.5200 | 109771.20 | 0.00 | 0.00 | 1.00 | $310,000 | $0 |
Roll Value History
| 2026 | N/A | N/A | N/A | N/A | N/A |
| 2025 | $493,257 | $310,000 | $0 | $803,257 | $803,257 |
| 2024 | $499,183 | $270,000 | $0 | $769,183 | $769,183 |
| 2023 | $505,106 | $250,000 | $0 | $755,106 | $755,106 |
| 2022 | $389,161 | $240,000 | $0 | $629,161 | $629,161 |
| 2021 | $342,459 | $170,000 | $0 | $512,459 | $512,459 |
| 2020 | $334,247 | $130,000 | $0 | $464,247 | $464,247 |
| 2019 | $226,246 | $200,000 | $0 | $426,246 | $426,246 |
| 2018 | $226,893 | $155,000 | $0 | $381,893 | $381,893 |
| 2017 | $228,096 | $115,000 | $0 | $343,096 | $343,096 |
| 2016 | $230,680 | $120,000 | $0 | $350,680 | $350,680 |
| 2015 | $230,656 | $130,000 | $0 | $360,656 | $360,656 |
| 2014 | $233,209 | $95,000 | $0 | $328,209 | $328,209 |
| 2013 | $234,567 | $100,000 | $0 | $334,567 | $334,567 |
| 2012 | $237,082 | $103,700 | $0 | $340,782 | $340,782 |
| 2011 | $239,594 | $122,000 | $0 | $361,594 | $361,594 |
| 2010 | $244,807 | $122,000 | $0 | $366,807 | $366,807 |
| 2009 | $255,008 | $155,000 | $0 | $410,008 | $410,008 |
| 2008 | $258,716 | $120,000 | $0 | $378,716 | $378,716 |
| 2007 | $259,760 | $110,000 | $0 | $369,760 | $369,760 |
Deed and Sales History
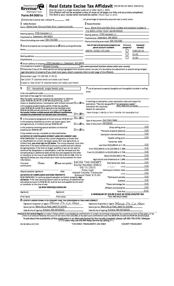
| 1 | 09/10/2025 | QCD | Quit Claim Deed | SHIRA, BLAINE O | THE BSKS LIVING TRUST | | | $0.00 | 64822 | 4590945 |
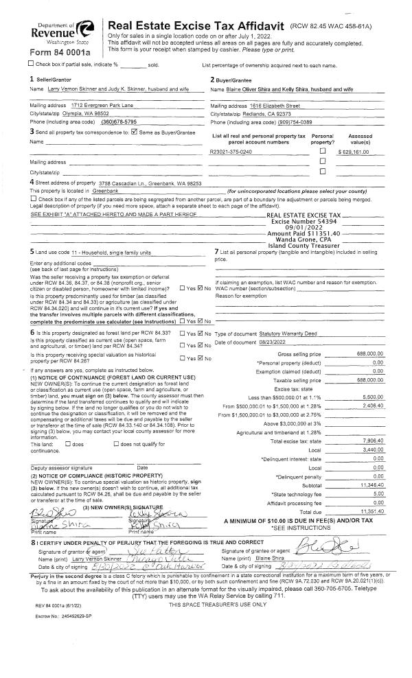
| 2 | 08/23/2022 | WD | Warranty Deed | SKINNER, LARRY VERNON | SHIRA, BLAINE O | | | $688,000.00 | 54394 | 4540587 |
| 3 | 07/26/2000 | WD | Warranty Deed | CHAMPOUX, DANIEL E/PATTI A | SKINNER, LARRY VERNON | | | $215,000.00 | 2761 | 20013081 |
| 4 | 01/07/1999 | OTHER | Other - Misc. Documents | CHAMPOUX, DANIEL E | CHAMPOUX, DANIEL E/PATTI A | | | $0.00 | 68131 | 0 |
| 5 | 04/01/1997 | WD | Warranty Deed | BORG, DAVID T | CHAMPOUX, DANIEL E | | | $165,000.00 | 71144 | 97005188 |
| 6 | 01/01/1993 | WD | Warranty Deed | MEGORDEN, HERBERT T | BORG, DAVID T | | | $136,500.00 | 30378 | 93001955 |
| 7 | 04/01/1991 | OTHER | Other - Misc. Documents | MEGORDEN, HERBERT T | MEGORDEN, HERBERT T | | | $0.00 | 64144 | 91005064 |
| 8 | 01/01/1900 | OTHER | Other - Misc. Documents | Unknown | MEGORDEN, HERBERT T | | | $0.00 | 1550 | 90004989 |
Payout Agreement
| No payout information available.. |