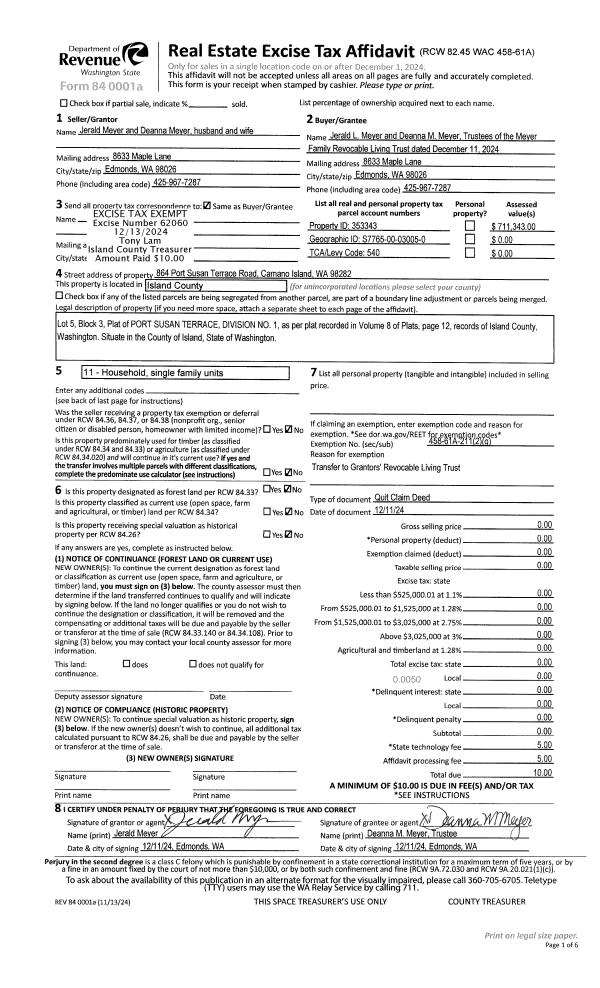
Property
Account |
| Property ID: | 660895 | Abbreviated Legal Description: | PARKER ROAD CONDOS UNIT 907 26.9% INT |
| Geographic ID: | S7653-00-00907-0 | Agent Code: | |
| Type: | Real | | |
| Tax Area: | 300 - APPRAISER-Cpvl Schl Dist, in Cpvl | Land Use Code | 14 |
| Open Space: | N | DFL | N |
| Historic Property: | N | Remodel Property: | N |
| Multi-Family Redevelopment: | N | | |
| Township: | | Section: | |
| Range: | |
Location |
| Address: | 907 NE LEACH ST COUPEVILLE, WA 98239 | Mapsco: | |
| Neighborhood: | Cycle 2 | Map ID: | 179 |
| Neighborhood CD: | 2 |
Owner |
| Name: | BROWN, JOY | Owner ID: | 177959 |
| Mailing Address: | 624 KIRKLAND WAY APT 3 KIRKLAND, WA 98033-3951 | % Ownership: | 100.0000000000% |
| | | Exemptions: | |
Taxes and Assessment Details
Values
| (+) Improvement Homesite Value: | + | $0 | |
| (+) Improvement Non-Homesite Value: | + | $252,605 | |
| (+) Land Homesite Value: | + | $0 | |
| (+) Land Non-Homesite Value: | + | $210,000 | |
| (+) Curr Use (HS): | + | $0 | $0 |
| (+) Curr Use (NHS): | + | $0 | $0 |
| | | -------------------------- | |
| (=) Market Value: | = | $462,605 | |
| (–) Productivity Loss: | – | $0 | |
| | | -------------------------- | |
| (=) Subtotal: | = | $462,605 | |
| (+) Senior Appraised Value: | + | $0 | |
| (+) Non-Senior Appraised Value: | + | $462,605 | |
| | | -------------------------- | |
| (=) Total Appraised Value: | = | $462,605 | |
| (–) Senior Exemption Loss: | – | $0 | |
| (–) Exemption Loss: | – | $0 | |
| | | -------------------------- | |
| (=) Taxable Value: | = | $462,605 | |
Taxing Jurisdiction
| Owner: | BROWN, JOY | | |
| % Ownership: | 100.0000000000% | | |
| Total Value: | $462,605 | | |
| Tax Area: | 300 - APPRAISER-Cpvl Schl Dist, in Cpvl |
| CF | Conservation Futures | 0.0313996660 | $462,605 | $462,605 | $14.53 | | |
| CEM2 | Cemetery #2 | 0.0092609791 | $462,605 | $462,605 | $4.28 | | |
| COUP | City: Town of Coupeville | 0.8188663519 | $462,605 | $462,605 | $378.81 | | |
| FIRE5 | Fire & Rescue Dist #5 C Whidbey GEN | 1.1892169230 | $462,605 | $462,605 | $550.14 | | |
| FIRE5BOND | Fire & Rescue Dist #5 C Whidbey BOND | 0.1394359503 | $462,605 | $462,605 | $64.50 | | |
| HOBOND | Hospital BOND | 0.1893405597 | $462,605 | $462,605 | $87.59 | | |
| HOGEN | Hospital GEN | 0.3848777722 | $462,605 | $462,605 | $178.05 | | |
| CE | County Current Expense | 0.3674210519 | $462,605 | $462,605 | $169.97 | | |
| ISLANDEMS | Hospital GEN (EMS) | 0.4952018576 | $462,605 | $462,605 | $229.08 | | |
| LIB | Library Sno-Isle GEN | 0.3039084203 | $462,605 | $462,605 | $140.59 | | |
| LIBCAP | Library Sno-Isle BOND (Cap Fac Imp Area) | 0.0528562629 | $462,605 | $462,605 | $24.45 | | |
| POCOUP | Port of Coupeville GEN | 0.1065226063 | $462,605 | $462,605 | $49.28 | | |
| POCOUPIDD | Port of Coupeville IDD | 0.3353038577 | $462,605 | $462,605 | $155.11 | | |
| COUPSDTECH | School 204 CP (TECH) | 0.1215123397 | $462,605 | $462,605 | $56.21 | | |
| SCH204MO | School 204 Enrichment | 0.6416662518 | $462,605 | $462,605 | $296.84 | | |
| ST | State School | 1.4761226122 | $462,605 | $462,605 | $682.86 | | |
| ST2 | State School Part 2 | 0.7953803475 | $462,605 | $462,605 | $367.95 | | |
| | Total Tax Rate: | 7.4582938101 | | | | | |
| | | | | Taxes w/Current Exemptions: | $3,450.24 | | |
| | | | | Taxes w/o Exemptions: | $3,450.24 | | |
Improvement / Building
| Improvement #1: | RESIDENTIAL/COMMERCIAL | State Code: | A1 | 1380.0 sqft | Value: | $252,605 |
| Bathrooms: | 2 | Bedrooms: | 2 | | Ceiling: | DRYWALL PAINTED | Exterior Wall/Cover: | CEMENT FIBER | | Floor Covering: | CARPET/VINYL 80-20 | Floor Structure: | WOOD W/SUBFLOOR | | Foundation: | CONCRETE | Heating: | WALL HEAT ELECTRIC | | Interior Finish: | DRYWALL PAINT | Plumbing Fixture Cnt: | 9 | | Roof Slope: | 5" IN 12" | Roof Structure/Cover: | CJ ASPHALT |
|
| | Type | Description | Class CD | Sub Class CD | Year Built | Area |
| | BAS | BASE/MAIN FLOOR | 3 | 0 | 1990 | 1380.0 |
| | OWP | OPEN WOOD PORCH W/STEPS | 3 | 0 | 1990 | 192.0 |
| | OWP | OPEN WOOD PORCH W/STEPS | 3 | 0 | 1990 | 75.2 |
| | BGR | BASEMENT GARAGE | 3 | 0 | 1990 | 286.0 |
| | UTY | STORAGE/UTILITY | 3 | 0 | 1990 | 135.0 |
| | OWR | OPEN WOOD PORCH W/STEPS/ROOF | 3 | 0 | 1990 | 239.0 |
| | OWP | OPEN WOOD PORCH W/STEPS | 3 | 0 | 1990 | 199.0 |
| | oPV1 | PV/ASPH 2" | 3 | 0 | 1990 | 544.0 |
Sketch
Property Image
Land
| 1 | 61 | MULTIPLE RESIDENCES | 0.2445 | 10650.42 | 0.00 | 0.00 | 1.00 | $210,000 | $0 |
Roll Value History
| 2026 | N/A | N/A | N/A | N/A | N/A |
| 2025 | $252,605 | $210,000 | $0 | $462,605 | $462,605 |
| 2024 | $242,810 | $210,000 | $0 | $452,810 | $452,810 |
| 2023 | $246,074 | $180,000 | $0 | $426,074 | $426,074 |
| 2022 | $225,818 | $180,000 | $0 | $405,818 | $405,818 |
| 2021 | $198,984 | $150,000 | $0 | $348,984 | $348,984 |
| 2020 | $193,874 | $145,000 | $0 | $338,874 | $338,874 |
| 2019 | $139,751 | $200,000 | $0 | $339,751 | $339,751 |
| 2018 | $146,812 | $120,000 | $0 | $266,812 | $266,812 |
| 2017 | $147,736 | $44,460 | $0 | $192,196 | $192,196 |
| 2016 | $149,583 | $44,460 | $0 | $194,043 | $194,043 |
| 2015 | $151,428 | $44,460 | $0 | $195,888 | $195,888 |
| 2014 | $153,276 | $44,460 | $0 | $197,736 | $197,736 |
| 2013 | $155,124 | $44,460 | $0 | $199,584 | $199,584 |
| 2012 | $143,544 | $49,884 | $0 | $193,428 | $193,428 |
| 2011 | $143,544 | $49,884 | $0 | $193,428 | $193,428 |
| 2010 | $150,945 | $49,884 | $0 | $200,829 | $200,829 |
| 2009 | $158,495 | $74,586 | $0 | $233,081 | $233,081 |
| 2008 | $159,111 | $75,730 | $0 | $234,841 | $234,841 |
| 2007 | $160,871 | $75,730 | $0 | $236,601 | $236,601 |
Deed and Sales History
| 1 | 04/19/2007 | WD | Warranty Deed | CEDERBERG, JEFFREY S | BROWN, JOY | | | $296,250.00 | 71447 | 4200962 |
| 2 | 05/03/2005 | WD | Warranty Deed | JOSEPH, JOHNSON P | CEDERBERG, JEFFREY S | | | $237,750.00 | 51979 | 4133379 |
| 3 | 10/25/2000 | WD | Warranty Deed | DAVIS, ROBERT L | JOSEPH, JOHNSON P | | | $130,000.00 | 4308 | 20019721 |
| 4 | 08/12/1998 | WD | Warranty Deed | DAVIS, ROBERT L | DAVIS, ROBERT L | | | $0.00 | 83183 | 98016741 |
| 5 | 09/01/1991 | QCD | Quit Claim Deed | DAVIS, & D | DAVIS, ROBERT L | | | $0.00 | 13309 | 91014156 |
| 6 | 09/01/1991 | QCD | Quit Claim Deed | DAVIS, ROBERT L | DAVIS, ROBERT L | | | $0.00 | 13496 | 91014912 |
| 7 | 01/01/1900 | OTHER | Other - Misc. Documents | Unknown | DAVIS, & D | | | $0.00 | 1486 | 90004805 |
| 8 | 01/01/1900 | OTHER | Other - Misc. Documents | DAVIS, ROBERT L | DAVIS, ROBERT L | | | $0.00 | 83183 | 98016741 |
Payout Agreement
| No payout information available.. |