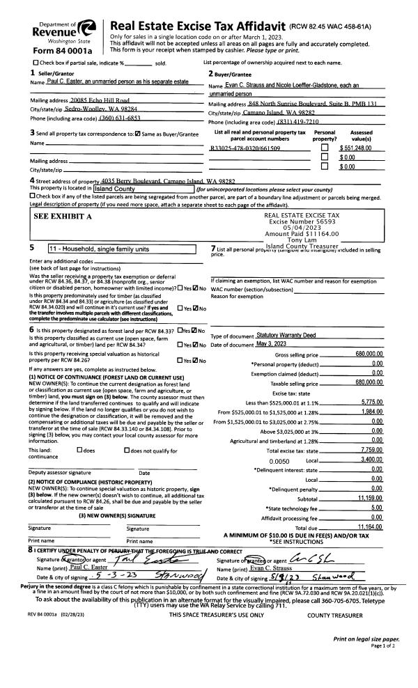
Property
Account |
| Property ID: | 661509 | Abbreviated Legal Description: | LOT 3 SP 45-90.33025.463-0340 V2 SP P301 AF#91010067 TGW & SUB EZ AF#92003071 |
| Geographic ID: | R33025-478-0320 | Agent Code: | |
| Type: | Real | | |
| Tax Area: | 542 - APPRAISER-Stan/Cam Schl Dist, Special Dist, improved, greater than 1 acre | Land Use Code | 11 |
| Open Space: | N | DFL | N |
| Historic Property: | N | Remodel Property: | N |
| Multi-Family Redevelopment: | N | | |
| Township: | 30 | Section: | 25 |
| Range: | R3 |
Location |
| Address: | 4035 BERRY BLVD CAMANO ISLAND, WA 98282 | Mapsco: | |
| Neighborhood: | 58SofTamarackAC | Map ID: | 890 |
| Neighborhood CD: | 58RstamAC |
Owner |
| Name: | STRAUSS, EVAN C | Owner ID: | 308533 |
| Mailing Address: | NICOLE LOEFFLER-GLADSTONE 848 NORTH SUNRISE BLVD, SUITE PMB 131 CAMANO ISLAND, WA 98282 | % Ownership: | 100.0000000000% |
| | | Exemptions: | |
Taxes and Assessment Details
Values
| (+) Improvement Homesite Value: | + | $0 | |
| (+) Improvement Non-Homesite Value: | + | $370,325 | |
| (+) Land Homesite Value: | + | $0 | |
| (+) Land Non-Homesite Value: | + | $320,000 | |
| (+) Curr Use (HS): | + | $0 | $0 |
| (+) Curr Use (NHS): | + | $0 | $0 |
| | | -------------------------- | |
| (=) Market Value: | = | $690,325 | |
| (–) Productivity Loss: | – | $0 | |
| | | -------------------------- | |
| (=) Subtotal: | = | $690,325 | |
| (+) Senior Appraised Value: | + | $0 | |
| (+) Non-Senior Appraised Value: | + | $690,325 | |
| | | -------------------------- | |
| (=) Total Appraised Value: | = | $690,325 | |
| (–) Senior Exemption Loss: | – | $0 | |
| (–) Exemption Loss: | – | $0 | |
| | | -------------------------- | |
| (=) Taxable Value: | = | $690,325 | |
Taxing Jurisdiction
| Owner: | STRAUSS, EVAN C | | |
| % Ownership: | 100.0000000000% | | |
| Total Value: | $690,325 | | |
| Tax Area: | 542 - APPRAISER-Stan/Cam Schl Dist, Special Dist, improved, greater than 1 acre |
| CF | Conservation Futures | 0.0313996660 | $690,325 | $690,325 | $21.68 | | |
| EMS1 | Fire & Rescue Dist #1 Camano GEN (EMS) | 0.4998471806 | $690,325 | $690,325 | $345.06 | | |
| FIRE1 | Fire & Rescue Dist #1 Camano GEN | 1.2496603404 | $690,325 | $690,325 | $862.67 | | |
| FIRE1BOND | Fire & Rescue Dist #1 Camano BOND | 0.1630371212 | $690,325 | $690,325 | $112.55 | | |
| CE | County Current Expense | 0.3674210519 | $690,325 | $690,325 | $253.64 | | |
| CR | County Roads | 0.4614296361 | $690,325 | $690,325 | $318.54 | | |
| LIB | Library Sno-Isle GEN | 0.3039084203 | $690,325 | $690,325 | $209.80 | | |
| SCH205_401 | School 205-401 Enrichment | 1.3697998934 | $690,325 | $690,325 | $945.61 | | |
| SCH205BOND | School 205-401 BOND | 0.9354199323 | $690,325 | $690,325 | $645.74 | | |
| ST | State School | 1.4761226122 | $690,325 | $690,325 | $1,019.00 | | |
| ST2 | State School Part 2 | 0.7953803475 | $690,325 | $690,325 | $549.07 | | |
| | Total Tax Rate: | 7.6534262019 | | | | | |
| | | | | Taxes w/Current Exemptions: | $5,283.36 | | |
| | | | | Taxes w/o Exemptions: | $5,283.36 | | |
Improvement / Building
| Improvement #1: | RESIDENTIAL | State Code: | Y | 1784.0 sqft | Value: | $370,325 |
| Bathrooms: | 2.5 | Bedrooms: | 3 | | Ceiling: | DRYWALL PAINTED | Exterior Wall/Cover: | VINYL | | Floor Covering: | CARPET/VINYL 60-40 | Floor Structure: | WOOD W/SUBFLOOR | | Foundation: | CONCRETE | Heating: | FHA GAS | | Interior Finish: | DRYWALL PAINT | Plumbing Fixture Cnt: | 12 | | Roof Slope: | 4" IN 12" | Roof Structure/Cover: | CJ ASPHALT |
|
| | Type | Description | Class CD | Sub Class CD | Year Built | Area |
| | BAS | BASE/MAIN FLOOR | 3 | 0 | 1999 | 988.0 |
| | OP4 | OPEN PORCH W/CEILING-ROOF | 3 | 0 | 1999 | 541.0 |
| | UPS | UPPER STORY | 3 | 0 | 1999 | 796.0 |
| | DGR | DETACHED GARAGE | 3 | 0 | 1999 | 1440.0 |
Sketch
| No sketches available for this property. |
Property Image
Land
| 1 | 32 | AC (03.01-09.99) | 5.0400 | 219542.40 | 0.00 | 0.00 | 1.00 | $320,000 | $0 |
Roll Value History
| 2026 | N/A | N/A | N/A | N/A | N/A |
| 2025 | $370,325 | $320,000 | $0 | $690,325 | $690,325 |
| 2024 | $374,075 | $280,000 | $0 | $654,075 | $654,075 |
| 2023 | $372,421 | $260,000 | $0 | $632,421 | $632,421 |
| 2022 | $341,248 | $210,000 | $0 | $551,248 | $551,248 |
| 2021 | $253,648 | $160,000 | $0 | $413,648 | $413,648 |
| 2020 | $247,063 | $150,000 | $0 | $397,063 | $397,063 |
| 2019 | $182,055 | $200,000 | $0 | $382,055 | $382,055 |
| 2018 | $182,595 | $165,000 | $0 | $347,595 | $347,595 |
| 2017 | $183,675 | $150,000 | $0 | $333,675 | $333,675 |
| 2016 | $185,836 | $130,000 | $0 | $315,836 | $315,836 |
| 2015 | $182,734 | $84,000 | $0 | $266,734 | $266,734 |
| 2014 | $184,728 | $84,000 | $0 | $268,728 | $268,728 |
| 2013 | $186,724 | $84,672 | $0 | $271,396 | $271,396 |
| 2012 | $188,720 | $84,672 | $0 | $273,392 | $273,392 |
| 2011 | $190,716 | $93,000 | $0 | $283,716 | $283,716 |
| 2010 | $197,616 | $93,000 | $0 | $290,616 | $290,616 |
| 2009 | $188,134 | $120,000 | $0 | $308,134 | $308,134 |
| 2008 | $190,217 | $110,000 | $0 | $300,217 | $300,217 |
| 2007 | $192,288 | $110,000 | $0 | $302,288 | $302,288 |
Deed and Sales History
| 1 | 05/03/2023 | WD | Warranty Deed | EASTER, PAUL C | STRAUSS, EVAN C | | | $680,000.00 | 56593 | 4559521 |
| 2 | 01/26/2012 | ESTSEPPROP | Establish Separate Property | EASTER, PAUL C | EASTER, PAUL C | | | $0.00 | 10311 | 4332691 |
| 3 | 06/19/1998 | WD | Warranty Deed | EASTER, PAUL C | EASTER, PAUL C | | | $45,000.00 | 82429 | 98012661 |
| 4 | 01/01/1900 | OTHER | Other - Misc. Documents | Unknown | BORBELY, LOUIS Z | | | $0.00 | 2776 | 90009064 |
Payout Agreement
| No payout information available.. |