Property
Account |
| Property ID: | 664338 | Abbreviated Legal Description: | LOT 2 SP 6-91.33130.433.2360 V2 SP P325-6 AF#91017968 |
| Geographic ID: | R33130-420-2340 | Agent Code: | |
| Type: | Real | | |
| Tax Area: | 510 - APPRAISER-Stan/Cam Schl Dist, improved & 1 acre or less | Land Use Code | 11 |
| Open Space: | N | DFL | N |
| Historic Property: | N | Remodel Property: | N |
| Multi-Family Redevelopment: | N | | |
| Township: | 31 | Section: | 30 |
| Range: | R3 |
Location |
| Address: | 136 SONSHINE LN CAMANO ISLAND, WA 98282 | Mapsco: | |
| Neighborhood: | Cycle 5 | Map ID: | 938 |
| Neighborhood CD: | 5 |
Owner |
| Name: | HARRIS, PHILLIP R | Owner ID: | 297045 |
| Mailing Address: | 136 SONSHINE LN CAMANO ISLAND, WA 98282 | % Ownership: | 100.0000000000% |
| | | Exemptions: | |
Taxes and Assessment Details
Values
| (+) Improvement Homesite Value: | + | $0 | |
| (+) Improvement Non-Homesite Value: | + | $343,490 | |
| (+) Land Homesite Value: | + | $0 | |
| (+) Land Non-Homesite Value: | + | $250,000 | |
| (+) Curr Use (HS): | + | $0 | $0 |
| (+) Curr Use (NHS): | + | $0 | $0 |
| | | -------------------------- | |
| (=) Market Value: | = | $593,490 | |
| (–) Productivity Loss: | – | $0 | |
| | | -------------------------- | |
| (=) Subtotal: | = | $593,490 | |
| (+) Senior Appraised Value: | + | $0 | |
| (+) Non-Senior Appraised Value: | + | $593,490 | |
| | | -------------------------- | |
| (=) Total Appraised Value: | = | $593,490 | |
| (–) Senior Exemption Loss: | – | $0 | |
| (–) Exemption Loss: | – | $0 | |
| | | -------------------------- | |
| (=) Taxable Value: | = | $593,490 | |
Taxing Jurisdiction
| Owner: | HARRIS, PHILLIP R | | |
| % Ownership: | 100.0000000000% | | |
| Total Value: | $593,490 | | |
| Tax Area: | 510 - APPRAISER-Stan/Cam Schl Dist, improved & 1 acre or less |
| CF | Conservation Futures | 0.0313996660 | $593,490 | $593,490 | $18.64 | | |
| EMS1 | Fire & Rescue Dist #1 Camano GEN (EMS) | 0.4998471806 | $593,490 | $593,490 | $296.65 | | |
| FIRE1 | Fire & Rescue Dist #1 Camano GEN | 1.2496603404 | $593,490 | $593,490 | $741.66 | | |
| FIRE1BOND | Fire & Rescue Dist #1 Camano BOND | 0.1630371212 | $593,490 | $593,490 | $96.76 | | |
| CE | County Current Expense | 0.3674210519 | $593,490 | $593,490 | $218.06 | | |
| CR | County Roads | 0.4614296361 | $593,490 | $593,490 | $273.85 | | |
| LIB | Library Sno-Isle GEN | 0.3039084203 | $593,490 | $593,490 | $180.37 | | |
| SCH205_401 | School 205-401 Enrichment | 1.3697998934 | $593,490 | $593,490 | $812.96 | | |
| SCH205BOND | School 205-401 BOND | 0.9354199323 | $593,490 | $593,490 | $555.16 | | |
| ST | State School | 1.4761226122 | $593,490 | $593,490 | $876.06 | | |
| ST2 | State School Part 2 | 0.7953803475 | $593,490 | $593,490 | $472.05 | | |
| | Total Tax Rate: | 7.6534262019 | | | | | |
| | | | | Taxes w/Current Exemptions: | $4,542.22 | | |
| | | | | Taxes w/o Exemptions: | $4,542.22 | | |
Improvement / Building
| Improvement #1: | RESIDENTIAL | State Code: | Y | 1756.0 sqft | Value: | $343,490 |
| Bathrooms: | 2.5 | Bedrooms: | 3 | | Ceiling: | DRYWALL PAINTED | Cooling: | HEAT PUMP/CONV/V | | Exterior Wall/Cover: | PLY/HARDBOARD T-111 | Floor Covering: | VINYL 100% | | Floor Structure: | WOOD W/SUBFLOOR | Foundation: | CONCRETE | | Heating: | (NONE) | Interior Finish: | DRYWALL PAINT | | Plumbing Fixture Cnt: | 11 | Roof Slope: | 4" IN 12" | | Roof Structure/Cover: | CJ ASPHALT |   |   |
|
| | Type | Description | Class CD | Sub Class CD | Year Built | Area |
| | BAS | BASE/MAIN FLOOR | 3 | 0 | 1995 | 1756.0 |
| | OWP | OPEN WOOD PORCH W/STEPS | 3 | 0 | 1995 | 324.0 |
| | OWP | OPEN WOOD PORCH W/STEPS | 3 | 0 | 1995 | 320.0 |
| | DGR | DETACHED GARAGE | 3 | 0 | 1995 | 1200.0 |
| | UTY | STORAGE/UTILITY | 3 | 0 | 1995 | 160.0 |
Sketch
Property Image
Land
| 1 | 16 | AC (00.51-01.00) | 0.0000 | 0.00 | 0.00 | 0.00 | 1.00 | $250,000 | $0 |
Roll Value History
| 2026 | N/A | N/A | N/A | N/A | N/A |
| 2025 | $343,490 | $250,000 | $0 | $593,490 | $593,490 |
| 2024 | $347,168 | $230,000 | $0 | $577,168 | $577,168 |
| 2023 | $350,845 | $230,000 | $0 | $580,845 | $580,845 |
| 2022 | $323,864 | $210,000 | $0 | $533,864 | $533,864 |
| 2021 | $283,118 | $150,000 | $0 | $433,118 | $433,118 |
| 2020 | $253,233 | $120,000 | $0 | $373,233 | $373,233 |
| 2019 | $192,917 | $160,000 | $0 | $352,917 | $352,917 |
| 2018 | $193,404 | $120,000 | $0 | $313,404 | $313,404 |
| 2017 | $182,930 | $100,000 | $0 | $282,930 | $282,930 |
| 2016 | $184,745 | $80,000 | $0 | $264,745 | $264,745 |
| 2015 | $171,351 | $60,000 | $0 | $231,351 | $231,351 |
| 2014 | $142,754 | $60,000 | $0 | $202,754 | $202,754 |
| 2013 | $144,504 | $60,000 | $0 | $204,504 | $204,504 |
| 2012 | $146,255 | $60,000 | $0 | $206,255 | $206,255 |
| 2011 | $148,006 | $84,000 | $0 | $232,006 | $232,006 |
| 2010 | $152,831 | $84,000 | $0 | $236,831 | $236,831 |
| 2009 | $145,503 | $73,931 | $0 | $219,434 | $219,434 |
| 2008 | $147,230 | $73,931 | $0 | $221,161 | $221,161 |
| 2007 | $148,957 | $73,931 | $0 | $222,888 | $222,888 |
Deed and Sales History
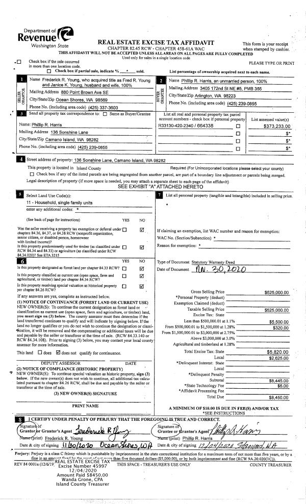
| 1 | 11/30/2020 | WD | Warranty Deed | YOUNG, FRED R | HARRIS, PHILLIP R | | | $525,000.00 | 45997 | 4504285 |
| 2 | 02/06/2012 | WD | Warranty Deed | FEDERAL NATIONAL MORTGAGE ASSOCIATION | YOUNG, FRED R | | | $100,000.00 | 6858 | 4309801 |
| 3 | 02/14/2011 | TRUSTEED | Trustee's Deed | GUSTAFSON, KENNETH R | FEDERAL NATIONAL MORTGAGE ASSOCIATION | | | $0.00 | 3731 | 4291606 |
| 4 | 12/01/2006 | WD | Warranty Deed | PETERSON, LINDA M | GUSTAFSON, KENNETH R | | | $286,000.00 | 65148 | 4188970 |
| 5 | 03/12/1999 | WD | Warranty Deed | OSKAM, PAUL D | PETERSON, LINDA M | | | $139,800.00 | 90955 | 99006659 |
| 6 | 12/01/1994 | WD | Warranty Deed | JOHNSON, STEVEN M | OSKAM, PAUL D | | | $121,000.00 | 45088 | 94025940 |
| 7 | 03/01/1994 | WD | Warranty Deed | BARB, RICHARD E | JOHNSON, STEVEN M | | | $23,000.00 | 41066 | 94006877 |
| 8 | 12/01/1993 | WD | Warranty Deed | BARB, RICHARD E | SELL, ROBERT D | | | $23,500.00 | 34854 | 93025393 |
| 9 | 12/01/1993 | QCD | Quit Claim Deed | SELL, ROBERT D | BARB, RICHARD E | | | $0.00 | 40111 | 94000664 |
| 10 | 01/01/1900 | OTHER | Other - Misc. Documents | Unknown | BARB, RICHARD E | | | $0.00 | 83597 | 88013451 |
Payout Agreement
| No payout information available.. |