Property
Account |
| Property ID: | 665097 | Abbreviated Legal Description: | LOT 1 SP 54-90.32902.295-5300 V2 SP P336-7 AF#92001076 |
| Geographic ID: | R32902-337-5410 | Agent Code: | |
| Type: | Real | | |
| Tax Area: | 710 - APPRAISER-S Whid Schl Dist, outside Langley, improved & 1 acre or less | Land Use Code | 11 |
| Open Space: | N | DFL | N |
| Historic Property: | N | Remodel Property: | N |
| Multi-Family Redevelopment: | N | | |
| Township: | 29 | Section: | 02 |
| Range: | R3 |
Location |
| Address: | 4380 STARLIGHT LN LANGLEY, WA 98260 | Mapsco: | |
| Neighborhood: | Cycle 4 | Map ID: | 722 |
| Neighborhood CD: | 4 |
Owner |
| Name: | SANTINI, HILARY E | Owner ID: | 315025 |
| Mailing Address: | LOUIS A SANTINI 1018 SUMMIT AVE E SEATTLE, WA 98102 | % Ownership: | 100.0000000000% |
| | | Exemptions: | |
Taxes and Assessment Details
Values
| (+) Improvement Homesite Value: | + | $0 | |
| (+) Improvement Non-Homesite Value: | + | $704,812 | |
| (+) Land Homesite Value: | + | $0 | |
| (+) Land Non-Homesite Value: | + | $360,000 | |
| (+) Curr Use (HS): | + | $0 | $0 |
| (+) Curr Use (NHS): | + | $0 | $0 |
| | | -------------------------- | |
| (=) Market Value: | = | $1,064,812 | |
| (–) Productivity Loss: | – | $0 | |
| | | -------------------------- | |
| (=) Subtotal: | = | $1,064,812 | |
| (+) Senior Appraised Value: | + | $0 | |
| (+) Non-Senior Appraised Value: | + | $1,064,812 | |
| | | -------------------------- | |
| (=) Total Appraised Value: | = | $1,064,812 | |
| (–) Senior Exemption Loss: | – | $0 | |
| (–) Exemption Loss: | – | $0 | |
| | | -------------------------- | |
| (=) Taxable Value: | = | $1,064,812 | |
Taxing Jurisdiction
| Owner: | SANTINI, HILARY E | | |
| % Ownership: | 100.0000000000% | | |
| Total Value: | $1,064,812 | | |
| Tax Area: | 710 - APPRAISER-S Whid Schl Dist, outside Langley, improved & 1 acre or less |
| CF | Conservation Futures | 0.0313996660 | $1,064,812 | $1,064,812 | $33.43 | | |
| FIRE3 | Fire & Rescue Dist #3 S Whidbey GEN | 1.2130821753 | $1,064,812 | $1,064,812 | $1,291.70 | | |
| HOBOND | Hospital BOND | 0.1893405597 | $1,064,812 | $1,064,812 | $201.61 | | |
| HOGEN | Hospital GEN | 0.3848777722 | $1,064,812 | $1,064,812 | $409.82 | | |
| CE | County Current Expense | 0.3674210519 | $1,064,812 | $1,064,812 | $391.23 | | |
| CR | County Roads | 0.4614296361 | $1,064,812 | $1,064,812 | $491.34 | | |
| ISLANDEMS | Hospital GEN (EMS) | 0.4952018576 | $1,064,812 | $1,064,812 | $527.30 | | |
| LIB | Library Sno-Isle GEN | 0.3039084203 | $1,064,812 | $1,064,812 | $323.61 | | |
| PORTWHID | Port of S Whidbey GEN | 0.1086004714 | $1,064,812 | $1,064,812 | $115.64 | | |
| SCH206BOND | School 206 BOND | 0.5960237832 | $1,064,812 | $1,064,812 | $634.65 | | |
| SCH206CAP | School 206 CP | 0.3066144020 | $1,064,812 | $1,064,812 | $326.49 | | |
| SCH206MO | School 206 Enrichment | 0.4808755445 | $1,064,812 | $1,064,812 | $512.04 | | |
| ST | State School | 1.4761226122 | $1,064,812 | $1,064,812 | $1,571.79 | | |
| ST2 | State School Part 2 | 0.7953803475 | $1,064,812 | $1,064,812 | $846.93 | | |
| SWHIDPRBD | P & R S Whidbey BOND | 0.0144185398 | $1,064,812 | $1,064,812 | $15.35 | | |
| SWHIDPRBD3 | P & R S Whidbey BOND3 | 0.1483535547 | $1,064,812 | $1,064,812 | $157.97 | | |
| SWHIDPRMT | P & R S Whidbey GEN | 0.4600000000 | $1,064,812 | $1,064,812 | $489.81 | | |
| | Total Tax Rate: | 7.8330503944 | | | | | |
| | | | | Taxes w/Current Exemptions: | $8,340.71 | | |
| | | | | Taxes w/o Exemptions: | $8,340.71 | | |
Improvement / Building
| Improvement #1: | RESIDENTIAL | State Code: | Y | 2000.0 sqft | Value: | $423,625 |
| Bathrooms: | 2.5 | Bedrooms: | 3 | | Ceiling: | TONGUE & GROOVE | Exterior Wall/Cover: | SHINGLE | | Floor Covering: | COLORED CONCRETE | Floor Structure: | SLAB ABOVE GRADE | | Foundation: | CONCRETE | Heating: | RADIANT FLOOR | | Interior Finish: | DRYWALL PAINT | Plumbing Fixture Cnt: | 10 | | Roof Slope: | 4" IN 12" | Roof Structure/Cover: | CJ ASPHALT |
|
| | Type | Description | Class CD | Sub Class CD | Year Built | Area |
| | BAS | BASE/MAIN FLOOR | 4 | 0 | 1999 | 1388.0 |
| | UPS | UPPER STORY | 4 | 0 | 1999 | 612.0 |
| | OWP | OPEN WOOD PORCH W/STEPS | 4 | 0 | 1999 | 170.0 |
| | OWP | OPEN WOOD PORCH W/STEPS | 4 | 0 | 1999 | 380.0 |
| | OP4 | OPEN PORCH W/CEILING-ROOF | 4 | 0 | 1999 | 190.0 |
| Improvement #2: | RESIDENTIAL | State Code: | Y | 736.0 sqft | Value: | $281,187 |
| Bathrooms: | 1 | Bedrooms: | 1 | | Ceiling: | BEAM PAINTED | Exterior Wall/Cover: | SHINGLE | | Floor Covering: | COLORED CONCRETE | Floor Structure: | SLAB ABOVE GRADE | | Foundation: | CONCRETE | Heating: | RADIANT FLOOR | | Interior Finish: | DRYWALL PAINT | Plumbing Fixture Cnt: | 5 | | Roof Slope: | 4" IN 12" | Roof Structure/Cover: | CJ ASPHALT |
|
| | Type | Description | Class CD | Sub Class CD | Year Built | Area |
| | BAS | BASE/MAIN FLOOR | 4 | 0 | 2008 | 736.0 |
| | BIG | BUILT IN GARAGE | 4 | 0 | 2008 | 832.0 |
| | OWP | OPEN WOOD PORCH W/STEPS | 4 | 0 | 2008 | 208.0 |
| | OP1 | OPEN PORCH SLAB | 4 | 0 | 2008 | 208.7 |
Sketch
Property Image
Land
| 1 | 16 | AC (00.51-01.00) | 0.5700 | 24829.20 | 0.00 | 0.00 | 1.00 | $360,000 | $0 |
Roll Value History
| 2026 | N/A | N/A | N/A | N/A | N/A |
| 2025 | $704,812 | $360,000 | $0 | $1,064,812 | $1,064,812 |
| 2024 | $707,008 | $340,000 | $0 | $1,047,008 | $1,047,008 |
| 2023 | $555,203 | $300,000 | $0 | $855,203 | $855,203 |
| 2022 | $507,958 | $280,000 | $0 | $787,958 | $787,958 |
| 2021 | $446,208 | $250,000 | $0 | $696,208 | $696,208 |
| 2020 | $402,356 | $220,000 | $0 | $622,356 | $622,356 |
| 2019 | $297,870 | $260,000 | $0 | $557,870 | $557,870 |
| 2018 | $298,626 | $200,000 | $0 | $498,626 | $498,626 |
| 2017 | $300,137 | $200,000 | $0 | $500,137 | $500,137 |
| 2016 | $303,159 | $150,000 | $0 | $453,159 | $453,159 |
| 2015 | $306,182 | $150,000 | $0 | $456,182 | $456,182 |
| 2014 | $309,204 | $150,000 | $0 | $459,204 | $459,204 |
| 2013 | $312,226 | $150,000 | $0 | $462,226 | $462,226 |
| 2012 | $276,808 | $139,500 | $0 | $416,308 | $416,308 |
| 2011 | $278,487 | $155,000 | $0 | $433,487 | $433,487 |
| 2010 | $274,076 | $155,000 | $0 | $429,076 | $429,076 |
| 2009 | $259,311 | $160,000 | $0 | $419,311 | $419,311 |
| 2008 | $264,722 | $246,500 | $0 | $511,222 | $511,222 |
| 2007 | $267,661 | $246,500 | $0 | $514,161 | $514,161 |
Deed and Sales History
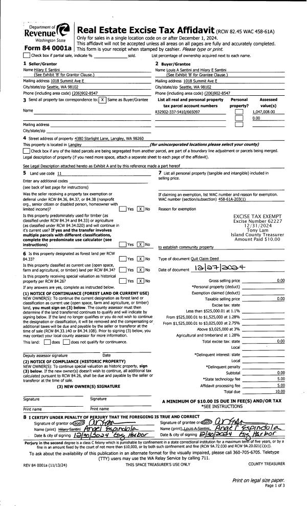
| 1 | 12/27/2024 | QCD | Quit Claim Deed | SANTINI, HILARY E | SANTINI, HILARY E | | | $0.00 | 62227 | 4580881 |
| 2 | 12/30/2024 | QCD | Quit Claim Deed | BORUN, KATHERINE GOULD | SANTINI, HILARY E | | | $753,002.00 | 62226 | 4580880 |
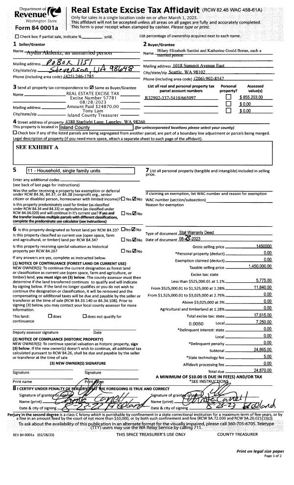
| 3 | 08/23/2023 | WD | Warranty Deed | AKDENIZ, AYDIN | SANTINI, HILARY ELIZABETH | | | $1,450,000.00 | 57781 | 4564033 |
| 4 | 02/20/2013 | DECREE | Divorce Decree/Legal Separation | AKDENIZ, AYDIN | AKDENIZ, AYDIN | | | $0.00 | 10559 | 4334845 |
| 5 | 09/16/2004 | WD | Warranty Deed | MCDOWELL, CINDY L | AKDENIZ, AYDIN | | | $425,000.00 | 44460 | 4113539 |
| 6 | 05/01/1993 | WD | Warranty Deed | TURNER, VANETTA R | MCDOWELL, CINDY L | | | $45,000.00 | 31834 | 93009608 |
| 7 | 04/01/1992 | QCD | Quit Claim Deed | TURNER, VANETTA R | TURNER, VANETTA R | | | $0.00 | 21722 | 92008250 |
| 8 | 01/01/1900 | OTHER | Other - Misc. Documents | Unknown | TURNER, VANETTA R | | | $0.00 | 33808 | 419435 |
Payout Agreement
| No payout information available.. |