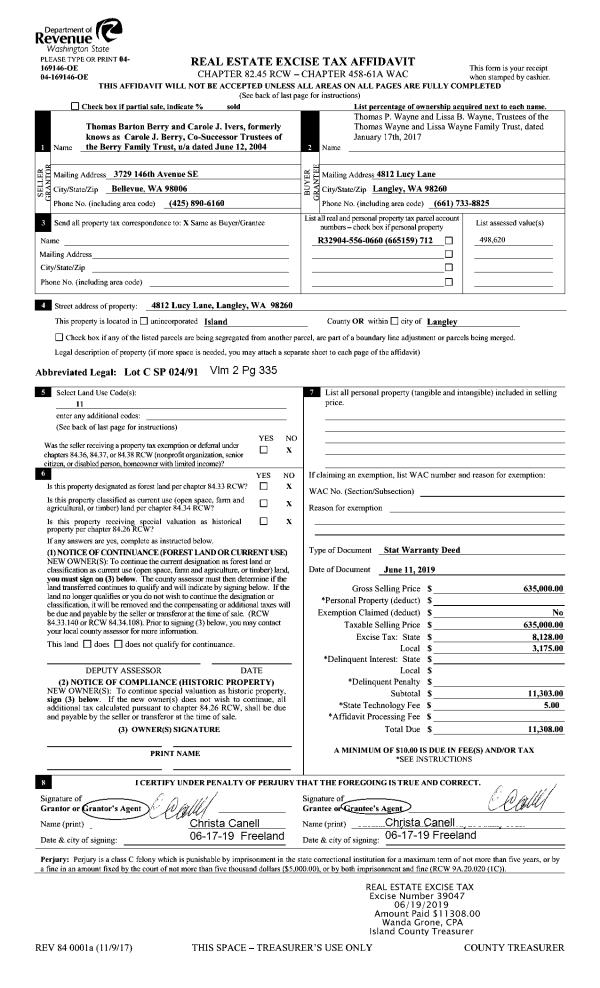
Property
Account |
| Property ID: | 665159 | Abbreviated Legal Description: | LOT C SP 24-91.32904.555-0660 V2 SP P335 AF#92001075 (AMENDED) TGW & SUB EZ AF#91003790 |
| Geographic ID: | R32904-556-0660 | Agent Code: | |
| Type: | Real | | |
| Tax Area: | 712 - APPRAISER-S Whid Schl Dist, outside Langley, improved, greater than 1 acre | Land Use Code | 11 |
| Open Space: | N | DFL | N |
| Historic Property: | N | Remodel Property: | N |
| Multi-Family Redevelopment: | N | | |
| Township: | 29 | Section: | 04 |
| Range: | R3 |
Location |
| Address: | 4812 LUCY LN LANGLEY, WA 98260 | Mapsco: | |
| Neighborhood: | Cycle 4 | Map ID: | 730 |
| Neighborhood CD: | 4 |
Owner |
| Name: | WAYNE TTEE, THOMAS P | Owner ID: | 290321 |
| Mailing Address: | LISSA B WAYNE, TTEE 4812 LUCY LN LANGELY, WA 98260 | % Ownership: | 100.0000000000% |
| | | Exemptions: | |
Taxes and Assessment Details
Values
| (+) Improvement Homesite Value: | + | $0 | |
| (+) Improvement Non-Homesite Value: | + | $546,857 | |
| (+) Land Homesite Value: | + | $0 | |
| (+) Land Non-Homesite Value: | + | $310,000 | |
| (+) Curr Use (HS): | + | $0 | $0 |
| (+) Curr Use (NHS): | + | $0 | $0 |
| | | -------------------------- | |
| (=) Market Value: | = | $856,857 | |
| (–) Productivity Loss: | – | $0 | |
| | | -------------------------- | |
| (=) Subtotal: | = | $856,857 | |
| (+) Senior Appraised Value: | + | $0 | |
| (+) Non-Senior Appraised Value: | + | $856,857 | |
| | | -------------------------- | |
| (=) Total Appraised Value: | = | $856,857 | |
| (–) Senior Exemption Loss: | – | $0 | |
| (–) Exemption Loss: | – | $0 | |
| | | -------------------------- | |
| (=) Taxable Value: | = | $856,857 | |
Taxing Jurisdiction
| Owner: | WAYNE TTEE, THOMAS P | | |
| % Ownership: | 100.0000000000% | | |
| Total Value: | $856,857 | | |
| Tax Area: | 712 - APPRAISER-S Whid Schl Dist, outside Langley, improved, greater than 1 acre |
| CF | Conservation Futures | 0.0313996660 | $856,857 | $856,857 | $26.91 | | |
| FIRE3 | Fire & Rescue Dist #3 S Whidbey GEN | 1.2130821753 | $856,857 | $856,857 | $1,039.44 | | |
| HOBOND | Hospital BOND | 0.1893405597 | $856,857 | $856,857 | $162.24 | | |
| HOGEN | Hospital GEN | 0.3848777722 | $856,857 | $856,857 | $329.79 | | |
| CE | County Current Expense | 0.3674210519 | $856,857 | $856,857 | $314.83 | | |
| CR | County Roads | 0.4614296361 | $856,857 | $856,857 | $395.38 | | |
| ISLANDEMS | Hospital GEN (EMS) | 0.4952018576 | $856,857 | $856,857 | $424.32 | | |
| LIB | Library Sno-Isle GEN | 0.3039084203 | $856,857 | $856,857 | $260.41 | | |
| PORTWHID | Port of S Whidbey GEN | 0.1086004714 | $856,857 | $856,857 | $93.06 | | |
| SCH206BOND | School 206 BOND | 0.5960237832 | $856,857 | $856,857 | $510.71 | | |
| SCH206CAP | School 206 CP | 0.3066144020 | $856,857 | $856,857 | $262.72 | | |
| SCH206MO | School 206 Enrichment | 0.4808755445 | $856,857 | $856,857 | $412.04 | | |
| ST | State School | 1.4761226122 | $856,857 | $856,857 | $1,264.83 | | |
| ST2 | State School Part 2 | 0.7953803475 | $856,857 | $856,857 | $681.53 | | |
| SWHIDPRBD | P & R S Whidbey BOND | 0.0144185398 | $856,857 | $856,857 | $12.35 | | |
| SWHIDPRBD3 | P & R S Whidbey BOND3 | 0.1483535547 | $856,857 | $856,857 | $127.12 | | |
| SWHIDPRMT | P & R S Whidbey GEN | 0.4600000000 | $856,857 | $856,857 | $394.15 | | |
| | Total Tax Rate: | 7.8330503944 | | | | | |
| | | | | Taxes w/Current Exemptions: | $6,711.83 | | |
| | | | | Taxes w/o Exemptions: | $6,711.83 | | |
Improvement / Building
| Improvement #1: | RESIDENTIAL | State Code: | Y | 2943.0 sqft | Value: | $546,857 |
| Bathrooms: | 3 | Bedrooms: | 3 | | Ceiling: | DRYWALL PAINTED | Cooling: | HEAT PUMP/CONV/V | | Exterior Wall/Cover: | CEMENT FIBER | Floor Covering: | HARDWOOD/CARP 20-80 | | Floor Structure: | WOOD W/SUBFLOOR | Foundation: | CONCRETE | | Interior Finish: | DRYWALL PAINT | Plumbing Fixture Cnt: | 12 | | Roof Slope: | 18" IN 12" | Roof Structure/Cover: | CJ ASPHALT |
|
| | Type | Description | Class CD | Sub Class CD | Year Built | Area |
| | BAS | BASE/MAIN FLOOR | 4 | 0 | 1993 | 1428.0 |
| | OP2 | OPEN PORCH W/STEPS | 4 | 0 | 1993 | 22.0 |
| | OP2 | OPEN PORCH W/STEPS | 4 | 0 | 1993 | 18.0 |
| | UTY | STORAGE/UTILITY | 4 | 0 | 1993 | 144.0 |
| | OP4 | OPEN PORCH W/CEILING-ROOF | 4 | 0 | 1993 | 24.0 |
| | OP4 | OPEN PORCH W/CEILING-ROOF | 4 | 0 | 1993 | 300.0 |
| | DGR | DETACHED GARAGE | 4 | 0 | 1993 | 1024.0 |
| | BIG | BUILT IN GARAGE | 4 | 0 | 1993 | 528.0 |
| | UTY | STORAGE/UTILITY | 4 | 0 | 1993 | 448.0 |
| | UPS | UPPER STORY | 4 | 0 | 1993 | 1131.0 |
| | UPH | HALF STORY | 4 | 0 | 1993 | 384.0 |
| | oPOL | POLE BARN | 4 | 0 | 1993 | 576.0 |
Sketch
Property Image
Land
| 1 | 18 | AC (02.01-03.00) | 0.0000 | 0.00 | 0.00 | 0.00 | 1.00 | $310,000 | $0 |
Roll Value History
| 2026 | N/A | N/A | N/A | N/A | N/A |
| 2025 | $546,857 | $310,000 | $0 | $856,857 | $856,857 |
| 2024 | $553,611 | $300,000 | $0 | $853,611 | $853,611 |
| 2023 | $560,367 | $330,000 | $0 | $890,367 | $890,367 |
| 2022 | $514,648 | $270,000 | $0 | $784,648 | $784,648 |
| 2021 | $454,322 | $190,000 | $0 | $644,322 | $644,322 |
| 2020 | $432,673 | $190,000 | $0 | $622,673 | $622,673 |
| 2019 | $317,631 | $240,000 | $0 | $557,631 | $557,631 |
| 2018 | $318,620 | $180,000 | $0 | $498,620 | $498,620 |
| 2017 | $320,599 | $180,000 | $0 | $500,599 | $500,599 |
| 2016 | $324,558 | $125,000 | $0 | $449,558 | $449,558 |
| 2015 | $328,517 | $100,000 | $0 | $428,517 | $428,517 |
| 2014 | $341,343 | $95,000 | $0 | $436,343 | $436,343 |
| 2013 | $345,587 | $95,000 | $0 | $440,587 | $440,587 |
| 2012 | $349,832 | $97,750 | $0 | $447,582 | $447,582 |
| 2011 | $354,076 | $115,000 | $0 | $469,076 | $469,076 |
| 2010 | $369,243 | $115,000 | $0 | $484,243 | $484,243 |
| 2009 | $384,906 | $155,000 | $0 | $539,906 | $539,906 |
| 2008 | $384,976 | $170,000 | $0 | $554,976 | $554,976 |
| 2007 | $363,792 | $195,888 | $0 | $559,680 | $559,680 |
Deed and Sales History
| 1 | 06/11/2019 | WD | Warranty Deed | BERRY TRUSTEE, THOMAS B | WAYNE TTEE, THOMAS P | | | $635,000.00 | 39047 | 4465689 |
| 2 | 08/07/2017 | QCD | Quit Claim Deed | BERRY TRUSTEE, THOMAS B | BERRY TRUSTEE, THOMAS B | | | $0.00 | 30641 | 4428177 |
| 3 | 06/23/2004 | 5 | DNU - Marriage License/Name Change | BERRY, THOMAS B | BERRY TRUSTEE, THOMAS B | | | $0.00 | 42696 | 4104426 |
| 4 | 04/14/2003 | WD | Warranty Deed | LEFFLER, REGINALD V | BERRY, THOMAS B | | | $376,000.00 | 31594 | 4055488 |
| 5 | 05/31/2002 | 5 | DNU - Marriage License/Name Change | LEFFLER, REGINALD V | LEFFLER, REGINALD V | | | $0.00 | 69445 | 4021282 |
| 6 | 01/31/1992 | QCD | Quit Claim Deed | LEFFLER, REGINALD V | LEFFLER, REGINALD V | | | $0.00 | 22117 | 4021949 |
| 7 | 03/01/1991 | WD | Warranty Deed | Unknown | LEFFLER, REGINALD V | | | $34,000.00 | 12271 | 91009711 |
Payout Agreement
| No payout information available.. |