Property
Account |
| Property ID: | 667424 | Abbreviated Legal Description: | RHODENA BCH LOT 50 TGW NWLY 20'OF LOT 51 COMB 3/92 |
| Geographic ID: | S8010-00-00050-0 | Agent Code: | |
| Type: | Real | | |
| Tax Area: | 350 - APPRAISER-Cpvl Schl Dist, Special Dist, improved & less than 1 acre | Land Use Code | 11 |
| Open Space: | N | DFL | N |
| Historic Property: | N | Remodel Property: | N |
| Multi-Family Redevelopment: | N | | |
| Township: | | Section: | |
| Range: | |
Location |
| Address: | 172 RHODENA DR COUPEVILLE, WA 98239 | Mapsco: | |
| Neighborhood: | Cycle 2 | Map ID: | 188 |
| Neighborhood CD: | 2 |
Owner |
| Name: | ALLOUETTE ISLAND PROPERTIES, LLC | Owner ID: | 314269 |
| Mailing Address: | 109 COYOTE TRAIL GEORGETOWN, TX 78633 | % Ownership: | 100.0000000000% |
| | | Exemptions: | |
Taxes and Assessment Details
Values
| (+) Improvement Homesite Value: | + | $0 | |
| (+) Improvement Non-Homesite Value: | + | $507,916 | |
| (+) Land Homesite Value: | + | $0 | |
| (+) Land Non-Homesite Value: | + | $460,000 | |
| (+) Curr Use (HS): | + | $0 | $0 |
| (+) Curr Use (NHS): | + | $0 | $0 |
| | | -------------------------- | |
| (=) Market Value: | = | $967,916 | |
| (–) Productivity Loss: | – | $0 | |
| | | -------------------------- | |
| (=) Subtotal: | = | $967,916 | |
| (+) Senior Appraised Value: | + | $0 | |
| (+) Non-Senior Appraised Value: | + | $967,916 | |
| | | -------------------------- | |
| (=) Total Appraised Value: | = | $967,916 | |
| (–) Senior Exemption Loss: | – | $0 | |
| (–) Exemption Loss: | – | $0 | |
| | | -------------------------- | |
| (=) Taxable Value: | = | $967,916 | |
Taxing Jurisdiction
| Owner: | ALLOUETTE ISLAND PROPERTIES, LLC | | |
| % Ownership: | 100.0000000000% | | |
| Total Value: | $967,916 | | |
| Tax Area: | 350 - APPRAISER-Cpvl Schl Dist, Special Dist, improved & less than 1 acre |
| CF | Conservation Futures | 0.0313996660 | $967,916 | $967,916 | $30.39 | | |
| CEM2 | Cemetery #2 | 0.0092609791 | $967,916 | $967,916 | $8.96 | | |
| FIRE5 | Fire & Rescue Dist #5 C Whidbey GEN | 1.1892169230 | $967,916 | $967,916 | $1,151.06 | | |
| FIRE5BOND | Fire & Rescue Dist #5 C Whidbey BOND | 0.1394359503 | $967,916 | $967,916 | $134.96 | | |
| HOBOND | Hospital BOND | 0.1893405597 | $967,916 | $967,916 | $183.27 | | |
| HOGEN | Hospital GEN | 0.3848777722 | $967,916 | $967,916 | $372.53 | | |
| CE | County Current Expense | 0.3674210519 | $967,916 | $967,916 | $355.63 | | |
| CR | County Roads | 0.4614296361 | $967,916 | $967,916 | $446.63 | | |
| ISLANDEMS | Hospital GEN (EMS) | 0.4952018576 | $967,916 | $967,916 | $479.31 | | |
| LIB | Library Sno-Isle GEN | 0.3039084203 | $967,916 | $967,916 | $294.16 | | |
| LIBCAP | Library Sno-Isle BOND (Cap Fac Imp Area) | 0.0528562629 | $967,916 | $967,916 | $51.16 | | |
| POCOUP | Port of Coupeville GEN | 0.1065226063 | $967,916 | $967,916 | $103.10 | | |
| POCOUPIDD | Port of Coupeville IDD | 0.3353038577 | $967,916 | $967,916 | $324.55 | | |
| COUPSDTECH | School 204 CP (TECH) | 0.1215123397 | $967,916 | $967,916 | $117.61 | | |
| SCH204MO | School 204 Enrichment | 0.6416662518 | $967,916 | $967,916 | $621.08 | | |
| ST | State School | 1.4761226122 | $967,916 | $967,916 | $1,428.76 | | |
| ST2 | State School Part 2 | 0.7953803475 | $967,916 | $967,916 | $769.86 | | |
| | Total Tax Rate: | 7.1008570943 | | | | | |
| | | | | Taxes w/Current Exemptions: | $6,873.02 | | |
| | | | | Taxes w/o Exemptions: | $6,873.02 | | |
Improvement / Building
| Improvement #1: | RESIDENTIAL | State Code: | Y | 2458.0 sqft | Value: | $507,916 |
| Bathrooms: | 2.5 | Bedrooms: | 2 | | Ceiling: | DRYWALL PAINTED | Exterior Wall/Cover: | WOOD SIDING | | Floor Covering: | HARDWOOD/CARP 60-40 | Floor Structure: | WOOD W/SUBFLOOR | | Foundation: | CONCRETE | Heating: | RADIANT FLOOR | | Interior Finish: | DRYWALL PAINT | Plumbing Fixture Cnt: | 12 | | Roof Slope: | 6" IN 12" | Roof Structure/Cover: | CJ ASPHALT |
|
| | Type | Description | Class CD | Sub Class CD | Year Built | Area |
| | BAS | BASE/MAIN FLOOR | 4 | 0 | 1992 | 989.0 |
| | DWN | DOWNSTAIRS LIVING AREA | 4 | 0 | 1992 | 528.0 |
| | AGR | ATTACHED GARAGE | 4 | 0 | 1992 | 552.0 |
| | UPS | UPPER STORY | 4 | 0 | 1992 | 941.0 |
| | OWP | OPEN WOOD PORCH W/STEPS | 4 | 0 | 1992 | 849.0 |
| | OWR | OPEN WOOD PORCH W/STEPS/ROOF | 4 | 0 | 1992 | 310.0 |
| | ENP | ENCLOSED PORCH | 4 | 0 | 1992 | 120.0 |
Sketch
Property Image
Land
| 1 | HB | HIGH BLUFF | 0.7500 | 32670.00 | 70.00 | 0.00 | 1.00 | $460,000 | $0 |
Roll Value History
| 2026 | N/A | N/A | N/A | N/A | N/A |
| 2025 | $507,916 | $460,000 | $0 | $967,916 | $967,916 |
| 2024 | $477,412 | $410,000 | $0 | $887,412 | $887,412 |
| 2023 | $483,512 | $410,000 | $0 | $893,512 | $893,512 |
| 2022 | $443,343 | $390,000 | $0 | $833,343 | $833,343 |
| 2021 | $390,306 | $325,000 | $0 | $715,306 | $715,306 |
| 2020 | $380,918 | $300,000 | $0 | $680,918 | $680,918 |
| 2019 | $304,198 | $325,000 | $0 | $629,198 | $629,198 |
| 2018 | $305,110 | $300,000 | $0 | $605,110 | $605,110 |
| 2017 | $206,225 | $250,000 | $0 | $456,225 | $456,225 |
| 2016 | $208,939 | $250,000 | $0 | $458,939 | $458,939 |
| 2015 | $211,653 | $250,000 | $0 | $461,653 | $461,653 |
| 2014 | $214,366 | $250,000 | $0 | $464,366 | $464,366 |
| 2013 | $217,079 | $159,337 | $0 | $376,416 | $376,416 |
| 2012 | $204,783 | $159,337 | $0 | $364,120 | $364,120 |
| 2011 | $207,354 | $159,337 | $0 | $366,691 | $366,691 |
| 2010 | $216,603 | $159,337 | $0 | $375,940 | $375,940 |
| 2009 | $225,855 | $185,340 | $0 | $411,195 | $411,195 |
| 2008 | $228,594 | $185,340 | $0 | $413,934 | $413,934 |
| 2007 | $228,825 | $185,340 | $0 | $414,165 | $414,165 |
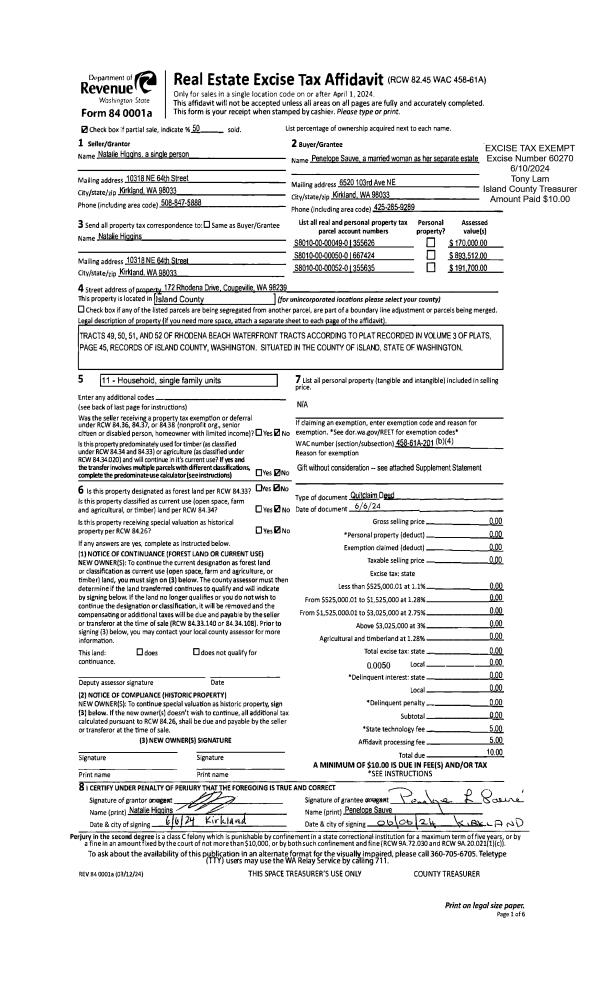
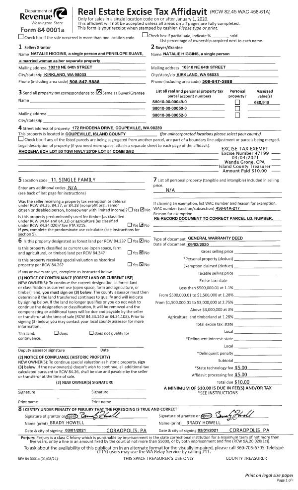
Deed and Sales History
| 1 | 10/15/2024 | WD | Warranty Deed | SAUVE, PENELOPE | ALLOUETTE ISLAND PROPERTIES, LLC | | | $1,150,000.00 | 61609 | 4578387 |
|   | |
| 2 | 06/06/2024 | QCD | Quit Claim Deed | HIGGINS, NATALIE | SAUVE, PENELOPE | | | $10.00 | 60270 | 4573285 |
|   | |
| 3 | 10/25/2019 | WD | Warranty Deed | HIGGINS, NATALIE | HIGGINS, NATALIE | | | $0.00 | 47199 | 4512602 |
| 4 | 09/02/2020 | WD | Warranty Deed | SAUVE, PENELOPE | HIGGINS, NATALIE | | | $0.00 | 44643 | 4495947 |
| 5 | 10/06/2017 | QCD | Quit Claim Deed | SAUVE, PENELOPE | HIGGINS, NATALIE | | | $0.00 | 31451 | 4431784 |
| 6 | 06/27/2017 | QCD | Quit Claim Deed | SAUVE, PENELOPE | SAUVE, PENELOPE | | | $0.00 | 29973 | 4425266 |
| 7 | 06/26/2017 | WD | Warranty Deed | SMITH, H CLAYTON | SAUVE, PENELOPE | | | $775,000.00 | 29972 | 4425265 |
|   | |
| 8 | 09/13/2004 | WD | Warranty Deed | ANDERST, JAMES L | SMITH, H CLAYTON | | | $424,060.00 | 44368 | 4113094 |
| 9 | 03/01/1992 | OTHER | Other - Misc. Documents | ANDERST, JAMES L | ANDERST, JAMES L | | | $0.00 | 64724 | 92003645 |
| 10 | 01/01/1900 | OTHER | Other - Misc. Documents | Unknown | ANDERST, JAMES L | | | $0.00 | 0 | 0 |
Payout Agreement
| No payout information available.. |