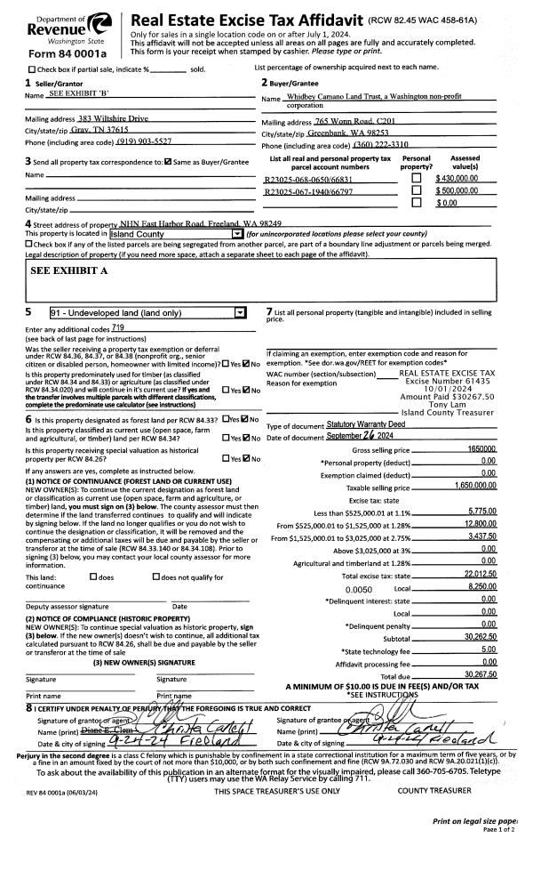
Property
Account |
| Property ID: | 66797 | Abbreviated Legal Description: | 16 - SE SW |
| Geographic ID: | R23025-067-1940 | Agent Code: | |
| Type: | Real | | |
| Tax Area: | 719 - APPRAISER-S Whid Schl Dist, outside Langley, vacant & 50 acres or less | Land Use Code | 91 |
| Open Space: | N | DFL | N |
| Historic Property: | N | Remodel Property: | N |
| Multi-Family Redevelopment: | N | | |
| Township: | 30 | Section: | 25 |
| Range: | R2 |
Location |
| Address: | | Mapsco: | |
| Neighborhood: | Cycle 3 | Map ID: | 412 |
| Neighborhood CD: | 3 |
Owner |
| Name: | WHIDBEY CAMANO LAND TRUST | Owner ID: | 265692 |
| Mailing Address: | 765 WONN RD BARN SUITE C201 GREENBANK, WA 98253 | % Ownership: | 100.0000000000% |
| | | Exemptions: | EX |
Taxes and Assessment Details
Values
| (+) Improvement Homesite Value: | + | $0 | |
| (+) Improvement Non-Homesite Value: | + | $0 | |
| (+) Land Homesite Value: | + | $0 | |
| (+) Land Non-Homesite Value: | + | $510,000 | |
| (+) Curr Use (HS): | + | $0 | $0 |
| (+) Curr Use (NHS): | + | $0 | $0 |
| | | -------------------------- | |
| (=) Market Value: | = | $510,000 | |
| (–) Productivity Loss: | – | $0 | |
| | | -------------------------- | |
| (=) Subtotal: | = | $510,000 | |
| (+) Senior Appraised Value: | + | $0 | |
| (+) Non-Senior Appraised Value: | + | $510,000 | |
| | | -------------------------- | |
| (=) Total Appraised Value: | = | $510,000 | |
| (–) Senior Exemption Loss: | – | $0 | |
| (–) Exemption Loss: | – | $510,000 | |
| | | -------------------------- | |
| (=) Taxable Value: | = | $0 | |
Taxing Jurisdiction
| Owner: | WHIDBEY CAMANO LAND TRUST | | |
| % Ownership: | 100.0000000000% | | |
| Total Value: | $510,000 | | |
| Tax Area: | 719 - APPRAISER-S Whid Schl Dist, outside Langley, vacant & 50 acres or less |
| CF | Conservation Futures | 0.0313996660 | $510,000 | $0 | $0.00 | | |
| HOBOND | Hospital BOND | 0.1893405597 | $510,000 | $0 | $0.00 | | |
| HOGEN | Hospital GEN | 0.3848777722 | $510,000 | $0 | $0.00 | | |
| CE | County Current Expense | 0.3674210519 | $510,000 | $0 | $0.00 | | |
| CR | County Roads | 0.4614296361 | $510,000 | $0 | $0.00 | | |
| ISLANDEMS | Hospital GEN (EMS) | 0.4952018576 | $510,000 | $0 | $0.00 | | |
| LIB | Library Sno-Isle GEN | 0.3039084203 | $510,000 | $0 | $0.00 | | |
| PORTWHID | Port of S Whidbey GEN | 0.1086004714 | $510,000 | $0 | $0.00 | | |
| SCH206BOND | School 206 BOND | 0.5960237832 | $510,000 | $0 | $0.00 | | |
| SCH206CAP | School 206 CP | 0.3066144020 | $510,000 | $0 | $0.00 | | |
| SCH206MO | School 206 Enrichment | 0.4808755445 | $510,000 | $0 | $0.00 | | |
| ST | State School | 1.4761226122 | $510,000 | $0 | $0.00 | | |
| ST2 | State School Part 2 | 0.7953803475 | $510,000 | $0 | $0.00 | | |
| SWHIDPRBD | P & R S Whidbey BOND | 0.0144185398 | $510,000 | $0 | $0.00 | | |
| SWHIDPRBD3 | P & R S Whidbey BOND3 | 0.1483535547 | $510,000 | $0 | $0.00 | | |
| SWHIDPRMT | P & R S Whidbey GEN | 0.4600000000 | $510,000 | $0 | $0.00 | | |
| | Total Tax Rate: | 6.6199682191 | | | | | |
| | | | | Taxes w/Current Exemptions: | $0.00 | | |
| | | | | Taxes w/o Exemptions: | $3,376.16 | | |
Improvement / Building
Sketch
| No sketches available for this property. |
Property Image
Land
| 1 | 37 | AC (31.00-+) | 0.0000 | 0.00 | 0.00 | 0.00 | 1.00 | $510,000 | $0 |
Roll Value History
| 2026 | N/A | N/A | N/A | N/A | N/A |
| 2025 | $0 | $510,000 | $0 | $510,000 | $0 |
| 2024 | $0 | $500,000 | $0 | $500,000 | $0 |
| 2023 | $0 | $450,000 | $0 | $450,000 | $450,000 |
| 2022 | $0 | $450,000 | $0 | $450,000 | $450,000 |
| 2021 | $0 | $450,000 | $0 | $450,000 | $450,000 |
| 2020 | $0 | $410,000 | $0 | $410,000 | $410,000 |
| 2019 | $0 | $350,000 | $0 | $350,000 | $350,000 |
| 2018 | $0 | $290,000 | $0 | $290,000 | $290,000 |
| 2017 | $0 | $290,000 | $0 | $290,000 | $290,000 |
| 2016 | $0 | $290,000 | $0 | $290,000 | $290,000 |
| 2015 | $0 | $290,000 | $0 | $290,000 | $290,000 |
| 2014 | $0 | $313,200 | $0 | $313,200 | $313,200 |
| 2013 | $0 | $313,200 | $0 | $313,200 | $313,200 |
| 2012 | $0 | $313,200 | $0 | $313,200 | $313,200 |
| 2011 | $0 | $313,200 | $0 | $313,200 | $313,200 |
| 2010 | $0 | $348,000 | $0 | $348,000 | $348,000 |
| 2009 | $0 | $360,000 | $0 | $360,000 | $360,000 |
| 2008 | $0 | $420,000 | $0 | $420,000 | $420,000 |
| 2007 | $0 | $420,000 | $0 | $420,000 | $420,000 |
Deed and Sales History
| 1 | 09/26/2024 | WD | Warranty Deed | CLEM, DIANE E | WHIDBEY CAMANO LAND TRUST | | | $1,650,000.00 | 61435 | 4577715 |
|   | |
| 2 | 09/26/2023 | PRD | Personal Representatives Deed | DAWLEY, DAVID ALBERT | CLEM, DIANE E | | | $0.00 | 58636 | 4567167 |
| 3 | 10/04/2023 | PRD | Personal Representatives Deed | DAWLEY ET AL, DAVID | CLEM, DIANE E | | | $0.00 | 58209 | 4565589 |
| 4 | 06/30/2005 | PRD | Personal Representatives Deed | THOMPSON, BRIGID E | THOMPSON, BRIGID E | | | $0.00 | 53553 | 4141799 |
| 5 | 06/30/2005 | PRD | Personal Representatives Deed | DAWLEY, DAVID A | THOMPSON, BRIGID E | | | $0.00 | 55352 | 4141800 |
| 6 | 12/01/1991 | WD | Warranty Deed | DAWLEY, DAVID A | DAWLEY, DAVID A | | | $9,000.00 | 14571 | 91019993 |
| 7 | 09/01/1989 | WD | Warranty Deed | DAWLEY, DAVID A | DAWLEY, DAVID A | | | $55,100.00 | 93900 | 89012928 |
| 8 | 09/01/1989 | QCD | Quit Claim Deed | CLARK, ELEANOR M | DAWLEY, DAVID A | | | $0.00 | 1060 | 90003544 |
| 9 | 12/01/1988 | QCD | Quit Claim Deed | CLARK, ELEANOR M | CLARK, ELEANOR M | | | $0.00 | 90167 | 89000559 |
| 10 | 09/01/1987 | QCD | Quit Claim Deed | CLARK, ELEANOR M | CLARK, ELEANOR M | | | $0.00 | 72852 | 87012737 |
| 11 | 01/01/1900 | OTHER | Other - Misc. Documents | Unknown | CLARK, ELEANOR M | | | $0.00 | 0 | 0 |
Payout Agreement
| No payout information available.. |