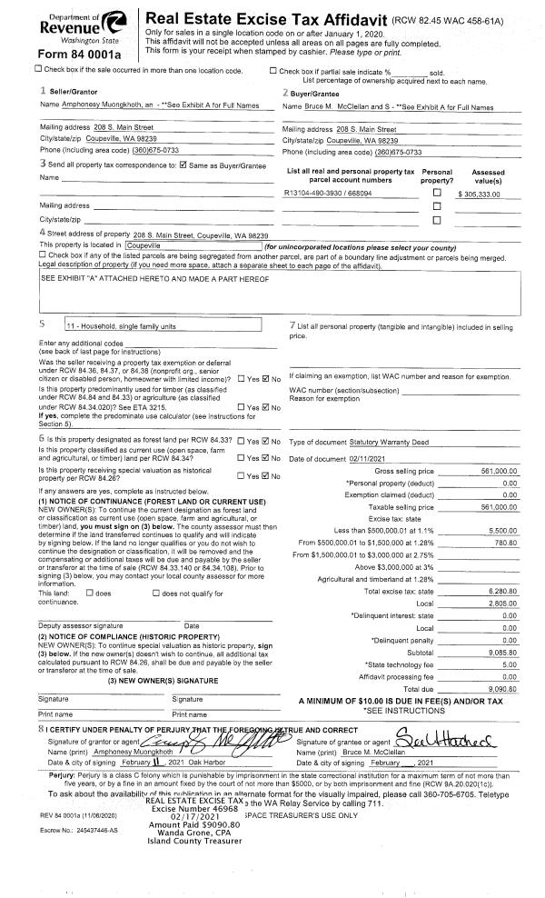
Property
Account |
| Property ID: | 668094 | Abbreviated Legal Description: | W110' OF FOLL DESC: PT ALEX DC: BG PT ELN ALEX DC LY 992.90'N OF NWCR J CROCKETT DC N173' W248' S172.86' S89*E248' TPB TGW EZ FR 480-3880 |
| Geographic ID: | R13104-490-3930 | Agent Code: | |
| Type: | Real | | |
| Tax Area: | 300 - APPRAISER-Cpvl Schl Dist, in Cpvl | Land Use Code | 11 |
| Open Space: | N | DFL | N |
| Historic Property: | N | Remodel Property: | N |
| Multi-Family Redevelopment: | N | | |
| Township: | 31 | Section: | 04 |
| Range: | R1 |
Location |
| Address: | 208 S MAIN ST COUPEVILLE, WA 98239 | Mapsco: | |
| Neighborhood: | Cycle 2 | Map ID: | 32 |
| Neighborhood CD: | 2 |
Owner |
| Name: | MCCLELLAN TTEE, BRUCE M | Owner ID: | 298138 |
| Mailing Address: | SUSAN K MCCLELLAN TTEE 208 S MAIN ST COUPEVILLE, WA 98239 | % Ownership: | 100.0000000000% |
| | | Exemptions: | |
Taxes and Assessment Details
Values
| (+) Improvement Homesite Value: | + | $0 | |
| (+) Improvement Non-Homesite Value: | + | $394,171 | |
| (+) Land Homesite Value: | + | $0 | |
| (+) Land Non-Homesite Value: | + | $217,273 | |
| (+) Curr Use (HS): | + | $0 | $0 |
| (+) Curr Use (NHS): | + | $0 | $0 |
| | | -------------------------- | |
| (=) Market Value: | = | $611,444 | |
| (–) Productivity Loss: | – | $0 | |
| | | -------------------------- | |
| (=) Subtotal: | = | $611,444 | |
| (+) Senior Appraised Value: | + | $0 | |
| (+) Non-Senior Appraised Value: | + | $611,444 | |
| | | -------------------------- | |
| (=) Total Appraised Value: | = | $611,444 | |
| (–) Senior Exemption Loss: | – | $0 | |
| (–) Exemption Loss: | – | $0 | |
| | | -------------------------- | |
| (=) Taxable Value: | = | $611,444 | |
Taxing Jurisdiction
| Owner: | MCCLELLAN TTEE, BRUCE M | | |
| % Ownership: | 100.0000000000% | | |
| Total Value: | $611,444 | | |
| Tax Area: | 300 - APPRAISER-Cpvl Schl Dist, in Cpvl |
| CF | Conservation Futures | 0.0313996660 | $611,444 | $611,444 | $19.20 | | |
| CEM2 | Cemetery #2 | 0.0092609791 | $611,444 | $611,444 | $5.66 | | |
| COUP | City: Town of Coupeville | 0.8188663519 | $611,444 | $611,444 | $500.69 | | |
| FIRE5 | Fire & Rescue Dist #5 C Whidbey GEN | 1.1892169230 | $611,444 | $611,444 | $727.14 | | |
| FIRE5BOND | Fire & Rescue Dist #5 C Whidbey BOND | 0.1394359503 | $611,444 | $611,444 | $85.26 | | |
| HOBOND | Hospital BOND | 0.1893405597 | $611,444 | $611,444 | $115.77 | | |
| HOGEN | Hospital GEN | 0.3848777722 | $611,444 | $611,444 | $235.33 | | |
| CE | County Current Expense | 0.3674210519 | $611,444 | $611,444 | $224.66 | | |
| ISLANDEMS | Hospital GEN (EMS) | 0.4952018576 | $611,444 | $611,444 | $302.79 | | |
| LIB | Library Sno-Isle GEN | 0.3039084203 | $611,444 | $611,444 | $185.82 | | |
| LIBCAP | Library Sno-Isle BOND (Cap Fac Imp Area) | 0.0528562629 | $611,444 | $611,444 | $32.32 | | |
| POCOUP | Port of Coupeville GEN | 0.1065226063 | $611,444 | $611,444 | $65.13 | | |
| POCOUPIDD | Port of Coupeville IDD | 0.3353038577 | $611,444 | $611,444 | $205.02 | | |
| COUPSDTECH | School 204 CP (TECH) | 0.1215123397 | $611,444 | $611,444 | $74.30 | | |
| SCH204MO | School 204 Enrichment | 0.6416662518 | $611,444 | $611,444 | $392.34 | | |
| ST | State School | 1.4761226122 | $611,444 | $611,444 | $902.57 | | |
| ST2 | State School Part 2 | 0.7953803475 | $611,444 | $611,444 | $486.33 | | |
| | Total Tax Rate: | 7.4582938101 | | | | | |
| | | | | Taxes w/Current Exemptions: | $4,560.33 | | |
| | | | | Taxes w/o Exemptions: | $4,560.33 | | |
Improvement / Building
| Improvement #1: | RESIDENTIAL | State Code: | Y | 1628.0 sqft | Value: | $394,171 |
| Bathrooms: | 2.75 | Bedrooms: | 2 | | Ceiling: | DRYWALL PAINTED | Exterior Wall/Cover: | WOOD SIDING | | Floor Covering: | VINYL 100% | Floor Structure: | WOOD W/SUBFLOOR | | Foundation: | CONCRETE | Heating: | WALL HEAT ELECTRIC | | Interior Finish: | DRYWALL PAINT | Plumbing Fixture Cnt: | 12 | | Roof Slope: | 12" IN 12" | Roof Structure/Cover: | CJ ASPHALT |
|
| | Type | Description | Class CD | Sub Class CD | Year Built | Area |
| | BAS | BASE/MAIN FLOOR | 4 | 0 | 1893 | 998.0 |
| | OP4 | OPEN PORCH W/CEILING-ROOF | 4 | 0 | 1893 | 98.0 |
| | OP4 | OPEN PORCH W/CEILING-ROOF | 4 | 0 | 1893 | 56.0 |
| | UPS | UPPER STORY | 4 | 0 | 1893 | 630.0 |
| | OWP | OPEN WOOD PORCH W/STEPS | 4 | 0 | 1893 | 48.0 |
| | DGR | DETACHED GARAGE | 4 | 0 | 1893 | 535.0 |
Sketch
Property Image
Land
| 1 | HS | HOMESITE | 0.4400 | 19166.40 | 0.00 | 0.00 | 1.00 | $217,273 | $0 |
Roll Value History
| 2026 | N/A | N/A | N/A | N/A | N/A |
| 2025 | $394,171 | $217,273 | $0 | $611,444 | $611,444 |
| 2024 | $408,246 | $200,000 | $0 | $608,246 | $608,246 |
| 2023 | $413,209 | $200,000 | $0 | $613,209 | $613,209 |
| 2022 | $378,652 | $200,000 | $0 | $578,652 | $578,652 |
| 2021 | $333,172 | $150,000 | $0 | $483,172 | $483,172 |
| 2020 | $175,333 | $130,000 | $0 | $305,333 | $305,333 |
| 2019 | $86,758 | $170,000 | $0 | $256,758 | $256,758 |
| 2018 | $105,256 | $150,000 | $0 | $255,256 | $255,256 |
| 2017 | $106,319 | $130,000 | $0 | $236,319 | $236,319 |
| 2016 | $108,449 | $120,000 | $0 | $228,449 | $228,449 |
| 2015 | $110,576 | $89,250 | $0 | $199,826 | $199,826 |
| 2014 | $112,708 | $89,250 | $0 | $201,958 | $201,958 |
| 2013 | $114,835 | $89,250 | $0 | $204,085 | $204,085 |
| 2012 | $117,608 | $89,250 | $0 | $206,858 | $206,858 |
| 2011 | $119,738 | $105,000 | $0 | $224,738 | $224,738 |
| 2010 | $134,756 | $105,000 | $0 | $239,756 | $239,756 |
| 2009 | $138,886 | $125,000 | $0 | $263,886 | $263,886 |
| 2008 | $141,305 | $134,000 | $0 | $275,305 | $275,305 |
| 2007 | $143,963 | $105,000 | $0 | $248,963 | $248,963 |
Deed and Sales History
| 1 | 02/11/2021 | WD | Warranty Deed | MUONGKHOTH, AMPHONESY | MCCLELLAN TTEE, BRUCE M | | | $561,000.00 | 46968 | 4511130 |
| 2 | 05/02/2019 | QCD | Quit Claim Deed | MUONGKHOTH, AMPHONESY | MUONGKHOTH, AMPHONESY | | | $0.00 | 38532 | 4463485 |
| 3 | 07/31/2017 | SPWARDEED | Special Warranty Deed | FEDERAL HOME LOAN MORTGAGE CORPORATION | MUONGKHOTH, AMPHONESY | | | $175,000.00 | 30510 | 4427608 |
| 4 | 04/25/2017 | SHERIFFD | Sheriff Deed | MCPHERSON, MOLLY M | FEDERAL HOME LOAN MORTGAGE CORPORATION | | | $0.00 | 29297 | 4422577 |
| 5 | 02/03/2005 | 5 | DNU - Marriage License/Name Change | MCPHERSON, MOLLY M | MCPHERSON, MOLLY M | | | $0.00 | 50707 | 4126600 |
| 6 | 09/15/1999 | WD | Warranty Deed | YOUNGER, STEPHEN F | MCPHERSON, MOLLY M | | | $148,600.00 | 93873 | 99021651 |
| 7 | 07/09/1998 | WD | Warranty Deed | WILLIAMS, PEGGY A | YOUNGER, STEPHEN F | | | $71,853.00 | 82969 | 98015569 |
| 8 | 11/01/1993 | WD | Warranty Deed | WILLIAMS, PEGGY A | WILLIAMS, PEGGY A | | | $0.00 | 34551 | 93023718 |
| 9 | 11/01/1993 | WD | Warranty Deed | WILLIAMS, PEGGY A | WILLIAMS, PEGGY A | | | $0.00 | 34552 | 93023719 |
| 10 | 11/01/1993 | WD | Warranty Deed | WILLIAMS, PEGGY A | WILLIAMS, PEGGY A | | | $0.00 | 34553 | 93023720 |
| 11 | 04/01/1992 | OTHER | Other - Misc. Documents | BENNETT, ALBERTA | WILLIAMS, PEGGY A | | | $0.00 | 64769 | 92005574 |
| 12 | 07/01/1965 | EXECUTORD | Executor Deed | NICHOLS, VICTOR I | BENNETT, ALBERTA | | | $8,600.00 | 19110 | 0 |
| 13 | 01/01/1900 | OTHER | Other - Misc. Documents | Unknown | NICHOLS, VICTOR I | | | $0.00 | 0 | 0 |
Payout Agreement
| No payout information available.. |