Property
Account |
| Property ID: | 669182 | Abbreviated Legal Description: | CAMANO HILLS #1 - PRD LOT 18 |
| Geographic ID: | S6263-00-00018-0 | Agent Code: | |
| Type: | Real | | |
| Tax Area: | 512 - APPRAISER-Stan/Cam Schl Dist, improved, greater than 1 acre | Land Use Code | 11 |
| Open Space: | N | DFL | N |
| Historic Property: | N | Remodel Property: | N |
| Multi-Family Redevelopment: | N | | |
| Township: | | Section: | |
| Range: | |
Location |
| Address: | 127 GLACIER PEAK DR CAMANO ISLAND, WA 98282 | Mapsco: | |
| Neighborhood: | Cycle 5 | Map ID: | 452 |
| Neighborhood CD: | 5 |
Owner |
| Name: | BRUNELLI, SUSAN A | Owner ID: | 316355 |
| Mailing Address: | WILLIAM J BRUNELLI 127 GLACIER PEAK DR CAMANO ISLAND, WA 98282 | % Ownership: | 100.0000000000% |
| | | Exemptions: | |
Taxes and Assessment Details
Values
| (+) Improvement Homesite Value: | + | $0 | |
| (+) Improvement Non-Homesite Value: | + | $734,885 | |
| (+) Land Homesite Value: | + | $0 | |
| (+) Land Non-Homesite Value: | + | $345,000 | |
| (+) Curr Use (HS): | + | $0 | $0 |
| (+) Curr Use (NHS): | + | $0 | $0 |
| | | -------------------------- | |
| (=) Market Value: | = | $1,079,885 | |
| (–) Productivity Loss: | – | $0 | |
| | | -------------------------- | |
| (=) Subtotal: | = | $1,079,885 | |
| (+) Senior Appraised Value: | + | $0 | |
| (+) Non-Senior Appraised Value: | + | $1,079,885 | |
| | | -------------------------- | |
| (=) Total Appraised Value: | = | $1,079,885 | |
| (–) Senior Exemption Loss: | – | $0 | |
| (–) Exemption Loss: | – | $0 | |
| | | -------------------------- | |
| (=) Taxable Value: | = | $1,079,885 | |
Taxing Jurisdiction
| Owner: | BRUNELLI, SUSAN A | | |
| % Ownership: | 100.0000000000% | | |
| Total Value: | $1,079,885 | | |
| Tax Area: | 512 - APPRAISER-Stan/Cam Schl Dist, improved, greater than 1 acre |
| CF | Conservation Futures | 0.0313996660 | $1,079,885 | $1,079,885 | $33.91 | | |
| EMS1 | Fire & Rescue Dist #1 Camano GEN (EMS) | 0.4998471806 | $1,079,885 | $1,079,885 | $539.78 | | |
| FIRE1 | Fire & Rescue Dist #1 Camano GEN | 1.2496603404 | $1,079,885 | $1,079,885 | $1,349.49 | | |
| FIRE1BOND | Fire & Rescue Dist #1 Camano BOND | 0.1630371212 | $1,079,885 | $1,079,885 | $176.06 | | |
| CE | County Current Expense | 0.3674210519 | $1,079,885 | $1,079,885 | $396.77 | | |
| CR | County Roads | 0.4614296361 | $1,079,885 | $1,079,885 | $498.29 | | |
| LIB | Library Sno-Isle GEN | 0.3039084203 | $1,079,885 | $1,079,885 | $328.19 | | |
| SCH205_401 | School 205-401 Enrichment | 1.3697998934 | $1,079,885 | $1,079,885 | $1,479.23 | | |
| SCH205BOND | School 205-401 BOND | 0.9354199323 | $1,079,885 | $1,079,885 | $1,010.15 | | |
| ST | State School | 1.4761226122 | $1,079,885 | $1,079,885 | $1,594.04 | | |
| ST2 | State School Part 2 | 0.7953803475 | $1,079,885 | $1,079,885 | $858.92 | | |
| | Total Tax Rate: | 7.6534262019 | | | | | |
| | | | | Taxes w/Current Exemptions: | $8,264.83 | | |
| | | | | Taxes w/o Exemptions: | $8,264.83 | | |
Improvement / Building
| Improvement #1: | RESIDENTIAL | State Code: | Y | 4537.4 sqft | Value: | $734,885 |
| Bathrooms: | 3.5 | Bedrooms: | 4 | | Ceiling: | DRYWALL PAINTED | Exterior Wall/Cover: | STUCCO | | Floor Covering: | HARDWOOD/CARP 60-40 | Floor Structure: | WOOD W/SUBFLOOR | | Foundation: | CONCRETE | Heating: | FHA GAS | | Interior Finish: | DRYWALL PAINT | Plumbing Fixture Cnt: | 18 | | Roof Slope: | 4" IN 12" | Roof Structure/Cover: | CJ ASPHALT |
|
| | Type | Description | Class CD | Sub Class CD | Year Built | Area |
| | BAS | BASE/MAIN FLOOR | 4 | 0 | 1997 | 2973.9 |
| | OP4 | OPEN PORCH W/CEILING-ROOF | 4 | 0 | 1997 | 110.0 |
| | AGR | ATTACHED GARAGE | 4 | 0 | 1997 | 925.3 |
| | OWP | OPEN WOOD PORCH W/STEPS | 4 | 0 | 1997 | 463.4 |
| | DWN | DOWNSTAIRS LIVING AREA | 4 | 0 | 1997 | 1563.5 |
Sketch
Property Image
Land
| 1 | 17 | AC (01.01-02.00) | 1.0700 | 46609.20 | 0.00 | 0.00 | 1.00 | $345,000 | $0 |
Roll Value History
| 2026 | N/A | N/A | N/A | N/A | N/A |
| 2025 | $734,885 | $345,000 | $0 | $1,079,885 | $1,079,885 |
| 2024 | $734,885 | $340,000 | $0 | $1,074,885 | $1,074,885 |
| 2023 | $743,306 | $340,000 | $0 | $1,083,306 | $1,083,306 |
| 2022 | $602,046 | $320,000 | $0 | $922,046 | $922,046 |
| 2021 | $495,400 | $210,000 | $0 | $705,400 | $705,400 |
| 2020 | $484,348 | $200,000 | $0 | $684,348 | $684,348 |
| 2019 | $407,204 | $230,000 | $0 | $637,204 | $637,204 |
| 2018 | $408,426 | $210,000 | $0 | $618,426 | $618,426 |
| 2017 | $410,671 | $200,000 | $0 | $610,671 | $610,671 |
| 2016 | $415,561 | $150,000 | $0 | $565,561 | $565,561 |
| 2015 | $426,228 | $140,000 | $0 | $566,228 | $566,228 |
| 2014 | $431,490 | $140,000 | $0 | $571,490 | $571,490 |
| 2013 | $436,752 | $140,000 | $0 | $576,752 | $576,752 |
| 2012 | $442,014 | $140,000 | $0 | $582,014 | $582,014 |
| 2011 | $447,278 | $175,000 | $0 | $622,278 | $622,278 |
| 2010 | $475,228 | $175,000 | $0 | $650,228 | $650,228 |
| 2009 | $522,164 | $205,000 | $0 | $727,164 | $727,164 |
| 2008 | $522,432 | $215,000 | $0 | $737,432 | $737,432 |
| 2007 | $480,560 | $180,480 | $0 | $661,040 | $661,040 |
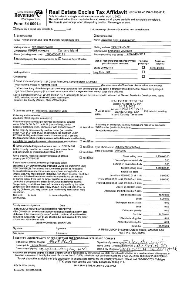
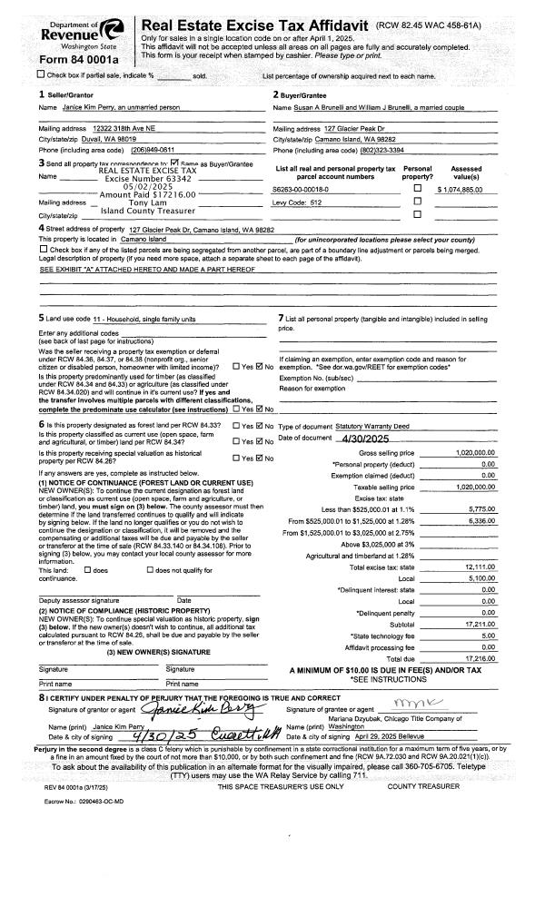
Deed and Sales History
| 1 | 04/30/2025 | WD | Warranty Deed | PERRY, JANICE KIM | BRUNELLI, SUSAN A | | | $1,020,000.00 | 63342 | 4585272 |
| 2 | 04/14/2022 | WD | Warranty Deed | BURKART, HERBERT | PERRY, JANICE KIM | | | $1,250,000.00 | 52864 | 4544162 |
| 3 | 02/22/1999 | WD | Warranty Deed | BURKART, HERBERT | BURKART, HERBERT | | | $0.00 | 746 | 20003823 |
| 4 | 02/22/1999 | WD | Warranty Deed | BEVAN, DAVID K | BURKART, HERBERT | | | $380,000.00 | 90701 | 99005176 |
| 5 | 05/01/1997 | WD | Warranty Deed | RUTHERFORD, SCOTT/ELIZABETH | BEVAN, DAVID K | | | $90,000.00 | 71478 | 97006779 |
| 6 | 12/01/1994 | WD | Warranty Deed | HOLBECK, LIMITED P | RUTHERFORD, SCOTT/ELIZABETH | | | $83,500.00 | 45043 | 94025711 |
| 7 | 01/01/1900 | OTHER | Other - Misc. Documents | Unknown | HOLBECK, LIMITED P | | | $0.00 | 4475 | 90014757 |
Payout Agreement
| No payout information available.. |