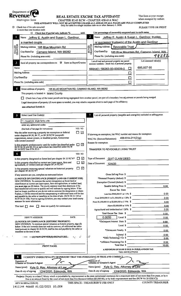
Property
Account |
| Property ID: | 669440 | Abbreviated Legal Description: | CAMANO HILLS #1 - PRD LOT 39 |
| Geographic ID: | S6263-00-00039-0 | Agent Code: | |
| Type: | Real | | |
| Tax Area: | 510 - APPRAISER-Stan/Cam Schl Dist, improved & 1 acre or less | Land Use Code | 11 |
| Open Space: | N | DFL | N |
| Historic Property: | N | Remodel Property: | N |
| Multi-Family Redevelopment: | N | | |
| Township: | | Section: | |
| Range: | |
Location |
| Address: | 185 BLUE MOUNTAIN RD CAMANO ISLAND, WA 98282 | Mapsco: | |
| Neighborhood: | Cycle 5 | Map ID: | 452 |
| Neighborhood CD: | 5 |
Owner |
| Name: | AUSTIN TTEE, JEFFREY E | Owner ID: | 297830 |
| Mailing Address: | SUSAN L GARDINOR TTEE 185 BLUE MOUNTAIN RD CAMANO ISLAND, WA 98282 | % Ownership: | 100.0000000000% |
| | | Exemptions: | |
Taxes and Assessment Details
Values
| (+) Improvement Homesite Value: | + | $0 | |
| (+) Improvement Non-Homesite Value: | + | $598,992 | |
| (+) Land Homesite Value: | + | $0 | |
| (+) Land Non-Homesite Value: | + | $465,000 | |
| (+) Curr Use (HS): | + | $0 | $0 |
| (+) Curr Use (NHS): | + | $0 | $0 |
| | | -------------------------- | |
| (=) Market Value: | = | $1,063,992 | |
| (–) Productivity Loss: | – | $0 | |
| | | -------------------------- | |
| (=) Subtotal: | = | $1,063,992 | |
| (+) Senior Appraised Value: | + | $0 | |
| (+) Non-Senior Appraised Value: | + | $1,063,992 | |
| | | -------------------------- | |
| (=) Total Appraised Value: | = | $1,063,992 | |
| (–) Senior Exemption Loss: | – | $0 | |
| (–) Exemption Loss: | – | $0 | |
| | | -------------------------- | |
| (=) Taxable Value: | = | $1,063,992 | |
Taxing Jurisdiction
| Owner: | AUSTIN TTEE, JEFFREY E | | |
| % Ownership: | 100.0000000000% | | |
| Total Value: | $1,063,992 | | |
| Tax Area: | 510 - APPRAISER-Stan/Cam Schl Dist, improved & 1 acre or less |
| CF | Conservation Futures | 0.0313996660 | $1,063,992 | $1,063,992 | $33.41 | | |
| EMS1 | Fire & Rescue Dist #1 Camano GEN (EMS) | 0.4998471806 | $1,063,992 | $1,063,992 | $531.83 | | |
| FIRE1 | Fire & Rescue Dist #1 Camano GEN | 1.2496603404 | $1,063,992 | $1,063,992 | $1,329.63 | | |
| FIRE1BOND | Fire & Rescue Dist #1 Camano BOND | 0.1630371212 | $1,063,992 | $1,063,992 | $173.47 | | |
| CE | County Current Expense | 0.3674210519 | $1,063,992 | $1,063,992 | $390.93 | | |
| CR | County Roads | 0.4614296361 | $1,063,992 | $1,063,992 | $490.96 | | |
| LIB | Library Sno-Isle GEN | 0.3039084203 | $1,063,992 | $1,063,992 | $323.36 | | |
| SCH205_401 | School 205-401 Enrichment | 1.3697998934 | $1,063,992 | $1,063,992 | $1,457.46 | | |
| SCH205BOND | School 205-401 BOND | 0.9354199323 | $1,063,992 | $1,063,992 | $995.28 | | |
| ST | State School | 1.4761226122 | $1,063,992 | $1,063,992 | $1,570.58 | | |
| ST2 | State School Part 2 | 0.7953803475 | $1,063,992 | $1,063,992 | $846.28 | | |
| | Total Tax Rate: | 7.6534262019 | | | | | |
| | | | | Taxes w/Current Exemptions: | $8,143.19 | | |
| | | | | Taxes w/o Exemptions: | $8,143.19 | | |
Improvement / Building
| Improvement #1: | RESIDENTIAL | State Code: | Y | 3354.3 sqft | Value: | $598,992 |
| Bathrooms: | 2.5 | Bedrooms: | 4 | | Ceiling: | DRYWALL PAINTED | Cooling: | HEAT PUMP/CONV/V | | Exterior Wall/Cover: | CEMENT FIBER | Floor Covering: | HARDWOOD/CARP 20-80 | | Floor Structure: | WOOD W/SUBFLOOR | Foundation: | CONCRETE | | Interior Finish: | DRYWALL PAINT | Plumbing Fixture Cnt: | 14 | | Roof Slope: | 8" IN 12" | Roof Structure/Cover: | CJ ASPHALT |
|
| | Type | Description | Class CD | Sub Class CD | Year Built | Area |
| | BAS | BASE/MAIN FLOOR | 4 | 0 | 2004 | 1743.5 |
| | OP4 | OPEN PORCH W/CEILING-ROOF | 4 | 0 | 2004 | 26.4 |
| | AGR | ATTACHED GARAGE | 4 | 0 | 2004 | 906.5 |
| | OWP | OPEN WOOD PORCH W/STEPS | 4 | 0 | 2004 | 263.4 |
| | OWP | OPEN WOOD PORCH W/STEPS | 4 | 0 | 2004 | 281.6 |
| | DWN | DOWNSTAIRS LIVING AREA | 4 | 0 | 2004 | 1610.8 |
Sketch
Property Image
Land
| 1 | 16 | AC (00.51-01.00) | 0.5178 | 22555.37 | 0.00 | 0.00 | 1.00 | $465,000 | $0 |
Roll Value History
| 2026 | N/A | N/A | N/A | N/A | N/A |
| 2025 | $598,992 | $465,000 | $0 | $1,063,992 | $1,063,992 |
| 2024 | $606,017 | $460,000 | $0 | $1,066,017 | $1,066,017 |
| 2023 | $613,044 | $400,000 | $0 | $1,013,044 | $1,013,044 |
| 2022 | $561,477 | $365,000 | $0 | $926,477 | $926,477 |
| 2021 | $466,118 | $260,000 | $0 | $726,118 | $726,118 |
| 2020 | $455,037 | $240,000 | $0 | $695,037 | $695,037 |
| 2019 | $365,120 | $300,000 | $0 | $665,120 | $665,120 |
| 2018 | $424,339 | $250,000 | $0 | $674,339 | $674,339 |
| 2017 | $426,665 | $200,000 | $0 | $626,665 | $626,665 |
| 2016 | $431,569 | $150,000 | $0 | $581,569 | $581,569 |
| 2015 | $440,259 | $140,000 | $0 | $580,259 | $580,259 |
| 2014 | $445,262 | $140,000 | $0 | $585,262 | $585,262 |
| 2013 | $450,265 | $140,000 | $0 | $590,265 | $590,265 |
| 2012 | $455,268 | $140,000 | $0 | $595,268 | $595,268 |
| 2011 | $460,270 | $175,000 | $0 | $635,270 | $635,270 |
| 2010 | $471,063 | $175,000 | $0 | $646,063 | $646,063 |
| 2009 | $485,560 | $205,000 | $0 | $690,560 | $690,560 |
| 2008 | $485,954 | $215,000 | $0 | $700,954 | $700,954 |
| 2007 | $491,264 | $180,480 | $0 | $671,744 | $671,744 |
Deed and Sales History
| 1 | 12/04/2020 | QCD | Quit Claim Deed | AUSTIN, JEFFREY E | AUSTIN TTEE, JEFFREY E | | | $0.00 | 46668 | 4508838 |
| 2 | 09/15/2020 | QCD | Quit Claim Deed | AUSTIN TTEE, JEFFREY E | AUSTIN, JEFFREY E | | | $0.00 | 44945 | 4497866 |
| 3 | 01/07/2019 | WD | Warranty Deed | FRALEY CO-TRUSTEE, JEAN W | AUSTIN TTEE, JEFFREY E | | | $675,000.00 | 37280 | 4457767 |
| 4 | 05/12/2016 | TRUSTEED | Trustee's Deed | FRALEY, JEAN W | FRALEY CO-TRUSTEE, JEAN W | | | $0.00 | 24331 | 4399404 |
| 5 | 04/28/2010 | WD | Warranty Deed | BARTLE, ERIC | FRALEY, JEAN W | | | $600,000.00 | 1038 | 4273114 |
| 6 | 04/10/2003 | WD | Warranty Deed | DALE, ELAINE J | BARTLE, ERIC | | | $120,000.00 | 31544 | 4055155 |
| 7 | 02/15/2000 | WD | Warranty Deed | HOLBECK LIMITED PARTNERSHIP, | DALE, ELAINE J | | | $79,900.00 | 678 | 20003535 |
| 8 | 01/01/1900 | OTHER | Other - Misc. Documents | Unknown | HOLBECK, LIMITED P | | | $0.00 | 4475 | 90014757 |
Payout Agreement
| No payout information available.. |