Property
Account |
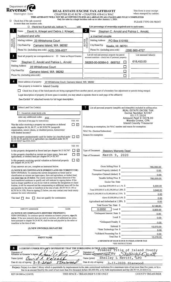
| Property ID: | 669752 | Abbreviated Legal Description: | CAMANO HILLS #1 - PRD LOT 64 |
| Geographic ID: | S6263-00-00064-0 | Agent Code: | |
| Type: | Real | | |
| Tax Area: | 512 - APPRAISER-Stan/Cam Schl Dist, improved, greater than 1 acre | Land Use Code | 11 |
| Open Space: | N | DFL | N |
| Historic Property: | N | Remodel Property: | N |
| Multi-Family Redevelopment: | N | | |
| Township: | | Section: | |
| Range: | |
Location |
| Address: | 23 WHITEHORSE CT CAMANO ISLAND, WA 98282 | Mapsco: | |
| Neighborhood: | Cycle 5 | Map ID: | 452 |
| Neighborhood CD: | 5 |
Owner |
| Name: | NELSON, CATHY DENISE | Owner ID: | 316016 |
| Mailing Address: | JOHN ELLIOT RUTTER, III 23 S WHITEHORSE COURT CAMANO ISLAND, WA 98282 | % Ownership: | 100.0000000000% |
| | | Exemptions: | |
Taxes and Assessment Details
Values
| (+) Improvement Homesite Value: | + | $0 | |
| (+) Improvement Non-Homesite Value: | + | $682,204 | |
| (+) Land Homesite Value: | + | $0 | |
| (+) Land Non-Homesite Value: | + | $465,000 | |
| (+) Curr Use (HS): | + | $0 | $0 |
| (+) Curr Use (NHS): | + | $0 | $0 |
| | | -------------------------- | |
| (=) Market Value: | = | $1,147,204 | |
| (–) Productivity Loss: | – | $0 | |
| | | -------------------------- | |
| (=) Subtotal: | = | $1,147,204 | |
| (+) Senior Appraised Value: | + | $0 | |
| (+) Non-Senior Appraised Value: | + | $1,147,204 | |
| | | -------------------------- | |
| (=) Total Appraised Value: | = | $1,147,204 | |
| (–) Senior Exemption Loss: | – | $0 | |
| (–) Exemption Loss: | – | $0 | |
| | | -------------------------- | |
| (=) Taxable Value: | = | $1,147,204 | |
Taxing Jurisdiction
| Owner: | NELSON, CATHY DENISE | | |
| % Ownership: | 100.0000000000% | | |
| Total Value: | $1,147,204 | | |
| Tax Area: | 512 - APPRAISER-Stan/Cam Schl Dist, improved, greater than 1 acre |
| CF | Conservation Futures | 0.0313996660 | $1,147,204 | $1,147,204 | $36.02 | | |
| EMS1 | Fire & Rescue Dist #1 Camano GEN (EMS) | 0.4998471806 | $1,147,204 | $1,147,204 | $573.43 | | |
| FIRE1 | Fire & Rescue Dist #1 Camano GEN | 1.2496603404 | $1,147,204 | $1,147,204 | $1,433.62 | | |
| FIRE1BOND | Fire & Rescue Dist #1 Camano BOND | 0.1630371212 | $1,147,204 | $1,147,204 | $187.04 | | |
| CE | County Current Expense | 0.3674210519 | $1,147,204 | $1,147,204 | $421.51 | | |
| CR | County Roads | 0.4614296361 | $1,147,204 | $1,147,204 | $529.35 | | |
| LIB | Library Sno-Isle GEN | 0.3039084203 | $1,147,204 | $1,147,204 | $348.64 | | |
| SCH205_401 | School 205-401 Enrichment | 1.3697998934 | $1,147,204 | $1,147,204 | $1,571.44 | | |
| SCH205BOND | School 205-401 BOND | 0.9354199323 | $1,147,204 | $1,147,204 | $1,073.12 | | |
| ST | State School | 1.4761226122 | $1,147,204 | $1,147,204 | $1,693.41 | | |
| ST2 | State School Part 2 | 0.7953803475 | $1,147,204 | $1,147,204 | $912.46 | | |
| | Total Tax Rate: | 7.6534262019 | | | | | |
| | | | | Taxes w/Current Exemptions: | $8,780.04 | | |
| | | | | Taxes w/o Exemptions: | $8,780.04 | | |
Improvement / Building
| Improvement #1: | RESIDENTIAL | State Code: | Y | 2558.0 sqft | Value: | $682,204 |
| Bathrooms: | 3 | Bedrooms: | 3 | | Ceiling: | DRYWALL PAINTED | Cooling: | HEAT PUMP/CONV/V | | Exterior Wall/Cover: | CEMENT FIBER | Floor Covering: | HARDWOOD 100% | | Floor Structure: | WOOD W/SUBFLOOR | Foundation: | CONCRETE | | Interior Finish: | DRYWALL PAINT | Plumbing Fixture Cnt: | 15 | | Roof Slope: | 5" IN 12" | Roof Structure/Cover: | CJ ASPHALT |
|
| | Type | Description | Class CD | Sub Class CD | Year Built | Area |
| | BAS | BASE/MAIN FLOOR | 5 | 0 | 1996 | 2558.0 |
| | OP4 | OPEN PORCH W/CEILING-ROOF | 5 | 0 | 1996 | 84.0 |
| | AGR | ATTACHED GARAGE | 5 | 0 | 1996 | 920.0 |
| | OWP | OPEN WOOD PORCH W/STEPS | 5 | 0 | 1996 | 472.0 |
Sketch
Property Image
Land
| 1 | 17 | AC (01.01-02.00) | 0.0000 | 0.00 | 0.00 | 0.00 | 1.00 | $465,000 | $0 |
Roll Value History
| 2026 | N/A | N/A | N/A | N/A | N/A |
| 2025 | $682,204 | $465,000 | $0 | $1,147,204 | $1,147,204 |
| 2024 | $690,023 | $460,000 | $0 | $1,150,023 | $1,150,023 |
| 2023 | $697,842 | $400,000 | $0 | $1,097,842 | $1,097,842 |
| 2022 | $637,220 | $365,000 | $0 | $1,002,220 | $1,002,220 |
| 2021 | $559,027 | $260,000 | $0 | $819,027 | $819,027 |
| 2020 | $423,644 | $240,000 | $0 | $663,644 | $663,644 |
| 2019 | $318,453 | $300,000 | $0 | $618,453 | $618,453 |
| 2018 | $319,432 | $250,000 | $0 | $569,432 | $569,432 |
| 2017 | $321,391 | $200,000 | $0 | $521,391 | $521,391 |
| 2016 | $325,311 | $150,000 | $0 | $475,311 | $475,311 |
| 2015 | $318,419 | $140,000 | $0 | $458,419 | $458,419 |
| 2014 | $322,269 | $140,000 | $0 | $462,269 | $462,269 |
| 2013 | $326,117 | $140,000 | $0 | $466,117 | $466,117 |
| 2012 | $329,966 | $140,000 | $0 | $469,966 | $469,966 |
| 2011 | $333,815 | $175,000 | $0 | $508,815 | $508,815 |
| 2010 | $351,858 | $175,000 | $0 | $526,858 | $526,858 |
| 2009 | $363,537 | $205,000 | $0 | $568,537 | $568,537 |
| 2008 | $379,354 | $215,000 | $0 | $594,354 | $594,354 |
| 2007 | $385,009 | $180,480 | $0 | $565,489 | $565,489 |
Deed and Sales History
| 1 | 03/24/2025 | WD | Warranty Deed | ARNOLD, STEPHEN C | NELSON, CATHY DENISE | | | $1,395,000.00 | 63002 | 4583961 |
| 2 | 03/09/2020 | WD | Warranty Deed | KRIEGEL, DAVID A / DEBRA J | ARNOLD, STEPHEN C | | | $785,000.00 | 42397 | 4483112 |
| 3 | 06/01/1996 | WD | Warranty Deed | BEVAN, DAVID K | KRIEGEL, DAVID A | | | $309,000.00 | 62367 | 96011712 |
| 4 | 02/01/1994 | WD | Warranty Deed | HOLBECK, LIMITED P | BEVAN, DAVID K | | | $86,900.00 | 60386 | 96002070 |
| 5 | 01/01/1900 | OTHER | Other - Misc. Documents | Unknown | HOLBECK, LIMITED P | | | $0.00 | 4475 | 90014757 |
Payout Agreement
| No payout information available.. |