Property
Account |
| Property ID: | 673925 | Abbreviated Legal Description: | LOT 1 SP 15-90.32929.047-3890, 095-4110 & 035-3990 V2 SP P368-9 AF#92012012 |
| Geographic ID: | R32929-063-3390 | Agent Code: | |
| Type: | Real | | |
| Tax Area: | 712 - APPRAISER-S Whid Schl Dist, outside Langley, improved, greater than 1 acre | Land Use Code | 11 |
| Open Space: | N | DFL | N |
| Historic Property: | N | Remodel Property: | N |
| Multi-Family Redevelopment: | N | | |
| Township: | 29 | Section: | 29 |
| Range: | R3 |
Location |
| Address: | 3077 TWILIGHT LN CLINTON, WA 98236 | Mapsco: | |
| Neighborhood: | Cycle 4 | Map ID: | 829 |
| Neighborhood CD: | 4 |
Owner |
| Name: | MUN COMPANY LLC | Owner ID: | 312990 |
| Mailing Address: | 7808 218TH ST SW EDMONDS, WA 98026 | % Ownership: | 100.0000000000% |
| | | Exemptions: | |
Taxes and Assessment Details
Values
| (+) Improvement Homesite Value: | + | $0 | |
| (+) Improvement Non-Homesite Value: | + | $62,911 | |
| (+) Land Homesite Value: | + | $0 | |
| (+) Land Non-Homesite Value: | + | $470,000 | |
| (+) Curr Use (HS): | + | $0 | $0 |
| (+) Curr Use (NHS): | + | $0 | $0 |
| | | -------------------------- | |
| (=) Market Value: | = | $532,911 | |
| (–) Productivity Loss: | – | $0 | |
| | | -------------------------- | |
| (=) Subtotal: | = | $532,911 | |
| (+) Senior Appraised Value: | + | $0 | |
| (+) Non-Senior Appraised Value: | + | $532,911 | |
| | | -------------------------- | |
| (=) Total Appraised Value: | = | $532,911 | |
| (–) Senior Exemption Loss: | – | $0 | |
| (–) Exemption Loss: | – | $0 | |
| | | -------------------------- | |
| (=) Taxable Value: | = | $532,911 | |
Taxing Jurisdiction
| Owner: | MUN COMPANY LLC | | |
| % Ownership: | 100.0000000000% | | |
| Total Value: | $532,911 | | |
| Tax Area: | 712 - APPRAISER-S Whid Schl Dist, outside Langley, improved, greater than 1 acre |
| CF | Conservation Futures | 0.0313996660 | $532,911 | $532,911 | $16.73 | | |
| FIRE3 | Fire & Rescue Dist #3 S Whidbey GEN | 1.2130821753 | $532,911 | $532,911 | $646.46 | | |
| HOBOND | Hospital BOND | 0.1893405597 | $532,911 | $532,911 | $100.90 | | |
| HOGEN | Hospital GEN | 0.3848777722 | $532,911 | $532,911 | $205.11 | | |
| CE | County Current Expense | 0.3674210519 | $532,911 | $532,911 | $195.80 | | |
| CR | County Roads | 0.4614296361 | $532,911 | $532,911 | $245.90 | | |
| ISLANDEMS | Hospital GEN (EMS) | 0.4952018576 | $532,911 | $532,911 | $263.90 | | |
| LIB | Library Sno-Isle GEN | 0.3039084203 | $532,911 | $532,911 | $161.96 | | |
| PORTWHID | Port of S Whidbey GEN | 0.1086004714 | $532,911 | $532,911 | $57.87 | | |
| SCH206BOND | School 206 BOND | 0.5960237832 | $532,911 | $532,911 | $317.63 | | |
| SCH206CAP | School 206 CP | 0.3066144020 | $532,911 | $532,911 | $163.40 | | |
| SCH206MO | School 206 Enrichment | 0.4808755445 | $532,911 | $532,911 | $256.26 | | |
| ST | State School | 1.4761226122 | $532,911 | $532,911 | $786.64 | | |
| ST2 | State School Part 2 | 0.7953803475 | $532,911 | $532,911 | $423.87 | | |
| SWHIDPRBD | P & R S Whidbey BOND | 0.0144185398 | $532,911 | $532,911 | $7.68 | | |
| SWHIDPRBD3 | P & R S Whidbey BOND3 | 0.1483535547 | $532,911 | $532,911 | $79.06 | | |
| SWHIDPRMT | P & R S Whidbey GEN | 0.4600000000 | $532,911 | $532,911 | $245.14 | | |
| | Total Tax Rate: | 7.8330503944 | | | | | |
| | | | | Taxes w/Current Exemptions: | $4,174.31 | | |
| | | | | Taxes w/o Exemptions: | $4,174.31 | | |
Improvement / Building
| Improvement #1: | RESIDENTIAL | State Code: | Y | 820.0 sqft | Value: | $62,911 |
| Bathrooms: | 1 | Bedrooms: | 1 | | Ceiling: | DRYWALL PAINTED | Exterior Wall/Cover: | PLY/HARDBOARD T-111 | | Floor Covering: | CARPET/VINYL 80-20 | Floor Structure: | WOOD W/SUBFLOOR | | Foundation: | PEIRS | Heating: | BASEBOARD ELECTRIC | | Interior Finish: | DRYWALL PAINT | Plumbing Fixture Cnt: | 6 | | Roof Slope: | FLAT | Roof Structure/Cover: | BEAM BUILT-UP ROCK |
|
| | Type | Description | Class CD | Sub Class CD | Year Built | Area |
| | OWP | OPEN WOOD PORCH W/STEPS | 1 | 0 | 1961 | 170.0 |
| | BAS | BASE/MAIN FLOOR | 1 | 0 | 1961 | 820.0 |
Sketch
Property Image
Land
| 1 | HB | HIGH BLUFF | 1.1800 | 51400.80 | 75.00 | 0.00 | 1.00 | $470,000 | $0 |
Roll Value History
| 2026 | N/A | N/A | N/A | N/A | N/A |
| 2025 | $62,911 | $470,000 | $0 | $532,911 | $532,911 |
| 2024 | $65,859 | $435,000 | $0 | $500,859 | $500,859 |
| 2023 | $67,144 | $435,000 | $0 | $502,144 | $502,144 |
| 2022 | $61,962 | $385,000 | $0 | $446,962 | $446,962 |
| 2021 | $54,893 | $350,000 | $0 | $404,893 | $404,893 |
| 2020 | $53,469 | $300,000 | $0 | $353,469 | $353,469 |
| 2019 | $37,872 | $300,000 | $0 | $337,872 | $337,872 |
| 2018 | $38,041 | $300,000 | $0 | $338,041 | $338,041 |
| 2017 | $38,377 | $300,000 | $0 | $338,377 | $338,377 |
| 2016 | $39,050 | $300,000 | $0 | $339,050 | $339,050 |
| 2015 | $39,723 | $300,000 | $0 | $339,723 | $339,723 |
| 2014 | $42,015 | $305,095 | $0 | $347,110 | $347,110 |
| 2013 | $42,712 | $305,095 | $0 | $347,807 | $347,807 |
| 2012 | $43,409 | $305,095 | $0 | $348,504 | $348,504 |
| 2011 | $44,106 | $305,095 | $0 | $349,201 | $349,201 |
| 2010 | $48,407 | $305,095 | $0 | $353,502 | $353,502 |
| 2009 | $50,717 | $366,701 | $0 | $417,418 | $417,418 |
| 2008 | $51,472 | $366,701 | $0 | $418,173 | $418,173 |
| 2007 | $52,397 | $366,701 | $0 | $419,098 | $419,098 |
Deed and Sales History
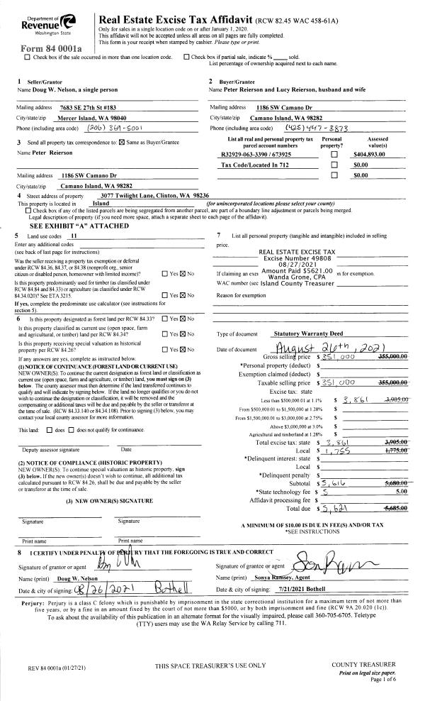
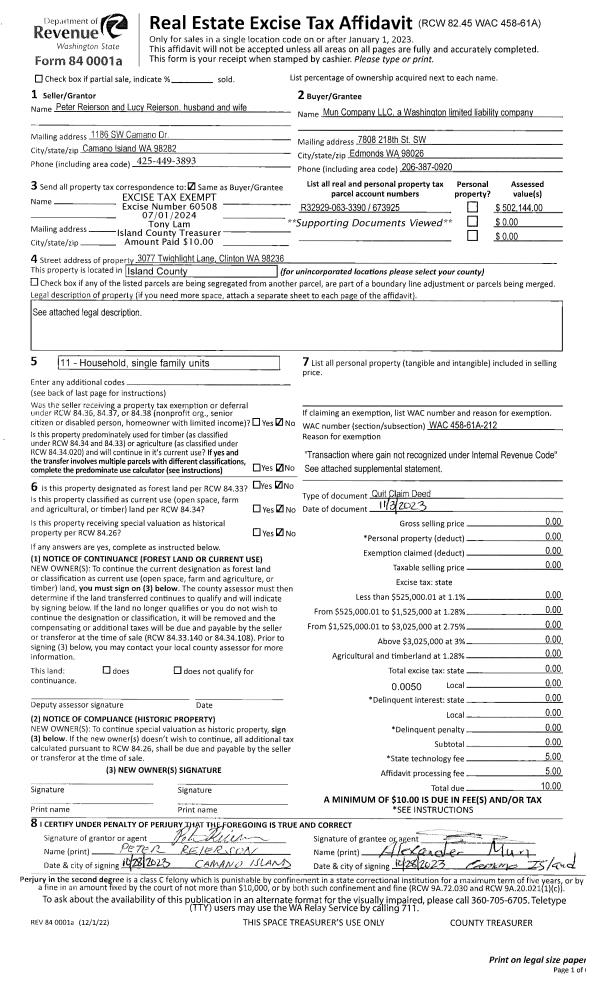
| 1 | 11/03/2023 | QCD | Quit Claim Deed | REIERSON, PETER | MUN COMPANY LLC | | | $0.00 | 60508 | 4574080 |
| 2 | 08/26/2021 | WD | Warranty Deed | NELSON, DOUGLAS W | REIERSON, PETER | | | $351,000.00 | 49808 | 4527833 |
| 3 | 12/17/2002 | WD | Warranty Deed | SMITH, HENRY C | NELSON, DOUGLAS W | | | $200,000.00 | 25166 | 4041680 |
| 4 | 05/01/1996 | WD | Warranty Deed | BROWN, LESLIE K | SMITH, HENRY C | | | $186,000.00 | 61685 | 96008450 |
| 5 | 09/01/1995 | WD | Warranty Deed | HOFFMAN, ROBERT L | BROWN, LESLIE K | | | $165,000.00 | 53143 | 95014476 |
| 6 | 03/01/1994 | DECREE | Divorce Decree/Legal Separation | HOFFMAN, ROBERT L | HOFFMAN, ROBERT L | | | $0.00 | 43369 | 94017921 |
| 7 | 01/01/1993 | QCD | Quit Claim Deed | HOFFMAN, ROBERT L | HOFFMAN, ROBERT L | | | $0.00 | 30239 | 93001166 |
| 8 | 12/01/1992 | WD | Warranty Deed | HOFFMAN, ROBERT L | HOFFMAN, ROBERT L | | | $0.00 | 25031 | 92024854 |
| 9 | 09/01/1992 | QCD | Quit Claim Deed | HOFFMAN, ROBERT & | HOFFMAN, ROBERT L | | | $0.00 | 24368 | 92021393 |
| 10 | 01/01/1900 | OTHER | Other - Misc. Documents | Unknown | HOFFMAN, ROBERT & | | | $0.00 | 52129 | 85008345 |
Payout Agreement
| No payout information available.. |