Property
Account |
| Property ID: | 674256 | Abbreviated Legal Description: | BG NECR OF S225' OF W1020' OF NW SW S225' TO SLN NW SW S88*W600' N225' N88*E600' TPB FR 152-0520 TGW & SUB EZ AF#92017549 |
| Geographic ID: | R23133-150-0730 | Agent Code: | |
| Type: | Real | | |
| Tax Area: | 312 - APPRAISER-Cpvl Schl Dist, outside Cpvl, improved, greater than 1 acre | Land Use Code | 11 |
| Open Space: | N | DFL | N |
| Historic Property: | N | Remodel Property: | N |
| Multi-Family Redevelopment: | N | | |
| Township: | 31 | Section: | 33 |
| Range: | R2 |
Location |
| Address: | 840 SILVER CLOUD LN GREENBANK, WA 98253 | Mapsco: | |
| Neighborhood: | Cycle 2 | Map ID: | 530 |
| Neighborhood CD: | 2 |
Owner |
| Name: | HAWKINS TTEE, WILLIAM LUIS | Owner ID: | 301047 |
| Mailing Address: | DAWN MARIE SMITH TTEE 840 SILVER CLOUD LN GREENBANK, WA 98253 | % Ownership: | 100.0000000000% |
| | | Exemptions: | |
Taxes and Assessment Details
Values
| (+) Improvement Homesite Value: | + | $0 | |
| (+) Improvement Non-Homesite Value: | + | $634,189 | |
| (+) Land Homesite Value: | + | $0 | |
| (+) Land Non-Homesite Value: | + | $317,300 | |
| (+) Curr Use (HS): | + | $0 | $0 |
| (+) Curr Use (NHS): | + | $0 | $0 |
| | | -------------------------- | |
| (=) Market Value: | = | $951,489 | |
| (–) Productivity Loss: | – | $0 | |
| | | -------------------------- | |
| (=) Subtotal: | = | $951,489 | |
| (+) Senior Appraised Value: | + | $0 | |
| (+) Non-Senior Appraised Value: | + | $951,489 | |
| | | -------------------------- | |
| (=) Total Appraised Value: | = | $951,489 | |
| (–) Senior Exemption Loss: | – | $0 | |
| (–) Exemption Loss: | – | $0 | |
| | | -------------------------- | |
| (=) Taxable Value: | = | $951,489 | |
Taxing Jurisdiction
| Owner: | HAWKINS TTEE, WILLIAM LUIS | | |
| % Ownership: | 100.0000000000% | | |
| Total Value: | $951,489 | | |
| Tax Area: | 312 - APPRAISER-Cpvl Schl Dist, outside Cpvl, improved, greater than 1 acre |
| CF | Conservation Futures | 0.0313996660 | $951,489 | $951,489 | $29.88 | | |
| CEM2 | Cemetery #2 | 0.0092609791 | $951,489 | $951,489 | $8.81 | | |
| FIRE5 | Fire & Rescue Dist #5 C Whidbey GEN | 1.1892169230 | $951,489 | $951,489 | $1,131.53 | | |
| FIRE5BOND | Fire & Rescue Dist #5 C Whidbey BOND | 0.1394359503 | $951,489 | $951,489 | $132.67 | | |
| HOBOND | Hospital BOND | 0.1893405597 | $951,489 | $951,489 | $180.16 | | |
| HOGEN | Hospital GEN | 0.3848777722 | $951,489 | $951,489 | $366.21 | | |
| CE | County Current Expense | 0.3674210519 | $951,489 | $951,489 | $349.60 | | |
| CR | County Roads | 0.4614296361 | $951,489 | $951,489 | $439.05 | | |
| ISLANDEMS | Hospital GEN (EMS) | 0.4952018576 | $951,489 | $951,489 | $471.18 | | |
| LIB | Library Sno-Isle GEN | 0.3039084203 | $951,489 | $951,489 | $289.17 | | |
| LIBCAP | Library Sno-Isle BOND (Cap Fac Imp Area) | 0.0528562629 | $951,489 | $951,489 | $50.29 | | |
| POCOUP | Port of Coupeville GEN | 0.1065226063 | $951,489 | $951,489 | $101.36 | | |
| POCOUPIDD | Port of Coupeville IDD | 0.3353038577 | $951,489 | $951,489 | $319.04 | | |
| COUPSDTECH | School 204 CP (TECH) | 0.1215123397 | $951,489 | $951,489 | $115.62 | | |
| SCH204MO | School 204 Enrichment | 0.6416662518 | $951,489 | $951,489 | $610.54 | | |
| ST | State School | 1.4761226122 | $951,489 | $951,489 | $1,404.51 | | |
| ST2 | State School Part 2 | 0.7953803475 | $951,489 | $951,489 | $756.80 | | |
| | Total Tax Rate: | 7.1008570943 | | | | | |
| | | | | Taxes w/Current Exemptions: | $6,756.42 | | |
| | | | | Taxes w/o Exemptions: | $6,756.42 | | |
Improvement / Building
| Improvement #1: | RESIDENTIAL | State Code: | Y | 4375.0 sqft | Value: | $634,189 |
| Bathrooms: | 3.5 | Bedrooms: | 5 | | Ceiling: | DRYWALL PAINTED | Exterior Wall/Cover: | VINYL | | Floor Covering: | HARDWOOD/CARP 60-40 | Floor Structure: | WOOD W/SUBFLOOR | | Foundation: | CONCRETE | Heating: | WALL HEAT ELECTRIC | | Interior Finish: | DRYWALL PAINT | Plumbing Fixture Cnt: | 17 | | Roof Slope: | 5" IN 12" | Roof Structure/Cover: | CJ ASPHALT |
|
| | Type | Description | Class CD | Sub Class CD | Year Built | Area |
| | BAS | BASE/MAIN FLOOR | 4 | 0 | 1993 | 1858.0 |
| | AGR | ATTACHED GARAGE | 4 | 0 | 1993 | 550.0 |
| | OWP | OPEN WOOD PORCH W/STEPS | 4 | 0 | 1993 | 597.0 |
| | OWC | OPEN WOOD PORCH W/STEPS/ROOF/C | 4 | 0 | 1993 | 120.0 |
| | DWN | DOWNSTAIRS LIVING AREA | 4 | 0 | 1993 | 2517.0 |
Sketch
| No sketches available for this property. |
Property Image
Land
| 1 | HS | HOMESITE | 1.0000 | 43560.00 | 0.00 | 0.00 | 1.00 | $220,000 | $0 |
| 2 | 91 | UNDEVELOPED LAND-METES AND BOUNDS | 2.1000 | 91476.00 | 0.00 | 0.00 | 1.00 | $97,300 | $0 |
Roll Value History
| 2026 | N/A | N/A | N/A | N/A | N/A |
| 2025 | $634,189 | $317,300 | $0 | $951,489 | $951,489 |
| 2024 | $641,901 | $290,000 | $0 | $931,901 | $931,901 |
| 2023 | $649,614 | $280,000 | $0 | $929,614 | $929,614 |
| 2022 | $595,181 | $250,000 | $0 | $845,181 | $845,181 |
| 2021 | $523,625 | $170,000 | $0 | $693,625 | $693,625 |
| 2020 | $440,320 | $160,000 | $0 | $600,320 | $600,320 |
| 2019 | $365,999 | $230,000 | $0 | $595,999 | $595,999 |
| 2018 | $332,730 | $200,000 | $0 | $532,730 | $532,730 |
| 2017 | $334,036 | $150,000 | $0 | $484,036 | $484,036 |
| 2016 | $337,966 | $140,000 | $0 | $477,966 | $477,966 |
| 2015 | $341,895 | $76,000 | $0 | $417,895 | $417,895 |
| 2014 | $360,180 | $76,000 | $0 | $436,180 | $436,180 |
| 2013 | $364,212 | $76,000 | $0 | $440,212 | $440,212 |
| 2012 | $363,091 | $76,000 | $0 | $439,091 | $439,091 |
| 2011 | $367,068 | $80,000 | $0 | $447,068 | $447,068 |
| 2010 | $387,850 | $80,000 | $0 | $467,850 | $467,850 |
| 2009 | $404,099 | $85,000 | $0 | $489,099 | $489,099 |
| 2008 | $413,212 | $150,000 | $0 | $563,212 | $563,212 |
| 2007 | $393,160 | $150,000 | $0 | $543,160 | $543,160 |
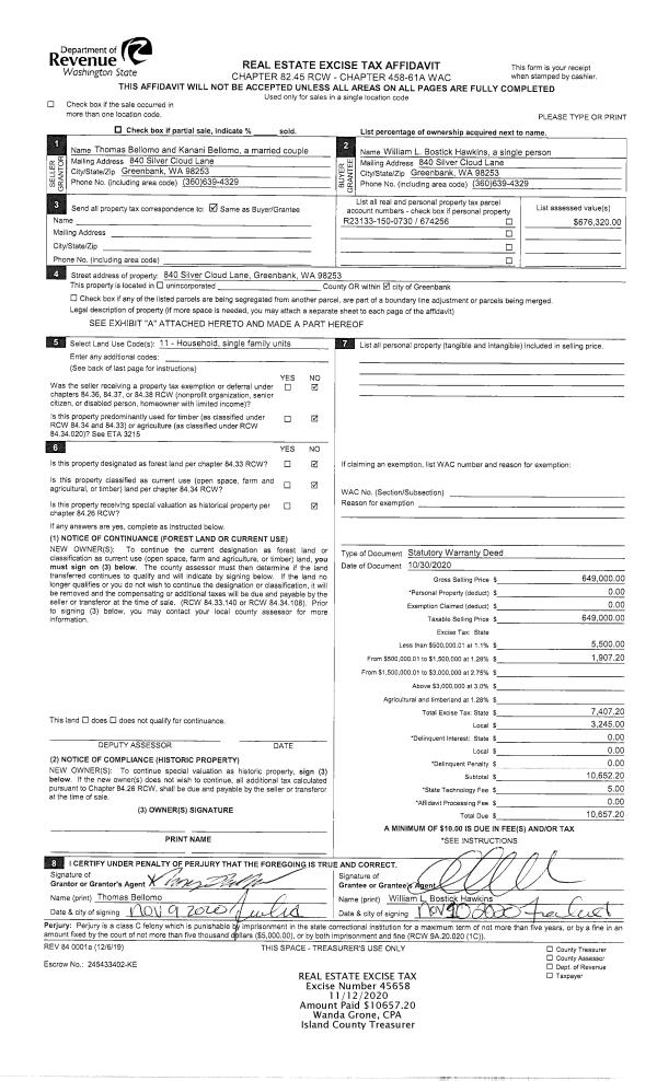
Deed and Sales History
| 1 | 09/08/2021 | QCD | Quit Claim Deed | BOSTICK HAWKINS, WILLIAM L | HAWKINS TTEE, WILLIAM LUIS | | | $0.00 | 49937 | 4528594 |
| 2 | 10/30/2020 | WD | Warranty Deed | BELLOMO, THOMAS | BOSTICK HAWKINS, WILLIAM L | | | $649,000.00 | 45658 | 4502161 |
| 3 | 05/27/2015 | WD | Warranty Deed | STEVENSON, PHILIP D / LISA J | BELLOMO, THOMAS | | | $380,000.00 | 19704 | 4379039 |
| 4 | 09/01/1992 | EZ | Easement | STEVENSON, PHILIP D | STEVENSON, PHILIP D | | | $0.00 | 23632 | 92017549 |
| 5 | 07/01/1992 | WD | Warranty Deed | DUYSINGS, HERMAN A | STEVENSON, PHILIP D | | | $29,000.00 | 22876 | 92013987 |
| 6 | 07/01/1992 | OTHER | Other - Misc. Documents | DUYSINGS, HERMAN A | DUYSINGS, HERMAN A | | | $0.00 | 64924 | 92012821 |
| 7 | 01/01/1900 | OTHER | Other - Misc. Documents | Unknown | DUYSINGS, HERMAN A | | | $0.00 | 63626 | 90007604 |
Payout Agreement
| No payout information available.. |