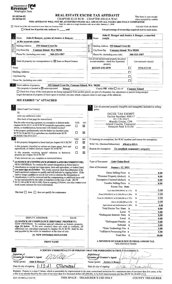
Property
Account |
| Property ID: | 674746 | Abbreviated Legal Description: | PT FOLL DESC LY W OF CO RD: NE NE SW EX CO RD & EX N20' FOR RD FR 235-2330 |
| Geographic ID: | R23225-235-2070 | Agent Code: | |
| Type: | Real | | |
| Tax Area: | 512 - APPRAISER-Stan/Cam Schl Dist, improved, greater than 1 acre | Land Use Code | 11 |
| Open Space: | N | DFL | N |
| Historic Property: | N | Remodel Property: | N |
| Multi-Family Redevelopment: | N | | |
| Township: | 32 | Section: | 25 |
| Range: | R2 |
Location |
| Address: | 555 ISLANDCREST DR CAMANO ISLAND, WA 98282 | Mapsco: | |
| Neighborhood: | North Camano | Map ID: | 562 |
| Neighborhood CD: | 06-C |
Owner |
| Name: | RANGER, JOHN E | Owner ID: | 297781 |
| Mailing Address: | JESSICA RANGER 55 ISLAND CREST DR CAMANO ISLAND, WA 98282 | % Ownership: | 100.0000000000% |
| | | Exemptions: | |
Taxes and Assessment Details
Values
| (+) Improvement Homesite Value: | + | $0 | |
| (+) Improvement Non-Homesite Value: | + | $321,739 | |
| (+) Land Homesite Value: | + | $0 | |
| (+) Land Non-Homesite Value: | + | $310,000 | |
| (+) Curr Use (HS): | + | $0 | $0 |
| (+) Curr Use (NHS): | + | $0 | $0 |
| | | -------------------------- | |
| (=) Market Value: | = | $631,739 | |
| (–) Productivity Loss: | – | $0 | |
| | | -------------------------- | |
| (=) Subtotal: | = | $631,739 | |
| (+) Senior Appraised Value: | + | $0 | |
| (+) Non-Senior Appraised Value: | + | $631,739 | |
| | | -------------------------- | |
| (=) Total Appraised Value: | = | $631,739 | |
| (–) Senior Exemption Loss: | – | $0 | |
| (–) Exemption Loss: | – | $0 | |
| | | -------------------------- | |
| (=) Taxable Value: | = | $631,739 | |
Taxing Jurisdiction
| Owner: | RANGER, JOHN E | | |
| % Ownership: | 100.0000000000% | | |
| Total Value: | $631,739 | | |
| Tax Area: | 512 - APPRAISER-Stan/Cam Schl Dist, improved, greater than 1 acre |
| CF | Conservation Futures | 0.0313996660 | $631,739 | $631,739 | $19.84 | | |
| EMS1 | Fire & Rescue Dist #1 Camano GEN (EMS) | 0.4998471806 | $631,739 | $631,739 | $315.77 | | |
| FIRE1 | Fire & Rescue Dist #1 Camano GEN | 1.2496603404 | $631,739 | $631,739 | $789.46 | | |
| FIRE1BOND | Fire & Rescue Dist #1 Camano BOND | 0.1630371212 | $631,739 | $631,739 | $103.00 | | |
| CE | County Current Expense | 0.3674210519 | $631,739 | $631,739 | $232.11 | | |
| CR | County Roads | 0.4614296361 | $631,739 | $631,739 | $291.50 | | |
| LIB | Library Sno-Isle GEN | 0.3039084203 | $631,739 | $631,739 | $191.99 | | |
| SCH205_401 | School 205-401 Enrichment | 1.3697998934 | $631,739 | $631,739 | $865.36 | | |
| SCH205BOND | School 205-401 BOND | 0.9354199323 | $631,739 | $631,739 | $590.94 | | |
| ST | State School | 1.4761226122 | $631,739 | $631,739 | $932.52 | | |
| ST2 | State School Part 2 | 0.7953803475 | $631,739 | $631,739 | $502.47 | | |
| | Total Tax Rate: | 7.6534262019 | | | | | |
| | | | | Taxes w/Current Exemptions: | $4,834.96 | | |
| | | | | Taxes w/o Exemptions: | $4,834.96 | | |
Improvement / Building
| Improvement #1: | RESIDENTIAL | State Code: | Y | 1522.0 sqft | Value: | $321,739 |
| Bathrooms: | 2 | Bedrooms: | 3 | | Ceiling: | DRY WALL SPRAYED | Exterior Wall/Cover: | CEMENT FIBER | | Floor Covering: | CARPET/VINYL 80-20 | Floor Structure: | WOOD W/SUBFLOOR | | Foundation: | CONCRETE | Heating: | WALL HEAT ELECTRIC | | Interior Finish: | DRYWALL PAINT | Plumbing Fixture Cnt: | 9 | | Roof Slope: | 4" IN 12" | Roof Structure/Cover: | CJ ASPHALT |
|
| | Type | Description | Class CD | Sub Class CD | Year Built | Area |
| | BAS | BASE/MAIN FLOOR | 3 | 0 | 2003 | 1522.0 |
| | OP4 | OPEN PORCH W/CEILING-ROOF | 3 | 0 | 2003 | 108.0 |
| | AGR | ATTACHED GARAGE | 3 | 0 | 2003 | 480.0 |
| | OWR | OPEN WOOD PORCH W/STEPS/ROOF | 3 | 0 | 2003 | 96.0 |
| | UTY | STORAGE/UTILITY | 3 | 0 | 2003 | 192.0 |
| | DGR | DETACHED GARAGE | 3 | 0 | 2003 | 288.0 |
| | oPOL | POLE BARN | 3 | 0 | 2003 | 1140.0 |
Sketch
Property Image
Land
| 1 | 18 | AC (02.01-03.00) | 0.0000 | 0.00 | 0.00 | 0.00 | 1.00 | $310,000 | $0 |
Roll Value History
| 2026 | N/A | N/A | N/A | N/A | N/A |
| 2025 | $321,739 | $310,000 | $0 | $631,739 | $631,739 |
| 2024 | $325,167 | $300,000 | $0 | $625,167 | $625,167 |
| 2023 | $328,592 | $300,000 | $0 | $628,592 | $628,592 |
| 2022 | $271,011 | $260,000 | $0 | $531,011 | $531,011 |
| 2021 | $235,380 | $230,000 | $0 | $465,380 | $465,380 |
| 2020 | $218,833 | $150,000 | $0 | $368,833 | $368,833 |
| 2019 | $146,681 | $190,000 | $0 | $336,681 | $336,681 |
| 2018 | $147,102 | $180,000 | $0 | $327,102 | $327,102 |
| 2017 | $147,942 | $120,000 | $0 | $267,942 | $267,942 |
| 2016 | $157,556 | $120,000 | $0 | $277,556 | $277,556 |
| 2015 | $159,296 | $80,000 | $0 | $239,296 | $239,296 |
| 2014 | $161,035 | $80,000 | $0 | $241,035 | $241,035 |
| 2013 | $162,774 | $80,000 | $0 | $242,774 | $242,774 |
| 2012 | $164,512 | $80,000 | $0 | $244,512 | $244,512 |
| 2011 | $166,252 | $100,000 | $0 | $266,252 | $266,252 |
| 2010 | $168,456 | $100,000 | $0 | $268,456 | $268,456 |
| 2009 | $175,518 | $160,000 | $0 | $335,518 | $335,518 |
| 2008 | $179,280 | $224,400 | $0 | $403,680 | $403,680 |
| 2007 | $179,404 | $224,400 | $0 | $403,804 | $403,804 |
Deed and Sales History
| 1 | 01/12/2021 | QCD | Quit Claim Deed | RANGER, JOHN E | RANGER, JOHN E | | | $0.00 | 46617 | 4508482 |
| 2 | 08/29/2011 | WD | Warranty Deed | MADISON TRUSTEE, JACK C | RANGER, JOHN E | | | $185,000.00 | 5430 | 4300535 |
| 3 | 12/06/2010 | QCD | Quit Claim Deed | MADISON, JACK | MADISON TRUSTEE, JACK C | | | $0.00 | 3062 | 4286382 |
| 4 | 02/18/2003 | WD | Warranty Deed | KOCH, RICHARD M | MADISON, JACK | | | $175,000.00 | 30656 | 4048165 |
| 5 | 10/02/2002 | WD | Warranty Deed | VANDERLUGT, PETE | KOCH, RICHARD M | | | $36,500.00 | 23992 | 4033415 |
| 6 | 08/01/1992 | OTHER | Other - Misc. Documents | VANDERLUGT, PETE | VANDERLUGT, PETE | | | $0.00 | 64980 | 0 |
| 7 | 01/01/1900 | EXECUTORD | Executor Deed | Unknown | VANDERLUGT, PETE | | | $0.00 | 32573 | 0 |
Payout Agreement
| No payout information available.. |