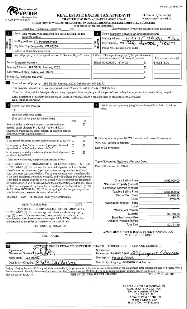
Property
Account |
| Property ID: | 677422 | Abbreviated Legal Description: | CASA DEL MAR CONDO UNIT 5 8.75% INT |
| Geographic ID: | S6323-00-00005-0 | Agent Code: | |
| Type: | Real | | |
| Tax Area: | 100 - APPRAISER-OH Schl Dist, in OH | Land Use Code | 14 |
| Open Space: | N | DFL | N |
| Historic Property: | N | Remodel Property: | N |
| Multi-Family Redevelopment: | N | | |
| Township: | | Section: | |
| Range: | |
Location |
| Address: | 1199 SE 9TH AVE UNIT 202 OAK HARBOR, WA 98277 | Mapsco: | |
| Neighborhood: | 13*OH-casa delmar | Map ID: | 89 |
| Neighborhood CD: | 13*OHcdmar |
Owner |
| Name: | VORWERK, MARGARET | Owner ID: | 286519 |
| Mailing Address: | 1199 SE 9TH AVE #202 OAK HARBOR, WA 98277 | % Ownership: | 100.0000000000% |
| | | Exemptions: | |
Taxes and Assessment Details
Values
| (+) Improvement Homesite Value: | + | $0 | |
| (+) Improvement Non-Homesite Value: | + | $169,616 | |
| (+) Land Homesite Value: | + | $0 | |
| (+) Land Non-Homesite Value: | + | $85,000 | |
| (+) Curr Use (HS): | + | $0 | $0 |
| (+) Curr Use (NHS): | + | $0 | $0 |
| | | -------------------------- | |
| (=) Market Value: | = | $254,616 | |
| (–) Productivity Loss: | – | $0 | |
| | | -------------------------- | |
| (=) Subtotal: | = | $254,616 | |
| (+) Senior Appraised Value: | + | $0 | |
| (+) Non-Senior Appraised Value: | + | $254,616 | |
| | | -------------------------- | |
| (=) Total Appraised Value: | = | $254,616 | |
| (–) Senior Exemption Loss: | – | $0 | |
| (–) Exemption Loss: | – | $0 | |
| | | -------------------------- | |
| (=) Taxable Value: | = | $254,616 | |
Taxing Jurisdiction
| Owner: | VORWERK, MARGARET | | |
| % Ownership: | 100.0000000000% | | |
| Total Value: | $254,616 | | |
| Tax Area: | 100 - APPRAISER-OH Schl Dist, in OH |
| CF | Conservation Futures | 0.0313996660 | $254,616 | $254,616 | $7.99 | | |
| CEM1 | Cemetery #1 | 0.0040018856 | $254,616 | $254,616 | $1.02 | | |
| COH | City of Oak Harbor | 2.3090730572 | $254,616 | $254,616 | $587.93 | | |
| OAKBOND | City of Oak Harbor BOND | 0.1902260131 | $254,616 | $254,616 | $48.43 | | |
| HOBOND | Hospital BOND | 0.1893405597 | $254,616 | $254,616 | $48.21 | | |
| HOGEN | Hospital GEN | 0.3848777722 | $254,616 | $254,616 | $98.00 | | |
| CE | County Current Expense | 0.3674210519 | $254,616 | $254,616 | $93.55 | | |
| ISLANDEMS | Hospital GEN (EMS) | 0.4952018576 | $254,616 | $254,616 | $126.09 | | |
| LIB | Library Sno-Isle GEN | 0.3039084203 | $254,616 | $254,616 | $77.38 | | |
| NWHIDPRMT | P & R N Whidbey GEN | 0.1990272349 | $254,616 | $254,616 | $50.68 | | |
| SCH201MO | School 201 Enrichment | 2.3851112745 | $254,616 | $254,616 | $607.29 | | |
| ST | State School | 1.4761226122 | $254,616 | $254,616 | $375.84 | | |
| ST2 | State School Part 2 | 0.7953803475 | $254,616 | $254,616 | $202.52 | | |
| | Total Tax Rate: | 9.1310917527 | | | | | |
| | | | | Taxes w/Current Exemptions: | $2,324.93 | | |
| | | | | Taxes w/o Exemptions: | $2,324.93 | | |
Improvement / Building
| Improvement #1: | RESIDENTIAL | State Code: | Y | 1005.0 sqft | Value: | $169,616 |
| Bathrooms: | 1.5 | Bedrooms: | 2 | | Ceiling: | DRYWALL PAINTED | Exterior Wall/Cover: | WOOD SIDING | | Floor Covering: | CARPET/VINYL 80-20 | Floor Structure: | WOOD W/SUBFLOOR | | Foundation: | CONCRETE | Heating: | BASEBOARD ELECTRIC | | Interior Finish: | DRYWALL PAINT | Plumbing Fixture Cnt: | 8 | | Roof Slope: | FLAT | Roof Structure/Cover: | BEAM BUILT-UP ROCK |
|
| | Type | Description | Class CD | Sub Class CD | Year Built | Area |
| | BAS | BASE/MAIN FLOOR | 3 | 0 | 1972 | 1005.0 |
| | OWP | OPEN WOOD PORCH W/STEPS | 3 | 0 | 1972 | 195.0 |
| | oSTR | STRUCTURE/OTHER FEAT | 3 | 0 | 1972 | 0.0 |
| | oPV1 | PV/ASPH 2" | 3 | 0 | 1972 | 0.0 |
Sketch
Property Image
Land
| 1 | 61 | MULTIPLE RESIDENCES | 0.0537 | 2339.27 | 0.00 | 0.00 | 1.00 | $85,000 | $0 |
Roll Value History
| 2026 | N/A | N/A | N/A | N/A | N/A |
| 2025 | $169,616 | $85,000 | $0 | $254,616 | $254,616 |
| 2024 | $175,193 | $90,000 | $0 | $265,193 | $265,193 |
| 2023 | $160,506 | $90,000 | $0 | $250,506 | $250,506 |
| 2022 | $147,737 | $90,000 | $0 | $237,737 | $237,737 |
| 2021 | $130,730 | $60,000 | $0 | $190,730 | $190,730 |
| 2020 | $127,462 | $55,000 | $0 | $182,462 | $182,462 |
| 2019 | $90,637 | $70,000 | $0 | $160,637 | $160,637 |
| 2018 | $90,934 | $65,000 | $0 | $155,934 | $155,934 |
| 2017 | $70,815 | $42,000 | $0 | $112,815 | $112,815 |
| 2016 | $71,807 | $42,000 | $0 | $113,807 | $113,807 |
| 2015 | $72,799 | $42,000 | $0 | $114,799 | $114,799 |
| 2014 | $73,792 | $42,000 | $0 | $115,792 | $115,792 |
| 2013 | $74,784 | $42,000 | $0 | $116,784 | $116,784 |
| 2012 | $79,054 | $42,000 | $0 | $121,054 | $121,054 |
| 2011 | $79,054 | $57,270 | $0 | $136,324 | $136,324 |
| 2010 | $74,737 | $42,513 | $0 | $117,250 | $117,250 |
| 2009 | $77,959 | $58,568 | $0 | $136,527 | $136,527 |
| 2008 | $79,001 | $30,544 | $0 | $109,545 | $109,545 |
| 2007 | $80,100 | $30,544 | $0 | $110,644 | $110,644 |
Deed and Sales History
| 1 | 08/10/2018 | WD | Warranty Deed | CRAIG, LOLA | VORWERK, MARGARET | | | $156,000.00 | 35520 | 4450109 |
| 2 | 09/15/2008 | WD | Warranty Deed | MCNEIL, ROBERT S | CRAIG, LOLA | | | $150,000.00 | 82478 | 4236916 |
| 3 | 04/19/2006 | WD | Warranty Deed | COFFEY, BIRDER | MCNEIL, ROBERT S | | | $115,000.00 | 61740 | 4168286 |
| 4 | 09/23/1999 | WD | Warranty Deed | WHITLOCK, JOHN L/MARGARET A | COFFEY, BIRDER | | | $67,000.00 | 94213 | 99023118 |
| 5 | 06/01/1993 | WD | Warranty Deed | DEL, MAR I | WHITLOCK, JOHN L | | | $84,000.00 | 32308 | 93011960 |
| 6 | 01/01/1900 | OTHER | Other - Misc. Documents | Unknown | DEL, MAR I | | | $0.00 | 24342 | 92021309 |
| 7 | 01/01/1900 | OTHER | Other - Misc. Documents | WHITLOCK, JOHN L | WHITLOCK, JOHN L/MARGARET A | | | $0.00 | 0 | 0 |
Payout Agreement
| No payout information available.. |