Property
Account |
| Property ID: | 677495 | Abbreviated Legal Description: | CASA DEL MAR CONDO UNIT 12 4.94% INT |
| Geographic ID: | S6323-00-00012-0 | Agent Code: | |
| Type: | Real | | |
| Tax Area: | 100 - APPRAISER-OH Schl Dist, in OH | Land Use Code | 14 |
| Open Space: | N | DFL | N |
| Historic Property: | N | Remodel Property: | N |
| Multi-Family Redevelopment: | N | | |
| Township: | | Section: | |
| Range: | |
Location |
| Address: | 1188 SE PIONEER WAY UNIT 102 OAK HARBOR, WA 98277 | Mapsco: | |
| Neighborhood: | 13*OH-casa delmar | Map ID: | 89 |
| Neighborhood CD: | 13*OHcdmar |
Owner |
| Name: | GARZA, MICHAEL ELISEO | Owner ID: | 308573 |
| Mailing Address: | 1188 SE PIONEER WAY #102 OAK HARBOR, WA 98277 | % Ownership: | 100.0000000000% |
| | | Exemptions: | |
Taxes and Assessment Details
Values
| (+) Improvement Homesite Value: | + | $0 | |
| (+) Improvement Non-Homesite Value: | + | $122,147 | |
| (+) Land Homesite Value: | + | $0 | |
| (+) Land Non-Homesite Value: | + | $85,000 | |
| (+) Curr Use (HS): | + | $0 | $0 |
| (+) Curr Use (NHS): | + | $0 | $0 |
| | | -------------------------- | |
| (=) Market Value: | = | $207,147 | |
| (–) Productivity Loss: | – | $0 | |
| | | -------------------------- | |
| (=) Subtotal: | = | $207,147 | |
| (+) Senior Appraised Value: | + | $0 | |
| (+) Non-Senior Appraised Value: | + | $207,147 | |
| | | -------------------------- | |
| (=) Total Appraised Value: | = | $207,147 | |
| (–) Senior Exemption Loss: | – | $0 | |
| (–) Exemption Loss: | – | $0 | |
| | | -------------------------- | |
| (=) Taxable Value: | = | $207,147 | |
Taxing Jurisdiction
| Owner: | GARZA, MICHAEL ELISEO | | |
| % Ownership: | 100.0000000000% | | |
| Total Value: | $207,147 | | |
| Tax Area: | 100 - APPRAISER-OH Schl Dist, in OH |
| CF | Conservation Futures | 0.0313996660 | $207,147 | $207,147 | $6.50 | | |
| CEM1 | Cemetery #1 | 0.0040018856 | $207,147 | $207,147 | $0.83 | | |
| COH | City of Oak Harbor | 2.3090730572 | $207,147 | $207,147 | $478.32 | | |
| OAKBOND | City of Oak Harbor BOND | 0.1902260131 | $207,147 | $207,147 | $39.40 | | |
| HOBOND | Hospital BOND | 0.1893405597 | $207,147 | $207,147 | $39.22 | | |
| HOGEN | Hospital GEN | 0.3848777722 | $207,147 | $207,147 | $79.73 | | |
| CE | County Current Expense | 0.3674210519 | $207,147 | $207,147 | $76.11 | | |
| ISLANDEMS | Hospital GEN (EMS) | 0.4952018576 | $207,147 | $207,147 | $102.58 | | |
| LIB | Library Sno-Isle GEN | 0.3039084203 | $207,147 | $207,147 | $62.95 | | |
| NWHIDPRMT | P & R N Whidbey GEN | 0.1990272349 | $207,147 | $207,147 | $41.23 | | |
| SCH201MO | School 201 Enrichment | 2.3851112745 | $207,147 | $207,147 | $494.07 | | |
| ST | State School | 1.4761226122 | $207,147 | $207,147 | $305.77 | | |
| ST2 | State School Part 2 | 0.7953803475 | $207,147 | $207,147 | $164.76 | | |
| | Total Tax Rate: | 9.1310917527 | | | | | |
| | | | | Taxes w/Current Exemptions: | $1,891.47 | | |
| | | | | Taxes w/o Exemptions: | $1,891.47 | | |
Improvement / Building
| Improvement #1: | RESIDENTIAL | State Code: | A1 | 766.0 sqft | Value: | $122,147 |
| Bathrooms: | 1 | Bedrooms: | 1 | | Ceiling: | DRYWALL PAINTED | Exterior Wall/Cover: | WOOD SIDING | | Floor Covering: | CARPET/VINYL 80-20 | Floor Structure: | SLAB ON GRADE | | Foundation: | SLAB/CONCRETE | Heating: | BASEBOARD ELECTRIC | | Interior Finish: | DRYWALL PAINT | Plumbing Fixture Cnt: | 6 | | Roof Slope: | FLAT | Roof Structure/Cover: | BEAM BUILT-UP ROCK |
|
| | Type | Description | Class CD | Sub Class CD | Year Built | Area |
| | BAS | BASE/MAIN FLOOR | 3 | 0 | 1972 | 766.0 |
| | OP1 | OPEN PORCH SLAB | 3 | 0 | 1972 | 150.0 |
| | oSTR | STRUCTURE/OTHER FEAT | 3 | 0 | 1972 | 0.0 |
| | oPV1 | PV/ASPH 2" | 3 | 0 | 1972 | 0.0 |
Sketch
Property Image
Land
| 1 | 61 | MULTIPLE RESIDENCES | 0.0303 | 1320.69 | 0.00 | 0.00 | 1.00 | $85,000 | $0 |
Roll Value History
| 2026 | N/A | N/A | N/A | N/A | N/A |
| 2025 | $122,147 | $85,000 | $0 | $207,147 | $207,147 |
| 2024 | $126,388 | $90,000 | $0 | $216,388 | $216,388 |
| 2023 | $116,218 | $90,000 | $0 | $206,218 | $206,218 |
| 2022 | $107,056 | $90,000 | $0 | $197,056 | $197,056 |
| 2021 | $94,844 | $60,000 | $0 | $154,844 | $154,844 |
| 2020 | $92,412 | $55,000 | $0 | $147,412 | $147,412 |
| 2019 | $65,329 | $70,000 | $0 | $135,329 | $135,329 |
| 2018 | $65,540 | $65,000 | $0 | $130,540 | $130,540 |
| 2017 | $50,518 | $42,000 | $0 | $92,518 | $92,518 |
| 2016 | $51,247 | $42,000 | $0 | $93,247 | $93,247 |
| 2015 | $51,976 | $42,000 | $0 | $93,976 | $93,976 |
| 2014 | $52,704 | $42,000 | $0 | $94,704 | $94,704 |
| 2013 | $53,433 | $42,000 | $0 | $95,433 | $95,433 |
| 2012 | $50,429 | $42,000 | $0 | $92,429 | $92,429 |
| 2011 | $50,429 | $57,270 | $0 | $107,699 | $107,699 |
| 2010 | $52,903 | $42,513 | $0 | $95,416 | $95,416 |
| 2009 | $55,292 | $58,568 | $0 | $113,860 | $113,860 |
| 2008 | $56,088 | $30,544 | $0 | $86,632 | $86,632 |
| 2007 | $56,925 | $30,544 | $0 | $87,469 | $87,469 |
Deed and Sales History
| 1 | 05/04/2023 | WD | Warranty Deed | FOSTER, KRISTEN NICOLE | GARZA, MICHAEL ELISEO | | | $208,000.00 | 56630 | 4559625 |
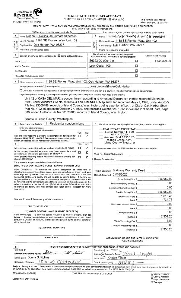
| 2 | 01/10/2020 | WD | Warranty Deed | ROLLINS, DONNA S | FOSTER, KRISTEN NICOLE | | | $146,950.00 | 41800 | 4479284 |
| 3 | 06/26/2017 | WD | Warranty Deed | BARDARSON, SIRI L | ROLLINS, DONNA S | | | $120,000.00 | 29942 | 4425095 |
| 4 | 05/20/2014 | WD | Warranty Deed | VERDUGO, VERONICA | BARDARSON, SIRI L | | | $72,000.00 | 15438 | 4360076 |
| 5 | 05/13/2008 | WD | Warranty Deed | LEGGETT, MARGARET E | VERDUGO, VERONICA | | | $112,900.00 | 81334 | 4229461 |
| 6 | 11/29/2005 | WD | Warranty Deed | MCDANIEL, JOANNE L | LEGGETT, MARGARET E | | | $87,500.00 | 56135 | 4156619 |
| 7 | 02/18/2000 | 5 | DNU - Marriage License/Name Change | LEE, JOANNE | MCDANIEL, JOANNE L | | | $0.00 | 68601 | 0 |
| 8 | 04/01/1994 | WD | Warranty Deed | FARTHING, MARK C | LEE, JOANNE | | | $58,000.00 | 41344 | 94008357 |
| 9 | 04/01/1993 | WD | Warranty Deed | DEL, MAR I | FARTHING, MARK C | | | $46,931.00 | 31552 | 93007976 |
| 10 | 01/01/1900 | OTHER | Other - Misc. Documents | Unknown | DEL, MAR I | | | $0.00 | 24342 | 92021309 |
Payout Agreement
| No payout information available.. |