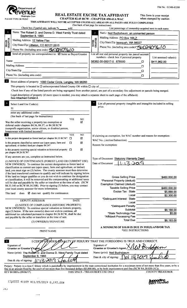
Property
Account |
| Property ID: | 678500 | Abbreviated Legal Description: | THE CEDARS LOT 17 |
| Geographic ID: | S6362-00-00017-0 | Agent Code: | |
| Type: | Real | | |
| Tax Area: | 700 - APPRAISER-S Whid Schl Dist, in town of Langley | Land Use Code | 11 |
| Open Space: | N | DFL | N |
| Historic Property: | N | Remodel Property: | N |
| Multi-Family Redevelopment: | N | | |
| Township: | | Section: | |
| Range: | |
Location |
| Address: | 1090 CEDAR CIR LANGLEY, WA 98260 | Mapsco: | |
| Neighborhood: | City of Langley | Map ID: | 720 |
| Neighborhood CD: | 04-L |
Owner |
| Name: | BUCHSBAUM, NEIL | Owner ID: | 292577 |
| Mailing Address: | 1090 CEDAR CIR LANGLEY, WA 98260-9204 | % Ownership: | 100.0000000000% |
| | | Exemptions: | |
Taxes and Assessment Details
Values
| (+) Improvement Homesite Value: | + | $0 | |
| (+) Improvement Non-Homesite Value: | + | $317,631 | |
| (+) Land Homesite Value: | + | $0 | |
| (+) Land Non-Homesite Value: | + | $270,000 | |
| (+) Curr Use (HS): | + | $0 | $0 |
| (+) Curr Use (NHS): | + | $0 | $0 |
| | | -------------------------- | |
| (=) Market Value: | = | $587,631 | |
| (–) Productivity Loss: | – | $0 | |
| | | -------------------------- | |
| (=) Subtotal: | = | $587,631 | |
| (+) Senior Appraised Value: | + | $0 | |
| (+) Non-Senior Appraised Value: | + | $587,631 | |
| | | -------------------------- | |
| (=) Total Appraised Value: | = | $587,631 | |
| (–) Senior Exemption Loss: | – | $0 | |
| (–) Exemption Loss: | – | $0 | |
| | | -------------------------- | |
| (=) Taxable Value: | = | $587,631 | |
Taxing Jurisdiction
| Owner: | BUCHSBAUM, NEIL | | |
| % Ownership: | 100.0000000000% | | |
| Total Value: | $587,631 | | |
| Tax Area: | 700 - APPRAISER-S Whid Schl Dist, in town of Langley |
| CF | Conservation Futures | 0.0313996660 | $587,631 | $587,631 | $18.45 | | |
| LANG | City of Langley | 1.0106798199 | $587,631 | $587,631 | $593.91 | | |
| LANGBOND | City of Langley BOND | 0.0000000000 | $587,631 | $587,631 | $0.00 | | |
| FIRE3 | Fire & Rescue Dist #3 S Whidbey GEN | 1.2130821753 | $587,631 | $587,631 | $712.84 | | |
| HOBOND | Hospital BOND | 0.1893405597 | $587,631 | $587,631 | $111.26 | | |
| HOGEN | Hospital GEN | 0.3848777722 | $587,631 | $587,631 | $226.17 | | |
| CE | County Current Expense | 0.3674210519 | $587,631 | $587,631 | $215.91 | | |
| ISLANDEMS | Hospital GEN (EMS) | 0.4952018576 | $587,631 | $587,631 | $291.00 | | |
| LIB | Library Sno-Isle GEN | 0.3039084203 | $587,631 | $587,631 | $178.59 | | |
| PORTWHID | Port of S Whidbey GEN | 0.1086004714 | $587,631 | $587,631 | $63.82 | | |
| SCH206BOND | School 206 BOND | 0.5960237832 | $587,631 | $587,631 | $350.24 | | |
| SCH206CAP | School 206 CP | 0.3066144020 | $587,631 | $587,631 | $180.18 | | |
| SCH206MO | School 206 Enrichment | 0.4808755445 | $587,631 | $587,631 | $282.58 | | |
| ST | State School | 1.4761226122 | $587,631 | $587,631 | $867.42 | | |
| ST2 | State School Part 2 | 0.7953803475 | $587,631 | $587,631 | $467.39 | | |
| SWHIDPRBD | P & R S Whidbey BOND | 0.0144185398 | $587,631 | $587,631 | $8.47 | | |
| SWHIDPRBD3 | P & R S Whidbey BOND3 | 0.1483535547 | $587,631 | $587,631 | $87.18 | | |
| SWHIDPRMT | P & R S Whidbey GEN | 0.4600000000 | $587,631 | $587,631 | $270.31 | | |
| | Total Tax Rate: | 8.3823005782 | | | | | |
| | | | | Taxes w/Current Exemptions: | $4,925.72 | | |
| | | | | Taxes w/o Exemptions: | $4,925.72 | | |
Improvement / Building
| Improvement #1: | RESIDENTIAL | State Code: | Y | 1768.0 sqft | Value: | $317,631 |
| Bathrooms: | 2.5 | Bedrooms: | 3 | | Ceiling: | DRYWALL PAINTED | Exterior Wall/Cover: | PLY/HARDBOARD T-111 | | Floor Covering: | HARDWOOD/CARP 60-40 | Floor Structure: | WOOD W/SUBFLOOR | | Foundation: | CONCRETE | Heating: | FHA GAS | | Interior Finish: | DRYWALL PAINT | Plumbing Fixture Cnt: | 12 | | Roof Slope: | 4" IN 12" | Roof Structure/Cover: | CJ ASPHALT |
|
| | Type | Description | Class CD | Sub Class CD | Year Built | Area |
| | BAS | BASE/MAIN FLOOR | 3 | 0 | 1993 | 1028.0 |
| | OP3 | OPEN PORCH W/ROOF | 3 | 0 | 1993 | 32.0 |
| | AGR | ATTACHED GARAGE | 3 | 0 | 1993 | 168.0 |
| | BIG | BUILT IN GARAGE | 3 | 0 | 1993 | 408.0 |
| | UPS | UPPER STORY | 3 | 0 | 1993 | 740.0 |
| | OWR | OPEN WOOD PORCH W/STEPS/ROOF | 3 | 0 | 1993 | 200.0 |
Sketch
Property Image
Land
| 1 | 15 | SQ (12001-21780) | 0.0000 | 0.00 | 0.00 | 0.00 | 1.00 | $270,000 | $0 |
Roll Value History
| 2026 | N/A | N/A | N/A | N/A | N/A |
| 2025 | $317,631 | $270,000 | $0 | $587,631 | $587,631 |
| 2024 | $321,640 | $270,000 | $0 | $591,640 | $591,640 |
| 2023 | $325,649 | $270,000 | $0 | $595,649 | $595,649 |
| 2022 | $298,513 | $240,000 | $0 | $538,513 | $538,513 |
| 2021 | $262,725 | $200,000 | $0 | $462,725 | $462,725 |
| 2020 | $239,865 | $180,000 | $0 | $419,865 | $419,865 |
| 2019 | $181,962 | $230,000 | $0 | $411,962 | $411,962 |
| 2018 | $182,507 | $200,000 | $0 | $382,507 | $382,507 |
| 2017 | $183,601 | $170,000 | $0 | $353,601 | $353,601 |
| 2016 | $185,787 | $150,000 | $0 | $335,787 | $335,787 |
| 2015 | $187,972 | $130,000 | $0 | $317,972 | $317,972 |
| 2014 | $188,937 | $110,000 | $0 | $298,937 | $298,937 |
| 2013 | $191,286 | $110,000 | $0 | $301,286 | $301,286 |
| 2012 | $193,634 | $162,000 | $0 | $355,634 | $355,634 |
| 2011 | $195,982 | $180,000 | $0 | $375,982 | $375,982 |
| 2010 | $201,666 | $180,000 | $0 | $381,666 | $381,666 |
| 2009 | $210,256 | $200,000 | $0 | $410,256 | $410,256 |
| 2008 | $211,598 | $225,000 | $0 | $436,598 | $436,598 |
| 2007 | $214,256 | $183,750 | $0 | $398,006 | $398,006 |
Deed and Sales History
| 1 | 11/13/2019 | WD | Warranty Deed | WEST TRUSTEE, ROBERT D | BUCHSBAUM, NEIL | | | $460,000.00 | 41109 | 4475586 |
| 2 | 01/06/2003 | WD | Warranty Deed | RECUPERO, JAMES S | WEST TRUSTEE, ROBERT D | | | $284,900.00 | 30200 | 4044496 |
| 3 | 05/01/1995 | QCD | Quit Claim Deed | RECUPERO, JAMES S | RECUPERO, JAMES S | | | $0.00 | 51992 | 95009292 |
| 4 | 08/01/1994 | QCD | Quit Claim Deed | RECUPERO, JAMES S | RECUPERO, JAMES S | | | $0.00 | 43485 | 94018481 |
| 5 | 07/01/1993 | WD | Warranty Deed | CASA, GROUP I | RECUPERO, JAMES S | | | $173,500.00 | 32566 | 93013268 |
| 6 | 10/01/1992 | WD | Warranty Deed | J, A M | CASA, GROUP I | | | $51,000.00 | 24096 | 92019924 |
| 7 | 01/01/1900 | OTHER | Other - Misc. Documents | Unknown | J, A M | | | $0.00 | 13117 | 91013279 |
Payout Agreement
| No payout information available.. |