Property
Account |
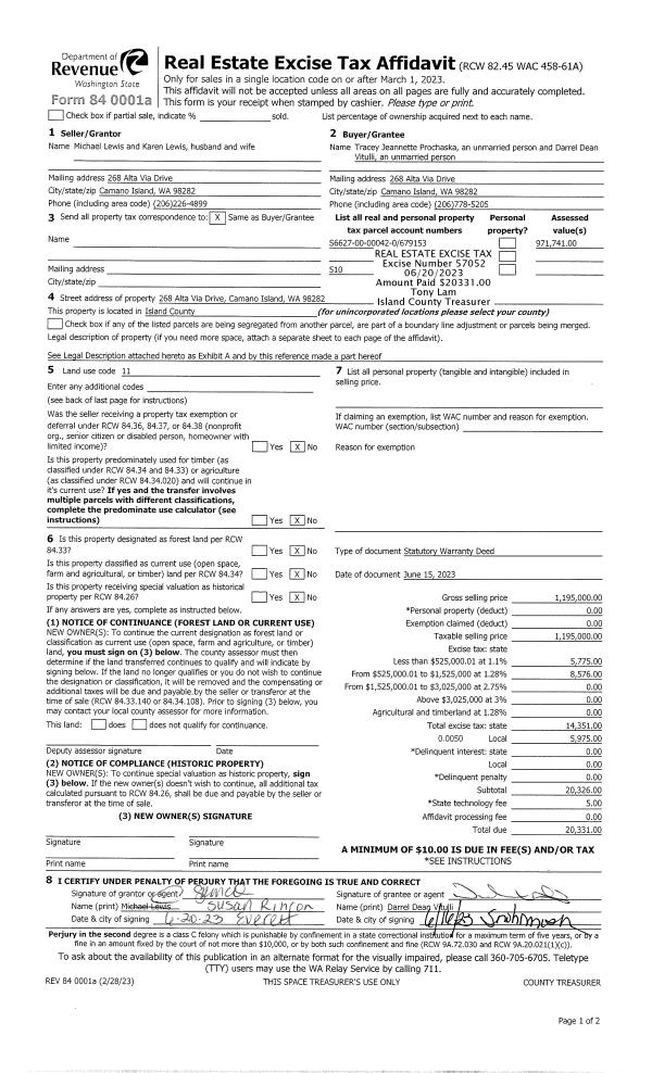
| Property ID: | 679153 | Abbreviated Legal Description: | FINISTERRE HTS - PRD LOT 42 |
| Geographic ID: | S6627-00-00042-0 | Agent Code: | |
| Type: | Real | | |
| Tax Area: | 510 - APPRAISER-Stan/Cam Schl Dist, improved & 1 acre or less | Land Use Code | 11 |
| Open Space: | N | DFL | N |
| Historic Property: | N | Remodel Property: | N |
| Multi-Family Redevelopment: | N | | |
| Township: | | Section: | |
| Range: | |
Location |
| Address: | 268 ALTA VIA DR CAMANO ISLAND, WA 98282 | Mapsco: | |
| Neighborhood: | North Camano | Map ID: | 560 |
| Neighborhood CD: | 06-C |
Owner |
| Name: | PROCHASKA, TRACEY JEANNETTE | Owner ID: | 309017 |
| Mailing Address: | DARREL DEAN VITULLI 268 ALTA VIA DR CAMANO ISLAND, WA 98282 | % Ownership: | 100.0000000000% |
| | | Exemptions: | |
Taxes and Assessment Details
Values
| (+) Improvement Homesite Value: | + | $0 | |
| (+) Improvement Non-Homesite Value: | + | $613,440 | |
| (+) Land Homesite Value: | + | $0 | |
| (+) Land Non-Homesite Value: | + | $500,000 | |
| (+) Curr Use (HS): | + | $0 | $0 |
| (+) Curr Use (NHS): | + | $0 | $0 |
| | | -------------------------- | |
| (=) Market Value: | = | $1,113,440 | |
| (–) Productivity Loss: | – | $0 | |
| | | -------------------------- | |
| (=) Subtotal: | = | $1,113,440 | |
| (+) Senior Appraised Value: | + | $0 | |
| (+) Non-Senior Appraised Value: | + | $1,113,440 | |
| | | -------------------------- | |
| (=) Total Appraised Value: | = | $1,113,440 | |
| (–) Senior Exemption Loss: | – | $0 | |
| (–) Exemption Loss: | – | $0 | |
| | | -------------------------- | |
| (=) Taxable Value: | = | $1,113,440 | |
Taxing Jurisdiction
| Owner: | PROCHASKA, TRACEY JEANNETTE | | |
| % Ownership: | 100.0000000000% | | |
| Total Value: | $1,113,440 | | |
| Tax Area: | 510 - APPRAISER-Stan/Cam Schl Dist, improved & 1 acre or less |
| CF | Conservation Futures | 0.0313996660 | $1,113,440 | $1,113,440 | $34.96 | | |
| EMS1 | Fire & Rescue Dist #1 Camano GEN (EMS) | 0.4998471806 | $1,113,440 | $1,113,440 | $556.55 | | |
| FIRE1 | Fire & Rescue Dist #1 Camano GEN | 1.2496603404 | $1,113,440 | $1,113,440 | $1,391.42 | | |
| FIRE1BOND | Fire & Rescue Dist #1 Camano BOND | 0.1630371212 | $1,113,440 | $1,113,440 | $181.53 | | |
| CE | County Current Expense | 0.3674210519 | $1,113,440 | $1,113,440 | $409.10 | | |
| CR | County Roads | 0.4614296361 | $1,113,440 | $1,113,440 | $513.77 | | |
| LIB | Library Sno-Isle GEN | 0.3039084203 | $1,113,440 | $1,113,440 | $338.38 | | |
| SCH205_401 | School 205-401 Enrichment | 1.3697998934 | $1,113,440 | $1,113,440 | $1,525.19 | | |
| SCH205BOND | School 205-401 BOND | 0.9354199323 | $1,113,440 | $1,113,440 | $1,041.53 | | |
| ST | State School | 1.4761226122 | $1,113,440 | $1,113,440 | $1,643.57 | | |
| ST2 | State School Part 2 | 0.7953803475 | $1,113,440 | $1,113,440 | $885.61 | | |
| | Total Tax Rate: | 7.6534262019 | | | | | |
| | | | | Taxes w/Current Exemptions: | $8,521.61 | | |
| | | | | Taxes w/o Exemptions: | $8,521.61 | | |
Improvement / Building
| Improvement #1: | RESIDENTIAL | State Code: | Y | 2954.0 sqft | Value: | $613,440 |
| Bathrooms: | 3 | Bedrooms: | 3 | | Ceiling: | DRYWALL PAINTED | Exterior Wall/Cover: | STUCCO | | Floor Covering: | HARDWOOD/CARP 60-40 | Floor Structure: | WOOD W/SUBFLOOR | | Foundation: | CONCRETE | Heating: | FHA GAS | | Interior Finish: | DRYWALL PAINT | Plumbing Fixture Cnt: | 15 | | Roof Slope: | 5" IN 12" | Roof Structure/Cover: | CJ ASPHALT |
|
| | Type | Description | Class CD | Sub Class CD | Year Built | Area |
| | BAS | BASE/MAIN FLOOR | 5 | 0 | 1996 | 1952.0 |
| | OP2 | OPEN PORCH W/STEPS | 5 | 0 | 1996 | 40.0 |
| | OP4 | OPEN PORCH W/CEILING-ROOF | 5 | 0 | 1996 | 48.0 |
| | AGR | ATTACHED GARAGE | 5 | 0 | 1996 | 672.0 |
| | OWP | OPEN WOOD PORCH W/STEPS | 5 | 0 | 1996 | 654.0 |
| | DWN | DOWNSTAIRS LIVING AREA | 5 | 0 | 1996 | 1002.0 |
Sketch
Property Image
Land
| 1 | 16 | AC (00.51-01.00) | 0.0000 | 0.00 | 0.00 | 0.00 | 1.00 | $500,000 | $0 |
Roll Value History
| 2026 | N/A | N/A | N/A | N/A | N/A |
| 2025 | $613,440 | $500,000 | $0 | $1,113,440 | $1,113,440 |
| 2024 | $620,809 | $490,000 | $0 | $1,110,809 | $1,110,809 |
| 2023 | $597,184 | $470,000 | $0 | $1,067,184 | $1,067,184 |
| 2022 | $521,741 | $450,000 | $0 | $971,741 | $971,741 |
| 2021 | $459,197 | $260,000 | $0 | $719,197 | $719,197 |
| 2020 | $447,809 | $220,000 | $0 | $667,809 | $667,809 |
| 2019 | $349,928 | $290,000 | $0 | $639,928 | $639,928 |
| 2018 | $350,953 | $250,000 | $0 | $600,953 | $600,953 |
| 2017 | $353,005 | $180,000 | $0 | $533,005 | $533,005 |
| 2016 | $353,304 | $175,000 | $0 | $528,304 | $528,304 |
| 2015 | $357,460 | $150,000 | $0 | $507,460 | $507,460 |
| 2014 | $361,616 | $150,000 | $0 | $511,616 | $511,616 |
| 2013 | $365,773 | $150,000 | $0 | $515,773 | $515,773 |
| 2012 | $369,929 | $160,000 | $0 | $529,929 | $529,929 |
| 2011 | $374,085 | $200,000 | $0 | $574,085 | $574,085 |
| 2010 | $409,288 | $200,000 | $0 | $609,288 | $609,288 |
| 2009 | $427,349 | $250,000 | $0 | $677,349 | $677,349 |
| 2008 | $433,099 | $300,000 | $0 | $733,099 | $733,099 |
| 2007 | $438,847 | $300,000 | $0 | $738,847 | $738,847 |
Deed and Sales History
| 1 | 06/15/2023 | WD | Warranty Deed | LEWIS, MICHAEL | PROCHASKA, TRACEY JEANNETTE | | | $1,195,000.00 | 57052 | 4561264 |
| 2 | 12/01/2015 | SPWARDEED | Special Warranty Deed | BANK OF NEW YORK MELLON | LEWIS, MICHAEL | | | $378,000.00 | 22406 | 4390795 |
| 3 | 09/29/2015 | TRUSTEED | Trustee's Deed | CAVIEZEL, JAMES G | BANK OF NEW YORK MELLON | | | $0.00 | 21632 | 4387205 |
| 4 | 07/25/2000 | WD | Warranty Deed | HAYES, DEAN JR & SUZANNE L | CAVIEZEL, JAMES G | | | $445,000.00 | 2786 | 20013169 |
| 5 | 10/01/1996 | QCD | Quit Claim Deed | HAYES, DEAN J | HAYES, DEAN J | | | $0.00 | 63749 | 96018128 |
| 6 | 12/01/1995 | QCD | Quit Claim Deed | SIMPLIFIED, EXCHANGE | HAYES, DEAN J | | | $0.00 | 60030 | 96000115 |
| 7 | 06/01/1994 | WD | Warranty Deed | GIBBONS, DRILLING I | SIMPLIFIED, EXCHANGE | | | $129,500.00 | 42403 | 94013495 |
| 8 | 01/01/1900 | OTHER | Other - Misc. Documents | Unknown | GIBBONS, DRILLING I | | | $0.00 | 92734 | 89009269 |
Payout Agreement
| No payout information available.. |