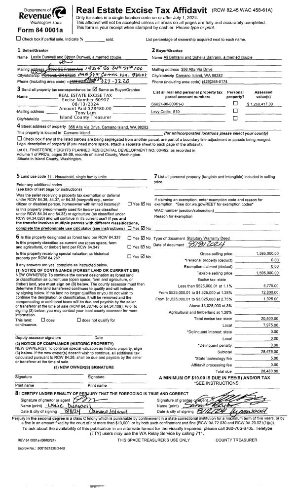
Property
Account |
| Property ID: | 679359 | Abbreviated Legal Description: | FINISTERRE HTS - PRD LOT 61 |
| Geographic ID: | S6627-00-00061-0 | Agent Code: | |
| Type: | Real | | |
| Tax Area: | 510 - APPRAISER-Stan/Cam Schl Dist, improved & 1 acre or less | Land Use Code | 11 |
| Open Space: | N | DFL | N |
| Historic Property: | N | Remodel Property: | N |
| Multi-Family Redevelopment: | N | | |
| Township: | | Section: | |
| Range: | |
Location |
| Address: | 356 ALTA VIA DR CAMANO ISLAND, WA 98282 | Mapsco: | |
| Neighborhood: | North Camano | Map ID: | 560 |
| Neighborhood CD: | 06-C |
Owner |
| Name: | BAHRAMI, ALI | Owner ID: | 313466 |
| Mailing Address: | SOHEILA BAHRAMI 356 ALTA VIA DR CAMANO ISLAND, WA 98282 | % Ownership: | 100.0000000000% |
| | | Exemptions: | |
Taxes and Assessment Details
Values
| (+) Improvement Homesite Value: | + | $0 | |
| (+) Improvement Non-Homesite Value: | + | $1,089,234 | |
| (+) Land Homesite Value: | + | $0 | |
| (+) Land Non-Homesite Value: | + | $500,000 | |
| (+) Curr Use (HS): | + | $0 | $0 |
| (+) Curr Use (NHS): | + | $0 | $0 |
| | | -------------------------- | |
| (=) Market Value: | = | $1,589,234 | |
| (–) Productivity Loss: | – | $0 | |
| | | -------------------------- | |
| (=) Subtotal: | = | $1,589,234 | |
| (+) Senior Appraised Value: | + | $0 | |
| (+) Non-Senior Appraised Value: | + | $1,589,234 | |
| | | -------------------------- | |
| (=) Total Appraised Value: | = | $1,589,234 | |
| (–) Senior Exemption Loss: | – | $0 | |
| (–) Exemption Loss: | – | $0 | |
| | | -------------------------- | |
| (=) Taxable Value: | = | $1,589,234 | |
Taxing Jurisdiction
| Owner: | BAHRAMI, ALI | | |
| % Ownership: | 100.0000000000% | | |
| Total Value: | $1,589,234 | | |
| Tax Area: | 510 - APPRAISER-Stan/Cam Schl Dist, improved & 1 acre or less |
| CF | Conservation Futures | 0.0313996660 | $1,589,234 | $1,589,234 | $49.90 | | |
| EMS1 | Fire & Rescue Dist #1 Camano GEN (EMS) | 0.4998471806 | $1,589,234 | $1,589,234 | $794.37 | | |
| FIRE1 | Fire & Rescue Dist #1 Camano GEN | 1.2496603404 | $1,589,234 | $1,589,234 | $1,986.00 | | |
| FIRE1BOND | Fire & Rescue Dist #1 Camano BOND | 0.1630371212 | $1,589,234 | $1,589,234 | $259.10 | | |
| CE | County Current Expense | 0.3674210519 | $1,589,234 | $1,589,234 | $583.92 | | |
| CR | County Roads | 0.4614296361 | $1,589,234 | $1,589,234 | $733.32 | | |
| LIB | Library Sno-Isle GEN | 0.3039084203 | $1,589,234 | $1,589,234 | $482.98 | | |
| SCH205_401 | School 205-401 Enrichment | 1.3697998934 | $1,589,234 | $1,589,234 | $2,176.93 | | |
| SCH205BOND | School 205-401 BOND | 0.9354199323 | $1,589,234 | $1,589,234 | $1,486.60 | | |
| ST | State School | 1.4761226122 | $1,589,234 | $1,589,234 | $2,345.90 | | |
| ST2 | State School Part 2 | 0.7953803475 | $1,589,234 | $1,589,234 | $1,264.05 | | |
| | Total Tax Rate: | 7.6534262019 | | | | | |
| | | | | Taxes w/Current Exemptions: | $12,163.07 | | |
| | | | | Taxes w/o Exemptions: | $12,163.07 | | |
Improvement / Building
| Improvement #1: | RESIDENTIAL | State Code: | Y | 3280.5 sqft | Value: | $1,089,234 |
| Bathrooms: | 3 | Bedrooms: | 4 | | Ceiling: | DRYWALL PAINTED | Cooling: | HEAT PUMP/CONV/V | | Exterior Wall/Cover: | WOOD SIDING | Floor Covering: | HARDWOOD/CARP 60-40 | | Floor Structure: | WOOD W/SUBFLOOR | Foundation: | CONCRETE | | Interior Finish: | DRYWALL PAINT | Plumbing Fixture Cnt: | 15 | | Roof Slope: | 6" IN 12" | Roof Structure/Cover: | CJ ASPHALT |
|
| | Type | Description | Class CD | Sub Class CD | Year Built | Area |
| | BAS | BASE/MAIN FLOOR | 6 | 0 | 1998 | 2573.4 |
| | OP4 | OPEN PORCH W/CEILING-ROOF | 6 | 0 | 1998 | 261.6 |
| | AGR | ATTACHED GARAGE | 6 | 0 | 1998 | 686.2 |
| | OCP | OPEN CARPORT | 6 | 0 | 1998 | 275.5 |
| | UPS | UPPER STORY | 6 | 0 | 1998 | 707.1 |
| | OP4 | OPEN PORCH W/CEILING-ROOF | 6 | 0 | 1998 | 79.7 |
| | OWP | OPEN WOOD PORCH W/STEPS | 6 | 0 | 1998 | 314.0 |
| | OP1 | OPEN PORCH SLAB | 6 | 0 | 1998 | 3330.5 |
| | OP1 | OPEN PORCH SLAB | 6 | 0 | 1998 | 3751.8 |
Sketch
| No sketches available for this property. |
Property Image
Land
| 1 | 15 | SQ (12001-21780) | 0.0000 | 0.00 | 0.00 | 0.00 | 1.00 | $500,000 | $0 |
Roll Value History
| 2026 | N/A | N/A | N/A | N/A | N/A |
| 2025 | $1,089,234 | $500,000 | $0 | $1,589,234 | $1,589,234 |
| 2024 | $770,417 | $490,000 | $0 | $1,260,417 | $1,260,417 |
| 2023 | $779,246 | $470,000 | $0 | $1,249,246 | $1,249,246 |
| 2022 | $675,562 | $450,000 | $0 | $1,125,562 | $1,125,562 |
| 2021 | $594,430 | $260,000 | $0 | $854,430 | $854,430 |
| 2020 | $579,348 | $220,000 | $0 | $799,348 | $799,348 |
| 2019 | $493,244 | $290,000 | $0 | $783,244 | $783,244 |
| 2018 | $494,655 | $250,000 | $0 | $744,655 | $744,655 |
| 2017 | $497,439 | $180,000 | $0 | $677,439 | $677,439 |
| 2016 | $490,526 | $175,000 | $0 | $665,526 | $665,526 |
| 2015 | $491,003 | $150,000 | $0 | $641,003 | $641,003 |
| 2014 | $496,583 | $150,000 | $0 | $646,583 | $646,583 |
| 2013 | $502,162 | $150,000 | $0 | $652,162 | $652,162 |
| 2012 | $507,741 | $160,000 | $0 | $667,741 | $667,741 |
| 2011 | $513,322 | $200,000 | $0 | $713,322 | $713,322 |
| 2010 | $510,221 | $242,000 | $0 | $752,221 | $752,221 |
| 2009 | $532,318 | $300,000 | $0 | $832,318 | $832,318 |
| 2008 | $538,811 | $300,000 | $0 | $838,811 | $838,811 |
| 2007 | $632,178 | $300,000 | $0 | $932,178 | $932,178 |
Deed and Sales History
| 1 | 08/08/2024 | WD | Warranty Deed | DUNWELL, LESLIE | BAHRAMI, ALI | | | $1,595,000.00 | 60907 | 4575718 |
| 2 | 11/07/2018 | WD | Warranty Deed | WEINERT, DAVID G / YVONNE M | DUNWELL, LESLIE | | | $805,000.00 | 36646 | 4454996 |
| 3 | 04/27/1998 | WD | Warranty Deed | WEINERT, DAVID G | WEINERT, DAVID G/YVONNE M | | | $141,000.00 | 81634 | 98008728 |
| 4 | 10/01/1995 | WD | Warranty Deed | SPANGENBERG, VERNE M | RICHARDS, CARL J | | | $139,000.00 | 53700 | 95017011 |
| 5 | 02/01/1993 | WD | Warranty Deed | GIBBONS, DRILLING I | SPANGENBERG, VERNE M | | | $116,910.00 | 30518 | 93002810 |
| 6 | 01/01/1900 | OTHER | Other - Misc. Documents | Unknown | GIBBONS, DRILLING I | | | $0.00 | 92734 | 89009269 |
| 7 | 01/01/1900 | OTHER | Other - Misc. Documents | RICHARDS, CARL J | WEINERT, DAVID G | | | $0.00 | 81634 | 98008728 |
Payout Agreement
| No payout information available.. |