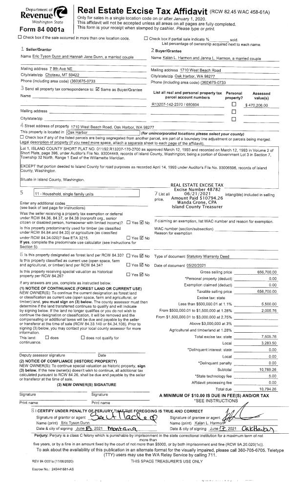
Property
Account |
| Property ID: | 680604 | Abbreviated Legal Description: | LOT 1 SP 11-92.13207.170-2700 V2 SP P396 AF#93004449 |
| Geographic ID: | R13207-142-2370 | Agent Code: | |
| Type: | Real | | |
| Tax Area: | 112 - APPRAISER-OH Schl Dist, outside OH, improved, greater than 1 acre | Land Use Code | 11 |
| Open Space: | N | DFL | N |
| Historic Property: | N | Remodel Property: | N |
| Multi-Family Redevelopment: | N | | |
| Township: | 32 | Section: | 07 |
| Range: | R1 |
Location |
| Address: | 1710 WEST BEACH RD OAK HARBOR, WA 98277 | Mapsco: | |
| Neighborhood: | Cycle 1 | Map ID: | 104 |
| Neighborhood CD: | 1 |
Owner |
| Name: | HARMON, KALAN L | Owner ID: | 299874 |
| Mailing Address: | JANNA L HARMON 1710 WEST BEACH RD OAK HARBOR, WA 98277 | % Ownership: | 100.0000000000% |
| | | Exemptions: | |
Taxes and Assessment Details
Values
| (+) Improvement Homesite Value: | + | $0 | |
| (+) Improvement Non-Homesite Value: | + | $419,731 | |
| (+) Land Homesite Value: | + | $0 | |
| (+) Land Non-Homesite Value: | + | $260,000 | |
| (+) Curr Use (HS): | + | $0 | $0 |
| (+) Curr Use (NHS): | + | $0 | $0 |
| | | -------------------------- | |
| (=) Market Value: | = | $679,731 | |
| (–) Productivity Loss: | – | $0 | |
| | | -------------------------- | |
| (=) Subtotal: | = | $679,731 | |
| (+) Senior Appraised Value: | + | $0 | |
| (+) Non-Senior Appraised Value: | + | $679,731 | |
| | | -------------------------- | |
| (=) Total Appraised Value: | = | $679,731 | |
| (–) Senior Exemption Loss: | – | $0 | |
| (–) Exemption Loss: | – | $0 | |
| | | -------------------------- | |
| (=) Taxable Value: | = | $679,731 | |
Taxing Jurisdiction
| Owner: | HARMON, KALAN L | | |
| % Ownership: | 100.0000000000% | | |
| Total Value: | $679,731 | | |
| Tax Area: | 112 - APPRAISER-OH Schl Dist, outside OH, improved, greater than 1 acre |
| CF | Conservation Futures | 0.0313996660 | $679,731 | $679,731 | $21.34 | | |
| CEM1 | Cemetery #1 | 0.0040018856 | $679,731 | $679,731 | $2.72 | | |
| FIRE2 | Fire & Rescue Dist #2 N Whidbey GEN | 0.5381486274 | $679,731 | $679,731 | $365.80 | | |
| HOBOND | Hospital BOND | 0.1893405597 | $679,731 | $679,731 | $128.70 | | |
| HOGEN | Hospital GEN | 0.3848777722 | $679,731 | $679,731 | $261.61 | | |
| CE | County Current Expense | 0.3674210519 | $679,731 | $679,731 | $249.75 | | |
| CR | County Roads | 0.4614296361 | $679,731 | $679,731 | $313.65 | | |
| ISLANDEMS | Hospital GEN (EMS) | 0.4952018576 | $679,731 | $679,731 | $336.60 | | |
| LIB | Library Sno-Isle GEN | 0.3039084203 | $679,731 | $679,731 | $206.58 | | |
| NWHIDPRMT | P & R N Whidbey GEN | 0.1990272349 | $679,731 | $679,731 | $135.28 | | |
| SCH201MO | School 201 Enrichment | 2.3851112745 | $679,731 | $679,731 | $1,621.23 | | |
| ST | State School | 1.4761226122 | $679,731 | $679,731 | $1,003.37 | | |
| ST2 | State School Part 2 | 0.7953803475 | $679,731 | $679,731 | $540.64 | | |
| | Total Tax Rate: | 7.6313709459 | | | | | |
| | | | | Taxes w/Current Exemptions: | $5,187.27 | | |
| | | | | Taxes w/o Exemptions: | $5,187.27 | | |
Improvement / Building
| Improvement #1: | RESIDENTIAL | State Code: | Y | 1560.2 sqft | Value: | $419,731 |
| Bathrooms: | 2 | Bedrooms: | 3 | | Ceiling: | DRYWALL PAINTED | Cooling: | HEAT PUMP/CONV/V | | Exterior Wall/Cover: | PLY/HARDBOARD T-111 | Floor Covering: | CARPET/VINYL 20-80 | | Floor Structure: | WOOD W/SUBFLOOR | Foundation: | CONCRETE | | Interior Finish: | DRYWALL PAINT | Plumbing Fixture Cnt: | 9 | | Roof Slope: | 6" IN 12" | Roof Structure/Cover: | CJ ASPHALT |
|
| | Type | Description | Class CD | Sub Class CD | Year Built | Area |
| | BAS | BASE/MAIN FLOOR | 4 | 0 | 1993 | 1560.2 |
| | AGR | ATTACHED GARAGE | 4 | 0 | 1993 | 473.0 |
| | OWP | OPEN WOOD PORCH W/STEPS | 4 | 0 | 1993 | 198.0 |
| | OWC | OPEN WOOD PORCH W/STEPS/ROOF/C | 4 | 0 | 1993 | 90.2 |
| | DGR | DETACHED GARAGE | 4 | 0 | 1993 | 1472.0 |
| | ATF | ATTIC FINISHED | 4 | 0 | 1993 | 736.0 |
Sketch
Property Image
Land
| 1 | 18 | AC (02.01-03.00) | 2.8900 | 125888.40 | 0.00 | 0.00 | 1.00 | $260,000 | $0 |
Roll Value History
| 2026 | N/A | N/A | N/A | N/A | N/A |
| 2025 | $419,731 | $260,000 | $0 | $679,731 | $679,731 |
| 2024 | $425,026 | $250,000 | $0 | $675,026 | $675,026 |
| 2023 | $419,731 | $240,000 | $0 | $659,731 | $659,731 |
| 2022 | $384,896 | $220,000 | $0 | $604,896 | $604,896 |
| 2021 | $338,862 | $180,000 | $0 | $518,862 | $518,862 |
| 2020 | $330,206 | $140,000 | $0 | $470,206 | $470,206 |
| 2019 | $241,625 | $200,000 | $0 | $441,625 | $441,625 |
| 2018 | $242,349 | $160,000 | $0 | $402,349 | $402,349 |
| 2017 | $249,529 | $150,000 | $0 | $399,529 | $399,529 |
| 2016 | $221,810 | $120,000 | $0 | $341,810 | $341,810 |
| 2015 | $223,859 | $100,000 | $0 | $323,859 | $323,859 |
| 2014 | $225,908 | $97,750 | $0 | $323,658 | $323,658 |
| 2013 | $227,956 | $97,750 | $0 | $325,706 | $325,706 |
| 2012 | $230,006 | $97,750 | $0 | $327,756 | $327,756 |
| 2011 | $217,793 | $115,000 | $0 | $332,793 | $332,793 |
| 2010 | $218,168 | $115,000 | $0 | $333,168 | $333,168 |
| 2009 | $226,397 | $132,000 | $0 | $358,397 | $358,397 |
| 2008 | $233,800 | $132,000 | $0 | $365,800 | $365,800 |
| 2007 | $237,151 | $132,000 | $0 | $369,151 | $369,151 |
Deed and Sales History
| 1 | 05/20/2021 | WD | Warranty Deed | DUNN, ERIC TYSON | HARMON, KALAN L | | | $656,700.00 | 48782 | 4522350 |
| 2 | 11/15/2016 | WD | Warranty Deed | PIZZUTO, MICHAEL C | DUNN, ERIC TYSON | | | $375,000.00 | 27247 | 4413086 |
| 3 | 05/05/2011 | WD | Warranty Deed | HETHERINGTON, WILLIAM L | PIZZUTO, MICHAEL C | | | $110,000.00 | 4380 | 4294915 |
| 4 | 03/01/1993 | QCD | Quit Claim Deed | HETHERINGTON, RICHARD K | HETHERINGTON, WILLIAM L | | | $0.00 | 30942 | 93004954 |
| 5 | 01/01/1900 | OTHER | Other - Misc. Documents | Unknown | HETHERINGTON, RICHARD K | | | $0.00 | 22544 | 92012232 |
Payout Agreement
| No payout information available.. |