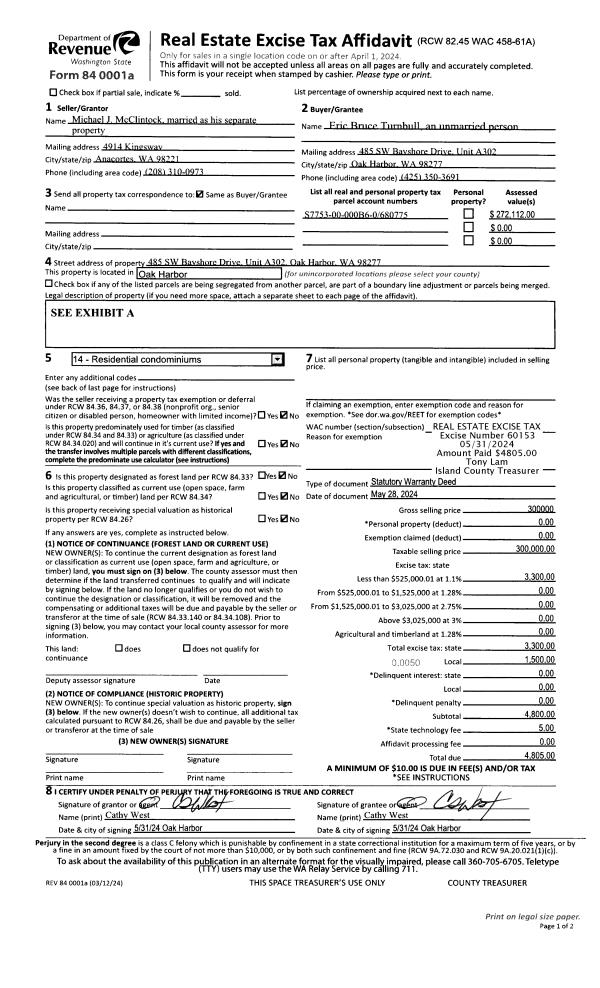
Property
Account |
| Property ID: | 680775 | Abbreviated Legal Description: | POINTE OF VIEW CONDO UNIT B-6 1/27TH INT |
| Geographic ID: | S7753-00-000B6-0 | Agent Code: | |
| Type: | Real | | |
| Tax Area: | 100 - APPRAISER-OH Schl Dist, in OH | Land Use Code | 14 |
| Open Space: | N | DFL | N |
| Historic Property: | N | Remodel Property: | N |
| Multi-Family Redevelopment: | N | | |
| Township: | | Section: | |
| Range: | |
Location |
| Address: | 485 SW Bayshore Dr. Unit A302 Oak Harbor, WA 98277 | Mapsco: | |
| Neighborhood: | 3A*OH-point view | Map ID: | 91 |
| Neighborhood CD: | 3A*OHptviw |
Owner |
| Name: | TURNBULL, ERIC BRUCE | Owner ID: | 312574 |
| Mailing Address: | 485 SW BAYSHORE DR, UNIT A302 OAK HARBOR, WA 98277 | % Ownership: | 100.0000000000% |
| | | Exemptions: | |
Taxes and Assessment Details
Values
| (+) Improvement Homesite Value: | + | $0 | |
| (+) Improvement Non-Homesite Value: | + | $167,616 | |
| (+) Land Homesite Value: | + | $0 | |
| (+) Land Non-Homesite Value: | + | $120,000 | |
| (+) Curr Use (HS): | + | $0 | $0 |
| (+) Curr Use (NHS): | + | $0 | $0 |
| | | -------------------------- | |
| (=) Market Value: | = | $287,616 | |
| (–) Productivity Loss: | – | $0 | |
| | | -------------------------- | |
| (=) Subtotal: | = | $287,616 | |
| (+) Senior Appraised Value: | + | $0 | |
| (+) Non-Senior Appraised Value: | + | $287,616 | |
| | | -------------------------- | |
| (=) Total Appraised Value: | = | $287,616 | |
| (–) Senior Exemption Loss: | – | $0 | |
| (–) Exemption Loss: | – | $0 | |
| | | -------------------------- | |
| (=) Taxable Value: | = | $287,616 | |
Taxing Jurisdiction
| Owner: | TURNBULL, ERIC BRUCE | | |
| % Ownership: | 100.0000000000% | | |
| Total Value: | $287,616 | | |
| Tax Area: | 100 - APPRAISER-OH Schl Dist, in OH |
| CF | Conservation Futures | 0.0313996660 | $287,616 | $287,616 | $9.03 | | |
| CEM1 | Cemetery #1 | 0.0040018856 | $287,616 | $287,616 | $1.15 | | |
| COH | City of Oak Harbor | 2.3090730572 | $287,616 | $287,616 | $664.13 | | |
| OAKBOND | City of Oak Harbor BOND | 0.1902260131 | $287,616 | $287,616 | $54.71 | | |
| HOBOND | Hospital BOND | 0.1893405597 | $287,616 | $287,616 | $54.46 | | |
| HOGEN | Hospital GEN | 0.3848777722 | $287,616 | $287,616 | $110.70 | | |
| CE | County Current Expense | 0.3674210519 | $287,616 | $287,616 | $105.68 | | |
| ISLANDEMS | Hospital GEN (EMS) | 0.4952018576 | $287,616 | $287,616 | $142.43 | | |
| LIB | Library Sno-Isle GEN | 0.3039084203 | $287,616 | $287,616 | $87.41 | | |
| NWHIDPRMT | P & R N Whidbey GEN | 0.1990272349 | $287,616 | $287,616 | $57.24 | | |
| SCH201MO | School 201 Enrichment | 2.3851112745 | $287,616 | $287,616 | $686.00 | | |
| ST | State School | 1.4761226122 | $287,616 | $287,616 | $424.56 | | |
| ST2 | State School Part 2 | 0.7953803475 | $287,616 | $287,616 | $228.76 | | |
| | Total Tax Rate: | 9.1310917527 | | | | | |
| | | | | Taxes w/Current Exemptions: | $2,626.26 | | |
| | | | | Taxes w/o Exemptions: | $2,626.26 | | |
Improvement / Building
| Improvement #1: | RESIDENTIAL | State Code: | A1 | 972.0 sqft | Value: | $167,616 |
| Bathrooms: | 2 | Bedrooms: | 2 | | Ceiling: | DRYWALL PAINTED | Exterior Wall/Cover: | PLY/HARDBOARD T-111 | | Floor Covering: | CARPET/VINYL 80-20 | Floor Structure: | WOOD W/SUBFLOOR | | Foundation: | CONCRETE | Heating: | WALL HEAT ELECTRIC | | Interior Finish: | DRYWALL PAINT | Plumbing Fixture Cnt: | 9 | | Roof Slope: | 4" IN 12" | Roof Structure/Cover: | CJ ASPHALT |
|
| | Type | Description | Class CD | Sub Class CD | Year Built | Area |
| | BAS | BASE/MAIN FLOOR | 3 | 0 | 1992 | 972.0 |
| | UTY | STORAGE/UTILITY | 3 | 0 | 1992 | 18.0 |
| | OWP | OPEN WOOD PORCH W/STEPS | 3 | 0 | 1992 | 72.0 |
| | OCP | OPEN CARPORT | 3 | 0 | 1992 | 162.0 |
| | COMA | Common Area Improvement | 3 | 0 | 1992 | 0.0 |
Sketch
Property Image
Land
| 1 | 61 | MULTIPLE RESIDENCES | 0.0000 | 2027.00 | 0.00 | 0.00 | 1.00 | $120,000 | $0 |
Roll Value History
| 2026 | N/A | N/A | N/A | N/A | N/A |
| 2025 | $167,616 | $120,000 | $0 | $287,616 | $287,616 |
| 2024 | $169,863 | $100,000 | $0 | $269,863 | $269,863 |
| 2023 | $172,112 | $100,000 | $0 | $272,112 | $272,112 |
| 2022 | $158,585 | $100,000 | $0 | $258,585 | $258,585 |
| 2021 | $140,642 | $75,000 | $0 | $215,642 | $215,642 |
| 2020 | $136,843 | $75,000 | $0 | $211,843 | $211,843 |
| 2019 | $87,005 | $95,000 | $0 | $182,005 | $182,005 |
| 2018 | $87,284 | $65,000 | $0 | $152,284 | $152,284 |
| 2017 | $87,841 | $30,405 | $0 | $118,246 | $118,246 |
| 2016 | $88,956 | $30,405 | $0 | $119,361 | $119,361 |
| 2015 | $90,069 | $30,405 | $0 | $120,474 | $120,474 |
| 2014 | $91,183 | $30,405 | $0 | $121,588 | $121,588 |
| 2013 | $91,047 | $30,405 | $0 | $121,452 | $121,452 |
| 2012 | $93,275 | $30,405 | $0 | $123,680 | $123,680 |
| 2011 | $93,275 | $30,405 | $0 | $123,680 | $123,680 |
| 2010 | $95,912 | $23,655 | $0 | $119,567 | $119,567 |
| 2009 | $99,929 | $56,756 | $0 | $156,685 | $156,685 |
| 2008 | $101,239 | $56,756 | $0 | $157,995 | $157,995 |
| 2007 | $102,556 | $56,756 | $0 | $159,312 | $159,312 |
Deed and Sales History
| 1 | 05/28/2024 | WD | Warranty Deed | MCCLINTOCK, MICHAEL J | TURNBULL, ERIC BRUCE | | | $300,000.00 | 60153 | 4572938 |
| 2 | 07/01/1995 | WD | Warranty Deed | NELSON, JAMES A | MCCLINTOCK, MICHAEL J | | | $92,000.00 | 52566 | 95011853 |
| 3 | 12/01/1993 | WD | Warranty Deed | ISLAND, CONSTRUCTION I | NELSON, JAMES A | | | $82,000.00 | 35040 | 93026312 |
| 4 | 01/01/1900 | OTHER | Other - Misc. Documents | Unknown | ISLAND, CONSTRUCTION I | | | $0.00 | 30724 | 93003742 |
Payout Agreement
| No payout information available.. |