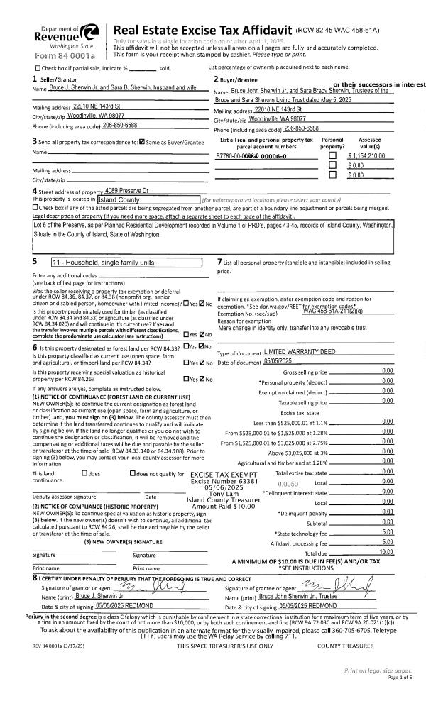
Property
Account |
| Property ID: | 683479 | Abbreviated Legal Description: | THE PRESERVE - PRD LOT 6 |
| Geographic ID: | S7780-00-00006-0 | Agent Code: | |
| Type: | Real | | |
| Tax Area: | 540 - APPRAISER-Stan/Cam Schl Dist, Special Dist, improved & less than 1 acre | Land Use Code | 11 |
| Open Space: | N | DFL | N |
| Historic Property: | N | Remodel Property: | N |
| Multi-Family Redevelopment: | N | | |
| Township: | | Section: | |
| Range: | |
Location |
| Address: | 4089 PRESERVE DR CAMANO ISLAND, WA 98282 | Mapsco: | |
| Neighborhood: | 58RecamWV-East Cam | Map ID: | 891 |
| Neighborhood CD: | 58RecamWV |
Owner |
| Name: | SHERWIN JR TTEE, BRUCE JOHN | Owner ID: | 316393 |
| Mailing Address: | SARA BRADY SHERWIN TTEE 22010 NE 143RD ST WOODINVILLE, WA 98077 | % Ownership: | 100.0000000000% |
| | | Exemptions: | |
Taxes and Assessment Details
Values
| (+) Improvement Homesite Value: | + | $0 | |
| (+) Improvement Non-Homesite Value: | + | $673,775 | |
| (+) Land Homesite Value: | + | $0 | |
| (+) Land Non-Homesite Value: | + | $500,000 | |
| (+) Curr Use (HS): | + | $0 | $0 |
| (+) Curr Use (NHS): | + | $0 | $0 |
| | | -------------------------- | |
| (=) Market Value: | = | $1,173,775 | |
| (–) Productivity Loss: | – | $0 | |
| | | -------------------------- | |
| (=) Subtotal: | = | $1,173,775 | |
| (+) Senior Appraised Value: | + | $0 | |
| (+) Non-Senior Appraised Value: | + | $1,173,775 | |
| | | -------------------------- | |
| (=) Total Appraised Value: | = | $1,173,775 | |
| (–) Senior Exemption Loss: | – | $0 | |
| (–) Exemption Loss: | – | $0 | |
| | | -------------------------- | |
| (=) Taxable Value: | = | $1,173,775 | |
Taxing Jurisdiction
| Owner: | SHERWIN JR TTEE, BRUCE JOHN | | |
| % Ownership: | 100.0000000000% | | |
| Total Value: | $1,173,775 | | |
| Tax Area: | 540 - APPRAISER-Stan/Cam Schl Dist, Special Dist, improved & less than 1 acre |
| CF | Conservation Futures | 0.0313996660 | $1,173,775 | $1,173,775 | $36.86 | | |
| EMS1 | Fire & Rescue Dist #1 Camano GEN (EMS) | 0.4998471806 | $1,173,775 | $1,173,775 | $586.71 | | |
| FIRE1 | Fire & Rescue Dist #1 Camano GEN | 1.2496603404 | $1,173,775 | $1,173,775 | $1,466.82 | | |
| FIRE1BOND | Fire & Rescue Dist #1 Camano BOND | 0.1630371212 | $1,173,775 | $1,173,775 | $191.37 | | |
| CE | County Current Expense | 0.3674210519 | $1,173,775 | $1,173,775 | $431.27 | | |
| CR | County Roads | 0.4614296361 | $1,173,775 | $1,173,775 | $541.61 | | |
| LIB | Library Sno-Isle GEN | 0.3039084203 | $1,173,775 | $1,173,775 | $356.72 | | |
| SCH205_401 | School 205-401 Enrichment | 1.3697998934 | $1,173,775 | $1,173,775 | $1,607.84 | | |
| SCH205BOND | School 205-401 BOND | 0.9354199323 | $1,173,775 | $1,173,775 | $1,097.97 | | |
| ST | State School | 1.4761226122 | $1,173,775 | $1,173,775 | $1,732.64 | | |
| ST2 | State School Part 2 | 0.7953803475 | $1,173,775 | $1,173,775 | $933.60 | | |
| | Total Tax Rate: | 7.6534262019 | | | | | |
| | | | | Taxes w/Current Exemptions: | $8,983.41 | | |
| | | | | Taxes w/o Exemptions: | $8,983.41 | | |
Improvement / Building
| Improvement #1: | RESIDENTIAL | State Code: | Y | 3906.0 sqft | Value: | $673,775 |
| Bathrooms: | 4 | Bedrooms: | 4 | | Ceiling: | DRYWALL PAINTED | Exterior Wall/Cover: | CEMENT FIBER | | Floor Covering: | VINYL TILE | Floor Structure: | WOOD W/SUBFLOOR | | Foundation: | CONCRETE | Heating: | FHA GAS | | Interior Finish: | DRYWALL PAINT | Plumbing Fixture Cnt: | 21 | | Roof Slope: | 10" IN 12" | Roof Structure/Cover: | CJ ALUMINIUM HEAVY |
|
| | Type | Description | Class CD | Sub Class CD | Year Built | Area |
| | UPS | UPPER STORY | 4 | 0 | 2019 | 1349.0 |
| | BIG | BUILT IN GARAGE | 4 | 0 | 2019 | 756.0 |
| | OWC | OPEN WOOD PORCH W/STEPS/ROOF/C | 4 | 0 | 2019 | 67.5 |
| | OWC | OPEN WOOD PORCH W/STEPS/ROOF/C | 4 | 0 | 2019 | 260.0 |
| | BAS | BASE/MAIN FLOOR | 4 | 0 | 2019 | 1434.5 |
| | DWN | DOWNSTAIRS LIVING AREA | 4 | 0 | 2019 | 1122.5 |
| | OWC | OPEN WOOD PORCH W/STEPS/ROOF/C | 4 | 0 | 2019 | 60.0 |
| | OWP | OPEN WOOD PORCH W/STEPS | 4 | 0 | 2019 | 264.0 |
| | UTY | STORAGE/UTILITY | 4 | 0 | 2019 | 104.0 |
Sketch
Property Image
Land
| 1 | HB | HIGH BLUFF | 0.6000 | 26136.00 | 100.00 | 0.00 | 1.00 | $500,000 | $0 |
Roll Value History
| 2026 | N/A | N/A | N/A | N/A | N/A |
| 2025 | $673,775 | $500,000 | $0 | $1,173,775 | $1,173,775 |
| 2024 | $679,210 | $475,000 | $0 | $1,154,210 | $1,154,210 |
| 2023 | $684,643 | $475,000 | $0 | $1,159,643 | $1,159,643 |
| 2022 | $624,853 | $350,000 | $0 | $974,853 | $974,853 |
| 2021 | $578,602 | $325,000 | $0 | $903,602 | $903,602 |
| 2020 | $566,057 | $300,000 | $0 | $866,057 | $866,057 |
| 2019 | $165,592 | $110,000 | $0 | $275,592 | $275,592 |
| 2018 | $0 | $100,000 | $0 | $100,000 | $100,000 |
| 2017 | $0 | $70,000 | $0 | $70,000 | $70,000 |
| 2016 | $0 | $70,000 | $0 | $70,000 | $70,000 |
| 2015 | $0 | $70,000 | $0 | $70,000 | $70,000 |
| 2014 | $0 | $70,000 | $0 | $70,000 | $70,000 |
| 2013 | $0 | $72,783 | $0 | $72,783 | $72,783 |
| 2012 | $0 | $72,783 | $0 | $72,783 | $72,783 |
| 2011 | $0 | $90,979 | $0 | $90,979 | $90,979 |
| 2010 | $0 | $129,970 | $0 | $129,970 | $129,970 |
| 2009 | $0 | $186,476 | $0 | $186,476 | $186,476 |
| 2008 | $0 | $165,000 | $0 | $165,000 | $165,000 |
| 2007 | $0 | $165,000 | $0 | $165,000 | $165,000 |
Deed and Sales History
| 1 | 05/05/2025 | WD | Warranty Deed | SHERWIN JR, BRUCE J | SHERWIN JR TTEE, BRUCE JOHN | | | $0.00 | 63381 | 4585406 |
| 2 | 09/18/2017 | WD | Warranty Deed | TAY TRUSTEE, SAM | SHERWIN JR, BRUCE J | | | $118,389.00 | 31153 | 4430502 |
| 3 | 10/02/2001 | QCD | Quit Claim Deed | TAY, SAM | TAY TRUSTEE, SAM | | | $0.00 | 13857 | 20044760 |
| 4 | 12/01/1994 | WD | Warranty Deed | WILLARD, JOHN E | TAY, SAM | | | $3,667.00 | 50071 | 95000354 |
| 5 | 06/01/1993 | QCD | Quit Claim Deed | MEHL, MARTY/MARY J | WILLARD, JOHN E | | | $0.00 | 32246 | 93011665 |
| 6 | 01/01/1900 | OTHER | Other - Misc. Documents | Unknown | MEHL, MARTY/MARY J | | | $0.00 | 1319 | 90004215 |
Payout Agreement
| No payout information available.. |