Property
Account |
| Property ID: | 68394 | Abbreviated Legal Description: | 5 - IN GL 2 : BG M/L COM TO SEC 19&30 ALG SD M/L SEC 30 S 8* 31' 28" W246.74' ; S57* 58'32" E485.71' TO NWCR TR DESC & TPB; THENCE CONTALG SD M/L S57*58'32"E100'; N58*25'08" E484.17' N48*52'00" W70'; S60*58'51"W508.33' TPB |
| Geographic ID: | R23030-465-3110 | Agent Code: | |
| Type: | Real | | |
| Tax Area: | 310 - APPRAISER-Cpvl Schl Dist, outside Cpvl, improved & 1 acre or less | Land Use Code | 11 |
| Open Space: | N | DFL | N |
| Historic Property: | N | Remodel Property: | N |
| Multi-Family Redevelopment: | N | | |
| Township: | 30 | Section: | 30 |
| Range: | R2 |
Location |
| Address: | 259 SMUGGLERS LAGOON LN GREENBANK, WA 98253 | Mapsco: | |
| Neighborhood: | Cycle 3 | Map ID: | 429 |
| Neighborhood CD: | 3 |
Owner |
| Name: | ALLDREDGE, CLAUDIA M | Owner ID: | 310272 |
| Mailing Address: | 265 SMUGGLERS LAGOON LN GREENBANK, WA 98253 | % Ownership: | 100.0000000000% |
| | | Exemptions: | |
Taxes and Assessment Details
Values
| (+) Improvement Homesite Value: | + | $0 | |
| (+) Improvement Non-Homesite Value: | + | $20,000 | |
| (+) Land Homesite Value: | + | $0 | |
| (+) Land Non-Homesite Value: | + | $94,500 | |
| (+) Curr Use (HS): | + | $0 | $0 |
| (+) Curr Use (NHS): | + | $0 | $0 |
| | | -------------------------- | |
| (=) Market Value: | = | $114,500 | |
| (–) Productivity Loss: | – | $0 | |
| | | -------------------------- | |
| (=) Subtotal: | = | $114,500 | |
| (+) Senior Appraised Value: | + | $0 | |
| (+) Non-Senior Appraised Value: | + | $114,500 | |
| | | -------------------------- | |
| (=) Total Appraised Value: | = | $114,500 | |
| (–) Senior Exemption Loss: | – | $0 | |
| (–) Exemption Loss: | – | $0 | |
| | | -------------------------- | |
| (=) Taxable Value: | = | $114,500 | |
Taxing Jurisdiction
| Owner: | ALLDREDGE, CLAUDIA M | | |
| % Ownership: | 100.0000000000% | | |
| Total Value: | $114,500 | | |
| Tax Area: | 310 - APPRAISER-Cpvl Schl Dist, outside Cpvl, improved & 1 acre or less |
| CF | Conservation Futures | 0.0313996660 | $114,500 | $114,500 | $3.60 | | |
| CEM2 | Cemetery #2 | 0.0092609791 | $114,500 | $114,500 | $1.06 | | |
| FIRE5 | Fire & Rescue Dist #5 C Whidbey GEN | 1.1892169230 | $114,500 | $114,500 | $136.17 | | |
| FIRE5BOND | Fire & Rescue Dist #5 C Whidbey BOND | 0.1394359503 | $114,500 | $114,500 | $15.97 | | |
| HOBOND | Hospital BOND | 0.1893405597 | $114,500 | $114,500 | $21.68 | | |
| HOGEN | Hospital GEN | 0.3848777722 | $114,500 | $114,500 | $44.07 | | |
| CE | County Current Expense | 0.3674210519 | $114,500 | $114,500 | $42.07 | | |
| CR | County Roads | 0.4614296361 | $114,500 | $114,500 | $52.83 | | |
| ISLANDEMS | Hospital GEN (EMS) | 0.4952018576 | $114,500 | $114,500 | $56.70 | | |
| LIB | Library Sno-Isle GEN | 0.3039084203 | $114,500 | $114,500 | $34.80 | | |
| LIBCAP | Library Sno-Isle BOND (Cap Fac Imp Area) | 0.0528562629 | $114,500 | $114,500 | $6.05 | | |
| POCOUP | Port of Coupeville GEN | 0.1065226063 | $114,500 | $114,500 | $12.20 | | |
| POCOUPIDD | Port of Coupeville IDD | 0.3353038577 | $114,500 | $114,500 | $38.39 | | |
| COUPSDTECH | School 204 CP (TECH) | 0.1215123397 | $114,500 | $114,500 | $13.91 | | |
| SCH204MO | School 204 Enrichment | 0.6416662518 | $114,500 | $114,500 | $73.47 | | |
| ST | State School | 1.4761226122 | $114,500 | $114,500 | $169.02 | | |
| ST2 | State School Part 2 | 0.7953803475 | $114,500 | $114,500 | $91.07 | | |
| | Total Tax Rate: | 7.1008570943 | | | | | |
| | | | | Taxes w/Current Exemptions: | $813.06 | | |
| | | | | Taxes w/o Exemptions: | $813.06 | | |
Improvement / Building
| Improvement #1: | RESIDENTIAL | State Code: | Y | 0.0 sqft | Value: | $20,000 |
Sketch
Property Image
Land
| 1 | HB | HIGH BLUFF | 0.0000 | 0.00 | 70.00 | 0.00 | 1.00 | $94,500 | $0 |
Roll Value History
| 2026 | N/A | N/A | N/A | N/A | N/A |
| 2025 | $20,000 | $94,500 | $0 | $114,500 | $114,500 |
| 2024 | $20,000 | $94,500 | $0 | $114,500 | $114,500 |
| 2023 | $20,000 | $94,500 | $0 | $114,500 | $114,500 |
| 2022 | $20,000 | $90,000 | $0 | $110,000 | $110,000 |
| 2021 | $20,000 | $90,000 | $0 | $110,000 | $110,000 |
| 2020 | $20,000 | $90,000 | $0 | $110,000 | $110,000 |
| 2019 | $12,954 | $90,000 | $0 | $102,954 | $102,954 |
| 2018 | $12,954 | $80,000 | $0 | $92,954 | $92,954 |
| 2017 | $12,954 | $80,000 | $0 | $92,954 | $92,954 |
| 2016 | $12,954 | $80,000 | $0 | $92,954 | $92,954 |
| 2015 | $12,954 | $80,000 | $0 | $92,954 | $92,954 |
| 2014 | $12,954 | $80,000 | $0 | $92,954 | $92,954 |
| 2013 | $12,954 | $76,608 | $0 | $89,562 | $89,562 |
| 2012 | $12,954 | $76,608 | $0 | $89,562 | $89,562 |
| 2011 | $12,954 | $76,608 | $0 | $89,562 | $89,562 |
| 2010 | $14,954 | $76,608 | $0 | $91,562 | $91,562 |
| 2009 | $14,954 | $93,998 | $0 | $108,952 | $108,952 |
| 2008 | $14,954 | $93,998 | $0 | $108,952 | $108,952 |
| 2007 | $15,876 | $71,743 | $0 | $87,619 | $87,619 |
Deed and Sales History
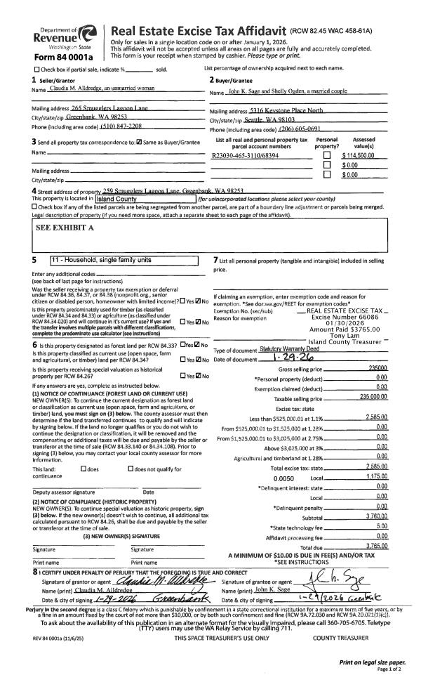
| 1 | 01/29/2026 | WD | Warranty Deed | ALLDREDGE, CLAUDIA M | SAGE, JOHN K | | | $235,000.00 | 66086 | 4596297 |
| 2 | 10/03/2023 | PRD | Personal Representatives Deed | ALLDREDGE, RALPH C | ALLDREDGE, CLAUDIA M | | | $0.00 | 58186 | 4565492 |
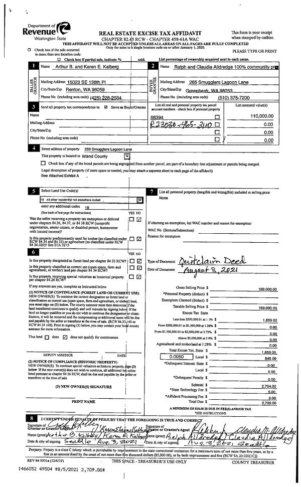
| 3 | 08/03/2021 | QCD | Quit Claim Deed | KALBERG, ARTHUR B | ALLDREDGE, RALPH C | | | $169,000.00 | 49504 | 4526187 |
| 4 | 06/13/2017 | QCD | Quit Claim Deed | KALBERG, ARTHUR B | KALBERG, ARTHUR B | | | $0.00 | 29818 | 4424589 |
| 5 | 08/07/2002 | QCD | Quit Claim Deed | KALBERG, LLOYD O | KALBERG, ARTHUR B | | | $0.00 | 23297 | 4029080 |
| 6 | 03/02/2000 | QCD | Quit Claim Deed | KALBERG, CAROLINE | KALBERG, LLOYD O | | | $0.00 | 2136 | 20010145 |
| 7 | 08/20/1998 | QCD | Quit Claim Deed | Unknown | KALBERG, CAROLINE | | | $0.00 | 83535 | 98018348 |
Payout Agreement
| No payout information available.. |