Property
Account |
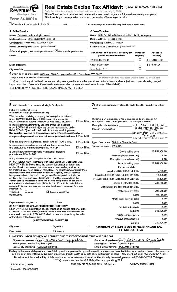
| Property ID: | 68438 | Abbreviated Legal Description: | 15 - IN GL 2: BG MC COM TO SEC 19 & 30 CONT ALG NLN N87*E482.72' S46*E160.01' S76*W662.86' TO ML ALG ML N10*E246.74'TPB EX: BG MC COM TO SECS 19 & 30 N87*E482.70' S46*E160.01' TPB S76*W81.19' N18*E74.56' S46*E75.02' TPB INCL ADJ TIDES TGW: BG NECR SEC 3 |
| Geographic ID: | R23030-497-2680 | Agent Code: | |
| Type: | Real | | |
| Tax Area: | 312 - APPRAISER-Cpvl Schl Dist, outside Cpvl, improved, greater than 1 acre | Land Use Code | 11 |
| Open Space: | N | DFL | N |
| Historic Property: | N | Remodel Property: | N |
| Multi-Family Redevelopment: | N | | |
| Township: | 30 | Section: | 30 |
| Range: | R2 |
Location |
| Address: | 3962 SMUGGLERS COVE RD GREENBANK, WA 98253 | Mapsco: | |
| Neighborhood: | Cycle 3 | Map ID: | 429 |
| Neighborhood CD: | 3 |
Owner |
| Name: | HEILY, DEEANNA | Owner ID: | 296088 |
| Mailing Address: | 3962 SMUGGLER'S COVE RD GREENBANK, WA 98253 | % Ownership: | 100.0000000000% |
| | | Exemptions: | |
Taxes and Assessment Details
Values
| (+) Improvement Homesite Value: | + | $0 | |
| (+) Improvement Non-Homesite Value: | + | $2,447,309 | |
| (+) Land Homesite Value: | + | $0 | |
| (+) Land Non-Homesite Value: | + | $1,402,000 | |
| (+) Curr Use (HS): | + | $0 | $0 |
| (+) Curr Use (NHS): | + | $0 | $0 |
| | | -------------------------- | |
| (=) Market Value: | = | $3,849,309 | |
| (–) Productivity Loss: | – | $0 | |
| | | -------------------------- | |
| (=) Subtotal: | = | $3,849,309 | |
| (+) Senior Appraised Value: | + | $0 | |
| (+) Non-Senior Appraised Value: | + | $3,849,309 | |
| | | -------------------------- | |
| (=) Total Appraised Value: | = | $3,849,309 | |
| (–) Senior Exemption Loss: | – | $0 | |
| (–) Exemption Loss: | – | $0 | |
| | | -------------------------- | |
| (=) Taxable Value: | = | $3,849,309 | |
Taxing Jurisdiction
| Owner: | HEILY, DEEANNA | | |
| % Ownership: | 100.0000000000% | | |
| Total Value: | $3,849,309 | | |
| Tax Area: | 312 - APPRAISER-Cpvl Schl Dist, outside Cpvl, improved, greater than 1 acre |
| CF | Conservation Futures | 0.0313996660 | $3,849,309 | $3,849,309 | $120.87 | | |
| CEM2 | Cemetery #2 | 0.0092609791 | $3,849,309 | $3,849,309 | $35.65 | | |
| FIRE5 | Fire & Rescue Dist #5 C Whidbey GEN | 1.1892169230 | $3,849,309 | $3,849,309 | $4,577.66 | | |
| FIRE5BOND | Fire & Rescue Dist #5 C Whidbey BOND | 0.1394359503 | $3,849,309 | $3,849,309 | $536.73 | | |
| HOBOND | Hospital BOND | 0.1893405597 | $3,849,309 | $3,849,309 | $728.83 | | |
| HOGEN | Hospital GEN | 0.3848777722 | $3,849,309 | $3,849,309 | $1,481.51 | | |
| CE | County Current Expense | 0.3674210519 | $3,849,309 | $3,849,309 | $1,414.32 | | |
| CR | County Roads | 0.4614296361 | $3,849,309 | $3,849,309 | $1,776.19 | | |
| ISLANDEMS | Hospital GEN (EMS) | 0.4952018576 | $3,849,309 | $3,849,309 | $1,906.18 | | |
| LIB | Library Sno-Isle GEN | 0.3039084203 | $3,849,309 | $3,849,309 | $1,169.84 | | |
| LIBCAP | Library Sno-Isle BOND (Cap Fac Imp Area) | 0.0528562629 | $3,849,309 | $3,849,309 | $203.46 | | |
| POCOUP | Port of Coupeville GEN | 0.1065226063 | $3,849,309 | $3,849,309 | $410.04 | | |
| POCOUPIDD | Port of Coupeville IDD | 0.3353038577 | $3,849,309 | $3,849,309 | $1,290.69 | | |
| COUPSDTECH | School 204 CP (TECH) | 0.1215123397 | $3,849,309 | $3,849,309 | $467.74 | | |
| SCH204MO | School 204 Enrichment | 0.6416662518 | $3,849,309 | $3,849,309 | $2,469.97 | | |
| ST | State School | 1.4761226122 | $3,849,309 | $3,849,309 | $5,682.05 | | |
| ST2 | State School Part 2 | 0.7953803475 | $3,849,309 | $3,849,309 | $3,061.66 | | |
| | Total Tax Rate: | 7.1008570943 | | | | | |
| | | | | Taxes w/Current Exemptions: | $27,333.39 | | |
| | | | | Taxes w/o Exemptions: | $27,333.39 | | |
Improvement / Building
| Improvement #1: | RESIDENTIAL | State Code: | Y | 4908.0 sqft | Value: | $1,732,453 |
| Bathrooms: | 4 | Bedrooms: | 3 | | Ceiling: | DRYWALL PAINTED | Exterior Wall/Cover: | WOOD SIDING | | Floor Covering: | HARDWOOD/CARP 60-40 | Floor Structure: | WOOD W/SUBFLOOR | | Foundation: | CONCRETE | Heating: | FHA GAS | | Interior Finish: | DRYWALL PAINT | Plumbing Fixture Cnt: | 19 | | Roof Slope: | 6" IN 12" | Roof Structure/Cover: | BEAM ASPHALT |
|
| | Type | Description | Class CD | Sub Class CD | Year Built | Area |
| | BAS | BASE/MAIN FLOOR | 8 | 0 | 1994 | 3708.0 |
| | OP4 | OPEN PORCH W/CEILING-ROOF | 8 | 0 | 1994 | 144.0 |
| | OP4 | OPEN PORCH W/CEILING-ROOF | 8 | 0 | 1994 | 128.0 |
| | AGR | ATTACHED GARAGE | 8 | 0 | 1994 | 780.0 |
| | UPS | UPPER STORY | 8 | 0 | 1994 | 1200.0 |
| | OP4 | OPEN PORCH W/CEILING-ROOF | 8 | 0 | 1994 | 156.0 |
| | OP4 | OPEN PORCH W/CEILING-ROOF | 8 | 0 | 1994 | 228.0 |
| | OP4 | OPEN PORCH W/CEILING-ROOF | 8 | 0 | 1994 | 88.0 |
| Improvement #2: | RESIDENTIAL | State Code: | Y | 1289.0 sqft | Value: | $714,856 |
| Bathrooms: | 0.5 | Bedrooms: | 0 | | Ceiling: | DRYWALL PAINTED | Exterior Wall/Cover: | STONE ASHLER | | Floor Covering: | CARPET 100% | Floor Structure: | SLAB ABOVE GRADE | | Foundation: | CONCRETE | Heating: | WALL HEAT ELECTRIC | | Interior Finish: | DRYWALL PAINT | Plumbing Fixture Cnt: | 3 | | Roof Slope: | 4" IN 12" | Roof Structure/Cover: | CJ ASPHALT |
|
| | Type | Description | Class CD | Sub Class CD | Year Built | Area |
| | BAS | BASE/MAIN FLOOR | 8 | 0 | 1994 | 1289.0 |
| | OP4 | OPEN PORCH W/CEILING-ROOF | 8 | 0 | 1994 | 430.0 |
Sketch
Property Image
Land
| 1 | HB | HIGH BLUFF | 3.4900 | 152024.40 | 180.00 | 0.00 | 1.00 | $1,402,000 | $0 |
Roll Value History
| 2026 | N/A | N/A | N/A | N/A | N/A |
| 2025 | $2,447,309 | $1,402,000 | $0 | $3,849,309 | $3,849,309 |
| 2024 | $2,476,016 | $1,323,000 | $0 | $3,799,016 | $3,799,016 |
| 2023 | $2,504,723 | $1,260,000 | $0 | $3,764,723 | $3,764,723 |
| 2022 | $1,904,084 | $1,200,000 | $0 | $3,104,084 | $3,104,084 |
| 2021 | $1,491,158 | $1,000,000 | $0 | $2,491,158 | $2,491,158 |
| 2020 | $986,170 | $700,000 | $0 | $1,686,170 | $1,686,170 |
| 2019 | $869,989 | $700,000 | $0 | $1,569,989 | $1,569,989 |
| 2018 | $872,844 | $600,000 | $0 | $1,472,844 | $1,472,844 |
| 2017 | $878,553 | $600,000 | $0 | $1,478,553 | $1,478,553 |
| 2016 | $889,972 | $600,000 | $0 | $1,489,972 | $1,489,972 |
| 2015 | $901,389 | $600,000 | $0 | $1,501,389 | $1,501,389 |
| 2014 | $912,809 | $600,000 | $0 | $1,512,809 | $1,512,809 |
| 2013 | $913,500 | $481,667 | $0 | $1,395,167 | $1,395,167 |
| 2012 | $924,920 | $481,667 | $0 | $1,406,587 | $1,406,587 |
| 2011 | $936,339 | $481,667 | $0 | $1,418,006 | $1,418,006 |
| 2010 | $960,359 | $481,667 | $0 | $1,442,026 | $1,442,026 |
| 2009 | $1,001,344 | $642,224 | $0 | $1,643,568 | $1,643,568 |
| 2008 | $1,013,322 | $642,224 | $0 | $1,655,546 | $1,655,546 |
| 2007 | $1,040,514 | $406,471 | $0 | $1,446,985 | $1,446,985 |
Deed and Sales History
| 1 | 01/26/2026 | WD | Warranty Deed | HEILY, DEEANNA | DLM IV LLC | | | $10,750,000.00 | 66058 | 4596210 |
|   | |
| 2 | 09/09/2020 | WD | Warranty Deed | HEG, DEBORAH S | HEILY, DEEANNA | | | $5,435,000.00 | 44747 | 4496573 |
|   | |
| 3 | 03/16/2001 | BLA | DNU - Boundary Line Adjustment | HEG, DEBORAH S | HEG, DEBORAH S | | | $0.00 | 68993 | 20015869 |
| 4 | 12/31/1999 | QCD | Quit Claim Deed | HEG, DEBORAH S | HEG, DEBORAH S | | | $0.00 | 10363 | 20024687 |
| 5 | 12/31/1999 | QCD | Quit Claim Deed | HEG, DEBORAH S | HEG, DEBORAH S | | | $0.00 | 90 | 20000604 |
| 6 | 08/01/1993 | OTHER | Other - Misc. Documents | HEG, DEBORAH S | HEG, DEBORAH S | | | $0.00 | 65508 | 93014840 |
| 7 | 03/01/1993 | WD | Warranty Deed | HEG, DEBORAH S | HEG, DEBORAH S | | | $750,000.00 | 30820 | 93004232 |
| 8 | 03/01/1993 | QCD | Quit Claim Deed | THOMAS, DONALD P | HEG, DEBORAH S | | | $0.00 | 30821 | 93004233 |
| 9 | 01/01/1900 | OTHER | Other - Misc. Documents | Unknown | THOMAS, DONALD P | | | $0.00 | 0 | 0 |
Payout Agreement
| No payout information available.. |