Property
Account |
| Property ID: | 687705 | Abbreviated Legal Description: | WOODLANDS - PRD LOT 4 |
| Geographic ID: | S8477-00-00004-0 | Agent Code: | |
| Type: | Real | | |
| Tax Area: | 710 - APPRAISER-S Whid Schl Dist, outside Langley, improved & 1 acre or less | Land Use Code | 11 |
| Open Space: | N | DFL | N |
| Historic Property: | N | Remodel Property: | N |
| Multi-Family Redevelopment: | N | | |
| Township: | | Section: | |
| Range: | |
Location |
| Address: | 3678 REDTAIL LN CLINTON, WA 98236 | Mapsco: | |
| Neighborhood: | Cycle 4 | Map ID: | 799 |
| Neighborhood CD: | 4 |
Owner |
| Name: | TAYLOR TTEE, STACY | Owner ID: | 314884 |
| Mailing Address: | 3678 REDTAIL LN CLINTON, WA 98236 | % Ownership: | 100.0000000000% |
| | | Exemptions: | |
Taxes and Assessment Details
Values
| (+) Improvement Homesite Value: | + | $0 | |
| (+) Improvement Non-Homesite Value: | + | $419,914 | |
| (+) Land Homesite Value: | + | $0 | |
| (+) Land Non-Homesite Value: | + | $280,000 | |
| (+) Curr Use (HS): | + | $0 | $0 |
| (+) Curr Use (NHS): | + | $0 | $0 |
| | | -------------------------- | |
| (=) Market Value: | = | $699,914 | |
| (–) Productivity Loss: | – | $0 | |
| | | -------------------------- | |
| (=) Subtotal: | = | $699,914 | |
| (+) Senior Appraised Value: | + | $0 | |
| (+) Non-Senior Appraised Value: | + | $699,914 | |
| | | -------------------------- | |
| (=) Total Appraised Value: | = | $699,914 | |
| (–) Senior Exemption Loss: | – | $0 | |
| (–) Exemption Loss: | – | $0 | |
| | | -------------------------- | |
| (=) Taxable Value: | = | $699,914 | |
Taxing Jurisdiction
| Owner: | TAYLOR TTEE, STACY | | |
| % Ownership: | 100.0000000000% | | |
| Total Value: | $699,914 | | |
| Tax Area: | 710 - APPRAISER-S Whid Schl Dist, outside Langley, improved & 1 acre or less |
| CF | Conservation Futures | 0.0313996660 | $699,914 | $699,914 | $21.98 | | |
| FIRE3 | Fire & Rescue Dist #3 S Whidbey GEN | 1.2130821753 | $699,914 | $699,914 | $849.05 | | |
| HOBOND | Hospital BOND | 0.1893405597 | $699,914 | $699,914 | $132.52 | | |
| HOGEN | Hospital GEN | 0.3848777722 | $699,914 | $699,914 | $269.38 | | |
| CE | County Current Expense | 0.3674210519 | $699,914 | $699,914 | $257.16 | | |
| CR | County Roads | 0.4614296361 | $699,914 | $699,914 | $322.96 | | |
| ISLANDEMS | Hospital GEN (EMS) | 0.4952018576 | $699,914 | $699,914 | $346.60 | | |
| LIB | Library Sno-Isle GEN | 0.3039084203 | $699,914 | $699,914 | $212.71 | | |
| PORTWHID | Port of S Whidbey GEN | 0.1086004714 | $699,914 | $699,914 | $76.01 | | |
| SCH206BOND | School 206 BOND | 0.5960237832 | $699,914 | $699,914 | $417.17 | | |
| SCH206CAP | School 206 CP | 0.3066144020 | $699,914 | $699,914 | $214.60 | | |
| SCH206MO | School 206 Enrichment | 0.4808755445 | $699,914 | $699,914 | $336.57 | | |
| ST | State School | 1.4761226122 | $699,914 | $699,914 | $1,033.16 | | |
| ST2 | State School Part 2 | 0.7953803475 | $699,914 | $699,914 | $556.70 | | |
| SWHIDPRBD | P & R S Whidbey BOND | 0.0144185398 | $699,914 | $699,914 | $10.09 | | |
| SWHIDPRBD3 | P & R S Whidbey BOND3 | 0.1483535547 | $699,914 | $699,914 | $103.83 | | |
| SWHIDPRMT | P & R S Whidbey GEN | 0.4600000000 | $699,914 | $699,914 | $321.96 | | |
| | Total Tax Rate: | 7.8330503944 | | | | | |
| | | | | Taxes w/Current Exemptions: | $5,482.45 | | |
| | | | | Taxes w/o Exemptions: | $5,482.45 | | |
Improvement / Building
| Improvement #1: | RESIDENTIAL | State Code: | Y | 1862.0 sqft | Value: | $419,914 |
| Bathrooms: | 2.5 | Bedrooms: | 2 | | Ceiling: | DRYWALL PAINTED | Cooling: | HEAT PUMP/CONV/V | | Exterior Wall/Cover: | SHINGLE | Floor Covering: | VINYL/HARDWOOD 20-80 | | Floor Structure: | WOOD W/SUBFLOOR | Foundation: | CONCRETE | | Interior Finish: | DRYWALL PAINT | Plumbing Fixture Cnt: | 13 | | Roof Slope: | 8" IN 12" | Roof Structure/Cover: | CJ ALUMINIUM HEAVY |
|
| | Type | Description | Class CD | Sub Class CD | Year Built | Area |
| | BAS | BASE/MAIN FLOOR | 4 | 0 | 1991 | 1312.0 |
| | UB8 | BASEMENT UNFINISHED 8" | 4 | 0 | 1991 | 536.0 |
| | OWP | OPEN WOOD PORCH W/STEPS | 4 | 0 | 1991 | 310.0 |
| | OWP | OPEN WOOD PORCH W/STEPS | 4 | 0 | 1991 | 29.6 |
| | OWC | OPEN WOOD PORCH W/STEPS/ROOF/C | 4 | 0 | 1991 | 45.0 |
| | UPH | HALF STORY | 4 | 0 | 1991 | 215.0 |
| | DWN | DOWNSTAIRS LIVING AREA | 4 | 0 | 1991 | 335.0 |
Sketch
Property Image
Land
| 1 | 16 | AC (00.51-01.00) | 0.0000 | 0.00 | 0.00 | 0.00 | 1.00 | $280,000 | $0 |
Roll Value History
| 2026 | N/A | N/A | N/A | N/A | N/A |
| 2025 | $419,914 | $280,000 | $0 | $699,914 | $699,914 |
| 2024 | $424,957 | $270,000 | $0 | $694,957 | $694,957 |
| 2023 | $375,664 | $260,000 | $0 | $635,664 | $635,664 |
| 2022 | $344,245 | $240,000 | $0 | $584,245 | $584,245 |
| 2021 | $302,897 | $160,000 | $0 | $462,897 | $462,897 |
| 2020 | $265,629 | $135,000 | $0 | $400,629 | $400,629 |
| 2019 | $195,711 | $210,000 | $0 | $405,711 | $405,711 |
| 2018 | $158,377 | $170,000 | $0 | $328,377 | $328,377 |
| 2017 | $159,427 | $150,000 | $0 | $309,427 | $309,427 |
| 2016 | $161,525 | $140,000 | $0 | $301,525 | $301,525 |
| 2015 | $163,621 | $140,000 | $0 | $303,621 | $303,621 |
| 2014 | $150,688 | $140,000 | $0 | $290,688 | $290,688 |
| 2013 | $150,795 | $140,000 | $0 | $290,795 | $290,795 |
| 2012 | $152,746 | $143,225 | $0 | $295,971 | $295,971 |
| 2011 | $154,699 | $168,500 | $0 | $323,199 | $323,199 |
| 2010 | $162,088 | $168,500 | $0 | $330,588 | $330,588 |
| 2009 | $169,008 | $185,000 | $0 | $354,008 | $354,008 |
| 2008 | $171,025 | $250,000 | $0 | $421,025 | $421,025 |
| 2007 | $173,066 | $250,000 | $0 | $423,066 | $423,066 |
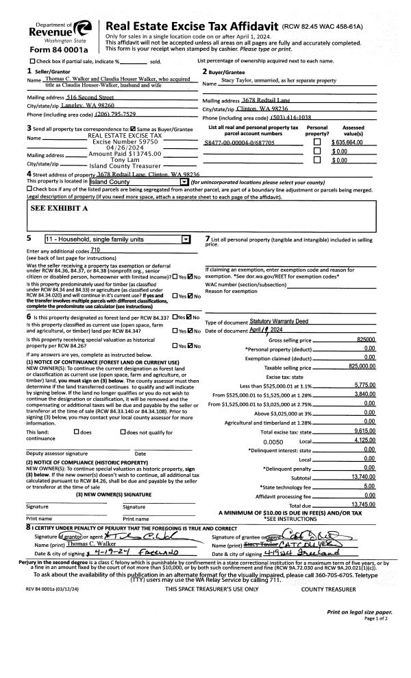
Deed and Sales History
| 1 | 12/12/2024 | QCD | Quit Claim Deed | TAYLOR, STACY | TAYLOR TTEE, STACY | | | $0.00 | 62100 | 4580464 |
| 2 | 04/19/2024 | WD | Warranty Deed | WALKER, THOMAS C | TAYLOR, STACY | | | $825,000.00 | 59750 | 4571633 |
| 3 | 06/01/1996 | WD | Warranty Deed | BEDROCK, INC | WALKER, THOMAS C | | | $175,000.00 | 62092 | 96010390 |
| 4 | 01/01/1900 | OTHER | Other - Misc. Documents | Unknown | BEDROCK, INC | | | $0.00 | 1597 | 90005200 |
Payout Agreement
| No payout information available.. |