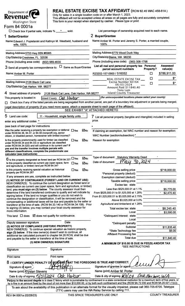
Property
Account |
| Property ID: | 688125 | Abbreviated Legal Description: | NE SE SE EX RD TGW EZ TGW N 300' N 1/2 SW SW SEC 22 BLA 279-21 |
| Geographic ID: | R32921-097-5000 | Agent Code: | |
| Type: | Real | | |
| Tax Area: | 719 - APPRAISER-S Whid Schl Dist, outside Langley, vacant & 50 acres or less | Land Use Code | 91 |
| Open Space: | N | DFL | N |
| Historic Property: | N | Remodel Property: | N |
| Multi-Family Redevelopment: | N | | |
| Township: | 29 | Section: | 21 |
| Range: | R3 |
Location |
| Address: | | Mapsco: | |
| Neighborhood: | Cycle 4 | Map ID: | 796 |
| Neighborhood CD: | 4 |
Owner |
| Name: | SHER, RON | Owner ID: | 271137 |
| Mailing Address: | EVA SHER SHER PARTNERS 4957 LAKEMONT BLVD SUITE C4-11 BELLEVUE, WA 98006 | % Ownership: | 100.0000000000% |
| | | Exemptions: | |
Taxes and Assessment Details
Values
| (+) Improvement Homesite Value: | + | N/A | |
| (+) Improvement Non-Homesite Value: | + | N/A | |
| (+) Land Homesite Value: | + | N/A | |
| (+) Land Non-Homesite Value: | + | N/A | Ag / Timber Use Value |
| (+) Curr Use (HS): | + | N/A | N/A |
| (+) Curr Use (NHS): | + | N/A | N/A |
| | | -------------------------- | |
| (=) Market Value: | = | N/A | |
| (–) Productivity Loss: | – | N/A | |
| | | -------------------------- | |
| (=) Subtotal: | = | N/A | |
| (+) Senior Appraised Value: | + | N/A | |
| (+) Non-Senior Appraised Value: | + | N/A | |
| | | -------------------------- | |
| (=) Total Appraised Value: | = | N/A | |
| (–) Senior Exemption Loss: | – | N/A | |
| (–) Exemption Loss: | – | N/A | |
| | | -------------------------- | |
| (=) Taxable Value: | = | N/A | |
Taxing Jurisdiction
| Owner: | SHER, RON | | |
| % Ownership: | 100.0000000000% | | |
| Total Value: | N/A | | |
| Tax Area: | 719 - APPRAISER-S Whid Schl Dist, outside Langley, vacant & 50 acres or less |
| CF | Conservation Futures | N/A | N/A | N/A | N/A | | |
| WCD | Whidbey Conservation District | N/A | N/A | N/A | N/A | | |
| HOBOND | Hospital BOND | N/A | N/A | N/A | N/A | | |
| HOGEN | Hospital GEN | N/A | N/A | N/A | N/A | | |
| CE | County Current Expense | N/A | N/A | N/A | N/A | | |
| CR | County Roads | N/A | N/A | N/A | N/A | | |
| ISLANDEMS | Hospital GEN (EMS) | N/A | N/A | N/A | N/A | | |
| LIB | Library Sno-Isle GEN | N/A | N/A | N/A | N/A | | |
| PORTWHID | Port of S Whidbey GEN | N/A | N/A | N/A | N/A | | |
| SCH206CAP | School 206 CP | N/A | N/A | N/A | N/A | | |
| SCH206MO | School 206 Enrichment | N/A | N/A | N/A | N/A | | |
| ST | State School | N/A | N/A | N/A | N/A | | |
| ST2 | State School Part 2 | N/A | N/A | N/A | N/A | | |
| SWHIDPRBD | P & R S Whidbey BOND | N/A | N/A | N/A | N/A | | |
| SWHIDPRBD2 | P & R S Whidbey BOND2 | N/A | N/A | N/A | N/A | | |
| SWHIDPRMT | P & R S Whidbey GEN | N/A | N/A | N/A | N/A | | |
| | Total Tax Rate: | N/A | | | | | |
| | | | | Taxes w/Current Exemptions: | N/A | | |
| | | | | Taxes w/o Exemptions: | N/A | | |
Improvement / Building
Sketch
| No sketches available for this property. |
Property Image
Land
| 1 | 91 | UNDEVELOPED LAND-METES AND BOUNDS | 9.0000 | 392040.00 | 0.00 | 0.00 | 1.00 | N/A | N/A |
Roll Value History
| 2026 | N/A | N/A | N/A | N/A | N/A |
| 2025 | $0 | $240,000 | $0 | $240,000 | $240,000 |
| 2024 | $0 | $230,000 | $0 | $230,000 | $230,000 |
| 2023 | $0 | $180,000 | $0 | $180,000 | $180,000 |
| 2022 | $0 | $170,000 | $0 | $170,000 | $170,000 |
| 2021 | $0 | $150,000 | $0 | $150,000 | $150,000 |
| 2020 | $0 | $150,000 | $0 | $150,000 | $150,000 |
| 2019 | $0 | $135,000 | $0 | $135,000 | $135,000 |
| 2018 | $0 | $130,000 | $0 | $130,000 | $130,000 |
| 2017 | $0 | $130,000 | $0 | $130,000 | $130,000 |
| 2016 | $0 | $130,000 | $0 | $130,000 | $130,000 |
| 2015 | $0 | $130,000 | $0 | $130,000 | $130,000 |
| 2014 | $0 | $125,970 | $0 | $125,970 | $125,970 |
| 2013 | $0 | $125,970 | $0 | $125,970 | $125,970 |
| 2012 | $0 | $125,970 | $0 | $125,970 | $125,970 |
| 2011 | $0 | $125,970 | $0 | $125,970 | $125,970 |
| 2010 | $0 | $125,970 | $0 | $125,970 | $125,970 |
| 2009 | $0 | $193,800 | $0 | $193,800 | $193,800 |
| 2008 | $0 | $193,800 | $0 | $193,800 | $193,800 |
| 2007 | $0 | $174,420 | $0 | $174,420 | $174,420 |
Deed and Sales History
| 1 | 12/18/2023 | QCD | Quit Claim Deed | AGWEST FARM CREDT, FLCA | PHOENIX CAPITAL GROUP HOLDINGS, LLC | | | $0.00 | 60366 | 4573630 |
| 2 | 05/31/2023 | BLA | DNU - Boundary Line Adjustment | HOELTING, SKY | SHER, RONALD/EVA | | | $0.00 | 56893 | 4560582 |
| 3 | 06/18/2015 | WD | Warranty Deed | HOANG TRINH, JOSEPH LAM | SHER, RON | | | $400,000.00 | 20093 | 4380561 |
|   | |
| 4 | 07/09/2004 | TRUSTEED | Trustee's Deed | LANNING, CHAD | HOANG TRINH, JOSEPH LAM | | | $62,539.00 | 43344 | 4107763 |
| 5 | 01/01/1995 | QCD | Quit Claim Deed | LANNING, CHAD | LANNING, CHAD | | | $0.00 | 50068 | 95000344 |
| 6 | 06/01/1993 | QCD | Quit Claim Deed | LANNING, BILL S | LANNING, CHAD | | | $0.00 | 33935 | 93020510 |
| 7 | 01/01/1900 | OTHER | Other - Misc. Documents | Unknown | LANNING, BILL S | | | $0.00 | 0 | 0 |
Payout Agreement
| No payout information available.. |