Property
Account |
| Property ID: | 689071 | Abbreviated Legal Description: | LOT 2 SP 14-93.23305.044-2520 & 120-2800 V2 SP P431 AF#93024910 |
| Geographic ID: | R23305-044-2370 | Agent Code: | |
| Type: | Real | | |
| Tax Area: | 112 - APPRAISER-OH Schl Dist, outside OH, improved, greater than 1 acre | Land Use Code | 11 |
| Open Space: | N | DFL | N |
| Historic Property: | N | Remodel Property: | N |
| Multi-Family Redevelopment: | N | | |
| Township: | 33 | Section: | 05 |
| Range: | R2 |
Location |
| Address: | 4457 KRIEG LN OAK HARBOR, WA 98277 | Mapsco: | |
| Neighborhood: | Cycle 6 | Map ID: | 584 |
| Neighborhood CD: | 6 |
Owner |
| Name: | JOHNSTON, WILLIAM S | Owner ID: | 289580 |
| Mailing Address: | NUSHANART MUSIGATHAM 316 SE PIONEER WAY PMB #264 OAK HARBOR, WA 98277 | % Ownership: | 100.0000000000% |
| | | Exemptions: | |
Taxes and Assessment Details
Values
| (+) Improvement Homesite Value: | + | $0 | |
| (+) Improvement Non-Homesite Value: | + | $688,731 | |
| (+) Land Homesite Value: | + | $0 | |
| (+) Land Non-Homesite Value: | + | $310,000 | |
| (+) Curr Use (HS): | + | $0 | $0 |
| (+) Curr Use (NHS): | + | $0 | $0 |
| | | -------------------------- | |
| (=) Market Value: | = | $998,731 | |
| (–) Productivity Loss: | – | $0 | |
| | | -------------------------- | |
| (=) Subtotal: | = | $998,731 | |
| (+) Senior Appraised Value: | + | $0 | |
| (+) Non-Senior Appraised Value: | + | $998,731 | |
| | | -------------------------- | |
| (=) Total Appraised Value: | = | $998,731 | |
| (–) Senior Exemption Loss: | – | $0 | |
| (–) Exemption Loss: | – | $0 | |
| | | -------------------------- | |
| (=) Taxable Value: | = | $998,731 | |
Taxing Jurisdiction
| Owner: | JOHNSTON, WILLIAM S | | |
| % Ownership: | 100.0000000000% | | |
| Total Value: | $998,731 | | |
| Tax Area: | 112 - APPRAISER-OH Schl Dist, outside OH, improved, greater than 1 acre |
| CF | Conservation Futures | 0.0313996660 | $998,731 | $998,731 | $31.36 | | |
| CEM1 | Cemetery #1 | 0.0040018856 | $998,731 | $998,731 | $4.00 | | |
| FIRE2 | Fire & Rescue Dist #2 N Whidbey GEN | 0.5381486274 | $998,731 | $998,731 | $537.47 | | |
| HOBOND | Hospital BOND | 0.1893405597 | $998,731 | $998,731 | $189.10 | | |
| HOGEN | Hospital GEN | 0.3848777722 | $998,731 | $998,731 | $384.39 | | |
| CE | County Current Expense | 0.3674210519 | $998,731 | $998,731 | $366.95 | | |
| CR | County Roads | 0.4614296361 | $998,731 | $998,731 | $460.84 | | |
| ISLANDEMS | Hospital GEN (EMS) | 0.4952018576 | $998,731 | $998,731 | $494.57 | | |
| LIB | Library Sno-Isle GEN | 0.3039084203 | $998,731 | $998,731 | $303.52 | | |
| NWHIDPRMT | P & R N Whidbey GEN | 0.1990272349 | $998,731 | $998,731 | $198.77 | | |
| SCH201MO | School 201 Enrichment | 2.3851112745 | $998,731 | $998,731 | $2,382.08 | | |
| ST | State School | 1.4761226122 | $998,731 | $998,731 | $1,474.25 | | |
| ST2 | State School Part 2 | 0.7953803475 | $998,731 | $998,731 | $794.37 | | |
| | Total Tax Rate: | 7.6313709459 | | | | | |
| | | | | Taxes w/Current Exemptions: | $7,621.67 | | |
| | | | | Taxes w/o Exemptions: | $7,621.67 | | |
Improvement / Building
| Improvement #1: | RESIDENTIAL | State Code: | Y | 2738.0 sqft | Value: | $688,731 |
| Bathrooms: | 2 | Bedrooms: | 3 | | Ceiling: | DRYWALL PAINTED | Cooling: | HEAT PUMP/CONV/V | | Exterior Wall/Cover: | CEMENT FIBER | Floor Covering: | HARDWOOD/CARP 80-20 | | Floor Structure: | WOOD W/SUBFLOOR | Foundation: | CONCRETE | | Interior Finish: | DRYWALL PAINT | Plumbing Fixture Cnt: | 11 | | Roof Slope: | 5" IN 12" | Roof Structure/Cover: | BEAM ALUMINUM HEAVY |
|
| | Type | Description | Class CD | Sub Class CD | Year Built | Area |
| | BAS | BASE/MAIN FLOOR | 5 | 0 | 2017 | 2738.0 |
| | AGR | ATTACHED GARAGE | 5 | 0 | 2017 | 888.0 |
| | OP4 | OPEN PORCH W/CEILING-ROOF | 5 | 0 | 2017 | 210.0 |
Sketch
Property Image
Land
| 1 | 18 | AC (02.01-03.00) | 2.5700 | 111949.20 | 0.00 | 0.00 | 1.00 | $310,000 | $0 |
Roll Value History
| 2026 | N/A | N/A | N/A | N/A | N/A |
| 2025 | $688,731 | $310,000 | $0 | $998,731 | $998,731 |
| 2024 | $694,286 | $290,000 | $0 | $984,286 | $984,286 |
| 2023 | $699,840 | $280,000 | $0 | $979,840 | $979,840 |
| 2022 | $618,653 | $250,000 | $0 | $868,653 | $868,653 |
| 2021 | $542,256 | $220,000 | $0 | $762,256 | $762,256 |
| 2020 | $527,216 | $220,000 | $0 | $747,216 | $747,216 |
| 2019 | $438,704 | $260,000 | $0 | $698,704 | $698,704 |
| 2018 | $380,684 | $225,000 | $0 | $605,684 | $605,684 |
| 2017 | $216,930 | $90,000 | $0 | $306,930 | $306,930 |
| 2016 | $0 | $90,000 | $0 | $90,000 | $90,000 |
| 2015 | $0 | $90,000 | $0 | $90,000 | $90,000 |
| 2014 | $0 | $90,000 | $0 | $90,000 | $90,000 |
| 2013 | $0 | $90,000 | $0 | $90,000 | $90,000 |
| 2012 | $0 | $100,000 | $0 | $100,000 | $100,000 |
| 2011 | $0 | $100,000 | $0 | $100,000 | $100,000 |
| 2010 | $0 | $100,000 | $0 | $100,000 | $100,000 |
| 2009 | $0 | $118,000 | $0 | $118,000 | $118,000 |
| 2008 | $0 | $130,000 | $0 | $130,000 | $130,000 |
| 2007 | $0 | $130,000 | $0 | $130,000 | $130,000 |
Deed and Sales History
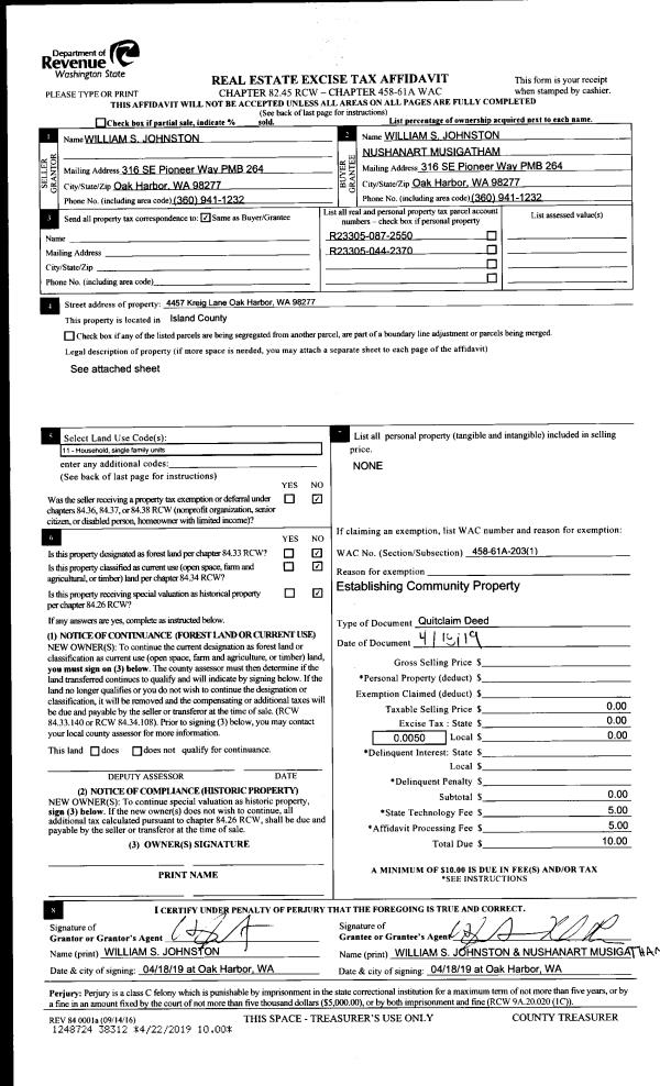
| 1 | 04/18/2019 | QCD | Quit Claim Deed | JOHNSTON, WILLIAM S | JOHNSTON, WILLIAM S | | | $0.00 | 38312 | 4462466 |
| 2 | 05/01/1995 | WD | Warranty Deed | MODEN, NOEL J | JOHNSTON, WILLIAM S | | | $90,000.00 | 51966 | 95009149 |
| 3 | 01/01/1900 | OTHER | Other - Misc. Documents | Unknown | MODEN, NOEL J | | | $0.00 | 94869 | 89015774 |
Payout Agreement
| No payout information available.. |