Property
Account |
| Property ID: | 690620 | Abbreviated Legal Description: | BIRCH TREE CONDO PH 3 UNIT 1C 3.125% INT |
| Geographic ID: | S6137-03-0001C-0 | Agent Code: | |
| Type: | Real | | |
| Tax Area: | 100 - APPRAISER-OH Schl Dist, in OH | Land Use Code | 14 |
| Open Space: | N | DFL | N |
| Historic Property: | N | Remodel Property: | N |
| Multi-Family Redevelopment: | N | | |
| Township: | | Section: | |
| Range: | |
Location |
| Address: | 1250 SW HELLER ST UNIT A3 OAK HARBOR, WA 98277 | Mapsco: | |
| Neighborhood: | 11*OH-birchtree | Map ID: | 90 |
| Neighborhood CD: | 11*OHbrcht |
Owner |
| Name: | MONTAIVO, BRENDAN MANUEL | Owner ID: | 277660 |
| Mailing Address: | MCKENZIE L MONTALVO 1250 SW HELLER ST UNIT A3 OAK HARBOR, WA 98277 | % Ownership: | 100.0000000000% |
| | | Exemptions: | |
Taxes and Assessment Details
Values
| (+) Improvement Homesite Value: | + | $0 | |
| (+) Improvement Non-Homesite Value: | + | $234,492 | |
| (+) Land Homesite Value: | + | $0 | |
| (+) Land Non-Homesite Value: | + | $120,000 | |
| (+) Curr Use (HS): | + | $0 | $0 |
| (+) Curr Use (NHS): | + | $0 | $0 |
| | | -------------------------- | |
| (=) Market Value: | = | $354,492 | |
| (–) Productivity Loss: | – | $0 | |
| | | -------------------------- | |
| (=) Subtotal: | = | $354,492 | |
| (+) Senior Appraised Value: | + | $0 | |
| (+) Non-Senior Appraised Value: | + | $354,492 | |
| | | -------------------------- | |
| (=) Total Appraised Value: | = | $354,492 | |
| (–) Senior Exemption Loss: | – | $0 | |
| (–) Exemption Loss: | – | $0 | |
| | | -------------------------- | |
| (=) Taxable Value: | = | $354,492 | |
Taxing Jurisdiction
| Owner: | MONTAIVO, BRENDAN MANUEL | | |
| % Ownership: | 100.0000000000% | | |
| Total Value: | $354,492 | | |
| Tax Area: | 100 - APPRAISER-OH Schl Dist, in OH |
| CF | Conservation Futures | 0.0313996660 | $354,492 | $354,492 | $11.13 | | |
| CEM1 | Cemetery #1 | 0.0040018856 | $354,492 | $354,492 | $1.42 | | |
| COH | City of Oak Harbor | 2.3090730572 | $354,492 | $354,492 | $818.55 | | |
| OAKBOND | City of Oak Harbor BOND | 0.1902260131 | $354,492 | $354,492 | $67.43 | | |
| HOBOND | Hospital BOND | 0.1893405597 | $354,492 | $354,492 | $67.12 | | |
| HOGEN | Hospital GEN | 0.3848777722 | $354,492 | $354,492 | $136.44 | | |
| CE | County Current Expense | 0.3674210519 | $354,492 | $354,492 | $130.25 | | |
| ISLANDEMS | Hospital GEN (EMS) | 0.4952018576 | $354,492 | $354,492 | $175.55 | | |
| LIB | Library Sno-Isle GEN | 0.3039084203 | $354,492 | $354,492 | $107.73 | | |
| NWHIDPRMT | P & R N Whidbey GEN | 0.1990272349 | $354,492 | $354,492 | $70.55 | | |
| SCH201MO | School 201 Enrichment | 2.3851112745 | $354,492 | $354,492 | $845.50 | | |
| ST | State School | 1.4761226122 | $354,492 | $354,492 | $523.27 | | |
| ST2 | State School Part 2 | 0.7953803475 | $354,492 | $354,492 | $281.96 | | |
| | Total Tax Rate: | 9.1310917527 | | | | | |
| | | | | Taxes w/Current Exemptions: | $3,236.90 | | |
| | | | | Taxes w/o Exemptions: | $3,236.90 | | |
Improvement / Building
| Improvement #1: | RESIDENTIAL | State Code: | Y | 1356.0 sqft | Value: | $234,492 |
| Bathrooms: | 2.25 | Bedrooms: | 3 | | Ceiling: | DRYWALL PAINTED | Exterior Wall/Cover: | CEMENT FIBER | | Floor Covering: | CARPET/VINYL 80-20 | Floor Structure: | WOOD W/SUBFLOOR | | Foundation: | CONCRETE | Heating: | FHA GAS | | Interior Finish: | DRYWALL PAINT | Plumbing Fixture Cnt: | 11 | | Roof Slope: | 8" IN 12" | Roof Structure/Cover: | CJ ASPHALT |
|
| | Type | Description | Class CD | Sub Class CD | Year Built | Area |
| | BAS | BASE/MAIN FLOOR | 3 | 0 | 1993 | 630.0 |
| | AGR | ATTACHED GARAGE | 3 | 0 | 1993 | 276.0 |
| | UPS | UPPER STORY | 3 | 0 | 1993 | 726.0 |
| | OWP | OPEN WOOD PORCH W/STEPS | 3 | 0 | 1993 | 42.0 |
| | OWC | OPEN WOOD PORCH W/STEPS/ROOF/C | 3 | 0 | 1993 | 88.0 |
| | oPV1 | PV/ASPH 2" | 3 | 0 | 1993 | 0.0 |
Sketch
Property Image
Land
| 1 | 61 | MULTIPLE RESIDENCES | 0.0817 | 3557.31 | 0.00 | 0.00 | 1.00 | $120,000 | $0 |
Roll Value History
| 2026 | N/A | N/A | N/A | N/A | N/A |
| 2025 | $234,492 | $120,000 | $0 | $354,492 | $354,492 |
| 2024 | $237,364 | $120,000 | $0 | $357,364 | $357,364 |
| 2023 | $228,784 | $120,000 | $0 | $348,784 | $348,784 |
| 2022 | $209,864 | $120,000 | $0 | $329,864 | $329,864 |
| 2021 | $184,881 | $65,000 | $0 | $249,881 | $249,881 |
| 2020 | $179,770 | $53,000 | $0 | $232,770 | $232,770 |
| 2019 | $126,911 | $90,000 | $0 | $216,911 | $216,911 |
| 2018 | $127,289 | $65,000 | $0 | $192,289 | $192,289 |
| 2017 | $123,190 | $55,851 | $0 | $179,041 | $179,041 |
| 2016 | $123,190 | $55,851 | $0 | $179,041 | $179,041 |
| 2015 | $123,190 | $55,851 | $0 | $179,041 | $179,041 |
| 2014 | $123,190 | $55,851 | $0 | $179,041 | $179,041 |
| 2013 | $123,190 | $55,851 | $0 | $179,041 | $179,041 |
| 2012 | $123,190 | $55,851 | $0 | $179,041 | $179,041 |
| 2011 | $123,190 | $55,851 | $0 | $179,041 | $179,041 |
| 2010 | $131,042 | $55,851 | $0 | $186,893 | $186,893 |
| 2009 | $136,561 | $69,034 | $0 | $205,595 | $205,595 |
| 2008 | $138,397 | $69,034 | $0 | $207,431 | $207,431 |
| 2007 | $140,250 | $69,034 | $0 | $209,284 | $209,284 |
Deed and Sales History
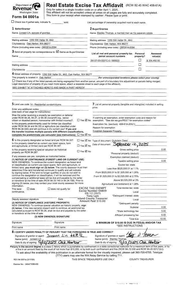
| 1 | 09/12/2025 | QCD | Quit Claim Deed | LIN, JUNWEN | THOMAS, STANLEY | | | $0.00 | 64809 | 4590882 |
| 2 | 09/04/2025 | WD | Warranty Deed | MONTAIVO, BRENDAN MANUEL | THOMAS, STANLEY | | | $349,000.00 | 64807 | 4590881 |
| 3 | 04/14/2022 | QCD | Quit Claim Deed | MONTALVO, MCKENZIE L | MONTALVO, BRENDAN MANUEL | | | $0.00 | 52818 | 4543894 |
| 4 | 11/22/2016 | WD | Warranty Deed | ROBERTSON, JOSHUA | MONTAIVO, BRENDAN MANUEL | | | $217,000.00 | 27093 | 4412273 |
| 5 | 09/22/2006 | WD | Warranty Deed | HASTIE, TODD B | ROBERTSON, JOSHUA | | | $205,000.00 | 64220 | 4183118 |
| 6 | 12/01/1993 | WD | Warranty Deed | CAVE, KENNETH L | HASTIE, TODD B | | | $110,000.00 | 35167 | 93026888 |
| 7 | 01/01/1900 | OTHER | Other - Misc. Documents | Unknown | CAVE, KENNETH L | | | $0.00 | 3904 | 376594 |
Payout Agreement
| No payout information available.. |