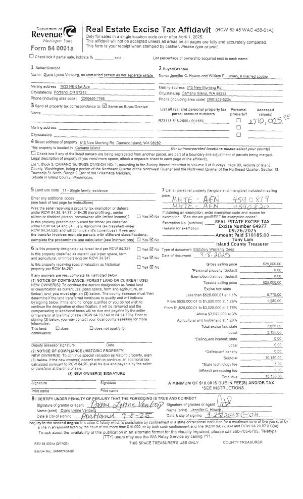
Property
Account |
| Property ID: | 691656 | Abbreviated Legal Description: | LOT 1 BLK 2 CAMANO SUNRISE #1 V3 SUR P90 |
| Geographic ID: | R23113-518-2500 | Agent Code: | |
| Type: | Real | | |
| Tax Area: | 512 - APPRAISER-Stan/Cam Schl Dist, improved, greater than 1 acre | Land Use Code | 11 |
| Open Space: | N | DFL | N |
| Historic Property: | N | Remodel Property: | N |
| Multi-Family Redevelopment: | N | | |
| Township: | 31 | Section: | 13 |
| Range: | R2 |
Location |
| Address: | 815 NEW MORNING RD CAMANO ISLAND, WA 98282 | Mapsco: | |
| Neighborhood: | Cycle 5 | Map ID: | 479 |
| Neighborhood CD: | 5 |
Owner |
| Name: | VENBERG JTWROS, DIANE LYNNE | Owner ID: | 279846 |
| Mailing Address: | GERALDINE M ERB JTWROS 815 NEW MORNING RD CAMANO ISLAND, WA 98282 | % Ownership: | 100.0000000000% |
| | | Exemptions: | |
Taxes and Assessment Details
Values
| (+) Improvement Homesite Value: | + | $0 | |
| (+) Improvement Non-Homesite Value: | + | $380,005 | |
| (+) Land Homesite Value: | + | $0 | |
| (+) Land Non-Homesite Value: | + | $330,000 | |
| (+) Curr Use (HS): | + | $0 | $0 |
| (+) Curr Use (NHS): | + | $0 | $0 |
| | | -------------------------- | |
| (=) Market Value: | = | $710,005 | |
| (–) Productivity Loss: | – | $0 | |
| | | -------------------------- | |
| (=) Subtotal: | = | $710,005 | |
| (+) Senior Appraised Value: | + | $0 | |
| (+) Non-Senior Appraised Value: | + | $710,005 | |
| | | -------------------------- | |
| (=) Total Appraised Value: | = | $710,005 | |
| (–) Senior Exemption Loss: | – | $0 | |
| (–) Exemption Loss: | – | $0 | |
| | | -------------------------- | |
| (=) Taxable Value: | = | $710,005 | |
Taxing Jurisdiction
| Owner: | VENBERG JTWROS, DIANE LYNNE | | |
| % Ownership: | 100.0000000000% | | |
| Total Value: | $710,005 | | |
| Tax Area: | 512 - APPRAISER-Stan/Cam Schl Dist, improved, greater than 1 acre |
| CF | Conservation Futures | 0.0313996660 | $710,005 | $710,005 | $22.29 | | |
| EMS1 | Fire & Rescue Dist #1 Camano GEN (EMS) | 0.4998471806 | $710,005 | $710,005 | $354.89 | | |
| FIRE1 | Fire & Rescue Dist #1 Camano GEN | 1.2496603404 | $710,005 | $710,005 | $887.27 | | |
| FIRE1BOND | Fire & Rescue Dist #1 Camano BOND | 0.1630371212 | $710,005 | $710,005 | $115.76 | | |
| CE | County Current Expense | 0.3674210519 | $710,005 | $710,005 | $260.87 | | |
| CR | County Roads | 0.4614296361 | $710,005 | $710,005 | $327.62 | | |
| LIB | Library Sno-Isle GEN | 0.3039084203 | $710,005 | $710,005 | $215.78 | | |
| SCH205_401 | School 205-401 Enrichment | 1.3697998934 | $710,005 | $710,005 | $972.56 | | |
| SCH205BOND | School 205-401 BOND | 0.9354199323 | $710,005 | $710,005 | $664.15 | | |
| ST | State School | 1.4761226122 | $710,005 | $710,005 | $1,048.05 | | |
| ST2 | State School Part 2 | 0.7953803475 | $710,005 | $710,005 | $564.72 | | |
| | Total Tax Rate: | 7.6534262019 | | | | | |
| | | | | Taxes w/Current Exemptions: | $5,433.96 | | |
| | | | | Taxes w/o Exemptions: | $5,433.96 | | |
Improvement / Building
| Improvement #1: | MANUFACTURED HOME | State Code: | Y | 2021.0 sqft | Value: | $259,921 |
| Bathrooms: | 2 | Bedrooms: | 2 | | Ceiling: | PLASTER PAINTED | Cooling: | EVAP NO DUCT | | Exterior Wall/Cover: | VINYL | Floor Covering: | HARDWOOD 100% | | Floor Structure: | SLAB ON GRADE | Foundation: | SLAB | | Heating: | FHA ELECTRIC | Interior Finish: | PLASTER | | Roof Slope: | FLAT | Roof Structure/Cover: | CJ ALUMINIUM HEAVY |
|
| | Type | Description | Class CD | Sub Class CD | Year Built | Area |
| | BAS | BASE/MAIN FLOOR | 4 | 0 | 2018 | 2021.0 |
| | OWP | OPEN WOOD PORCH W/STEPS | 4 | 0 | 2018 | 320.0 |
| | DGR | DETACHED GARAGE | 4 | 0 | 2018 | 400.0 |
| | OCP | OPEN CARPORT | 4 | 0 | 2018 | 260.0 |
| Improvement #2: | MANUFACTURED HOME | State Code: | Y | 1032.0 sqft | Value: | $120,084 |
| Bathrooms: | 2 | Bedrooms: | 2 | | Ceiling: | PLASTER PAINTED | Cooling: | EVAP NO DUCT | | Exterior Wall/Cover: | VINYL | Floor Covering: | HARDWOOD 100% | | Floor Structure: | SLAB ON GRADE | Foundation: | SLAB | | Heating: | FHA ELECTRIC | Interior Finish: | PLASTER | | Roof Slope: | FLAT | Roof Structure/Cover: | CJ ALUMINIUM HEAVY |
|
| | Type | Description | Class CD | Sub Class CD | Year Built | Area |
| | BAS | BASE/MAIN FLOOR | 4 | 0 | 2018 | 1032.0 |
| | OWP | OPEN WOOD PORCH W/STEPS | 4 | 0 | 2018 | 84.0 |
Sketch
Property Image
Land
| 1 | 32 | AC (03.01-09.99) | 5.0000 | 0.00 | 0.00 | 0.00 | 1.00 | $330,000 | $0 |
Roll Value History
| 2026 | N/A | N/A | N/A | N/A | N/A |
| 2025 | $380,005 | $330,000 | $0 | $710,005 | $710,005 |
| 2024 | $388,090 | $300,000 | $0 | $688,090 | $688,090 |
| 2023 | $340,981 | $290,000 | $0 | $630,981 | $630,981 |
| 2022 | $311,951 | $290,000 | $0 | $601,951 | $601,951 |
| 2021 | $292,916 | $190,000 | $0 | $482,916 | $482,916 |
| 2020 | $287,210 | $160,000 | $0 | $447,210 | $447,210 |
| 2019 | $228,672 | $230,000 | $0 | $458,672 | $458,672 |
| 2018 | $228,672 | $175,000 | $0 | $403,672 | $403,672 |
| 2017 | $0 | $90,000 | $0 | $90,000 | $90,000 |
| 2016 | $0 | $80,000 | $0 | $80,000 | $80,000 |
| 2015 | $0 | $100,000 | $0 | $100,000 | $100,000 |
| 2014 | $0 | $100,000 | $0 | $100,000 | $100,000 |
| 2013 | $0 | $120,000 | $0 | $120,000 | $120,000 |
| 2012 | $0 | $120,000 | $0 | $120,000 | $120,000 |
| 2011 | $0 | $120,000 | $0 | $120,000 | $120,000 |
| 2010 | $0 | $120,000 | $0 | $120,000 | $120,000 |
| 2009 | $0 | $150,000 | $0 | $150,000 | $150,000 |
| 2008 | $0 | $152,500 | $0 | $152,500 | $152,500 |
| 2007 | $0 | $130,000 | $0 | $130,000 | $130,000 |
Deed and Sales History
| 1 | 09/08/2025 | WD | Warranty Deed | VENBERG JTWROS, DIANE LYNNE | HAWES, JENNIFER C | | | $625,000.00 | 64977 | 4591512 |
| 2 | 05/08/2017 | WD | Warranty Deed | JOHNSON, KIRK V | VENBERG JTWROS, DIANE LYNNE | | | $147,500.00 | 29243 | 4422334 |
| 3 | 12/15/2005 | WD | Warranty Deed | VIOTTO, VITTORIO | JOHNSON, KIRK V | | | $165,000.00 | 56291 | 4157621 |
| 4 | 07/29/2005 | WD | Warranty Deed | ZETTLE, JOANNE | VIOTTO, VITTORIO | | | $135,000.00 | 53822 | 4143182 |
| 5 | 08/10/2004 | ESTSEPPROP | Establish Separate Property | ZETTLE, JOANNE | ZETTLE, JOANNE | | | $0.00 | 43749 | 4109974 |
| 6 | 04/12/2004 | PRD | Personal Representatives Deed | ZETTLE, JOANNE | ZETTLE, JOANNE | | | $0.00 | 42791 | 4104925 |
| 7 | 04/12/2004 | PRD | Personal Representatives Deed | ZETTLE, CLYDE & | ZETTLE, JOANNE | | | $0.00 | 42603 | 4103856 |
| 8 | 03/01/1994 | OTHER | Other - Misc. Documents | ZETTLE, CLYDE & | ZETTLE, CLYDE & | | | $0.00 | 65831 | 0 |
| 9 | 03/01/1989 | QCD | Quit Claim Deed | Unknown | ZETTLE, CLYDE & | | | $0.00 | 90868 | 89003150 |
Payout Agreement
| No payout information available.. |