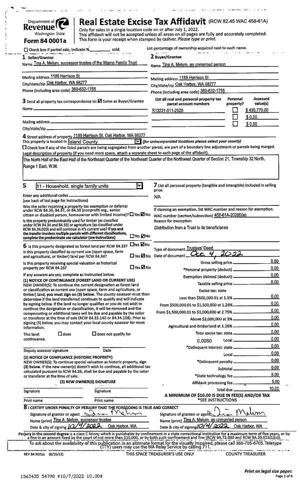
Property
Account |
| Property ID: | 691816 | Abbreviated Legal Description: | W/2 SE NW SE TGW & SUB EZ AF#90017484 FR PT 170-3680 |
| Geographic ID: | R23334-172-3480 | Agent Code: | |
| Type: | Real | | |
| Tax Area: | 112 - APPRAISER-OH Schl Dist, outside OH, improved, greater than 1 acre | Land Use Code | 11 |
| Open Space: | N | DFL | N |
| Historic Property: | N | Remodel Property: | N |
| Multi-Family Redevelopment: | N | | |
| Township: | 33 | Section: | 34 |
| Range: | R2 |
Location |
| Address: | 2510 GREEN ACRES LN OAK HARBOR, WA 98277 | Mapsco: | |
| Neighborhood: | Cycle 6 | Map ID: | 656 |
| Neighborhood CD: | 6 |
Owner |
| Name: | DUNPHY, THERESE C | Owner ID: | 74345 |
| Mailing Address: | PO BOX 2591 OAK HARBOR, WA 98277-6591 | % Ownership: | 100.0000000000% |
| | | Exemptions: | |
Taxes and Assessment Details
Values
| (+) Improvement Homesite Value: | + | $0 | |
| (+) Improvement Non-Homesite Value: | + | $594,433 | |
| (+) Land Homesite Value: | + | $0 | |
| (+) Land Non-Homesite Value: | + | $300,000 | |
| (+) Curr Use (HS): | + | $0 | $0 |
| (+) Curr Use (NHS): | + | $0 | $0 |
| | | -------------------------- | |
| (=) Market Value: | = | $894,433 | |
| (–) Productivity Loss: | – | $0 | |
| | | -------------------------- | |
| (=) Subtotal: | = | $894,433 | |
| (+) Senior Appraised Value: | + | $0 | |
| (+) Non-Senior Appraised Value: | + | $894,433 | |
| | | -------------------------- | |
| (=) Total Appraised Value: | = | $894,433 | |
| (–) Senior Exemption Loss: | – | $0 | |
| (–) Exemption Loss: | – | $0 | |
| | | -------------------------- | |
| (=) Taxable Value: | = | $894,433 | |
Taxing Jurisdiction
| Owner: | DUNPHY, THERESE C | | |
| % Ownership: | 100.0000000000% | | |
| Total Value: | $894,433 | | |
| Tax Area: | 112 - APPRAISER-OH Schl Dist, outside OH, improved, greater than 1 acre |
| CF | Conservation Futures | 0.0313996660 | $894,433 | $894,433 | $28.08 | | |
| CEM1 | Cemetery #1 | 0.0040018856 | $894,433 | $894,433 | $3.58 | | |
| FIRE2 | Fire & Rescue Dist #2 N Whidbey GEN | 0.5381486274 | $894,433 | $894,433 | $481.34 | | |
| HOBOND | Hospital BOND | 0.1893405597 | $894,433 | $894,433 | $169.35 | | |
| HOGEN | Hospital GEN | 0.3848777722 | $894,433 | $894,433 | $344.25 | | |
| CE | County Current Expense | 0.3674210519 | $894,433 | $894,433 | $328.63 | | |
| CR | County Roads | 0.4614296361 | $894,433 | $894,433 | $412.72 | | |
| ISLANDEMS | Hospital GEN (EMS) | 0.4952018576 | $894,433 | $894,433 | $442.92 | | |
| LIB | Library Sno-Isle GEN | 0.3039084203 | $894,433 | $894,433 | $271.83 | | |
| NWHIDPRMT | P & R N Whidbey GEN | 0.1990272349 | $894,433 | $894,433 | $178.02 | | |
| SCH201MO | School 201 Enrichment | 2.3851112745 | $894,433 | $894,433 | $2,133.32 | | |
| ST | State School | 1.4761226122 | $894,433 | $894,433 | $1,320.29 | | |
| ST2 | State School Part 2 | 0.7953803475 | $894,433 | $894,433 | $711.41 | | |
| | Total Tax Rate: | 7.6313709459 | | | | | |
| | | | | Taxes w/Current Exemptions: | $6,825.74 | | |
| | | | | Taxes w/o Exemptions: | $6,825.74 | | |
Improvement / Building
| Improvement #1: | RESIDENTIAL | State Code: | Y | 3424.4 sqft | Value: | $594,433 |
| Bathrooms: | 2.5 | Bedrooms: | 3 | | Ceiling: | TONGUE & GROOVE | Cooling: | HEAT PUMP/CONV/V | | Exterior Wall/Cover: | CEMENT FIBER | Floor Covering: | CARPET/VINYL 80-20 | | Floor Structure: | WOOD W/SUBFLOOR | Foundation: | CONCRETE | | Interior Finish: | DRYWALL PAINT | Plumbing Fixture Cnt: | 15 | | Roof Slope: | 8" IN 12" | Roof Structure/Cover: | CJ ASPHALT |
|
| | Type | Description | Class CD | Sub Class CD | Year Built | Area |
| | BAS | BASE/MAIN FLOOR | 4 | 0 | 2006 | 1764.2 |
| | DGR | DETACHED GARAGE | 4 | 0 | 2006 | 400.0 |
| | OWP | OPEN WOOD PORCH W/STEPS | 4 | 0 | 2006 | 112.0 |
| | OWP | OPEN WOOD PORCH W/STEPS | 4 | 0 | 2006 | 263.9 |
| | OWC | OPEN WOOD PORCH W/STEPS/ROOF/C | 4 | 0 | 2006 | 91.0 |
| | DWN | DOWNSTAIRS LIVING AREA | 4 | 0 | 2006 | 1660.2 |
| | OWC | OPEN WOOD PORCH W/STEPS/ROOF/C | 4 | 0 | 2006 | 186.2 |
| | OWP | OPEN WOOD PORCH W/STEPS | 4 | 0 | 2006 | 84.0 |
| | AGR | ATTACHED GARAGE | 4 | 0 | 2006 | 576.0 |
| | UTY | STORAGE/UTILITY | 4 | 0 | 2006 | 448.0 |
| | UTY | STORAGE/UTILITY | 4 | 0 | 2006 | 192.0 |
Sketch
Property Image
Land
| 1 | 32 | AC (03.01-09.99) | 5.0000 | 0.00 | 0.00 | 0.00 | 1.00 | $300,000 | $0 |
Roll Value History
| 2026 | N/A | N/A | N/A | N/A | N/A |
| 2025 | $594,433 | $300,000 | $0 | $894,433 | $894,433 |
| 2024 | $601,406 | $280,000 | $0 | $881,406 | $881,406 |
| 2023 | $608,380 | $270,000 | $0 | $878,380 | $878,380 |
| 2022 | $460,255 | $240,000 | $0 | $700,255 | $700,255 |
| 2021 | $404,965 | $160,000 | $0 | $564,965 | $564,965 |
| 2020 | $395,237 | $140,000 | $0 | $535,237 | $535,237 |
| 2019 | $299,185 | $200,000 | $0 | $499,185 | $499,185 |
| 2018 | $300,043 | $170,000 | $0 | $470,043 | $470,043 |
| 2017 | $301,756 | $150,000 | $0 | $451,756 | $451,756 |
| 2016 | $309,991 | $140,000 | $0 | $449,991 | $449,991 |
| 2015 | $313,370 | $120,000 | $0 | $433,370 | $433,370 |
| 2014 | $316,746 | $100,000 | $0 | $416,746 | $416,746 |
| 2013 | $320,119 | $108,000 | $0 | $428,119 | $428,119 |
| 2012 | $323,496 | $99,000 | $0 | $422,496 | $422,496 |
| 2011 | $317,374 | $110,000 | $0 | $427,374 | $427,374 |
| 2010 | $322,527 | $110,000 | $0 | $432,527 | $432,527 |
| 2009 | $336,092 | $145,000 | $0 | $481,092 | $481,092 |
| 2008 | $352,870 | $145,000 | $0 | $497,870 | $497,870 |
| 2007 | $353,471 | $120,000 | $0 | $473,471 | $473,471 |
Deed and Sales History
| 1 | 08/01/1994 | WD | Warranty Deed | EARTH, SERVICES & | DUNPHY, THERESE C | | | $55,000.00 | 43525 | 94018716 |
| 2 | 03/01/1994 | OTHER | Other - Misc. Documents | EARTH, SERVICES & | EARTH, SERVICES & | | | $0.00 | 65832 | 94006761 |
| 3 | 01/01/1900 | OTHER | Other - Misc. Documents | Unknown | EARTH, SERVICES & | | | $0.00 | 63939 | 90020684 |
Payout Agreement
| No payout information available.. |