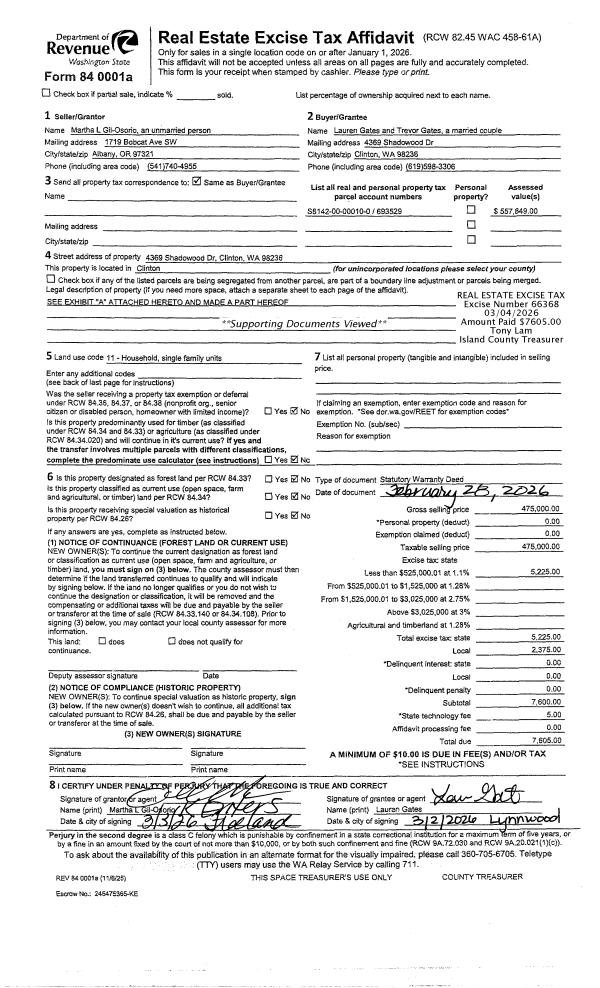
Property
Account |
| Property ID: | 693529 | Abbreviated Legal Description: | SHADOWOOD LOT 10 EX PT DESC: BG MST WLY CR L10 (CON MON CTR SHADOWOOD DR) S88*E50'TPB N84*E117.32'TO ELY LN L10 S10*W15'TO SECR N88*W114.05 TPB |
| Geographic ID: | S8142-00-00010-0 | Agent Code: | |
| Type: | Real | | |
| Tax Area: | 710 - APPRAISER-S Whid Schl Dist, outside Langley, improved & 1 acre or less | Land Use Code | 11 |
| Open Space: | N | DFL | N |
| Historic Property: | N | Remodel Property: | N |
| Multi-Family Redevelopment: | N | | |
| Township: | | Section: | |
| Range: | |
Location |
| Address: | 4369 SHADOWOOD DR CLINTON, WA 98236 | Mapsco: | |
| Neighborhood: | Cycle 4 | Map ID: | 804 |
| Neighborhood CD: | 4 |
Owner |
| Name: | GIL-OSORIO, DARIO D | Owner ID: | 177396 |
| Mailing Address: | MARTHA L GIL-OSORIO 4369 SHADOWOOD DR CLINTON, WA 98236-9541 | % Ownership: | 100.0000000000% |
| | | Exemptions: | |
Taxes and Assessment Details
Values
| (+) Improvement Homesite Value: | + | $0 | |
| (+) Improvement Non-Homesite Value: | + | $317,849 | |
| (+) Land Homesite Value: | + | $0 | |
| (+) Land Non-Homesite Value: | + | $240,000 | |
| (+) Curr Use (HS): | + | $0 | $0 |
| (+) Curr Use (NHS): | + | $0 | $0 |
| | | -------------------------- | |
| (=) Market Value: | = | $557,849 | |
| (–) Productivity Loss: | – | $0 | |
| | | -------------------------- | |
| (=) Subtotal: | = | $557,849 | |
| (+) Senior Appraised Value: | + | $0 | |
| (+) Non-Senior Appraised Value: | + | $557,849 | |
| | | -------------------------- | |
| (=) Total Appraised Value: | = | $557,849 | |
| (–) Senior Exemption Loss: | – | $0 | |
| (–) Exemption Loss: | – | $0 | |
| | | -------------------------- | |
| (=) Taxable Value: | = | $557,849 | |
Taxing Jurisdiction
| Owner: | GIL-OSORIO, DARIO D | | |
| % Ownership: | 100.0000000000% | | |
| Total Value: | $557,849 | | |
| Tax Area: | 710 - APPRAISER-S Whid Schl Dist, outside Langley, improved & 1 acre or less |
| CF | Conservation Futures | 0.0313996660 | $557,849 | $557,849 | $17.52 | | |
| FIRE3 | Fire & Rescue Dist #3 S Whidbey GEN | 1.2130821753 | $557,849 | $557,849 | $676.72 | | |
| HOBOND | Hospital BOND | 0.1893405597 | $557,849 | $557,849 | $105.62 | | |
| HOGEN | Hospital GEN | 0.3848777722 | $557,849 | $557,849 | $214.70 | | |
| CE | County Current Expense | 0.3674210519 | $557,849 | $557,849 | $204.97 | | |
| CR | County Roads | 0.4614296361 | $557,849 | $557,849 | $257.41 | | |
| ISLANDEMS | Hospital GEN (EMS) | 0.4952018576 | $557,849 | $557,849 | $276.25 | | |
| LIB | Library Sno-Isle GEN | 0.3039084203 | $557,849 | $557,849 | $169.54 | | |
| PORTWHID | Port of S Whidbey GEN | 0.1086004714 | $557,849 | $557,849 | $60.58 | | |
| SCH206BOND | School 206 BOND | 0.5960237832 | $557,849 | $557,849 | $332.49 | | |
| SCH206CAP | School 206 CP | 0.3066144020 | $557,849 | $557,849 | $171.04 | | |
| SCH206MO | School 206 Enrichment | 0.4808755445 | $557,849 | $557,849 | $268.26 | | |
| ST | State School | 1.4761226122 | $557,849 | $557,849 | $823.45 | | |
| ST2 | State School Part 2 | 0.7953803475 | $557,849 | $557,849 | $443.70 | | |
| SWHIDPRBD | P & R S Whidbey BOND | 0.0144185398 | $557,849 | $557,849 | $8.04 | | |
| SWHIDPRBD3 | P & R S Whidbey BOND3 | 0.1483535547 | $557,849 | $557,849 | $82.76 | | |
| SWHIDPRMT | P & R S Whidbey GEN | 0.4600000000 | $557,849 | $557,849 | $256.61 | | |
| | Total Tax Rate: | 7.8330503944 | | | | | |
| | | | | Taxes w/Current Exemptions: | $4,369.66 | | |
| | | | | Taxes w/o Exemptions: | $4,369.66 | | |
Improvement / Building
| Improvement #1: | RESIDENTIAL | State Code: | Y | 2003.0 sqft | Value: | $317,849 |
| Bathrooms: | 2.5 | Bedrooms: | 3 | | Ceiling: | DRYWALL PAINTED | Exterior Wall/Cover: | CEMENT FIBER | | Floor Covering: | HARDWOOD/CARP 60-40 | Floor Structure: | WOOD W/SUBFLOOR | | Foundation: | CONCRETE | Heating: | FHA GAS | | Interior Finish: | DRYWALL PAINT | Plumbing Fixture Cnt: | 12 | | Roof Slope: | 6" IN 12" | Roof Structure/Cover: | CJ ASPHALT |
|
| | Type | Description | Class CD | Sub Class CD | Year Built | Area |
| | BAS | BASE/MAIN FLOOR | 3 | 0 | 1999 | 1298.0 |
| | DWN | DOWNSTAIRS LIVING AREA | 3 | 0 | 1999 | 705.0 |
| | AGR | ATTACHED GARAGE | 3 | 0 | 1999 | 410.0 |
| | OWP | OPEN WOOD PORCH W/STEPS | 3 | 0 | 1999 | 90.0 |
| | OWC | OPEN WOOD PORCH W/STEPS/ROOF/C | 3 | 0 | 1999 | 22.0 |
Sketch
Property Image
Land
| 1 | 15 | SQ (12001-21780) | 0.0000 | 0.00 | 0.00 | 0.00 | 1.00 | $240,000 | $0 |
Roll Value History
| 2026 | N/A | N/A | N/A | N/A | N/A |
| 2025 | $317,849 | $240,000 | $0 | $557,849 | $557,849 |
| 2024 | $321,760 | $230,000 | $0 | $551,760 | $551,760 |
| 2023 | $325,674 | $230,000 | $0 | $555,674 | $555,674 |
| 2022 | $298,452 | $210,000 | $0 | $508,452 | $508,452 |
| 2021 | $281,662 | $150,000 | $0 | $431,662 | $431,662 |
| 2020 | $236,825 | $140,000 | $0 | $376,825 | $376,825 |
| 2019 | $167,219 | $150,000 | $0 | $317,219 | $317,219 |
| 2018 | $167,740 | $130,000 | $0 | $297,740 | $297,740 |
| 2017 | $168,783 | $110,000 | $0 | $278,783 | $278,783 |
| 2016 | $170,865 | $65,000 | $0 | $235,865 | $235,865 |
| 2015 | $167,359 | $55,000 | $0 | $222,359 | $222,359 |
| 2014 | $158,817 | $65,000 | $0 | $223,817 | $223,817 |
| 2013 | $160,706 | $65,000 | $0 | $225,706 | $225,706 |
| 2012 | $162,598 | $81,000 | $0 | $243,598 | $243,598 |
| 2011 | $164,487 | $90,000 | $0 | $254,487 | $254,487 |
| 2010 | $170,108 | $90,000 | $0 | $260,108 | $260,108 |
| 2009 | $177,291 | $100,000 | $0 | $277,291 | $277,291 |
| 2008 | $152,251 | $150,000 | $0 | $302,251 | $302,251 |
| 2007 | $153,916 | $150,000 | $0 | $303,916 | $303,916 |
Deed and Sales History
| 1 | 10/20/1999 | WD | Warranty Deed | WILDERUNN ENTERPRISES INC, | GIL-OSORIO, DARIO D | | | $142,000.00 | 94357 | 99023731 |
| 2 | 07/07/1998 | WD | Warranty Deed | WILDERUNN, ENTERPRISES I | WILDERUNN ENTERPRISES INC, | | | $0.00 | 82684 | 98013865 |
| 3 | 06/01/1995 | OTHER | Other - Misc. Documents | R, K P | R, K P | | | $0.00 | 66504 | 95010001 |
| 4 | 01/01/1900 | OTHER | Other - Misc. Documents | Unknown | R, K P | | | $0.00 | 65286 | 0 |
| 5 | 01/01/1900 | OTHER | Other - Misc. Documents | R, K P | WILDERUNN, ENTERPRISES I | | | $0.00 | 82684 | 98013865 |
Payout Agreement
| No payout information available.. |