Property
Account |
| Property ID: | 696278 | Abbreviated Legal Description: | REPLACES 014-2130 LOT 3 SP 9-92.32804.331-2200 & 235-0020 V2 SP P464 AF#94014058 |
| Geographic ID: | R32804-213-0140 | Agent Code: | |
| Type: | Real | | |
| Tax Area: | 710 - APPRAISER-S Whid Schl Dist, outside Langley, improved & 1 acre or less | Land Use Code | 11 |
| Open Space: | N | DFL | N |
| Historic Property: | N | Remodel Property: | N |
| Multi-Family Redevelopment: | N | | |
| Township: | 28 | Section: | 04 |
| Range: | R3 |
Location |
| Address: | | Mapsco: | |
| Neighborhood: | Cycle 4 | Map ID: | 687 |
| Neighborhood CD: | 4 |
Owner |
| Name: | VANDER POL, DARYL | Owner ID: | 297972 |
| Mailing Address: | CLAUDIA VANDERPOL SONJA C RINGSRUD & PAUL A RINGSRUD PO BOX 1249 CLINTON, WA 98236 | % Ownership: | 100.0000000000% |
| | | Exemptions: | |
Taxes and Assessment Details
Values
| (+) Improvement Homesite Value: | + | $0 | |
| (+) Improvement Non-Homesite Value: | + | $10,234 | |
| (+) Land Homesite Value: | + | $0 | |
| (+) Land Non-Homesite Value: | + | $251,000 | |
| (+) Curr Use (HS): | + | $0 | $0 |
| (+) Curr Use (NHS): | + | $0 | $0 |
| | | -------------------------- | |
| (=) Market Value: | = | $261,234 | |
| (–) Productivity Loss: | – | $0 | |
| | | -------------------------- | |
| (=) Subtotal: | = | $261,234 | |
| (+) Senior Appraised Value: | + | $0 | |
| (+) Non-Senior Appraised Value: | + | $261,234 | |
| | | -------------------------- | |
| (=) Total Appraised Value: | = | $261,234 | |
| (–) Senior Exemption Loss: | – | $0 | |
| (–) Exemption Loss: | – | $0 | |
| | | -------------------------- | |
| (=) Taxable Value: | = | $261,234 | |
Taxing Jurisdiction
| Owner: | VANDER POL, DARYL | | |
| % Ownership: | 100.0000000000% | | |
| Total Value: | $261,234 | | |
| Tax Area: | 710 - APPRAISER-S Whid Schl Dist, outside Langley, improved & 1 acre or less |
| CF | Conservation Futures | 0.0313996660 | $261,234 | $261,234 | $8.20 | | |
| FIRE3 | Fire & Rescue Dist #3 S Whidbey GEN | 1.2130821753 | $261,234 | $261,234 | $316.90 | | |
| HOBOND | Hospital BOND | 0.1893405597 | $261,234 | $261,234 | $49.46 | | |
| HOGEN | Hospital GEN | 0.3848777722 | $261,234 | $261,234 | $100.54 | | |
| CE | County Current Expense | 0.3674210519 | $261,234 | $261,234 | $95.98 | | |
| CR | County Roads | 0.4614296361 | $261,234 | $261,234 | $120.54 | | |
| ISLANDEMS | Hospital GEN (EMS) | 0.4952018576 | $261,234 | $261,234 | $129.36 | | |
| LIB | Library Sno-Isle GEN | 0.3039084203 | $261,234 | $261,234 | $79.39 | | |
| PORTWHID | Port of S Whidbey GEN | 0.1086004714 | $261,234 | $261,234 | $28.37 | | |
| SCH206BOND | School 206 BOND | 0.5960237832 | $261,234 | $261,234 | $155.70 | | |
| SCH206CAP | School 206 CP | 0.3066144020 | $261,234 | $261,234 | $80.10 | | |
| SCH206MO | School 206 Enrichment | 0.4808755445 | $261,234 | $261,234 | $125.62 | | |
| ST | State School | 1.4761226122 | $261,234 | $261,234 | $385.61 | | |
| ST2 | State School Part 2 | 0.7953803475 | $261,234 | $261,234 | $207.78 | | |
| SWHIDPRBD | P & R S Whidbey BOND | 0.0144185398 | $261,234 | $261,234 | $3.77 | | |
| SWHIDPRBD3 | P & R S Whidbey BOND3 | 0.1483535547 | $261,234 | $261,234 | $38.75 | | |
| SWHIDPRMT | P & R S Whidbey GEN | 0.4600000000 | $261,234 | $261,234 | $120.17 | | |
| | Total Tax Rate: | 7.8330503944 | | | | | |
| | | | | Taxes w/Current Exemptions: | $2,046.24 | | |
| | | | | Taxes w/o Exemptions: | $2,046.24 | | |
Improvement / Building
| Improvement #1: | RESIDENTIAL | State Code: | Y | 0.0 sqft | Value: | $10,234 |
Sketch
Property Image
Land
| 1 | LB | LOW BANK | 0.7200 | 31363.20 | 100.00 | 0.00 | 1.00 | $250,000 | $0 |
| 2 | 55 | TIDES | 0.0000 | 0.00 | 100.00 | 0.00 | 1.00 | $1,000 | $0 |
Roll Value History
| 2026 | N/A | N/A | N/A | N/A | N/A |
| 2025 | $10,234 | $251,000 | $0 | $261,234 | $261,234 |
| 2024 | $10,234 | $251,000 | $0 | $261,234 | $261,234 |
| 2023 | $10,234 | $251,000 | $0 | $261,234 | $261,234 |
| 2022 | $10,234 | $251,000 | $0 | $261,234 | $261,234 |
| 2021 | $20,612 | $251,000 | $0 | $271,612 | $271,612 |
| 2020 | $20,612 | $251,000 | $0 | $271,612 | $271,612 |
| 2019 | $20,612 | $251,000 | $0 | $271,612 | $271,612 |
| 2018 | $20,612 | $251,000 | $0 | $271,612 | $271,612 |
| 2017 | $20,612 | $251,000 | $0 | $271,612 | $271,612 |
| 2016 | $20,612 | $251,000 | $0 | $271,612 | $271,612 |
| 2015 | $20,612 | $251,000 | $0 | $271,612 | $271,612 |
| 2014 | $22,464 | $251,000 | $0 | $273,464 | $273,464 |
| 2013 | $22,464 | $278,798 | $0 | $301,262 | $301,262 |
| 2012 | $22,464 | $278,798 | $0 | $301,262 | $301,262 |
| 2011 | $22,464 | $278,798 | $0 | $301,262 | $301,262 |
| 2010 | $22,464 | $278,798 | $0 | $301,262 | $301,262 |
| 2009 | $10,378 | $348,248 | $0 | $358,626 | $358,626 |
| 2008 | $10,378 | $472,400 | $0 | $482,778 | $482,778 |
| 2007 | $10,378 | $470,564 | $0 | $480,942 | $480,942 |
Deed and Sales History
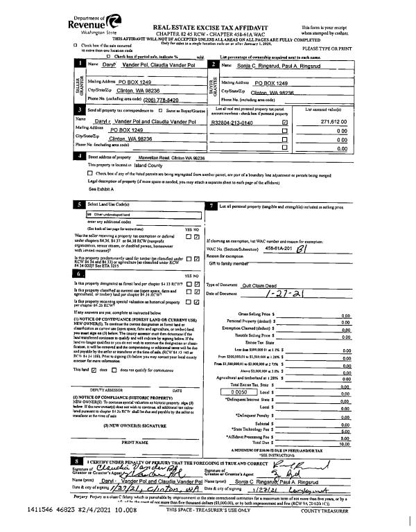
| 1 | 01/27/2021 | QCD | Quit Claim Deed | VANDERPOL, DARYL L / CLAUDIA | VANDER POL, DARYL | | | $0.00 | 46823 | 4510037 |
| 2 | 11/01/1996 | WD | Warranty Deed | STEINER, HAROLD L | VANDERPOL, DARYL L | | | $250,000.00 | 64182 | 96020405 |
| 3 | 11/01/1994 | QCD | Quit Claim Deed | TEEL, EDWIN A | STEINER, HAROLD L | | | $0.00 | 45116 | 94026076 |
| 4 | 01/01/1900 | OTHER | Other - Misc. Documents | Unknown | TEEL, EDWIN A | | | $0.00 | 42120 | 94012220 |
Payout Agreement
| No payout information available.. |