Property
Account |
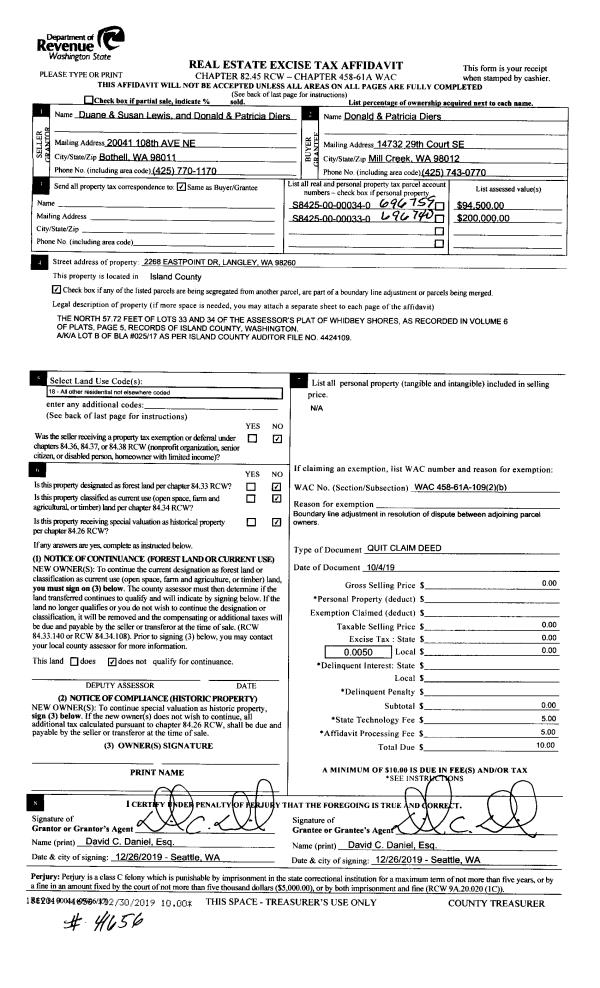
| Property ID: | 696740 | Abbreviated Legal Description: | Whidbey Shores,s Lot 33,s Blk 0;s LOT B BLA 25-17 AF#4424109s |
| Geographic ID: | S8425-00-00033-0 | Agent Code: | |
| Type: | Real | | |
| Tax Area: | 710 - APPRAISER-S Whid Schl Dist, outside Langley, improved & 1 acre or less | Land Use Code | 11 |
| Open Space: | N | DFL | N |
| Historic Property: | N | Remodel Property: | N |
| Multi-Family Redevelopment: | N | | |
| Township: | | Section: | |
| Range: | |
Location |
| Address: | 2264 EASTPOINT DR LANGLEY, WA 98260 | Mapsco: | |
| Neighborhood: | Cycle 3 | Map ID: | 372 |
| Neighborhood CD: | 3 |
Owner |
| Name: | DIERS, DONALD | Owner ID: | 293196 |
| Mailing Address: | PATRICIA DIERS 2281 EASTPOINT DR LANGLEY, WA 98260 | % Ownership: | 100.0000000000% |
| | | Exemptions: | |
Taxes and Assessment Details
Values
| (+) Improvement Homesite Value: | + | $0 | |
| (+) Improvement Non-Homesite Value: | + | $40,000 | |
| (+) Land Homesite Value: | + | $0 | |
| (+) Land Non-Homesite Value: | + | $17,000 | |
| (+) Curr Use (HS): | + | $0 | $0 |
| (+) Curr Use (NHS): | + | $0 | $0 |
| | | -------------------------- | |
| (=) Market Value: | = | $57,000 | |
| (–) Productivity Loss: | – | $0 | |
| | | -------------------------- | |
| (=) Subtotal: | = | $57,000 | |
| (+) Senior Appraised Value: | + | $0 | |
| (+) Non-Senior Appraised Value: | + | $57,000 | |
| | | -------------------------- | |
| (=) Total Appraised Value: | = | $57,000 | |
| (–) Senior Exemption Loss: | – | $0 | |
| (–) Exemption Loss: | – | $0 | |
| | | -------------------------- | |
| (=) Taxable Value: | = | $57,000 | |
Taxing Jurisdiction
| Owner: | DIERS, DONALD | | |
| % Ownership: | 100.0000000000% | | |
| Total Value: | $57,000 | | |
| Tax Area: | 710 - APPRAISER-S Whid Schl Dist, outside Langley, improved & 1 acre or less |
| CF | Conservation Futures | 0.0313996660 | $57,000 | $57,000 | $1.79 | | |
| FIRE3 | Fire & Rescue Dist #3 S Whidbey GEN | 1.2130821753 | $57,000 | $57,000 | $69.15 | | |
| HOBOND | Hospital BOND | 0.1893405597 | $57,000 | $57,000 | $10.79 | | |
| HOGEN | Hospital GEN | 0.3848777722 | $57,000 | $57,000 | $21.94 | | |
| CE | County Current Expense | 0.3674210519 | $57,000 | $57,000 | $20.94 | | |
| CR | County Roads | 0.4614296361 | $57,000 | $57,000 | $26.30 | | |
| ISLANDEMS | Hospital GEN (EMS) | 0.4952018576 | $57,000 | $57,000 | $28.23 | | |
| LIB | Library Sno-Isle GEN | 0.3039084203 | $57,000 | $57,000 | $17.32 | | |
| PORTWHID | Port of S Whidbey GEN | 0.1086004714 | $57,000 | $57,000 | $6.19 | | |
| SCH206BOND | School 206 BOND | 0.5960237832 | $57,000 | $57,000 | $33.97 | | |
| SCH206CAP | School 206 CP | 0.3066144020 | $57,000 | $57,000 | $17.48 | | |
| SCH206MO | School 206 Enrichment | 0.4808755445 | $57,000 | $57,000 | $27.41 | | |
| ST | State School | 1.4761226122 | $57,000 | $57,000 | $84.14 | | |
| ST2 | State School Part 2 | 0.7953803475 | $57,000 | $57,000 | $45.34 | | |
| SWHIDPRBD | P & R S Whidbey BOND | 0.0144185398 | $57,000 | $57,000 | $0.82 | | |
| SWHIDPRBD3 | P & R S Whidbey BOND3 | 0.1483535547 | $57,000 | $57,000 | $8.46 | | |
| SWHIDPRMT | P & R S Whidbey GEN | 0.4600000000 | $57,000 | $57,000 | $26.22 | | |
| | Total Tax Rate: | 7.8330503944 | | | | | |
| | | | | Taxes w/Current Exemptions: | $446.49 | | |
| | | | | Taxes w/o Exemptions: | $446.49 | | |
Improvement / Building
| Improvement #1: | RESIDENTIAL | State Code: | Y | 0.0 sqft | Value: | $40,000 |
Sketch
Property Image
Land
| 1 | 13 | SQ (06001-08000) | 0.1600 | 6969.60 | 0.00 | 0.00 | 1.00 | $17,000 | $0 |
Roll Value History
| 2026 | N/A | N/A | N/A | N/A | N/A |
| 2025 | $40,000 | $17,000 | $0 | $57,000 | $57,000 |
| 2024 | $40,000 | $17,000 | $0 | $57,000 | $57,000 |
| 2023 | $40,000 | $9,000 | $0 | $49,000 | $49,000 |
| 2022 | $40,000 | $9,000 | $0 | $49,000 | $49,000 |
| 2021 | $40,000 | $7,000 | $0 | $47,000 | $47,000 |
| 2020 | $40,000 | $7,000 | $0 | $47,000 | $47,000 |
| 2019 | $19,500 | $7,000 | $0 | $26,500 | $26,500 |
| 2018 | $0 | $7,000 | $0 | $7,000 | $7,000 |
| 2017 | $0 | $5,000 | $0 | $5,000 | $5,000 |
| 2016 | $0 | $5,000 | $0 | $5,000 | $5,000 |
| 2015 | $0 | $5,000 | $0 | $5,000 | $5,000 |
| 2014 | $0 | $5,000 | $0 | $5,000 | $5,000 |
| 2013 | $0 | $5,000 | $0 | $5,000 | $5,000 |
| 2012 | $0 | $42,840 | $0 | $42,840 | $42,840 |
| 2011 | $0 | $50,400 | $0 | $50,400 | $50,400 |
| 2010 | $1,394 | $56,000 | $0 | $57,394 | $57,394 |
| 2009 | $1,394 | $14,000 | $0 | $15,394 | $15,394 |
Deed and Sales History
| 1 | 10/04/2019 | QCD | Quit Claim Deed | DIERS, DONALD G | DIERS, DONALD | | | $0.00 | 41656 | 4478419 |
| 2 | 08/15/2008 | PRD | Personal Representatives Deed | VAN VALIN PR, ELIZABETH | DIERS, DONALD G | | | $0.00 | 90186 | 4243567 |
| 3 | 03/31/2008 | QCD | Quit Claim Deed | DIERS, GLENN A | VAN VALIN PR, ELIZABETH | | | $0.00 | 80936 | 4226541 |
| 4 | 08/01/1994 | OTHER | Other - Misc. Documents | DIERS, GLENN A | DIERS, GLENN A | | | $0.00 | 66019 | 0 |
| 5 | 02/01/1992 | QCD | Quit Claim Deed | Unknown | DIERS, GLENN A | | | $0.00 | 21052 | 92005234 |
Payout Agreement
| No payout information available.. |