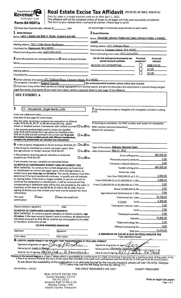
Property
Account |
| Property ID: | 697366 | Abbreviated Legal Description: | LOT 4 SP 57-93.23226.239-2070 V2 SP P473-4 AF#94018661 |
| Geographic ID: | R23226-223-2370 | Agent Code: | |
| Type: | Real | | |
| Tax Area: | 512 - APPRAISER-Stan/Cam Schl Dist, improved, greater than 1 acre | Land Use Code | 11 |
| Open Space: | N | DFL | N |
| Historic Property: | N | Remodel Property: | N |
| Multi-Family Redevelopment: | N | | |
| Township: | 32 | Section: | 26 |
| Range: | R2 |
Location |
| Address: | 671 TRILLIUM PLACE CAMANO ISLAND, WA 98282 | Mapsco: | |
| Neighborhood: | North Camano | Map ID: | 566 |
| Neighborhood CD: | 06-C |
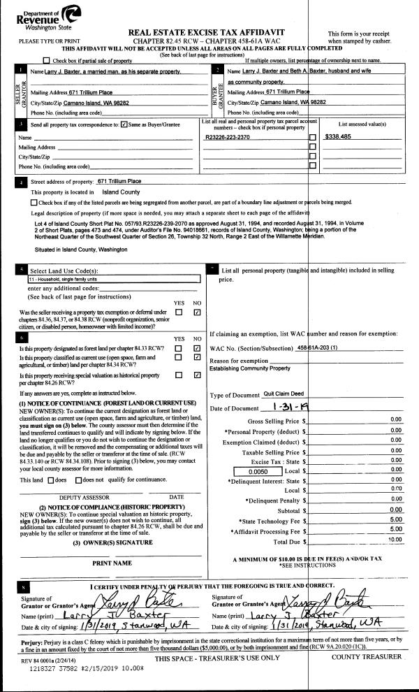
Owner |
| Name: | JOHNSON-HODGE, ALEXANDER | Owner ID: | 304526 |
| Mailing Address: | CASSY JOHNSON-HODGE 671 TRILLIUM PLACE CAMANO ISLAND, WA 98282 | % Ownership: | 100.0000000000% |
| | | Exemptions: | |
Taxes and Assessment Details
Values
| (+) Improvement Homesite Value: | + | $0 | |
| (+) Improvement Non-Homesite Value: | + | $370,056 | |
| (+) Land Homesite Value: | + | $0 | |
| (+) Land Non-Homesite Value: | + | $360,000 | |
| (+) Curr Use (HS): | + | $0 | $0 |
| (+) Curr Use (NHS): | + | $0 | $0 |
| | | -------------------------- | |
| (=) Market Value: | = | $730,056 | |
| (–) Productivity Loss: | – | $0 | |
| | | -------------------------- | |
| (=) Subtotal: | = | $730,056 | |
| (+) Senior Appraised Value: | + | $0 | |
| (+) Non-Senior Appraised Value: | + | $730,056 | |
| | | -------------------------- | |
| (=) Total Appraised Value: | = | $730,056 | |
| (–) Senior Exemption Loss: | – | $0 | |
| (–) Exemption Loss: | – | $0 | |
| | | -------------------------- | |
| (=) Taxable Value: | = | $730,056 | |
Taxing Jurisdiction
| Owner: | JOHNSON-HODGE, ALEXANDER | | |
| % Ownership: | 100.0000000000% | | |
| Total Value: | $730,056 | | |
| Tax Area: | 512 - APPRAISER-Stan/Cam Schl Dist, improved, greater than 1 acre |
| CF | Conservation Futures | 0.0313996660 | $730,056 | $730,056 | $22.92 | | |
| EMS1 | Fire & Rescue Dist #1 Camano GEN (EMS) | 0.4998471806 | $730,056 | $730,056 | $364.92 | | |
| FIRE1 | Fire & Rescue Dist #1 Camano GEN | 1.2496603404 | $730,056 | $730,056 | $912.32 | | |
| FIRE1BOND | Fire & Rescue Dist #1 Camano BOND | 0.1630371212 | $730,056 | $730,056 | $119.03 | | |
| CE | County Current Expense | 0.3674210519 | $730,056 | $730,056 | $268.24 | | |
| CR | County Roads | 0.4614296361 | $730,056 | $730,056 | $336.87 | | |
| LIB | Library Sno-Isle GEN | 0.3039084203 | $730,056 | $730,056 | $221.87 | | |
| SCH205_401 | School 205-401 Enrichment | 1.3697998934 | $730,056 | $730,056 | $1,000.03 | | |
| SCH205BOND | School 205-401 BOND | 0.9354199323 | $730,056 | $730,056 | $682.91 | | |
| ST | State School | 1.4761226122 | $730,056 | $730,056 | $1,077.65 | | |
| ST2 | State School Part 2 | 0.7953803475 | $730,056 | $730,056 | $580.67 | | |
| | Total Tax Rate: | 7.6534262019 | | | | | |
| | | | | Taxes w/Current Exemptions: | $5,587.43 | | |
| | | | | Taxes w/o Exemptions: | $5,587.43 | | |
Improvement / Building
| Improvement #1: | RESIDENTIAL | State Code: | Y | 1791.0 sqft | Value: | $370,056 |
| Bathrooms: | 2 | Bedrooms: | 3 | | Ceiling: | DRYWALL PAINTED | Cooling: | HEAT PUMP/CONV/V | | Exterior Wall/Cover: | CEMENT FIBER | Floor Covering: | HARDWOOD/CARP 20-80 | | Floor Structure: | WOOD W/SUBFLOOR | Foundation: | CONCRETE | | Interior Finish: | DRYWALL PAINT | Plumbing Fixture Cnt: | 9 | | Roof Slope: | 6" IN 12" | Roof Structure/Cover: | CJ ASPHALT |
|
| | Type | Description | Class CD | Sub Class CD | Year Built | Area |
| | BAS | BASE/MAIN FLOOR | 3 | 0 | 1997 | 1791.0 |
| | OP4 | OPEN PORCH W/CEILING-ROOF | 3 | 0 | 1997 | 116.4 |
| | DGR | DETACHED GARAGE | 3 | 0 | 1997 | 529.3 |
| | UTY | STORAGE/UTILITY | 3 | 0 | 1997 | 600.0 |
| | OWC | OPEN WOOD PORCH W/STEPS/ROOF/C | 3 | 0 | 1997 | 63.6 |
| | ENP | ENCLOSED PORCH | 3 | 0 | 1997 | 144.0 |
| | CPD | OPEN CARPORT DIRT FLOOR | 3 | 0 | 1997 | 270.0 |
| | OP1 | OPEN PORCH SLAB | 3 | 0 | 1997 | 566.4 |
| | ATU | ATTIC UNFINISHED | 3 | 0 | 1997 | 354.0 |
Sketch
Property Image
Land
| 1 | 32 | AC (03.01-09.99) | 5.0000 | 0.00 | 0.00 | 0.00 | 1.00 | $360,000 | $0 |
Roll Value History
| 2026 | N/A | N/A | N/A | N/A | N/A |
| 2025 | $370,056 | $360,000 | $0 | $730,056 | $730,056 |
| 2024 | $374,398 | $340,000 | $0 | $714,398 | $714,398 |
| 2023 | $378,738 | $320,000 | $0 | $698,738 | $698,738 |
| 2022 | $291,342 | $300,000 | $0 | $591,342 | $591,342 |
| 2021 | $256,510 | $230,000 | $0 | $486,510 | $486,510 |
| 2020 | $250,311 | $190,000 | $0 | $440,311 | $440,311 |
| 2019 | $186,801 | $220,000 | $0 | $406,801 | $406,801 |
| 2018 | $187,362 | $175,000 | $0 | $362,362 | $362,362 |
| 2017 | $188,485 | $150,000 | $0 | $338,485 | $338,485 |
| 2016 | $189,815 | $150,000 | $0 | $339,815 | $339,815 |
| 2015 | $191,955 | $112,000 | $0 | $303,955 | $303,955 |
| 2014 | $194,096 | $112,000 | $0 | $306,096 | $306,096 |
| 2013 | $196,237 | $112,000 | $0 | $308,237 | $308,237 |
| 2012 | $198,379 | $112,000 | $0 | $310,379 | $310,379 |
| 2011 | $200,518 | $140,000 | $0 | $340,518 | $340,518 |
| 2010 | $208,627 | $140,000 | $0 | $348,627 | $348,627 |
| 2009 | $217,673 | $167,500 | $0 | $385,173 | $385,173 |
| 2008 | $220,345 | $217,500 | $0 | $437,845 | $437,845 |
| 2007 | $223,555 | $217,500 | $0 | $441,055 | $441,055 |
Deed and Sales History
| 1 | 05/31/2022 | WD | Warranty Deed | BAXTER, LARRY J | JOHNSON-HODGE, ALEXANDER | | | $860,000.00 | 53310 | 4546092 |
| 2 | 01/31/2019 | QCD | Quit Claim Deed | BAXTER, LARRY J | BAXTER, LARRY J | | | $0.00 | 37582 | 4459240 |
| 3 | 10/16/2003 | DECREE | Divorce Decree/Legal Separation | BAXTER, LARRY J | BAXTER, LARRY J | | | $0.00 | 35053 | 4082139 |
| 4 | 05/01/2001 | WD | Warranty Deed | TRAVIS, MAURICE A | BAXTER, LARRY J | | | $242,000.00 | 11538 | 20031311 |
| 5 | 07/01/1995 | WD | Warranty Deed | COSTER, RONALD N | TRAVIS, MAURICE A | | | $59,950.00 | 52545 | 95011758 |
| 6 | 01/01/1900 | OTHER | Other - Misc. Documents | Unknown | COSTER, RONALD N | | | $0.00 | 34354 | 93022681 |
Payout Agreement
| No payout information available.. |