Property
Account |
| Property ID: | 69758 | Abbreviated Legal Description: | 44 - N/2 SE NE SW LY W OF HONEYMOON BAY RD TGW & SUBJ TO EZ (LOT G V5 SUR P32 AF#363633) |
| Geographic ID: | R23034-182-2310 | Agent Code: | |
| Type: | Real | | |
| Tax Area: | 312 - APPRAISER-Cpvl Schl Dist, outside Cpvl, improved, greater than 1 acre | Land Use Code | 11 |
| Open Space: | N | DFL | N |
| Historic Property: | N | Remodel Property: | N |
| Multi-Family Redevelopment: | N | | |
| Township: | 30 | Section: | 34 |
| Range: | R2 |
Location |
| Address: | 1370 SEVEN EAGLES WAY GREENBANK, WA 98253 | Mapsco: | |
| Neighborhood: | Cycle 3 | Map ID: | 439 |
| Neighborhood CD: | 3 |
Owner |
| Name: | BATY TTEE, ERIC NATHAN | Owner ID: | 315550 |
| Mailing Address: | PO BOX 376 BODEGA, CA 94922 | % Ownership: | 100.0000000000% |
| | | Exemptions: | |
Taxes and Assessment Details
Values
| (+) Improvement Homesite Value: | + | $0 | |
| (+) Improvement Non-Homesite Value: | + | $511,400 | |
| (+) Land Homesite Value: | + | $0 | |
| (+) Land Non-Homesite Value: | + | $410,000 | |
| (+) Curr Use (HS): | + | $0 | $0 |
| (+) Curr Use (NHS): | + | $0 | $0 |
| | | -------------------------- | |
| (=) Market Value: | = | $921,400 | |
| (–) Productivity Loss: | – | $0 | |
| | | -------------------------- | |
| (=) Subtotal: | = | $921,400 | |
| (+) Senior Appraised Value: | + | $0 | |
| (+) Non-Senior Appraised Value: | + | $921,400 | |
| | | -------------------------- | |
| (=) Total Appraised Value: | = | $921,400 | |
| (–) Senior Exemption Loss: | – | $0 | |
| (–) Exemption Loss: | – | $0 | |
| | | -------------------------- | |
| (=) Taxable Value: | = | $921,400 | |
Taxing Jurisdiction
| Owner: | BATY TTEE, ERIC NATHAN | | |
| % Ownership: | 100.0000000000% | | |
| Total Value: | $921,400 | | |
| Tax Area: | 312 - APPRAISER-Cpvl Schl Dist, outside Cpvl, improved, greater than 1 acre |
| CF | Conservation Futures | 0.0313996660 | $921,400 | $921,400 | $28.93 | | |
| CEM2 | Cemetery #2 | 0.0092609791 | $921,400 | $921,400 | $8.53 | | |
| FIRE5 | Fire & Rescue Dist #5 C Whidbey GEN | 1.1892169230 | $921,400 | $921,400 | $1,095.74 | | |
| FIRE5BOND | Fire & Rescue Dist #5 C Whidbey BOND | 0.1394359503 | $921,400 | $921,400 | $128.48 | | |
| HOBOND | Hospital BOND | 0.1893405597 | $921,400 | $921,400 | $174.46 | | |
| HOGEN | Hospital GEN | 0.3848777722 | $921,400 | $921,400 | $354.63 | | |
| CE | County Current Expense | 0.3674210519 | $921,400 | $921,400 | $338.54 | | |
| CR | County Roads | 0.4614296361 | $921,400 | $921,400 | $425.16 | | |
| ISLANDEMS | Hospital GEN (EMS) | 0.4952018576 | $921,400 | $921,400 | $456.28 | | |
| LIB | Library Sno-Isle GEN | 0.3039084203 | $921,400 | $921,400 | $280.02 | | |
| LIBCAP | Library Sno-Isle BOND (Cap Fac Imp Area) | 0.0528562629 | $921,400 | $921,400 | $48.70 | | |
| POCOUP | Port of Coupeville GEN | 0.1065226063 | $921,400 | $921,400 | $98.15 | | |
| POCOUPIDD | Port of Coupeville IDD | 0.3353038577 | $921,400 | $921,400 | $308.95 | | |
| COUPSDTECH | School 204 CP (TECH) | 0.1215123397 | $921,400 | $921,400 | $111.96 | | |
| SCH204MO | School 204 Enrichment | 0.6416662518 | $921,400 | $921,400 | $591.23 | | |
| ST | State School | 1.4761226122 | $921,400 | $921,400 | $1,360.10 | | |
| ST2 | State School Part 2 | 0.7953803475 | $921,400 | $921,400 | $732.86 | | |
| | Total Tax Rate: | 7.1008570943 | | | | | |
| | | | | Taxes w/Current Exemptions: | $6,542.72 | | |
| | | | | Taxes w/o Exemptions: | $6,542.72 | | |
Improvement / Building
| Improvement #1: | RESIDENTIAL | State Code: | Y | 2559.5 sqft | Value: | $511,400 |
| Bathrooms: | 3 | Bedrooms: | 3 | | Ceiling: | DRYWALL PAINTED | Exterior Wall/Cover: | SHINGLE | | Floor Covering: | HARDWOOD/CARP 20-80 | Floor Structure: | WOOD W/SUBFLOOR | | Foundation: | CONCRETE | Heating: | FHA GAS | | Interior Finish: | DRYWALL PAINT | Plumbing Fixture Cnt: | 16 | | Roof Slope: | 6" IN 12" | Roof Structure/Cover: | CJ ASPHALT |
|
| | Type | Description | Class CD | Sub Class CD | Year Built | Area |
| | BAS | BASE/MAIN FLOOR | 4 | 0 | 2000 | 1594.9 |
| | AGR | ATTACHED GARAGE | 4 | 0 | 2000 | 967.7 |
| | UPS | UPPER STORY | 4 | 0 | 2000 | 964.6 |
| | OWP | OPEN WOOD PORCH W/STEPS | 4 | 0 | 2000 | 1088.2 |
| | OWP | OPEN WOOD PORCH W/STEPS | 4 | 0 | 2000 | 294.2 |
Sketch
Property Image
Land
| 1 | 32 | AC (03.01-09.99) | 4.6600 | 0.00 | 0.00 | 0.00 | 1.00 | $410,000 | $0 |
Roll Value History
| 2026 | N/A | N/A | N/A | N/A | N/A |
| 2025 | $511,400 | $410,000 | $0 | $921,400 | $921,400 |
| 2024 | $517,543 | $390,000 | $0 | $907,543 | $907,543 |
| 2023 | $523,686 | $350,000 | $0 | $873,686 | $873,686 |
| 2022 | $479,757 | $350,000 | $0 | $829,757 | $829,757 |
| 2021 | $422,003 | $280,000 | $0 | $702,003 | $702,003 |
| 2020 | $410,656 | $240,000 | $0 | $650,656 | $650,656 |
| 2019 | $300,710 | $300,000 | $0 | $600,710 | $600,710 |
| 2018 | $301,572 | $200,000 | $0 | $501,572 | $501,572 |
| 2017 | $303,156 | $200,000 | $0 | $503,156 | $503,156 |
| 2016 | $306,601 | $200,000 | $0 | $506,601 | $506,601 |
| 2015 | $310,046 | $155,178 | $0 | $465,224 | $465,224 |
| 2014 | $313,490 | $155,178 | $0 | $468,668 | $468,668 |
| 2013 | $329,205 | $155,178 | $0 | $484,383 | $484,383 |
| 2012 | $332,902 | $155,178 | $0 | $488,080 | $488,080 |
| 2011 | $336,598 | $172,420 | $0 | $509,018 | $509,018 |
| 2010 | $352,380 | $172,420 | $0 | $524,800 | $524,800 |
| 2009 | $363,526 | $205,040 | $0 | $568,566 | $568,566 |
| 2008 | $367,731 | $209,700 | $0 | $577,431 | $577,431 |
| 2007 | $358,108 | $209,700 | $0 | $567,808 | $567,808 |
Deed and Sales History
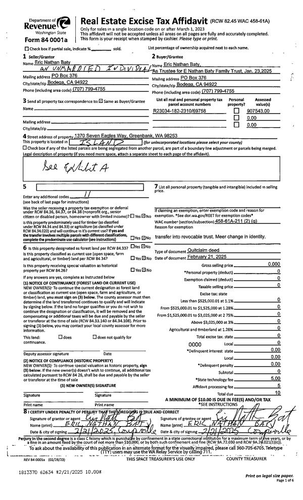
| 1 | 02/21/2025 | QCD | Quit Claim Deed | BATY, ERIC NATHAN | BATY TTEE, ERIC NATHAN | | | $0.00 | 62634 | 4582528 |
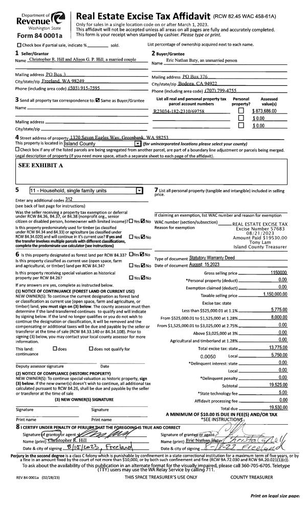
| 2 | 08/15/2023 | WD | Warranty Deed | HILL, CHRISTOPHER R | BATY, ERIC NATHAN | | | $1,150,000.00 | 57683 | 4563733 |
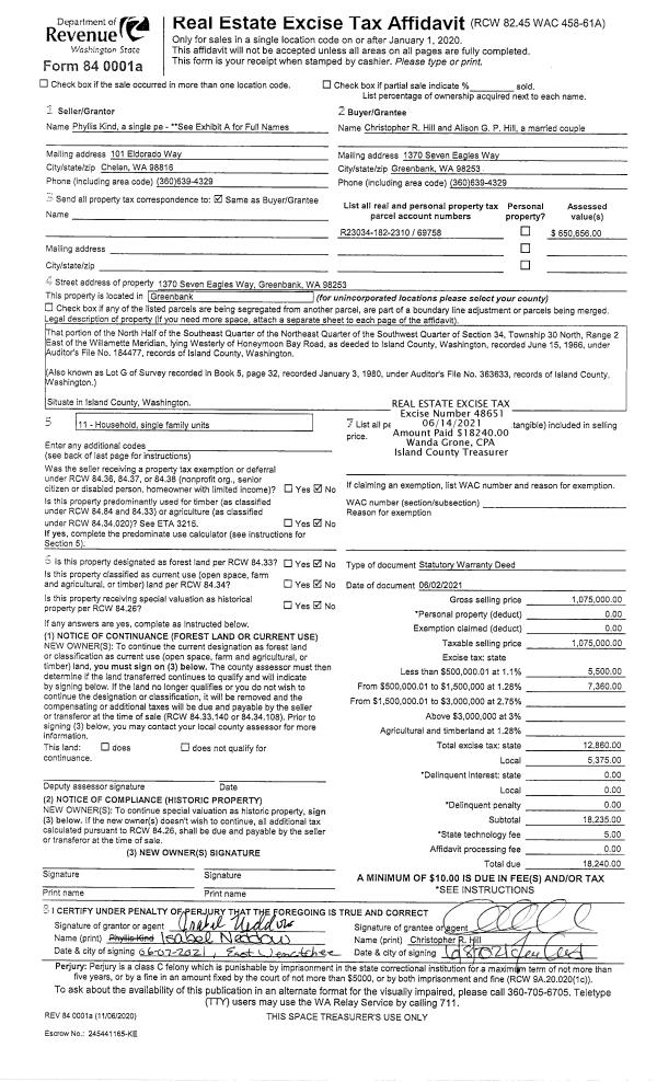
| 3 | 06/02/2021 | WD | Warranty Deed | KIND, PHYLLIS | HILL, CHRISTOPHER R | | | $1,075,000.00 | 48651 | 4521750 |
| 4 | 08/01/1997 | WD | Warranty Deed | EWING, FLORENCE A | KIND, PHYLLIS & | | | $79,000.00 | 72813 | 97013356 |
| 5 | 10/01/1993 | QCD | Quit Claim Deed | EWING, ROBERT L | EWING, FLORENCE A | | | $0.00 | 34174 | 93021749 |
| 6 | 05/01/1990 | WD | Warranty Deed | WHEELER, WINNIE E | EWING, ROBERT L | | | $57,500.00 | 2650 | 90008620 |
| 7 | 02/01/1988 | WD | Warranty Deed | WHEELER, WINNIE E | WHEELER, WINNIE E | | | $36,000.00 | 80594 | 88002405 |
| 8 | 02/01/1988 | WD | Warranty Deed | GLEASON, RICHARD P | WHEELER, WINNIE E | | | $0.00 | 80697 | 88002837 |
| 9 | 01/01/1900 | OTHER | Other - Misc. Documents | Unknown | GLEASON, RICHARD P | | | $0.00 | 0 | 0 |
Payout Agreement
| No payout information available.. |