Property
Account |
| Property ID: | 697650 | Abbreviated Legal Description: | IN GL 2: BG CON MON CTRLN HASTIE LK RD & WEST BCH RD S33*W32.27' N89*W35.90'SWLY ALG WEST BCH RD S33*W546.94 S32*W46.77'TPB S32*W90' N50*W TO HITDLN NELY ALG SD HITDLN TP N50*W FR TPB S50*E TPB EX EZ TGW: BG CON MON CTRLN HASTIE LK RD & WEST BCH RD S33*W |
| Geographic ID: | R03213-346-4600 | Agent Code: | |
| Type: | Real | | |
| Tax Area: | 110 - APPRAISER-OH Schl Dist, outside OH, improved & 1 acre or less | Land Use Code | 11 |
| Open Space: | N | DFL | N |
| Historic Property: | N | Remodel Property: | N |
| Multi-Family Redevelopment: | N | | |
| Township: | 32 | Section: | 13 |
| Range: | R0 |
Location |
| Address: | 1455 WEST BEACH RD OAK HARBOR, WA 98277 | Mapsco: | |
| Neighborhood: | Area 2 Waterfront Westside Residential | Map ID: | 2 |
| Neighborhood CD: | 2WFW01R |
Owner |
| Name: | CHASE TTEE, MICHAEL W | Owner ID: | 301630 |
| Mailing Address: | M BARRETT-CHASE TTEE 16930 SE 47TH WAY BELLEVUE, WA 98006 | % Ownership: | 100.0000000000% |
| | | Exemptions: | |
Taxes and Assessment Details
Values
| (+) Improvement Homesite Value: | + | $0 | |
| (+) Improvement Non-Homesite Value: | + | $548,293 | |
| (+) Land Homesite Value: | + | $0 | |
| (+) Land Non-Homesite Value: | + | $650,000 | |
| (+) Curr Use (HS): | + | $0 | $0 |
| (+) Curr Use (NHS): | + | $0 | $0 |
| | | -------------------------- | |
| (=) Market Value: | = | $1,198,293 | |
| (–) Productivity Loss: | – | $0 | |
| | | -------------------------- | |
| (=) Subtotal: | = | $1,198,293 | |
| (+) Senior Appraised Value: | + | $0 | |
| (+) Non-Senior Appraised Value: | + | $1,198,293 | |
| | | -------------------------- | |
| (=) Total Appraised Value: | = | $1,198,293 | |
| (–) Senior Exemption Loss: | – | $0 | |
| (–) Exemption Loss: | – | $0 | |
| | | -------------------------- | |
| (=) Taxable Value: | = | $1,198,293 | |
Taxing Jurisdiction
| Owner: | CHASE TTEE, MICHAEL W | | |
| % Ownership: | 100.0000000000% | | |
| Total Value: | $1,198,293 | | |
| Tax Area: | 110 - APPRAISER-OH Schl Dist, outside OH, improved & 1 acre or less |
| CF | Conservation Futures | 0.0313996660 | $1,198,293 | $1,198,293 | $37.63 | | |
| CEM1 | Cemetery #1 | 0.0040018856 | $1,198,293 | $1,198,293 | $4.80 | | |
| FIRE2 | Fire & Rescue Dist #2 N Whidbey GEN | 0.5381486274 | $1,198,293 | $1,198,293 | $644.86 | | |
| HOBOND | Hospital BOND | 0.1893405597 | $1,198,293 | $1,198,293 | $226.89 | | |
| HOGEN | Hospital GEN | 0.3848777722 | $1,198,293 | $1,198,293 | $461.20 | | |
| CE | County Current Expense | 0.3674210519 | $1,198,293 | $1,198,293 | $440.28 | | |
| CR | County Roads | 0.4614296361 | $1,198,293 | $1,198,293 | $552.93 | | |
| ISLANDEMS | Hospital GEN (EMS) | 0.4952018576 | $1,198,293 | $1,198,293 | $593.40 | | |
| LIB | Library Sno-Isle GEN | 0.3039084203 | $1,198,293 | $1,198,293 | $364.17 | | |
| NWHIDPRMT | P & R N Whidbey GEN | 0.1990272349 | $1,198,293 | $1,198,293 | $238.49 | | |
| SCH201MO | School 201 Enrichment | 2.3851112745 | $1,198,293 | $1,198,293 | $2,858.06 | | |
| ST | State School | 1.4761226122 | $1,198,293 | $1,198,293 | $1,768.83 | | |
| ST2 | State School Part 2 | 0.7953803475 | $1,198,293 | $1,198,293 | $953.10 | | |
| | Total Tax Rate: | 7.6313709459 | | | | | |
| | | | | Taxes w/Current Exemptions: | $9,144.64 | | |
| | | | | Taxes w/o Exemptions: | $9,144.64 | | |
Improvement / Building
| Improvement #1: | RESIDENTIAL | State Code: | Y | 2022.5 sqft | Value: | $548,293 |
| Bathrooms: | 2 | Bedrooms: | 3 | | Ceiling: | DRYWALL PAINTED | Exterior Wall/Cover: | PLY/HARDBOARD T-111 | | Floor Covering: | HARDWOOD/CARP 20-80 | Floor Structure: | WOOD W/SUBFLOOR | | Foundation: | CONCRETE | Heating: | FHA GAS | | Interior Finish: | DRYWALL PAINT | Plumbing Fixture Cnt: | 11 | | Roof Slope: | 12" IN 12" | Roof Structure/Cover: | CJ ASPHALT |
|
| | Type | Description | Class CD | Sub Class CD | Year Built | Area |
| | BAS | BASE/MAIN FLOOR | 4 | 0 | 1995 | 1440.7 |
| | OP4 | OPEN PORCH W/CEILING-ROOF | 4 | 0 | 1995 | 31.9 |
| | AGR | ATTACHED GARAGE | 4 | 0 | 1995 | 565.2 |
| | UPS | UPPER STORY | 4 | 0 | 1995 | 581.8 |
| | ATF | ATTIC FINISHED | 4 | 0 | 1995 | 445.8 |
| | OWP | OPEN WOOD PORCH W/STEPS | 4 | 0 | 1995 | 1039.8 |
| | OWP | OPEN WOOD PORCH W/STEPS | 4 | 0 | 1995 | 236.1 |
| | AGR | ATTACHED GARAGE | 4 | 0 | 1995 | 580.1 |
Sketch
Property Image
Land
| 1 | HB | HIGH BLUFF | 0.9600 | 41817.60 | 180.00 | 0.00 | 1.00 | $650,000 | $0 |
Roll Value History
| 2026 | N/A | N/A | N/A | N/A | N/A |
| 2025 | $548,293 | $650,000 | $0 | $1,198,293 | $1,198,293 |
| 2024 | $455,254 | $650,000 | $0 | $1,105,254 | $1,105,254 |
| 2023 | $455,878 | $500,000 | $0 | $955,878 | $955,878 |
| 2022 | $417,579 | $450,000 | $0 | $867,579 | $867,579 |
| 2021 | $368,111 | $400,000 | $0 | $768,111 | $768,111 |
| 2020 | $322,465 | $440,000 | $0 | $762,465 | $762,465 |
| 2019 | $238,545 | $450,000 | $0 | $688,545 | $688,545 |
| 2018 | $221,407 | $350,000 | $0 | $571,407 | $571,407 |
| 2017 | $220,936 | $350,000 | $0 | $570,936 | $570,936 |
| 2016 | $223,699 | $350,000 | $0 | $573,699 | $573,699 |
| 2015 | $226,460 | $350,000 | $0 | $576,460 | $576,460 |
| 2014 | $229,222 | $350,000 | $0 | $579,222 | $579,222 |
| 2013 | $231,983 | $362,776 | $0 | $594,759 | $594,759 |
| 2012 | $234,081 | $362,776 | $0 | $596,857 | $596,857 |
| 2011 | $236,935 | $362,776 | $0 | $599,711 | $599,711 |
| 2010 | $246,702 | $362,776 | $0 | $609,478 | $609,478 |
| 2009 | $257,386 | $514,186 | $0 | $771,572 | $771,572 |
| 2008 | $260,585 | $514,186 | $0 | $774,771 | $774,771 |
| 2007 | $263,808 | $514,186 | $0 | $777,994 | $777,994 |
Deed and Sales History
| 1 | 10/13/2021 | WD | Warranty Deed | UMEDA, TRACY L | CHASE TTEE, MICHAEL W | | | $1,307,600.00 | 50533 | 4531703 |
|   | |
| 2 | 02/15/2018 | QCD | Quit Claim Deed | UMEDA, TRACY L | UMEDA, TRACY L | | | $0.00 | 33123 | 4440003 |
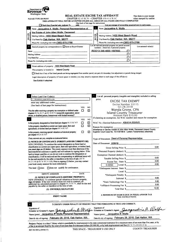
| 3 | 02/20/2018 | WD | Warranty Deed | WOLFE, JACQUELINE A | UMEDA, TRACY L | | | $600,000.00 | 33117 | 4440002 |
| 4 | 02/28/2018 | WD | Warranty Deed | WOLFE, JOHN A | WOLFE, JACQUELINE A | | | $0.00 | 33115 | 4440001 |
| 5 | 09/01/1994 | OTHER | Other - Misc. Documents | WOLFE, JOHN A | WOLFE, JOHN A | | | $0.00 | 66056 | 94019832 |
| 6 | 01/01/1900 | OTHER | Other - Misc. Documents | Unknown | WOLFE, JOHN A | | | $0.00 | 29 | 363620 |
Payout Agreement
| No payout information available.. |