Property
Account |
| Property ID: | 698025 | Abbreviated Legal Description: | W/2 N/2 SW NW EX RD TGW & SUB EZ FR 362-0650 & 384- 0210 |
| Geographic ID: | R13301-363-0330 | Agent Code: | |
| Type: | Real | | |
| Tax Area: | 119 - APPRAISER-OH Schl Dist, outside OH, vacant & 50 acres or less | Land Use Code | 91 |
| Open Space: | N | DFL | N |
| Historic Property: | N | Remodel Property: | N |
| Multi-Family Redevelopment: | N | | |
| Township: | 33 | Section: | 01 |
| Range: | R1 |
Location |
| Address: | | Mapsco: | |
| Neighborhood: | Cycle 6 | Map ID: | 191 |
| Neighborhood CD: | 6 |
Owner |
| Name: | PINGUIN EVENTS, LLC | Owner ID: | 309507 |
| Mailing Address: | 3853 31ST AVE WEST SEATTLE, WA 98199 | % Ownership: | 100.0000000000% |
| | | Exemptions: | |
Taxes and Assessment Details
Values
| (+) Improvement Homesite Value: | + | N/A | |
| (+) Improvement Non-Homesite Value: | + | N/A | |
| (+) Land Homesite Value: | + | N/A | |
| (+) Land Non-Homesite Value: | + | N/A | Ag / Timber Use Value |
| (+) Curr Use (HS): | + | N/A | N/A |
| (+) Curr Use (NHS): | + | N/A | N/A |
| | | -------------------------- | |
| (=) Market Value: | = | N/A | |
| (–) Productivity Loss: | – | N/A | |
| | | -------------------------- | |
| (=) Subtotal: | = | N/A | |
| (+) Senior Appraised Value: | + | N/A | |
| (+) Non-Senior Appraised Value: | + | N/A | |
| | | -------------------------- | |
| (=) Total Appraised Value: | = | N/A | |
| (–) Senior Exemption Loss: | – | N/A | |
| (–) Exemption Loss: | – | N/A | |
| | | -------------------------- | |
| (=) Taxable Value: | = | N/A | |
Taxing Jurisdiction
| Owner: | PINGUIN EVENTS, LLC | | |
| % Ownership: | 100.0000000000% | | |
| Total Value: | N/A | | |
| Tax Area: | 119 - APPRAISER-OH Schl Dist, outside OH, vacant & 50 acres or less |
| CF | Conservation Futures | N/A | N/A | N/A | N/A | | |
| WCD | Whidbey Conservation District | N/A | N/A | N/A | N/A | | |
| CEM1 | Cemetery #1 | N/A | N/A | N/A | N/A | | |
| HOBOND | Hospital BOND | N/A | N/A | N/A | N/A | | |
| HOGEN | Hospital GEN | N/A | N/A | N/A | N/A | | |
| CE | County Current Expense | N/A | N/A | N/A | N/A | | |
| CR | County Roads | N/A | N/A | N/A | N/A | | |
| ISLANDEMS | Hospital GEN (EMS) | N/A | N/A | N/A | N/A | | |
| LIB | Library Sno-Isle GEN | N/A | N/A | N/A | N/A | | |
| NWHIDPRMT | P & R N Whidbey GEN | N/A | N/A | N/A | N/A | | |
| SCH201MO | School 201 Enrichment | N/A | N/A | N/A | N/A | | |
| ST | State School | N/A | N/A | N/A | N/A | | |
| ST2 | State School Part 2 | N/A | N/A | N/A | N/A | | |
| | Total Tax Rate: | N/A | | | | | |
| | | | | Taxes w/Current Exemptions: | N/A | | |
| | | | | Taxes w/o Exemptions: | N/A | | |
Improvement / Building
Sketch
| No sketches available for this property. |
Property Image
Land
| 1 | 35 | AC (10.00-30.99) | 10.0000 | 435600.00 | 0.00 | 0.00 | 1.00 | N/A | N/A |
Roll Value History
| 2026 | N/A | N/A | N/A | N/A | N/A |
| 2025 | $0 | $240,000 | $0 | $240,000 | $240,000 |
| 2024 | $0 | $220,000 | $0 | $220,000 | $220,000 |
| 2023 | $0 | $220,000 | $0 | $220,000 | $220,000 |
| 2022 | $0 | $220,000 | $0 | $220,000 | $220,000 |
| 2021 | $0 | $160,000 | $0 | $160,000 | $160,000 |
| 2020 | $0 | $160,000 | $0 | $160,000 | $160,000 |
| 2019 | $0 | $160,000 | $0 | $160,000 | $160,000 |
| 2018 | $0 | $5,000 | $0 | $5,000 | $5,000 |
| 2017 | $0 | $5,000 | $0 | $5,000 | $5,000 |
| 2016 | $0 | $5,000 | $0 | $5,000 | $5,000 |
| 2015 | $0 | $5,000 | $0 | $5,000 | $5,000 |
| 2014 | $0 | $5,000 | $0 | $5,000 | $5,000 |
| 2013 | $0 | $5,000 | $0 | $5,000 | $5,000 |
| 2012 | $0 | $10,200 | $0 | $10,200 | $10,200 |
| 2011 | $0 | $10,200 | $0 | $10,200 | $10,200 |
| 2010 | $0 | $10,200 | $0 | $10,200 | $10,200 |
| 2009 | $0 | $10,200 | $0 | $10,200 | $10,200 |
| 2008 | $0 | $10,200 | $0 | $10,200 | $10,200 |
| 2007 | $0 | $10,200 | $0 | $10,200 | $10,200 |
Deed and Sales History
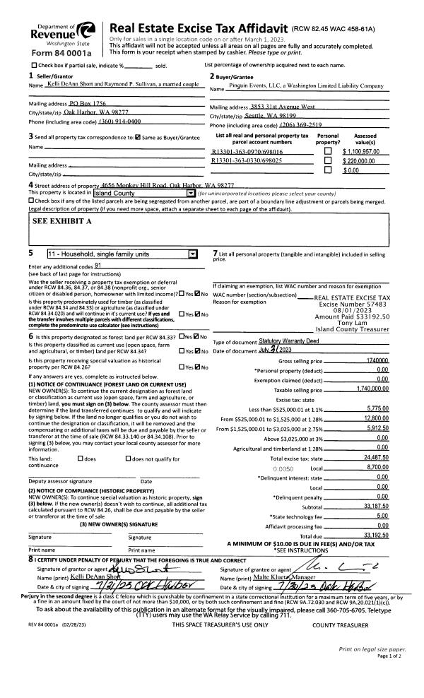
| 1 | 07/31/2023 | WD | Warranty Deed | SHORT, KELLI D | PINGUIN EVENTS, LLC | | | $1,740,000.00 | 57483 | 4562949 |
|   | |
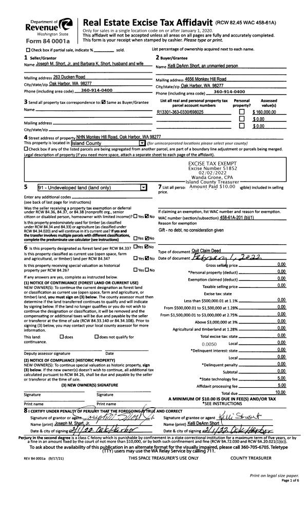
| 2 | 02/01/2022 | QCD | Quit Claim Deed | SHORT, JOSEPH M | SHORT, KELLI D | | | $0.00 | 51852 | 4539043 |
| 3 | 09/01/1994 | OTHER | Other - Misc. Documents | SHORT, JOSEPH M | SHORT, JOSEPH M | | | $0.00 | 66060 | 94020296 |
| 4 | 01/01/1900 | OTHER | Other - Misc. Documents | Unknown | SHORT, JOSEPH M | | | $0.00 | 33932 | 93020488 |
Payout Agreement
| No payout information available.. |