Property
Account |
| Property ID: | 701002 | Abbreviated Legal Description: | SEA VIEW CONDO UNIT G 12.5% INT |
| Geographic ID: | S8136-00-0100G-0 | Agent Code: | |
| Type: | Real | | |
| Tax Area: | 100 - APPRAISER-OH Schl Dist, in OH | Land Use Code | 14 |
| Open Space: | N | DFL | N |
| Historic Property: | N | Remodel Property: | N |
| Multi-Family Redevelopment: | N | | |
| Township: | | Section: | |
| Range: | |
Location |
| Address: | 320 SE BARRINGTON DR UNIT A302 OAK HARBOR, WA 98277 | Mapsco: | |
| Neighborhood: | 12*OH-seaview | Map ID: | 86 |
| Neighborhood CD: | 12*OHseavw |
Owner |
| Name: | TSCHOEPE, BRAYTEN | Owner ID: | 304279 |
| Mailing Address: | 320 SE BARRINGTON DR APT A302 OAK HARBOR, WA 98277 | % Ownership: | 100.0000000000% |
| | | Exemptions: | |
Taxes and Assessment Details
Values
| (+) Improvement Homesite Value: | + | $0 | |
| (+) Improvement Non-Homesite Value: | + | $175,771 | |
| (+) Land Homesite Value: | + | $0 | |
| (+) Land Non-Homesite Value: | + | $100,000 | |
| (+) Curr Use (HS): | + | $0 | $0 |
| (+) Curr Use (NHS): | + | $0 | $0 |
| | | -------------------------- | |
| (=) Market Value: | = | $275,771 | |
| (–) Productivity Loss: | – | $0 | |
| | | -------------------------- | |
| (=) Subtotal: | = | $275,771 | |
| (+) Senior Appraised Value: | + | $0 | |
| (+) Non-Senior Appraised Value: | + | $275,771 | |
| | | -------------------------- | |
| (=) Total Appraised Value: | = | $275,771 | |
| (–) Senior Exemption Loss: | – | $0 | |
| (–) Exemption Loss: | – | $0 | |
| | | -------------------------- | |
| (=) Taxable Value: | = | $275,771 | |
Taxing Jurisdiction
| Owner: | TSCHOEPE, BRAYTEN | | |
| % Ownership: | 100.0000000000% | | |
| Total Value: | $275,771 | | |
| Tax Area: | 100 - APPRAISER-OH Schl Dist, in OH |
| CF | Conservation Futures | 0.0313996660 | $275,771 | $275,771 | $8.66 | | |
| CEM1 | Cemetery #1 | 0.0040018856 | $275,771 | $275,771 | $1.10 | | |
| COH | City of Oak Harbor | 2.3090730572 | $275,771 | $275,771 | $636.78 | | |
| OAKBOND | City of Oak Harbor BOND | 0.1902260131 | $275,771 | $275,771 | $52.46 | | |
| HOBOND | Hospital BOND | 0.1893405597 | $275,771 | $275,771 | $52.21 | | |
| HOGEN | Hospital GEN | 0.3848777722 | $275,771 | $275,771 | $106.14 | | |
| CE | County Current Expense | 0.3674210519 | $275,771 | $275,771 | $101.32 | | |
| ISLANDEMS | Hospital GEN (EMS) | 0.4952018576 | $275,771 | $275,771 | $136.56 | | |
| LIB | Library Sno-Isle GEN | 0.3039084203 | $275,771 | $275,771 | $83.81 | | |
| NWHIDPRMT | P & R N Whidbey GEN | 0.1990272349 | $275,771 | $275,771 | $54.89 | | |
| SCH201MO | School 201 Enrichment | 2.3851112745 | $275,771 | $275,771 | $657.74 | | |
| ST | State School | 1.4761226122 | $275,771 | $275,771 | $407.07 | | |
| ST2 | State School Part 2 | 0.7953803475 | $275,771 | $275,771 | $219.34 | | |
| | Total Tax Rate: | 9.1310917527 | | | | | |
| | | | | Taxes w/Current Exemptions: | $2,518.08 | | |
| | | | | Taxes w/o Exemptions: | $2,518.08 | | |
Improvement / Building
| Improvement #1: | RESIDENTIAL | State Code: | Y | 947.0 sqft | Value: | $175,771 |
| Bathrooms: | 2 | Bedrooms: | 2 | | Ceiling: | DRYWALL PAINTED | Exterior Wall/Cover: | CEMENT FIBER | | Floor Covering: | CARPET/VINYL 80-20 | Floor Structure: | WOOD W/SUBFLOOR | | Foundation: | CONCRETE | Heating: | WALL HEAT ELECTRIC | | Interior Finish: | DRYWALL PAINT | Plumbing Fixture Cnt: | 9 | | Roof Slope: | 4" IN 12" | Roof Structure/Cover: | CJ ASPHALT |
|
| | Type | Description | Class CD | Sub Class CD | Year Built | Area |
| | BAS | BASE/MAIN FLOOR | 3 | 0 | 1994 | 947.0 |
| | UTY | STORAGE/UTILITY | 3 | 0 | 1994 | 24.0 |
| | UTY | STORAGE/UTILITY | 3 | 0 | 1994 | 36.0 |
| | OWP | OPEN WOOD PORCH W/STEPS | 3 | 0 | 1994 | 74.0 |
| | OWR | OPEN WOOD PORCH W/STEPS/ROOF | 3 | 0 | 1994 | 36.0 |
| | OCP | OPEN CARPORT | 3 | 0 | 1994 | 162.0 |
| | oPV1 | PV/ASPH 2" | 3 | 0 | 1994 | 0.0 |
Sketch
Property Image
Land
| 1 | 61 | MULTIPLE RESIDENCES | 0.0000 | 1875.00 | 0.00 | 0.00 | 1.00 | $100,000 | $0 |
Roll Value History
| 2026 | N/A | N/A | N/A | N/A | N/A |
| 2025 | $175,771 | $100,000 | $0 | $275,771 | $275,771 |
| 2024 | $177,983 | $100,000 | $0 | $277,983 | $277,983 |
| 2023 | $179,289 | $100,000 | $0 | $279,289 | $279,289 |
| 2022 | $156,429 | $75,000 | $0 | $231,429 | $231,429 |
| 2021 | $137,832 | $45,000 | $0 | $182,832 | $182,832 |
| 2020 | $133,806 | $32,000 | $0 | $165,806 | $165,806 |
| 2019 | $92,451 | $60,000 | $0 | $152,451 | $152,451 |
| 2018 | $92,733 | $65,000 | $0 | $157,733 | $157,733 |
| 2017 | $87,874 | $12,750 | $0 | $100,624 | $100,624 |
| 2016 | $88,970 | $12,750 | $0 | $101,720 | $101,720 |
| 2015 | $90,064 | $12,750 | $0 | $102,814 | $102,814 |
| 2014 | $91,157 | $12,750 | $0 | $103,907 | $103,907 |
| 2013 | $92,253 | $12,750 | $0 | $105,003 | $55,003 |
| 2012 | $96,510 | $12,750 | $0 | $109,260 | $43,704 |
| 2011 | $96,510 | $12,750 | $0 | $109,260 | $43,704 |
| 2010 | $112,799 | $12,750 | $0 | $125,549 | $125,549 |
| 2009 | $117,631 | $20,625 | $0 | $138,256 | $138,256 |
| 2008 | $119,086 | $14,569 | $0 | $133,655 | $133,655 |
| 2007 | $120,556 | $14,569 | $0 | $135,125 | $135,125 |
Deed and Sales History
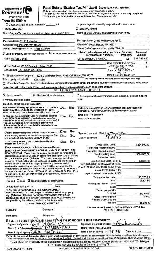
| 1 | 09/22/2025 | WD | Warranty Deed | TSCHOEPE, BRAYTEN | DANIELS, THERESA | | | $324,900.00 | 64995 | 4591612 |
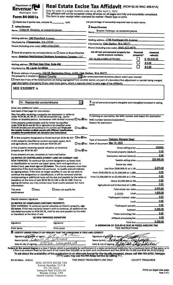
| 2 | 05/10/2022 | WD | Warranty Deed | SIMMONS, COLLIN M. | TSCHOEPE, BRAYTEN | | | $325,000.00 | 53118 | 4545171 |
| 3 | 03/26/2014 | WD | Warranty Deed | LINDENSTEIN, RUTH | SIMMONS, COLLIN M. | | | $112,500.00 | 14746 | 4357183 |
| 4 | 02/26/2013 | CPADC | Comm Prop Agmnt & Death Cert | LINDENSTEIN, RUTH | LINDENSTEIN, RUTH | | | | 82638 | 4235989 |
| 5 | 07/07/2000 | WD | Warranty Deed | HAWKINS, DAVID A | LINDENSTEIN, BERNARD | | | $85,000.00 | 2581 | 20012482 |
| 6 | 10/01/1994 | WD | Warranty Deed | ISLAND, CONSTRUCTION I | HAWKINS, DAVID A | | | $93,000.00 | 44409 | 94022729 |
| 7 | 01/01/1900 | OTHER | Other - Misc. Documents | Unknown | ISLAND, CONSTRUCTION I | | | $0.00 | 34436 | 93023099 |
Payout Agreement
| No payout information available.. |