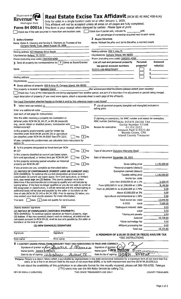
Property
Account |
| Property ID: | 701057 | Abbreviated Legal Description: | LOT 3 SP 54-93.33222.175-0370 & .175-1030 V2 SP P498 AF#95001936 DRAINFIELD LOC PT 146-0690 AF#95001937 DRAINFIELD LOC PT 183-0300 AF#95001940 |
| Geographic ID: | R33222-168-0950 | Agent Code: | |
| Type: | Real | | |
| Tax Area: | 512 - APPRAISER-Stan/Cam Schl Dist, improved, greater than 1 acre | Land Use Code | 11 |
| Open Space: | N | DFL | N |
| Historic Property: | N | Remodel Property: | N |
| Multi-Family Redevelopment: | N | | |
| Township: | 32 | Section: | 22 |
| Range: | R3 |
Location |
| Address: | 930 AMY PLACE CAMANO ISLAND, WA 98282 | Mapsco: | |
| Neighborhood: | North Camano | Map ID: | 972 |
| Neighborhood CD: | 06-C |
Owner |
| Name: | DELAPAZ, MICHAEL | Owner ID: | 302759 |
| Mailing Address: | JAMIE DELAPAZ 930 N AMY PL CAMANO ISLAND, WA 98282 | % Ownership: | 100.0000000000% |
| | | Exemptions: | |
Taxes and Assessment Details
Values
| (+) Improvement Homesite Value: | + | $0 | |
| (+) Improvement Non-Homesite Value: | + | $1,004,733 | |
| (+) Land Homesite Value: | + | $0 | |
| (+) Land Non-Homesite Value: | + | $380,000 | |
| (+) Curr Use (HS): | + | $0 | $0 |
| (+) Curr Use (NHS): | + | $0 | $0 |
| | | -------------------------- | |
| (=) Market Value: | = | $1,384,733 | |
| (–) Productivity Loss: | – | $0 | |
| | | -------------------------- | |
| (=) Subtotal: | = | $1,384,733 | |
| (+) Senior Appraised Value: | + | $0 | |
| (+) Non-Senior Appraised Value: | + | $1,384,733 | |
| | | -------------------------- | |
| (=) Total Appraised Value: | = | $1,384,733 | |
| (–) Senior Exemption Loss: | – | $0 | |
| (–) Exemption Loss: | – | $0 | |
| | | -------------------------- | |
| (=) Taxable Value: | = | $1,384,733 | |
Taxing Jurisdiction
| Owner: | DELAPAZ, MICHAEL | | |
| % Ownership: | 100.0000000000% | | |
| Total Value: | $1,384,733 | | |
| Tax Area: | 512 - APPRAISER-Stan/Cam Schl Dist, improved, greater than 1 acre |
| CF | Conservation Futures | 0.0313996660 | $1,384,733 | $1,384,733 | $43.48 | | |
| EMS1 | Fire & Rescue Dist #1 Camano GEN (EMS) | 0.4998471806 | $1,384,733 | $1,384,733 | $692.15 | | |
| FIRE1 | Fire & Rescue Dist #1 Camano GEN | 1.2496603404 | $1,384,733 | $1,384,733 | $1,730.45 | | |
| FIRE1BOND | Fire & Rescue Dist #1 Camano BOND | 0.1630371212 | $1,384,733 | $1,384,733 | $225.76 | | |
| CE | County Current Expense | 0.3674210519 | $1,384,733 | $1,384,733 | $508.78 | | |
| CR | County Roads | 0.4614296361 | $1,384,733 | $1,384,733 | $638.96 | | |
| LIB | Library Sno-Isle GEN | 0.3039084203 | $1,384,733 | $1,384,733 | $420.83 | | |
| SCH205_401 | School 205-401 Enrichment | 1.3697998934 | $1,384,733 | $1,384,733 | $1,896.81 | | |
| SCH205BOND | School 205-401 BOND | 0.9354199323 | $1,384,733 | $1,384,733 | $1,295.31 | | |
| ST | State School | 1.4761226122 | $1,384,733 | $1,384,733 | $2,044.04 | | |
| ST2 | State School Part 2 | 0.7953803475 | $1,384,733 | $1,384,733 | $1,101.39 | | |
| | Total Tax Rate: | 7.6534262019 | | | | | |
| | | | | Taxes w/Current Exemptions: | $10,597.96 | | |
| | | | | Taxes w/o Exemptions: | $10,597.96 | | |
Improvement / Building
| Improvement #1: | RESIDENTIAL | State Code: | Y | 5176.5 sqft | Value: | $1,004,733 |
| Bathrooms: | 3.5 | Bedrooms: | 3 | | Ceiling: | DRYWALL PAINTED | Exterior Wall/Cover: | VINYL | | Floor Covering: | HARDWOOD/CARP 20-80 | Floor Structure: | WOOD W/SUBFLOOR | | Foundation: | CONCRETE | Heating: | FHA GAS | | Interior Finish: | DRYWALL PAINT | Plumbing Fixture Cnt: | 20 | | Roof Slope: | 6" IN 12" | Roof Structure/Cover: | CJ ALUMINIUM HEAVY |
|
| | Type | Description | Class CD | Sub Class CD | Year Built | Area |
| | BAS | BASE/MAIN FLOOR | 5 | 0 | 1996 | 3676.0 |
| | BIG | BUILT IN GARAGE | 5 | 0 | 1996 | 1120.0 |
| | UPS | UPPER STORY | 5 | 0 | 1996 | 639.5 |
| | UPS | UPPER STORY | 5 | 0 | 1996 | 861.0 |
| | ATU | ATTIC UNFINISHED | 5 | 0 | 1996 | 776.0 |
| | OWP | OPEN WOOD PORCH W/STEPS | 5 | 0 | 1996 | 478.0 |
| | OWC | OPEN WOOD PORCH W/STEPS/ROOF/C | 5 | 0 | 1996 | 19.5 |
| | OWC | OPEN WOOD PORCH W/STEPS/ROOF/C | 5 | 0 | 1996 | 342.0 |
| | OCP | OPEN CARPORT | 5 | 0 | 1996 | 672.0 |
| | DGR | DETACHED GARAGE | 5 | 0 | 1996 | 720.0 |
| | UTY | STORAGE/UTILITY | 5 | 0 | 1996 | 672.0 |
| | ENP | ENCLOSED PORCH | 5 | 0 | 1996 | 1030.0 |
Sketch
Property Image
Land
| 1 | 32 | AC (03.01-09.99) | 5.0000 | 217800.00 | 0.00 | 0.00 | 1.00 | $380,000 | $0 |
Roll Value History
| 2026 | N/A | N/A | N/A | N/A | N/A |
| 2025 | $1,004,733 | $380,000 | $0 | $1,384,733 | $1,384,733 |
| 2024 | $1,017,253 | $390,000 | $0 | $1,407,253 | $1,407,253 |
| 2023 | $1,029,772 | $380,000 | $0 | $1,409,772 | $1,409,772 |
| 2022 | $826,052 | $350,000 | $0 | $1,176,052 | $1,176,052 |
| 2021 | $727,484 | $240,000 | $0 | $967,484 | $967,484 |
| 2020 | $710,946 | $200,000 | $0 | $910,946 | $364,378 |
| 2019 | $613,248 | $240,000 | $0 | $853,248 | $853,248 |
| 2018 | $615,134 | $220,000 | $0 | $835,134 | $835,134 |
| 2017 | $618,987 | $200,000 | $0 | $818,987 | $818,987 |
| 2016 | $553,377 | $150,000 | $0 | $703,377 | $703,377 |
| 2015 | $559,811 | $140,000 | $0 | $699,811 | $699,811 |
| 2014 | $566,248 | $225,000 | $0 | $791,248 | $791,248 |
| 2013 | $572,683 | $120,800 | $0 | $693,483 | $693,483 |
| 2012 | $579,118 | $120,800 | $0 | $699,918 | $699,918 |
| 2011 | $585,553 | $150,800 | $0 | $736,353 | $736,353 |
| 2010 | $661,298 | $150,800 | $0 | $812,098 | $812,098 |
| 2009 | $689,878 | $170,800 | $0 | $860,678 | $860,678 |
| 2008 | $709,795 | $170,800 | $0 | $880,595 | $880,595 |
| 2007 | $702,913 | $170,800 | $0 | $873,713 | $873,713 |
Deed and Sales History
| 1 | 12/20/2021 | WD | Warranty Deed | CLEMENS TTEE, ROBIN R | DELAPAZ, MICHAEL | | | $1,136,000.00 | 51548 | 4537084 |
| 2 | 08/16/2006 | 5 | DNU - Marriage License/Name Change | CLEMENS, ROBIN R | CLEMENS TTEE, ROBIN R | | | $0.00 | 64741 | 4186070 |
| 3 | 02/01/1995 | WD | Warranty Deed | DORSEY, STEVEN H | CLEMENS, ROBIN R | | | $95,000.00 | 50524 | 95002541 |
| 4 | 01/01/1900 | OTHER | Other - Misc. Documents | Unknown | DORSEY, STEVEN H | | | $0.00 | 32006 | 93010400 |
Payout Agreement
| No payout information available.. |