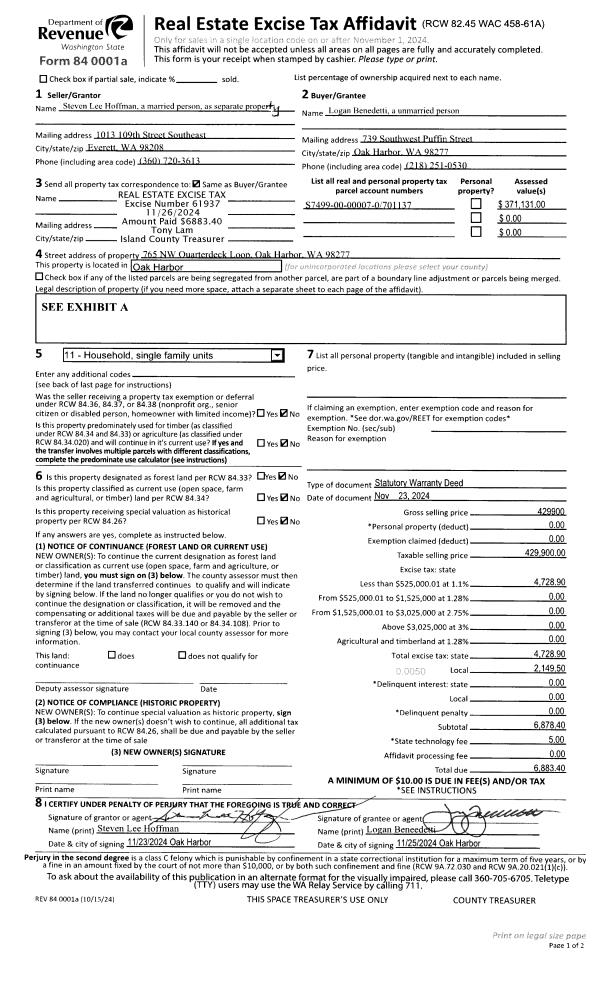
Property
Account |
| Property ID: | 701137 | Abbreviated Legal Description: | MEADOWRIDGE LOT 7 |
| Geographic ID: | S7499-00-00007-0 | Agent Code: | |
| Type: | Real | | |
| Tax Area: | 100 - APPRAISER-OH Schl Dist, in OH | Land Use Code | 11 |
| Open Space: | N | DFL | N |
| Historic Property: | N | Remodel Property: | N |
| Multi-Family Redevelopment: | N | | |
| Township: | | Section: | |
| Range: | |
Location |
| Address: | 765 NW QUARTERDECK LOOP OAK HARBOR, WA 98277 | Mapsco: | |
| Neighborhood: | Cycle 1 | Map ID: | 254 |
| Neighborhood CD: | 1 |
Owner |
| Name: | BENEDETTI, LOGAN | Owner ID: | 314682 |
| Mailing Address: | 739 SOUTHWEST PUFFIN ST OAK HARBOR, WA 98277 | % Ownership: | 100.0000000000% |
| | | Exemptions: | |
Taxes and Assessment Details
Values
| (+) Improvement Homesite Value: | + | $0 | |
| (+) Improvement Non-Homesite Value: | + | $200,915 | |
| (+) Land Homesite Value: | + | $0 | |
| (+) Land Non-Homesite Value: | + | $210,000 | |
| (+) Curr Use (HS): | + | $0 | $0 |
| (+) Curr Use (NHS): | + | $0 | $0 |
| | | -------------------------- | |
| (=) Market Value: | = | $410,915 | |
| (–) Productivity Loss: | – | $0 | |
| | | -------------------------- | |
| (=) Subtotal: | = | $410,915 | |
| (+) Senior Appraised Value: | + | $0 | |
| (+) Non-Senior Appraised Value: | + | $410,915 | |
| | | -------------------------- | |
| (=) Total Appraised Value: | = | $410,915 | |
| (–) Senior Exemption Loss: | – | $0 | |
| (–) Exemption Loss: | – | $0 | |
| | | -------------------------- | |
| (=) Taxable Value: | = | $410,915 | |
Taxing Jurisdiction
| Owner: | BENEDETTI, LOGAN | | |
| % Ownership: | 100.0000000000% | | |
| Total Value: | $410,915 | | |
| Tax Area: | 100 - APPRAISER-OH Schl Dist, in OH |
| CF | Conservation Futures | 0.0313996660 | $410,915 | $410,915 | $12.90 | | |
| CEM1 | Cemetery #1 | 0.0040018856 | $410,915 | $410,915 | $1.64 | | |
| COH | City of Oak Harbor | 2.3090730572 | $410,915 | $410,915 | $948.83 | | |
| OAKBOND | City of Oak Harbor BOND | 0.1902260131 | $410,915 | $410,915 | $78.17 | | |
| HOBOND | Hospital BOND | 0.1893405597 | $410,915 | $410,915 | $77.80 | | |
| HOGEN | Hospital GEN | 0.3848777722 | $410,915 | $410,915 | $158.15 | | |
| CE | County Current Expense | 0.3674210519 | $410,915 | $410,915 | $150.98 | | |
| ISLANDEMS | Hospital GEN (EMS) | 0.4952018576 | $410,915 | $410,915 | $203.49 | | |
| LIB | Library Sno-Isle GEN | 0.3039084203 | $410,915 | $410,915 | $124.88 | | |
| NWHIDPRMT | P & R N Whidbey GEN | 0.1990272349 | $410,915 | $410,915 | $81.78 | | |
| SCH201MO | School 201 Enrichment | 2.3851112745 | $410,915 | $410,915 | $980.08 | | |
| ST | State School | 1.4761226122 | $410,915 | $410,915 | $606.56 | | |
| ST2 | State School Part 2 | 0.7953803475 | $410,915 | $410,915 | $326.83 | | |
| | Total Tax Rate: | 9.1310917527 | | | | | |
| | | | | Taxes w/Current Exemptions: | $3,752.09 | | |
| | | | | Taxes w/o Exemptions: | $3,752.09 | | |
Improvement / Building
| Improvement #1: | RESIDENTIAL | State Code: | Y | 1090.0 sqft | Value: | $200,915 |
| Bathrooms: | 1.5 | Bedrooms: | 3 | | Ceiling: | DRYWALL PAINTED | Exterior Wall/Cover: | PLY/HARDBOARD T-111 | | Floor Covering: | CARPET/VINYL 80-20 | Floor Structure: | WOOD W/SUBFLOOR | | Foundation: | CONCRETE | Heating: | WALL HEAT ELECTRIC | | Interior Finish: | DRYWALL PAINT | Plumbing Fixture Cnt: | 8 | | Roof Slope: | 6" IN 12" | Roof Structure/Cover: | CJ ASPHALT |
|
| | Type | Description | Class CD | Sub Class CD | Year Built | Area |
| | BAS | BASE/MAIN FLOOR | 3 | 0 | 1995 | 1090.0 |
| | OP1 | OPEN PORCH SLAB | 3 | 0 | 1995 | 42.0 |
| | AGR | ATTACHED GARAGE | 3 | 0 | 1995 | 320.0 |
| | OWP | OPEN WOOD PORCH W/STEPS | 3 | 0 | 1995 | 132.0 |
| | OWP | OPEN WOOD PORCH W/STEPS | 3 | 0 | 1995 | 64.0 |
Sketch
Property Image
Land
| 1 | 13 | SQ (06001-08000) | 0.0000 | 0.00 | 0.00 | 0.00 | 1.00 | $210,000 | $0 |
Roll Value History
| 2026 | N/A | N/A | N/A | N/A | N/A |
| 2025 | $200,915 | $210,000 | $0 | $410,915 | $410,915 |
| 2024 | $181,131 | $190,000 | $0 | $371,131 | $371,131 |
| 2023 | $183,604 | $190,000 | $0 | $373,604 | $373,604 |
| 2022 | $168,493 | $160,000 | $0 | $328,493 | $328,493 |
| 2021 | $148,472 | $120,000 | $0 | $268,472 | $268,472 |
| 2020 | $144,534 | $100,000 | $0 | $244,534 | $244,534 |
| 2019 | $102,607 | $150,000 | $0 | $252,607 | $252,607 |
| 2018 | $102,935 | $130,000 | $0 | $232,935 | $232,935 |
| 2017 | $106,083 | $110,000 | $0 | $216,083 | $216,083 |
| 2016 | $107,427 | $90,000 | $0 | $197,427 | $197,427 |
| 2015 | $108,770 | $70,000 | $0 | $178,770 | $178,770 |
| 2014 | $110,112 | $55,000 | $0 | $165,112 | $165,112 |
| 2013 | $111,456 | $55,000 | $0 | $166,456 | $166,456 |
| 2012 | $112,799 | $65,000 | $0 | $177,799 | $177,799 |
| 2011 | $115,749 | $50,000 | $0 | $165,749 | $165,749 |
| 2010 | $118,456 | $50,000 | $0 | $168,456 | $168,456 |
| 2009 | $123,727 | $75,000 | $0 | $198,727 | $198,727 |
| 2008 | $125,426 | $90,000 | $0 | $215,426 | $215,426 |
| 2007 | $127,169 | $90,000 | $0 | $217,169 | $217,169 |
Deed and Sales History
| 1 | 11/23/2024 | WD | Warranty Deed | HOFFMAN, STEVEN L | BENEDETTI, LOGAN | | | $429,900.00 | 61937 | 4579836 |
| 2 | 06/14/2002 | WD | Warranty Deed | SILANI, ANDREW P | HOFFMAN, STEVEN L | | | $135,000.00 | 22331 | 4023282 |
| 3 | 04/25/2000 | WD | Warranty Deed | MANN, FRANK D & SAUNDRA A | SILANI, ANDREW P | | | $127,500.00 | 1570 | 20007583 |
| 4 | 05/01/1995 | WD | Warranty Deed | MEADOWRIDGE, INC | MANN, FRANK D | | | $38,000.00 | 51825 | 95008534 |
| 5 | 01/01/1900 | OTHER | Other - Misc. Documents | Unknown | MEADOWRIDGE, INC | | | $0.00 | 40915 | 94006003 |
| 6 | 01/01/1900 | OTHER | Other - Misc. Documents | MANN, FRANK D | MANN, FRANK D & SAUNDRA A | | | $0.00 | 0 | 0 |
Payout Agreement
| No payout information available.. |