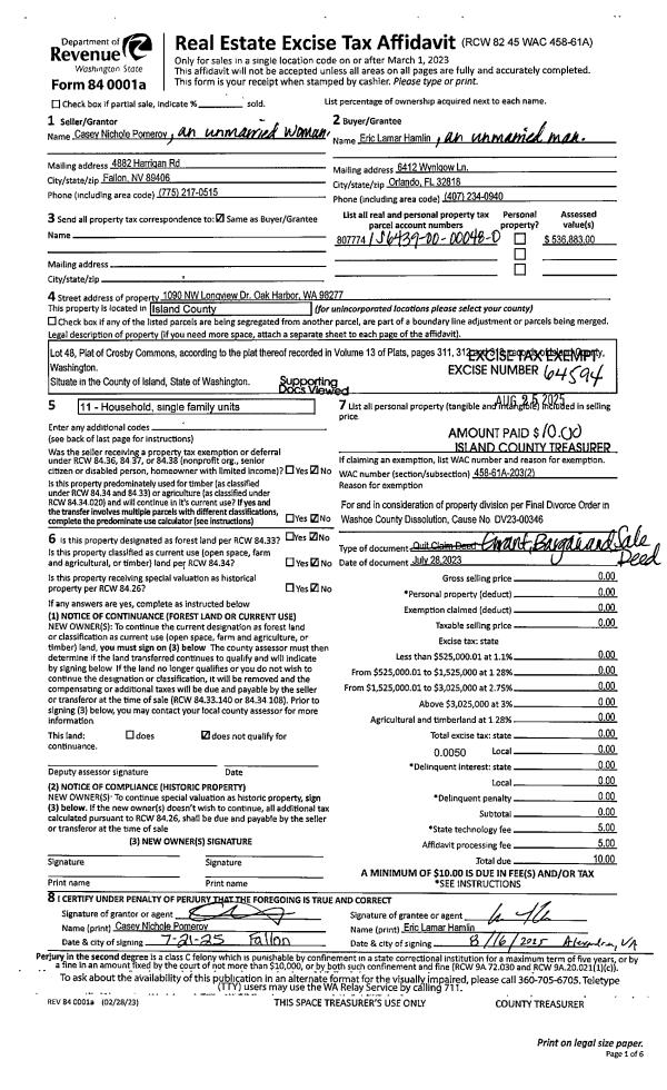
Property
Account |
| Property ID: | 70158 | Abbreviated Legal Description: | 14 - IN GL 4 INCL ADJ TIDELANDS |
| Geographic ID: | R23035-031-4900 | Agent Code: | |
| Type: | Real | | |
| Tax Area: | 719 - APPRAISER-S Whid Schl Dist, outside Langley, vacant & 50 acres or less | Land Use Code | 91 |
| Open Space: | N | DFL | N |
| Historic Property: | N | Remodel Property: | N |
| Multi-Family Redevelopment: | N | | |
| Township: | 30 | Section: | 35 |
| Range: | R2 |
Location |
| Address: | | Mapsco: | |
| Neighborhood: | Cycle 3 | Map ID: | 443 |
| Neighborhood CD: | 3 |
Owner |
| Name: | SCHAER, ROLF | Owner ID: | 90864 |
| Mailing Address: | KARIN M SCHAER 811 19TH AVE SEATTLE, WA 98144 | % Ownership: | 100.0000000000% |
| | | Exemptions: | |
Taxes and Assessment Details
Values
| (+) Improvement Homesite Value: | + | $0 | |
| (+) Improvement Non-Homesite Value: | + | $0 | |
| (+) Land Homesite Value: | + | $0 | |
| (+) Land Non-Homesite Value: | + | $301,270 | |
| (+) Curr Use (HS): | + | $0 | $0 |
| (+) Curr Use (NHS): | + | $0 | $0 |
| | | -------------------------- | |
| (=) Market Value: | = | $301,270 | |
| (–) Productivity Loss: | – | $0 | |
| | | -------------------------- | |
| (=) Subtotal: | = | $301,270 | |
| (+) Senior Appraised Value: | + | $0 | |
| (+) Non-Senior Appraised Value: | + | $301,270 | |
| | | -------------------------- | |
| (=) Total Appraised Value: | = | $301,270 | |
| (–) Senior Exemption Loss: | – | $0 | |
| (–) Exemption Loss: | – | $0 | |
| | | -------------------------- | |
| (=) Taxable Value: | = | $301,270 | |
Taxing Jurisdiction
| Owner: | SCHAER, ROLF | | |
| % Ownership: | 100.0000000000% | | |
| Total Value: | $301,270 | | |
| Tax Area: | 719 - APPRAISER-S Whid Schl Dist, outside Langley, vacant & 50 acres or less |
| CF | Conservation Futures | 0.0313996660 | $301,270 | $301,270 | $9.46 | | |
| HOBOND | Hospital BOND | 0.1893405597 | $301,270 | $301,270 | $57.04 | | |
| HOGEN | Hospital GEN | 0.3848777722 | $301,270 | $301,270 | $115.95 | | |
| CE | County Current Expense | 0.3674210519 | $301,270 | $301,270 | $110.69 | | |
| CR | County Roads | 0.4614296361 | $301,270 | $301,270 | $139.01 | | |
| ISLANDEMS | Hospital GEN (EMS) | 0.4952018576 | $301,270 | $301,270 | $149.19 | | |
| LIB | Library Sno-Isle GEN | 0.3039084203 | $301,270 | $301,270 | $91.56 | | |
| PORTWHID | Port of S Whidbey GEN | 0.1086004714 | $301,270 | $301,270 | $32.72 | | |
| SCH206BOND | School 206 BOND | 0.5960237832 | $301,270 | $301,270 | $179.56 | | |
| SCH206CAP | School 206 CP | 0.3066144020 | $301,270 | $301,270 | $92.37 | | |
| SCH206MO | School 206 Enrichment | 0.4808755445 | $301,270 | $301,270 | $144.87 | | |
| ST | State School | 1.4761226122 | $301,270 | $301,270 | $444.71 | | |
| ST2 | State School Part 2 | 0.7953803475 | $301,270 | $301,270 | $239.62 | | |
| SWHIDPRBD | P & R S Whidbey BOND | 0.0144185398 | $301,270 | $301,270 | $4.34 | | |
| SWHIDPRBD3 | P & R S Whidbey BOND3 | 0.1483535547 | $301,270 | $301,270 | $44.69 | | |
| SWHIDPRMT | P & R S Whidbey GEN | 0.4600000000 | $301,270 | $301,270 | $138.58 | | |
| | Total Tax Rate: | 6.6199682191 | | | | | |
| | | | | Taxes w/Current Exemptions: | $1,994.36 | | |
| | | | | Taxes w/o Exemptions: | $1,994.36 | | |
Improvement / Building
Sketch
| No sketches available for this property. |
Property Image
Land
| 1 | HB | HIGH BLUFF | 0.0000 | 0.00 | 127.00 | 0.00 | 1.00 | $300,000 | $0 |
| 2 | 55 | TIDES | 0.0000 | 0.00 | 127.00 | 0.00 | 1.00 | $1,270 | $0 |
Roll Value History
| 2026 | N/A | N/A | N/A | N/A | N/A |
| 2025 | $0 | $301,270 | $0 | $301,270 | $301,270 |
| 2024 | $0 | $301,270 | $0 | $301,270 | $301,270 |
| 2023 | $0 | $301,270 | $0 | $301,270 | $301,270 |
| 2022 | $0 | $301,270 | $0 | $301,270 | $301,270 |
| 2021 | $0 | $251,270 | $0 | $251,270 | $251,270 |
| 2020 | $0 | $251,270 | $0 | $251,270 | $251,270 |
| 2019 | $0 | $251,270 | $0 | $251,270 | $251,270 |
| 2018 | $0 | $251,270 | $0 | $251,270 | $251,270 |
| 2017 | $0 | $251,270 | $0 | $251,270 | $251,270 |
| 2016 | $0 | $251,270 | $0 | $251,270 | $251,270 |
| 2015 | $0 | $251,270 | $0 | $251,270 | $251,270 |
| 2014 | $0 | $251,270 | $0 | $251,270 | $251,270 |
| 2013 | $0 | $222,594 | $0 | $222,594 | $222,594 |
| 2012 | $0 | $222,594 | $0 | $222,594 | $222,594 |
| 2011 | $0 | $222,594 | $0 | $222,594 | $222,594 |
| 2010 | $0 | $222,594 | $0 | $222,594 | $222,594 |
| 2009 | $0 | $317,446 | $0 | $317,446 | $317,446 |
| 2008 | $0 | $366,629 | $0 | $366,629 | $366,629 |
| 2007 | $0 | $432,995 | $0 | $432,995 | $432,995 |
Deed and Sales History
| 1 | 11/28/2006 | WD | Warranty Deed | Unknown | SCHAER, ROLF | | | $475,950.00 | 65023 | 4188118 |
Payout Agreement
| No payout information available.. |